Дизайн-проект квартиры — это большой пакет документов с эскизами интерьеров и рабочими чертежами для проведения ремонта. Цены на его разработку зависят от выбранного типа — «Эскизный» или «Полный». Воспользуйтесь калькулятором от «Вира-АртСтрой» и рассчитайте стоимость дизайн-проекта за 1 минуту!
Калькулятор стоимости дизайн-проекта квартиры в Москве

Цены на дизайн интерьера
В состав полного дизайн-проекта интерьера квартиры или загородного дома от «Вира-АртСтрой» входят эскизный и рабочий проекты, содержащие планировочное решение, 3D-визуализации и строительную документацию.
Цены на проектирование зависят от общей площади объекта и снижаются с ее увеличением. В рамках действующей акции вы можете заказать дизайн-проект с существенной скидкой, а при заказе ремонта получить полный возврат его стоимости на финальном этапе ремонтных работ!
Срок реализации дизайн-проекта 30-70 дней
Как получить проект бесплатно?
Заказывать проектирование и дизайнерский ремонт выгоднее в одной компании полного цикла. Чем больше услуг вы выбираете, тем выше может быть скидка. В рамках действующей сейчас акции, при заказе ремонта, вы получаете дизайн-проект бесплатно — его стоимость возвращается на финальном этапе ремонта квартиры.
Зачем нужен проект и можно ли обойтись без него?
Дизайн-проект содержит художественное решение интерьера, строительную документацию, спецификации мебели и отделки. Без него невозможно обойтись при проведении современного ремонта.
Проект даст вам полное представление о будущем интерьере, позволит составить точную смету на ремонт и оптимизировать расходы, сократив ненужные статьи и выбрав оптимальные по цене материалы, оборудование и мебель.
Состав и этапы разработки дизайнерского проекта
Разработка любого дизайн-проекта состоит из нескольких этапов. Почти все они обязательны для выполнения, если вы хотите получить в итоге качественный и красивый ремонт.
Этап 1. Обмерный план и встреча с дизайнером
Работа над дизайн-проектом начинается со встреч заказчика и дизайнера. Но для того, чтобы у интерьерной студии были полные представления об объекте, ей необходим обмерный план, на основе которого впоследствии и будут выстраиваться все рабочие чертежи и эскизы.
Этап 2. Планировочные решения
Многие объекты требуют перепланировки. Заказчик может захотеть объединить кухню с гостиной, присоединить лоджию или просто расширить дверной проем. Для всех этих манипуляций необходимо создать планы монтажа и демонтажа перегородок, на основе которых и разрабатывается планировочное решение.
Этап 3. 3D-визуализации
3D-визуализации, которые часто трудно отличить от фото, помогают определиться со стилистикой интерьера, колористическим решением и декором.
Трехмерные эскизы помогут вам увидеть будущий интерьер во всех деталях еще до начала ремонта и при необходимости внести нужные корректировки.
Этап 4. Рабочие чертежи
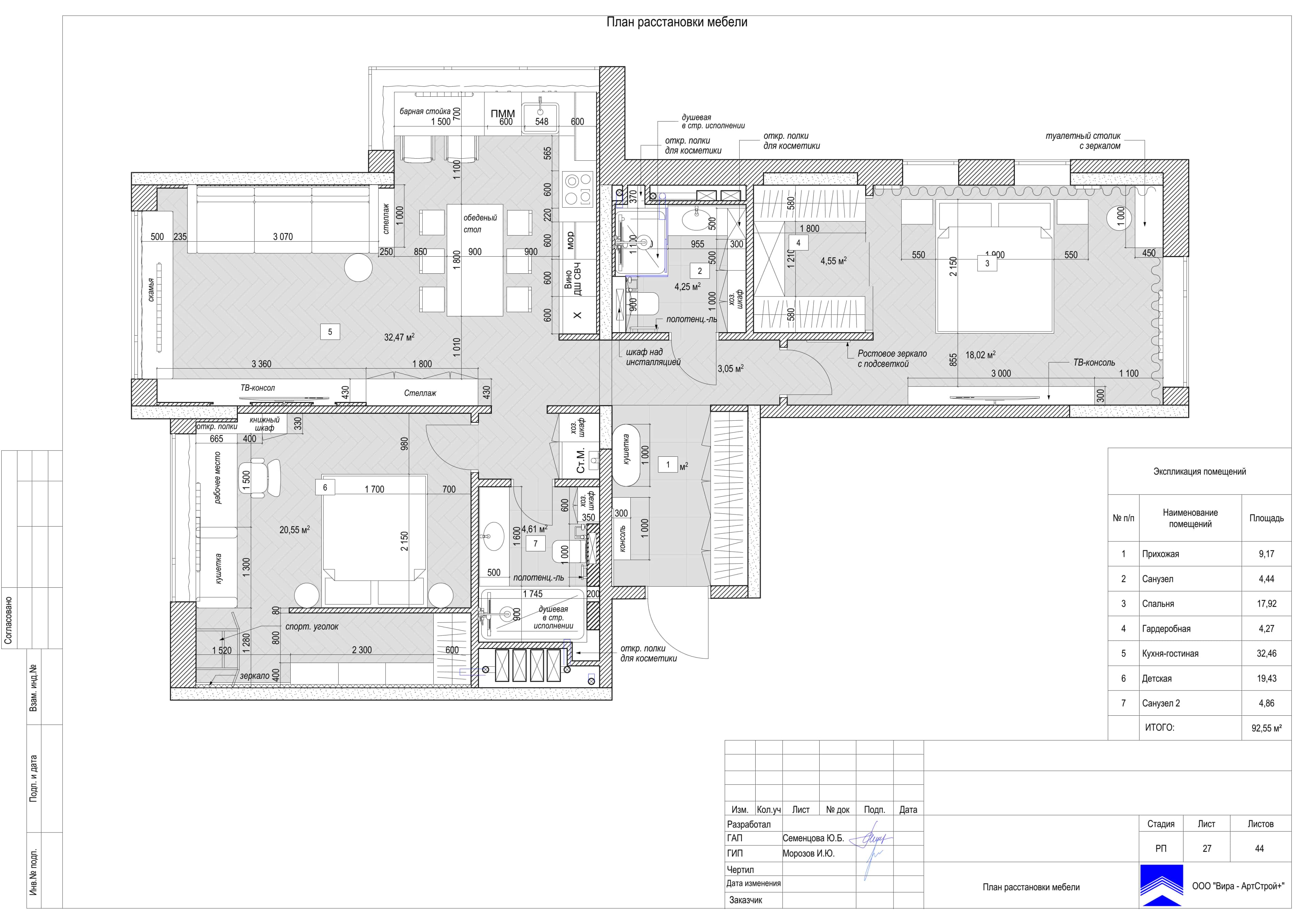
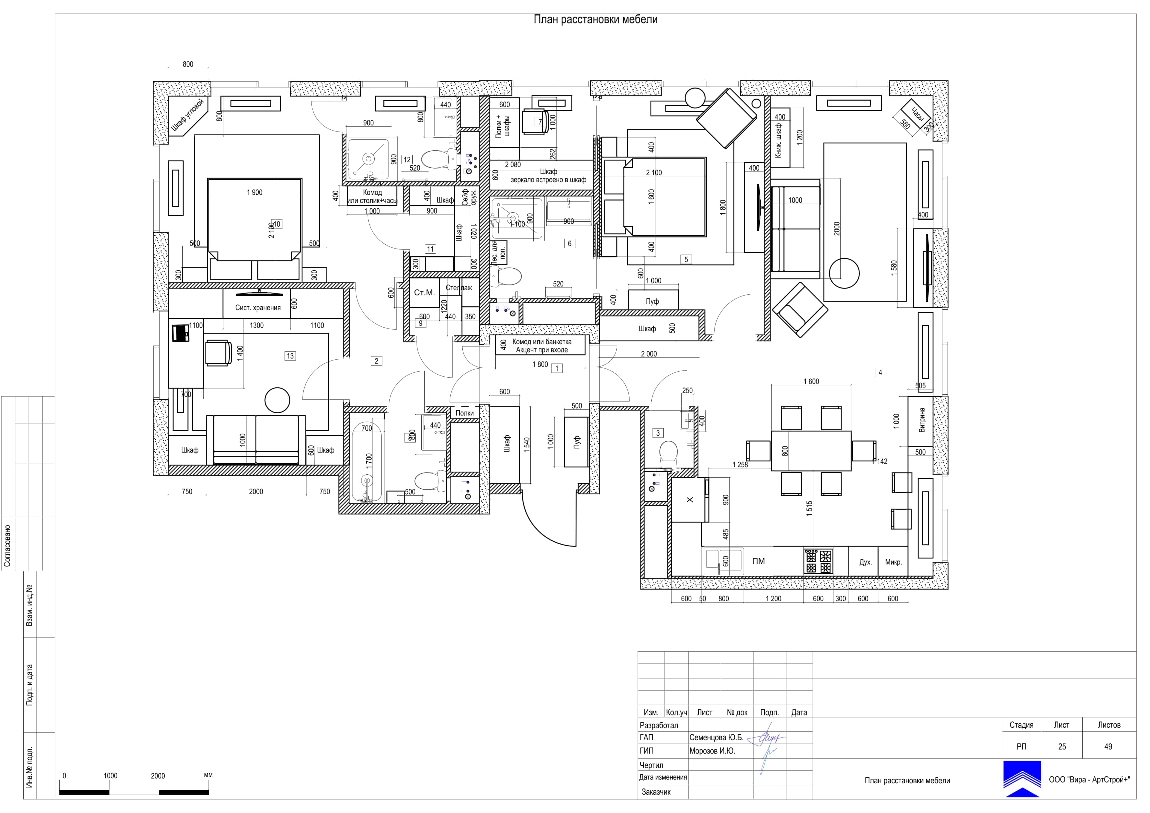
Рабочие чертежи необходимы строителям для выполнения ремонтных работ. В компании «Вира-АртСтрой» в состав дизайн-проекта входят планы расстановки выключателей, мебели и сантехники, отделки стен и т. д.
Если пакет документации для ремонта будет неполным, то в процессе выполнения работ могут возникнуть ошибки.
Например, выключатели окажутся спрятанными за шкафом, не окажется нужных электровыводов, а мебель не впишется в имеющиеся ниши.
4 примера дизайн-проектов квартир из нашего портфолио
Наша компания «Вира-АртСтрой» разрабатывает дизайн-проекты квартир в разных интерьерных стилях с учетом пожеланий и запросов заказчиков. Для каждого проекта дизайнеры предлагают индивидуальные планировочные и декораторские решения, позволяющие полностью реализовать потенциал объекта.
1. Неоклассика с бирюзовыми акцентами
Неоклассика для этой квартиры в ЖК «Хэдлайнер» стала идеальным стилистическим решением. Серо-белая гамма интерьера выглядит актуально и при этом аристократично. Черные оконные рамы, потолочные треки и легкий стеллаж делают обстановку графичной и динамичной. А бирюзовые акценты — фреска в диванной зоне гостиной, обеденные стулья и светильники в кухне — создают настроение.
В светлой кухне яркими акцентами служат столовые стулья с бирюзовой обивкой и парные люстры над обеденным столом, собранные из крупных бусин.
Изюминкой интерьера прихожей стало панно из рифленых панелей с закрепленным на нем большим радиусным зеркалом. А тему бирюзы в дизайне продолжили стильная овальная банкетка, подвесы возле зеркала, заменившие привычные бра, абстракция на стене и потолочная люстра.
Интерьер спальни в ЖК «Хедлайнер» построен на благородном сочетании серо-бирюзовых и бежевых оттенков. Мягкое изголовье кровати и двухслойная драпировка окна создают уют, а люстра с изящными подвесами добавляет лоска. Строгие линии мебели подчеркивают статусность дизайна, делая обстановку одновременно роскошной и спокойной.
Интерьер санузла с душевой кабиной выполнен в бежевых тонах с акцентом на природные фактуры. Сочетание широкоформатного керамогранита под мрамор и модных рифленых фасадов мебели создает атмосферу респектабельного спа-курорта, а скрытая LED-подсветка подчеркивает геометрию пространства.
2. Американская классика
Для квартиры площадью 119 м² в ЖК «Диалог» заказчики выбрали респектабельный стиль американская классика. В результате ремонта по разработанному проекту получилась обстановка, проникнутая духом семейной истории.
Американская классика предполагает присутствие в интерьере антикварной мебели и винтажных предметов. В дизайне кухни на фото украшением обстановки стал эксклюзивный буфет для посуды со шпонированными фасадами. А в соседи ему досталась линейная барная стойка, которую расположили возле окна.
Угол между панорамными окнами авторы проекта отвели под высокий шкаф, который можно использовать для хранения вещей или как основу для создания рабочего места. А удобное кресло с велюровой обивкой красивого сизого оттенка позволит любоваться городским пейзажем с максимальным комфортом.
Характерный для классики «шахматный» пол — броский интерьерный акцент, который в обстановке на фото поддерживает темная консоль с парными настольными лампами. Ее разместили на фоне зеркального панно прямо напротив входной двери, превратив в смысловой центр интерьера.
3. Неоклассика в бежевых тонах
Нежные кремовые тона, чистые линии, отсутствие принтов, сияние золота и струящийся текстиль — интерьер квартиры в ЖК «Режиссёр», оформленный в стиле современная классика, впечатляет изяществом и благородством. В обстановке царит ощущение легкости, а теплая светодиодная подсветка создает уют.
Доминирующий молочный оттенок в сочетании с металлом в оттенках золота и латуни дает ощущение праздника. А усиливают его эксклюзивные дизайнерские светильники с подвесками из сверкающего хрусталя и необычный барельеф, украшающий перегородку, отделяющую диванную зону от кухни.
Уютный уголок с низким светлым креслом — прекрасное место для спокойного отдыха. Благодаря минималистичному белому торшеру там можно с комфортом почитать. А чашку горячего шоколада удобно поставить на легкий кофейный столик из полупрозрачного пластика.
Высокое мягкое панно в этой светлой спальне выполняет функцию изголовья кровати. Его масштаб и высоту потолка подчеркивают узкие вертикальные молдинги из матового металла и оригинальные светильники-подвесы.
Просторная ванная комната, оформленная в благородных бежевых, белых и золотистых тонах, олицетворяет атмосферу спокойствия и респектабельности. Акцентная стена из крупноформатного керамогранита под бежевый мрамор выделяет зону для умывания, а наличие модной ванны-чаши подчеркивает современное прочтение классики.
4. Современный интерьер в природной гамме
Современный интерьер квартиры площадью 111 м² в ЖК «Павелецкая сити» оформлен в природной гамме с включением серых, коричневых и молочных тонов. Чтобы добавить обстановке респектабельности, сделать ее более эффектной и броской, дизайнеры использовали в оформлении комнат золотистый металл и необычные светильники.
Гостиная с бескаркасным удобным диваном красиво отражается в зеркальной стене, благодаря которой помещение кажется просторней и светлей. На ее фоне совершенно теряется оформленная зеркальной панелью дверь в гардеробную, а все внимание привлекает большой диван и уникальный журнальный столик с каркасом из матового металла.
Дизайнерская обеденная мебель с каркасами цвета золота выглядит очень эффектно. Зеленая велюровая обивка стульев «перекликается» со шторами из благородного бархата. А главным украшением этой функциональной зоны стала люстра в виде золотой ветки с подвесками-каплями.
Компактная барная стойка на два посадочных места дополнена стеллажом для бокалов и барных аксессуаров. Изнутри он подсвечен светодиодной лентой, что добавляет мебельному элементу декоративности.
Серая отделка в сочетании с современной сантехникой цвета латуни смотрится очень выигрышно. А подвесной умывальный столик с дополнительной открытой полкой улучшает эргономику помещения и визуально облегчает интерьер ванной комнаты.













































