Угловая квартира — это квартира, в которой есть угловая комната на внутреннем или внешнем угле здания. Такие квартиры считаются менее теплыми и могут стоить на 10–15 % дешевле центральных. Но при этом угловые объекты в современных ЖК имеют свои преимущества, большую площадь и могут относиться к классу элитной недвижимости.
Популярностью пользуются только квартиры с внешним углом, поскольку такой вариант дает массу возможностей для создания комфортной обстановки. А об особенностях и стоимости дизайн-проекта угловой квартиры читайте в нашем обзоре с подборкой фотографий из портфолио компании «Вира-АртСтрой» (г. Москва).
Сколько стоит дизайн угловой квартиры?
Калькулятор стоимости дизайна интерьера

Как получить дизайн-проект БЕСПЛАТНО?
Преимущества угловой квартиры
Хорошая освещенность
Окна, выходящие на две стороны дома, дают больше света и обеспечивают улучшенную инсоляцию в любое время дня (утром, в полдень, после обеда). А самое лучшее естественное освещение в квартирах с большими окнами в пол.
Панорамный обзор
Для многих покупателей этот пункт является ключевым, так как они хотят наслаждаться красивым видом в режиме 24/7. А по-настоящему впечатляющая панорама Москвы в районах с плотной многоэтажной застройкой открывается из угловых квартир на высоких этажах: начиная с 12 и выше.
Интересные планировки
Это касается, в первую очередь, объектов, расположенных в торцах многоквартирного дома и двухуровневых квартир. Также возможность получить нестандартное жилье есть у тех, кто решит приобрести квартиру в современном жилом комплексе с необычной геометрией: там встречаются объекты со скошенными или скругленными стенами, эркерами и комнатами с углами больше или меньше 90°.
Кроме того, угловые объекты дешевле, а смежных стен с другими квартирами у них меньше, вследствие чего уровень бытового шума будет ниже. Но, чтобы в такой квартире было комфортно жить, предварительно нужно позаботиться о качественном утеплении и звукоизоляции наружных стен.
Дизайн гостиной в угловой квартире
Неоклассика и светлые тона — лучшее решение для просторной четырехкомнатной угловой квартиры. Такая основа создает приятную атмосферу, и со временем не устареет. А актуальным обстановку делают светодиодная подсветка, фрески и нарочито урбанистическая штукатурка, имитирующая бетон.
Отпуск на море
Хозяевам этой квартиры досталась кухня-гостиная не на два, а на три окна, так что солнечного света там хватает. И это позволило дизайнерам реализовать интересную идею: создать в помещении атмосферу морского побережья с помощью голубой кухонной мебели и бирюзовых штор.
Дизайн угловой двухкомнатной квартиры
Дизайн-проект угловой двухкомнатной квартиры в ЖК «Прайм Парк»
Светлые тона, черные акценты, минималистичная мебель и классическая лепнина — эта угловая двухкомнатная квартира с современным дизайном принадлежит молодому мужчине, который привык жить динамичной жизнью. Поэтому она не перегружена мебелью, а большие окна без штор позволяют любоваться Москвой в любое время суток.
Мир контрастов
Угловая мультифункциональная гостиная с панорамными окнами выглядит выразительно за счет акцентных деталей черного цвета. Кухонный блок тут отделен от остального пространства компактным островом, а зона отдыха сформирована светлым угловым диваном и парой дизайнерских темных кресел.
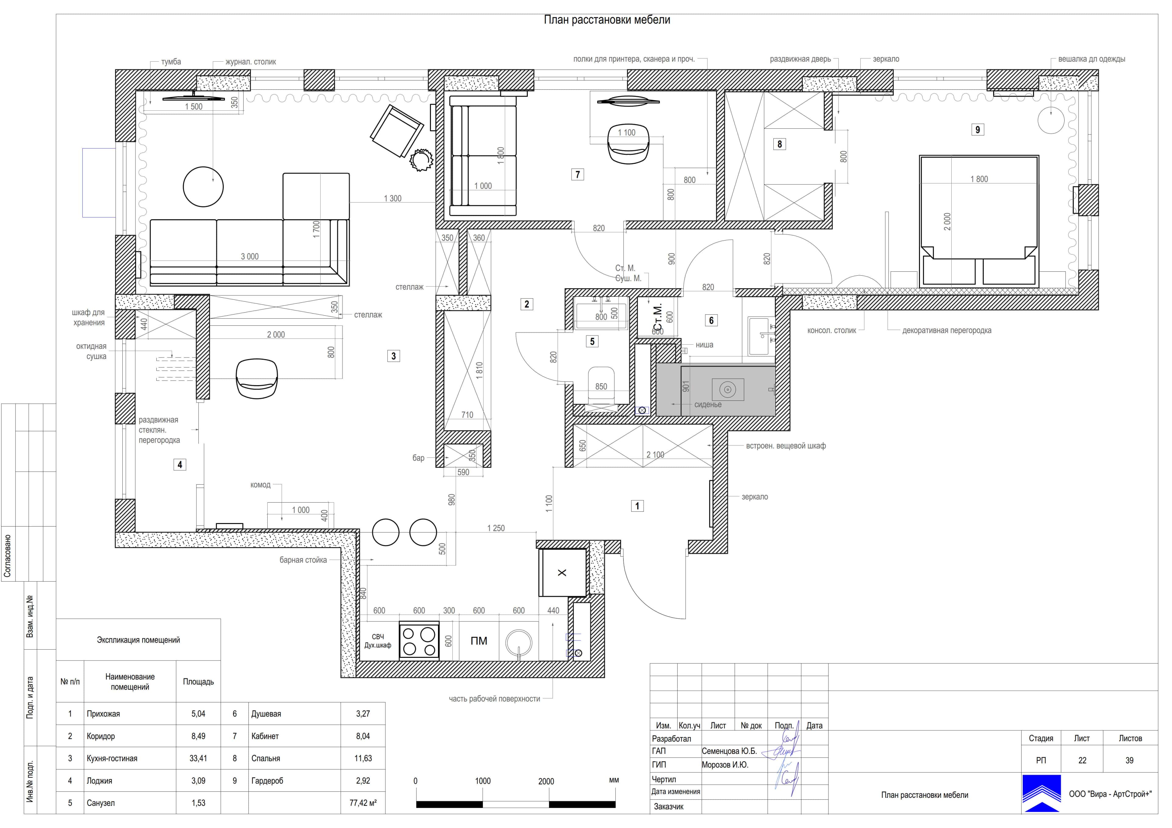
6 новых дизайн-проектов угловых квартир
В портфолио нашей компании много дизайн-проектов стильных и комфортабельных угловых квартир разной площади и планировки. А как пресловутый «угол» смотрится в готовом интерьере, можно увидеть на фото ниже.
1. 4-комнатная квартира 167 м² в стиле неоклассика
Дизайн-проект и фото угловой квартиры в ЖК «Дыхание»
Неоклассический дизайн угловой квартиры в ЖК «Дыхание» реализован в молочных и кремовых тонах, которые зрительно расширяют пространство. Здесь много света и воздуха, а за уют отвечает биокамин в гостиной. Для оформления стен дизайнеры использовали барочную лепнину, но при этом нивелировали пафос такого декора ультрасовременной окраской поверхностей.
Жизнь у окна
Внешний угол квартиры находится в спальне хозяев, и авторы проекта оригинально его обыграли. Так, большую двуспальную кровать поставили изголовьем к одному из окон, визуально увеличив его за счет эффектного зеркального панно. А для выхода на лоджию установили дверь с остеклением в пол, чтобы она не скрывала красивый вид.
2. 4-комнатная квартира 130 м² в стиле арт-деко
Дизайн-проект угловой квартиры в ЖК «Небо»
В этой квартире царит роскошь арт-деко с характерными золотистыми деталями и эксклюзивными фактурами. Интерьеры всех помещений кроме детских комнат, предназначенных для мальчиков-близнецов, и кабинета, оформлены в светлой гамме, а смысловым центром стала кухня-гостиная с угловым окном.
Кухня-гостиная в угловой квартире
Главным украшением этой кухни-гостиной с модным дизайном в стиле арт-деко стало угловое окно в диванной зоне. Его оформили эксклюзивным текстилем с полупрозрачной вуалью, которая не скрывает пейзаж и хорошо пропускает солнечный свет. А планировку подчеркнули комплектом мягкой мебели, который поставили углом.
3. 4-комнатная квартира 114 м²
Дизайн-проект угловой квартиры в ЖК «Оранж Парк»
Неоклассический интерьер этой угловой квартиры с паркетным полом и стеклянными межкомнатными дверями впечатляет изысканностью и визуальной легкостью. Она оформлена в светлых тонах, и выглядит респектабельно и аристократично.
Функциональный угол
В этой квартире внешний угол находится в спальне с двумя окнами, одно из которых выходит на лоджию. Его дизайнеры отвели под зону отдыха, разместив там удобное кресло и кофейный столик.
4. 3-комнатная квартира 96 м² в современном стиле
Проект и фото интерьера угловой квартиры в ЖК «Хедлайнер»
В этой просторной квартире, предназначенной для семейной пары и оформленной в современном стиле, царит строгая геометрия. А выразительным интерьер делают черные и оранжевые акценты, которые выигрышно смотрятся на светлом фоне.
Максимум солнца
Угловым помещением в этой квартире является одна из спален. Чтобы не терять ни одного солнечного лучика, окна в комнате оставили открытыми, а для затемнения ночью предусмотрели римские шторы.
5. 3-комнатная квартира 94 м² в стиле неоклассика
Дизайн-проект угловой квартиры в ЖК «Серебряный фонтан»
Угловая квартира на фото принадлежит пожилой паре, так что в качестве стилистического решения для дизайна интерьера авторы проекта предложили спокойную и элегантную современную классику в светлых тонах. При этом в обстановку органично вписали памятные для хозяев предметы интерьера и декора.
Уголок для гостей
Угловая часть в этой гостиной находится в зоне дивана — это место лучше всего освещено и поэтому прекрасно подходит для крупных комнатных растений. Поддерживают природную тему диванные подушки в оттенках мха и деревянные панели в ТВ-зоне. А за перегородкой, которую использовали для размещения телевизионной панели, дизайнеры оборудовали приватный уголок для чтения.
6. 3-комнатная квартира 78 м² в современном стиле
Дизайн-проект угловой квартиры в ЖК «Скандинавия»
Квартира в ЖК «Скандинавия» расположена в торце дома, поэтому угловыми в ней являются и гостиная, и спальня. Комфортную обстановку в комнатах обеспечивает приятная глазу светлая цветовая гамма с добавлением природных оттенков и натуральное дерево. А акценты дизайнеры расставили с помощью ярких предметов мебели и декора.
Всё рядом
В интерьере угловой гостиной на два окна есть не только место для отдыха с большим диваном и акцентным зеленым креслом, но и мини-кабинет, скрытый за стеллажной перегородкой. А угол между двумя окнами занял большой телевизор.
Оазис покоя
Благодаря обилию зеленого цвета и натурального дерева интерьер спальни успокаивает. Приватность обеспечивает эффектная ширма из рифленого стекла. А угол между двумя окнами дизайнеры использовали для установки стильной вешалки-стойки.





























































































