Качественный ремонт квартиры с грамотно проработанным дизайном интерьера и подбором материалов, оборудования и мебели могут сделать только профессионалы. Если вы купили квартиру и хотите сделать ремонт, предпочтение при выборе подрядчика всегда следует отдавать строительным компаниям, предоставляющим полный комплекс услуг от проектирования до ремонта и комплектации. Так вы получите не только комплексный сервис, но и дизайн-проект в подарок.
«Вира-АртСтрой» — именно такая компания. Мы выполняем дизайнерские ремонты квартир в Москве и области уже более 30 лет и предлагаем весь спектр проектных и ремонтно-строительных работ.
Всё о профессиональном ремонте квартиры
Профессиональный ремонт под ключ — это грамотно составленная смета, точный расчет потребности материалов, соблюдение технологии и последовательности производства работ. Попытка же сделать капитальный ремонт в новой квартире самостоятельно всегда оборачивается серьезными проблемами и финансовыми потерями.
Проект ремонта: нужен или нет?
Капитальный и элитный дизайнерский ремонт квартиры невозможно сделать без дизайн-проекта, в который входит техническая документация для строителей, спецификации на материалы и оборудование.
Кроме того, на основании проекта, созданного профессиональными дизайнерами и архитекторами, составляется план ремонта с графиком выполнения работ и смета, а также рассчитывается потребность в материалах для черновой и чистовой отделки, планируется бюджет. И, конечно, дизайнеры помогут определиться, какой ремонт сделать в квартире (стиль, палитра, планировка, решения для хранения и декор).
Как получить дизайн-проект бесплатно?
Наша компания «Вира-АртСтрой» дарит клиентам дизайн-проект при одновременном заказе дизайна и ремонта. Чтобы стать участником акции, при оформлении заказа нужно оплатить проект, а на финальном этапе ремонта мы вернем его стоимость.
Состав услуг по ремонту квартиры
Чтобы представить себе всю сложность процесса, достаточно ознакомиться с составом услуг по ремонту квартиры, которые предоставляют надежные подрядчики.
- Разработка дизайн-проекта. Включает как эскизы и визуализации будущего интерьера, так и техническую документацию для строителей (планировочное решение, планы, спецификации, схемы, чертежи и так далее).
- Согласование перепланировки. В большинстве случаев проект капитального ремонта предусматривает перепланировку. Ее оформление по закону избавляет владельцев от бумажной волокиты, претензий со стороны государства и проблем при продаже квартиры.
- Страхование ремонта. Защищает финансовые вложения в ремонт от аварий, таких как залив или пожар, а также покрывает гражданскую ответственность перед соседями. Данная услуга позволяет возместить расходы на восстановление интерьера и избежать непредвиденных трат, если в процессе работ пострадает имущество.
- Разработка инженерных проектов. Включает создание подробных схем электрики, водоснабжения, отопления и вентиляции для обеспечения безопасного функционирования систем. Этот технический план гарантирует надежность коммуникаций и соблюдение требований надзорных органов.
- Демонтажные и монтажные работы. Снос старых перегородок и возведение новых стен согласно утвержденной планировке.
- Замена коммуникаций. Старая электропроводка заменяется на современную с учетом всех электроприборов, а изношенные или некачественные трубы водоснабжения и канализации — на надежные системы из сшитого полиэтилена или полипропилена.
- Черновая и чистовая отделка квартиры. Представляет собой полный цикл строительных работ, включающий выравнивание поверхностей и финишную отделку квартиры. Процесс превращает «бетонную коробку» в готовое к заселению жилье.
- Комплектация интерьера. Подбор материалов, оборудования и мебели дизайнером. При реализации индивидуальных проектов часть мебели изготавливается на заказ по чертежам проектировщиков.
После уточнения деталей заказа и выполнения предварительного расчета стоимости специалисты выполняют замеры на объекте, разрабатывают дизайн-проект и согласовывают его с клиентом. Потом составляется смета, график выполнения работ, оформляется страховка и проводится ремонт.
После завершения чистовой отделки выполняется комплектация интерьера мебелью, оборудованием и декором. Все необходимое дизайнеры подбирают заранее, так что заказчик получает полностью готовую для проживания квартиру.
Гарантия на ремонт
Компания «Вира-АртСтрой» предоставляет расширенную гарантию сроком до 5 лет на выполненные строительные и отделочные работы. В течение этого времени выявленные недостатки оперативно устраняются.
В подтверждение этого по окончанию ремонта выдается Гарантийный сертификат:
- На отделочные работы — 3 года
- На инженерные коммуникации — 5 лет
- На сантехнические работы — 5 лет
- На работы по монтажу слаботочных систем — 5 лет
Сколько стоит сделать ремонт квартиры в Москве?
Точная стоимость ремонта, рассчитывается на основании дизайн-проекта, который предварительно согласовывается с заказчиком. Финальная сумма зависит от:
- площади квартиры;
- списка необходимых работ;
- сложности реализации проекта.
Стоимость ремонтных работ
Для предварительной оценки стоимости ремонтных работ ознакомьтесь с проектами в нашем портфолио. Каждый проект содержит информацию о площади объекта, бюджете и сроках выполнения ремонта.
Индивидуальный предварительный расчет
Уточненная оценка стоимости ремонта квартиры — сложный процесс, требующий участия специалиста. Чтобы быстро ее получить, нужно заказать бесплатный предварительный расчет на нашем сайте.

Точный расчет стоимости вашего ремонта можно произвести только на основании дизайн-проекта.
Если проекта у вас нет, то мы готовы его сделать. Заказывая проект у нас, вы получаете индивидуальное обслуживание, качественный сервис и уникальный интерьер. Вы останетесь довольны. И не забудьте, стоимость дизайн-проекта вернется вам скидкой при заказе ремонта у нас!
Этапы ремонта в новой квартире
Капитальный ремонт квартиры занимает около полугода. Он проводится строго по плану-графику, так что заказчик всегда знает, что происходит на объекте. А акты выполненных работ предоставляются после окончания каждого этапа.
6 примеров капитального ремонта квартир
Компания «Вира-АртСтрой» выполняет капитальный ремонт квартир любой сложности. Мы работаем в различной стилистике, ремонтируем новостройки и объекты в старом фонде, предлагаем клиентам интересные интерьерные решения и современные идеи дизайна. А, чтобы оценить качество нашей работы, посмотрите видео и фото ниже.
1. Американская классика

Дизайн и ремонт квартиры 119 м² в ЖК «Диалог»
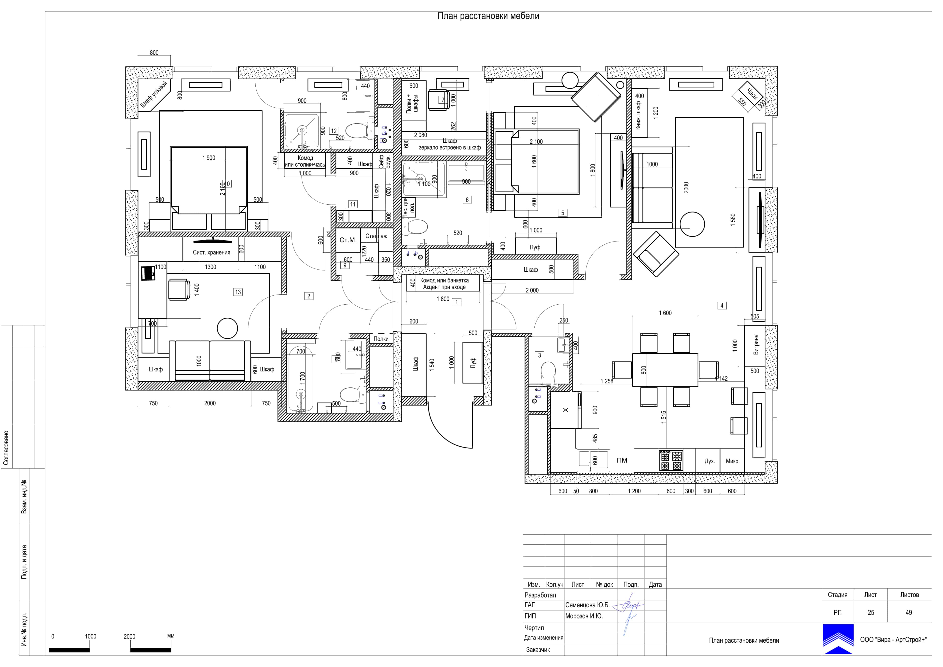
Для дизайна и ремонта квартиры площадью 119 м² наши заказчики — супружеская пара — выбрали респектабельную американскую классику. Для этого стиля характерны легкая эклектика, наличие элементов колониального стиля и присутствие антикварных предметов. В результате получилась уютная, практичная и красивая обстановка, проникнутая духом семейной истории. Классические диваны и напольные часы эффектно смотрятся в гостиной с окнами в пол, а люстра с имитацией свечей идеально сочетается с традиционными панелями буазери.
Первоначальную планировку изменили с целью оборудования гардеробных и санузлов для двух спален. Кухню объединили с гостиной, а чтобы можно было наслаждаться красивым видом на город, возле панорамного окна в кухонной зоне установили барную стойку. Также после ремонта в квартире появились кабинет с функционалом гостевой спальни и мини-прачечная.
2. Застывшая музыка

Современный ремонт квартиры 142 м² в ЖК «Фили Сити»
Для просторной квартиры 142 м² в ЖК «Фили Сити», в которой проживает ее хозяйка с двумя детьми, дизайнеры предложили динамичный современный стиль, натуральную отделку и сдержанную колористику с доминирующим серым цветом. А поскольку семья очень любит музыку, в интерьере гостиной с камином нашли место и для рояля.
В этом проекте ставку сделали на эргономику и тактильность, так что особое внимание уделили подбору фактур. Кроме того, была изменена планировка от застройщика, благодаря чему в квартире появилась общественная и приватная зоны, а также возможность оборудования хозяйственного помещения. Жилые комнаты визуально объединены с помощью одинакового напольного покрытия (инженерной доски от «Файнэкс» в палубной раскладке). Также в отделке важную роль играет плитка с имитацией деревянных панелей, которой оформили даже каминный портал.
3. Музыка неоклассики

Ремонт московской квартиры 130 м² в стиле неоклассика
В ходе ремонта квартиры на ул. Марьинский Парк были объединены два объекта в статусном доме из старого столичного жилого фонда. В результате получилось удобное пространство для семьи с двумя разнополыми детьми и собаками декоративных пород. В качестве стилистического решения была выбрана элегантная неоклассика, которую реализовали в светлой гамме с использованием молочных, бежевых и золотистых тонов.
В процессе капитального ремонта с перепланировкой специалисты «Вира-АртСтрой» проложили новые коммуникации, смонтировали систему вентиляции, установили нужную хозяевам бытовую технику. В качестве основных отделочных материалов выбрали керамогранит под белый мрамор и инженерную доску теплого тона. А аристократизма и роскоши в обстановку добавили с помощью предметов интерьера, светильников и аксессуаров цвета желтого золота.
4. Практичность и стиль

Практичный ремонт квартиры 60 м² в ЖК «Кристалл»
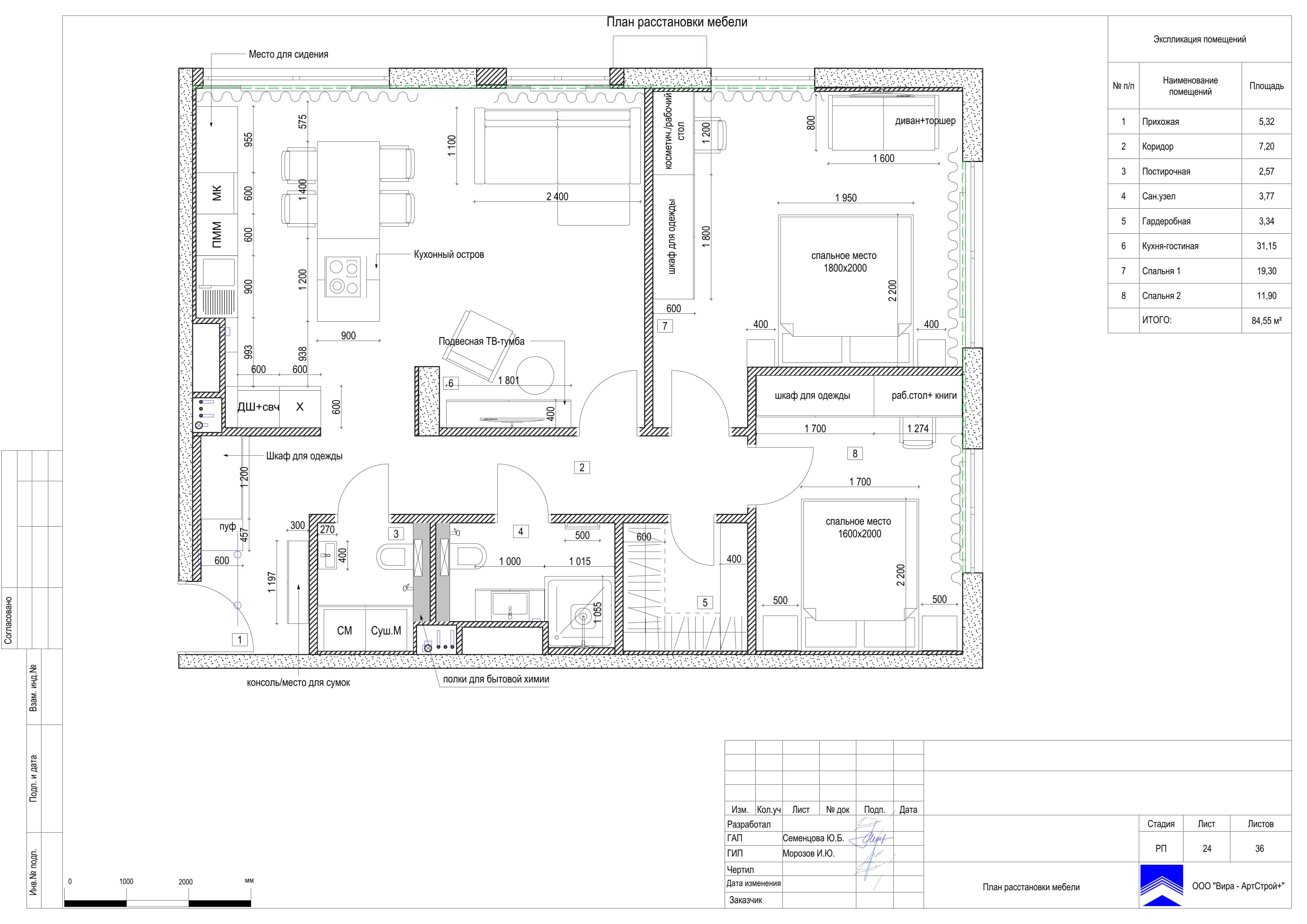
Хозяин квартиры 60 м² в ЖК «Кристалл» планировал сдавать ее в аренду, но после ремонта, увидев результат, решил жить там сам. Запрос был на практичную, уютную и функциональную обстановку, поэтому для проекта выбрали современный стиль и износостойкие отделочные материалы с улучшенными эстетическими характеристиками.
Чтобы создать полноценную изолированную спальню, в квартире выполнили перепланировку. Кухню объединили с гостиной, создав красивую студию, а ближе к входной зоне оборудовали гардеробную. В качестве напольного покрытия во всех помещениях использовали кварц-винил, имитирующий дубовую доску. Он сделал обстановку теплее, как и акцентные детали в оттенках терракоты.
5. Очарование простоты

Ремонт квартиры 85 м² в современном стиле в ЖК Nagatino i-Land
Дизайн и ремонт квартиры 85 м² в ЖК Nagatino i-Land создавался для двух взрослых женщин: дочери и матери. Они хотели получить уютную и современную обстановку с комфортабельным местом для приема гостей и уютным приватным пространством. Чтобы использовать полезную площадь более рационально, кухню и гостиную объединили в одно помещение, а портал в прихожую расширили.
Интерьер оформили в стиле минимализм, выбрав отделку с фактурой дерева, которая сделала обстановку актуальной и уютной. Во всей квартире установили натяжные потолки, что позволило сократить сроки ремонта. В обеих спальнях подключили сплит-системы и делали вместительные гардеробные шкафы. А прихожую украсили оригинальным панно из рельефных гипсовых панелей — оно стало фоном для графичной черной консоли.
6. Возвращение к простоте

Современный ремонт квартиры 124 м² в ЖК «Дубровская Слобода»
В квартире площадью 124 м² в ЖК «Дубровская Слобода», которую застройщик сдавал со свободной планировкой, специалисты «Вира-АртСтрой» создали максимально функциональный современный интерьер. Хозяева — супружеская пара — мечтали о динамичном жилом пространстве с атмосферой гармонии, и дизайнеры сделали все, чтобы воплотить эту мечту в реальность.
Для проекта выбрали спокойную колористику (серые, белые, коричневые оттенки) и натуральные материалы с тактильно приятной фактурой. Для зонирования общественной части квартиры авторы проекта предложили установить раздвижные двери, которые позволяют мгновенно трансформировать пространство. Для хранения вещей было принято решение оборудовать три гардеробные, чтобы не загромождать жилые комнаты шкафами. А яркости интерьеру добавили за счет сочных акцентов цвета морской волны.



























































