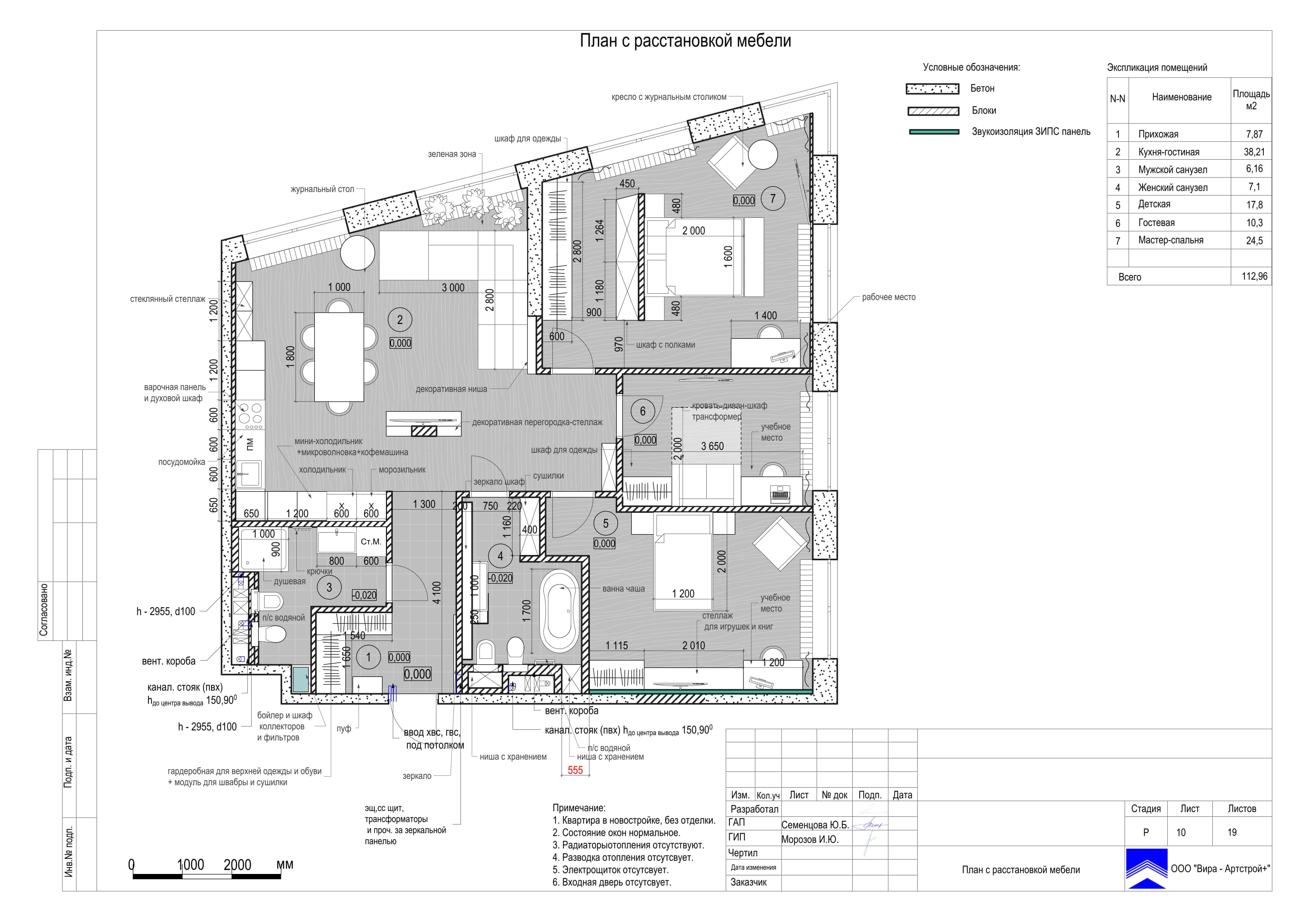
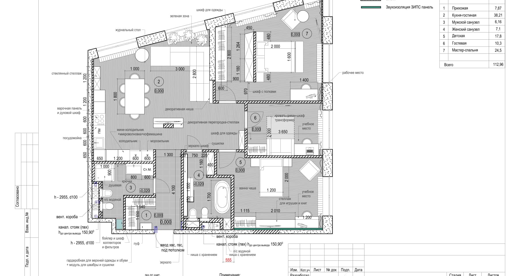
Капитальный ремонт квартиры — это целый комплекс работ по проектированию и благоустройству жилого пространства. Отправной точкой этого процесса считается обмерный план, на основе которого создаются проект перепланировки и рабочие чертежи, а финалом — готовые для жизни, полностью обновленные апартаменты.
Как рассчитать стоимость капитального ремонта квартиры
Современный капитальный ремонт необходимо начинать с проектирования — разработки дизайн-проекта.
Дизайн-проект позволит избежать ошибок при выполнении ремонтных работ и комплектации. Эскизы будущего интерьера дают возможность заказчикам представить, как будет выглядеть квартира после всех работ по благоустройству. Также проект содержит планы и чертежи, являющиеся руководством к действию для строителей.
1. Калькулятор стоимости дизайн-проекта
Калькулятор стоимости дизайна интерьера

По статистике компании «Вира-АртСтрой»:
- на дизайн затрачивается около 4 % от общей стоимости ремонта;
- сроки проектирования составляют 30-50 дней.
При заказе капитального ремонта в нашей компании дизайн-проект вы получаете в подарок.
2. Цены на ремонтные работы
Если вы хотите получить общее представление о стоимости ремонтных работ, посмотрите реальные проекты из нашего портфолио. Для каждого объекта указаны площадь, стоимость и сроки выполнения работ.
3. Индивидуальный предварительный расчет стоимости ремонта
Оценка стоимости ремонта квартиры — сложный процесс, требующий участия специалиста. Чтобы быстро ее получить, нужно заказать бесплатный предварительный расчет на нашем сайте.

Точный расчет стоимости вашего ремонта можно произвести только на основании дизайн-проекта.
Если проекта у вас нет, то мы готовы его сделать. Заказывая проект у нас, вы получаете индивидуальное обслуживание, качественный сервис и уникальный интерьер. Вы останетесь довольны. И не забудьте, стоимость дизайн-проекта вернется вам скидкой при заказе ремонта у нас!
Чем капитальный ремонт отличается от косметического?
Капитальный ремонт — полная реновация с нуля
Капитальный ремонт — это полностью обновленные коммуникации и современный дизайнерский интерьер с иголочки. При капремонте возникает та самая ситуация, когда квартира напоминает театр военных действий. Но усилия и затраты стоят того!
Капитальный ремонт, в отличие от косметического, часто предполагает перепланировку, которая значительно меняет облик объекта. Но нужно понимать, что архитектурные особенности конкретной квартиры могут не позволить реализовать те или иные идеи. Ведь перепланировка жилья в многоквартирном доме требует согласования.
Для того, чтобы что-то выстроить с нуля, для начала необходимо снести все старое. Поэтому если вы приобрели жилье на вторичном рынке, то при капремонте вполне вероятно придется провести работы по демонтажу перегородок, сантехники, напольных покрытий и так далее. В новостройке же может потребоваться возведение новых стен, жилых антресолей и так далее.
Перечень ремонтных работ при капитальном ремонте включает:
- прокладку новых электросетей;
- возведение новых стен;
- выравнивание стен и потолков;
- замену окон и дверей;
- прокладку труб водопровода и канализации;
- установку новых радиаторов отопления;
- устройство стяжки пола;
- работы по гидроизоляции и шумоизоляции;
- установку и подключение сантехнического оборудования.
После капитального ремонта квартиру остается лишь укомплектовать мебелью и аксессуарами.
Косметический ремонт — быстрое обновление интерьера
Косметический ремонт, по сравнению с капитальным, не столь радикален. Он не потребует ни сноса перегородок, ни замены систем коммуникаций.
Косметический ремонт включает в себя следующий перечень работ:
- отделка (покраска, облицовка плиткой, нанесение декоративной штукатурки и прочее);
- реставрация дверей;
- замена напольного покрытия на новое или обновление старого;
- перестановка мебели (приобретение новой);
- замена осветительных приборов.
Гарантия и страхование ремонта
Компания «Вира-АртСтрой» специализируется на выполнении капитального ремонта премиум-класса, обеспечивает страхование и предоставляет гарантию.
Сроки действия гарантии
- Отделочные работы — до 3 года
- Инженерные коммуникации — 5 лет
- Сантехнические работы — 5 лет
- Работы по монтажу слаботочных систем — 5 лет
Страхование объектов
В рамках СРО «Вира-АртСтрой» проводит страхование объектов в РОСНО от нанесения ущерба третьими лицами.
Квартира, в которой выполняются работы по ремонту, также страхуется в компании ВСК от всех видов риска. Условия страхования предполагают 2 этапа:
- Этап выполнения работ на объекте.
- Этап гарантийных обязательств (2 года с момента сдачи объекта).
Этапы капитального ремонта
Ремонт квартиры под ключ начинается с заключения договора и обмера объекта. Далее дизайнеры разрабатывают эскизный и рабочий проекты. И только после согласования смет, чертежей и визуализаций будущего интерьера начинаются ремонтные работы.
Пример ремонта квартиры в современном стиле
Ремонт премиум-класса — это не всегда помпезная классика или ослепительный арт-деко. Современный стиль с его лаконичностью, дорогостоящими материалами высочайшего качества и технологичностью часто похож на мир будущего. В таком доме техника работает почти бесшумно, а для того чтобы включить свет, бывает достаточно легкого взмаха руки.

Капитальный ремонт квартиры 114 м² в ЖК Wellton Park
Интерьер квартиры в ЖК Wellton Park виртуозно балансирует на грани минимализма и городского шика. С одной стороны, мы наблюдаем сдержанную цветовую палитру в серо-бежево-коричневой гамме, минималистичные фасады мебели и строгую геометрию пространства. С другой — филигранную проработанность декора и тщательность в подборе фактур.
Из панорамных окон угловой гостиной открывается вид на современный северо-запад Москвы, созвучный цветам и стилистике интерьера. Благодаря единству внешней и внутренней среды, отдыхая на диване, испытываешь ощущение полета над городом.
Музыкальный салон
Сливочно-шоколадная гамма дает приятные визуальные ощущения и идеально подходит для современного и лаконичного интерьера городской квартиры. Урбанистическую динамику в интерьере демпфирует напольное покрытие из инженерной доски с фактурой натурального дерева. А современный паровой камин и белый рояль превращают гостиную в настоящий музыкальный салон.
Четкая геометрия
Когда речь идет об упорядочивании современного пространства, лучшим решением дизайнеры называют использование максимально лаконичной мебели. Ее строгая геометрия, чистые линии и отсутствие декоративных элементов отлично работают в любых помещениях, структурируя их.
Альянс темных и светлых тонов
Сочетание светлых серых и темных коричневых оттенков — актуальный интерьерный тренд. Такой прием помогает выделить функциональные сегменты, подчеркнуть геометрию пространства, скорректировать его конфигурацию. Сопоставление природного оттенка коричневого дерева с серой урбанистической основой делает интерьер теплым и обеспечивает психологический комфорт.
Универсальность монохрома
Монохром — универсальное цветовое решение для любого проекта в современном стиле. А актуальным трендовым вариантом является бежевая гамма, которая органично смотрится как в гостиной, так и в ванной комнате.
Лаконичный и одновременно роскошный, он идеален для создания комфортной обстановки, хорошо сочетается с теплой светодиодной подсветкой, и создает подходящий антураж для белой сантехники. Разнообразить же интерьер в монохромной палитре можно за счет комбинации разных фактур отделки, например, керамогранита под камень и стеновых панелей с рельефом песчаных дюн.
Характерные особенности капитального ремонта премиум-класса
Как мы выяснили выше, ремонт премиум-класса определяется, скорее, не выбранным стилем, а используемыми отделочными материалами, стоимостью мебели и декора. Хотя, безусловно, воплощение барочного или ампирного интерьера в целом обойдется дороже, чем обустройство минималистичного пространства. Но и тут возможные различные варианты.
Так по каким же признакам мы можем отличить интерьер премиум-класса от эконома?
1. Нестандартные планировочные решения
Ремонт премиум-класса подразумевает индивидуальное планировочное решение, которые диктуются потребностями владельцев жилой недвижимости, так и особенности конкретного объекта (высота потолков, планировка, архитектура, метраж).
Так, в гостиной на фото, где высота потолков изначально была больше пяти метров, дизайнеры нашей компании предложили возвести жилую антресоль. Это увеличило площадь квартиры с 68 м² до 89 м², позволило оборудовать на втором уровне дополнительное пространство для комфортной жизни и создать удобную нишу для встроенной кухни.
2. Ода эстетике и стилю
В результате ремонта премиум-класса, выполняемого по авторскому проекту, всегда получается гармоничный, стильный и содержательный интерьер, словно сошедший с журнальной обложки. В нем не бывает непродуманных колористических решений и случайных предметов.
В премиальном дизайнерском пространстве отражаются интерьерные традиции и характерные черты выбранного стиля. Имея вневременную ценность, он не потеряет актуальности и не будет выглядеть устаревшим уже через 10 лет. Напротив, таким интерьером хозяева могут по-настоящему гордиться долгие годы.
3. Масштаб и статусность
При выполнении ремонта премиум-класса обстановка создается с нуля и используется исключительно индивидуальный подход под стать таким объектам элитной недвижимости как многоуровневые квартиры и пентхаусы.
В таких объектах уместны лишь безупречные дизайнерские интерьеры с роскошной отделкой, а нестандартная конструкция помещения требует виртуозных планировочных решений и сложного проектирования инженерных систем.
4. Авторская отделка
Когда реализуется капитальный ремонт квартиры премиум-класса, используется эксклюзивная отделка, к которой относятся и разнообразные стеновые панели с 3D-эффектном. Одними из самым популярных являются мягкие прикроватные панели с металлическими молдингами и зеркальными вставками. Добавить такой отделке глубины и эстетики можно с помощью скрытой светодиодной подсветки: LED-лента интегрируется по бокам таким образом, чтобы красиво подчеркнуть рельеф панелей.
5. Яркие нетривиальные детали
Владельцы дорогих квартир — успешные люди, которые не боятся интерьерных экспериментов и создают жилое пространство «под себя». Поэтому в их квартирах после капитального ремонта можно встретить оригинальные предметы: яркие картины, ультрамодные каминные кресла, мебель и отделку насыщенных тонов, безворсовые ковры ручной работы с геометрическим рисунком или этническим орнаментом.
6. Эксклюзивный декор
В интерьерах премиум-класса каждая деталь продумана, тщательно подобрана и несет определенную смысловую нагрузку. Это касается не только отделки и предметов обстановки, мебельной фурнитуры и картин, но и декоративных элементов. Изысканная статуэтки, гипсовая лепнина, трехмерные панно, изготовленные по эскизам дизайнеров, зеркальные молдинги, картины с фрески в концепции проекта — все это сделает интерьер квартиры уникальным и станет отражением внутреннего мира ее хозяев.
Как заказать капитальный ремонт?
С капремонта квартиры могут начаться масштабные перемены в вашей жизни. После тотального переустройства пространства обязательно появятся новые смыслы и источники вдохновения. Так что не стоит откладывать обновление интерьера и жизни в долгий ящик.
Оставьте заявку онлайн, и мы поможем преобразить жизненное пространство, создав дизайн-проект в духе актуальных интерьерных тенденций и ваших пожеланий.





















































