Проект ремонта квартиры — это разработанное дизайнерами и архитекторами художественное решение интерьера и пакет технической документации его воплощения в жизнь. Он дает представление о том, как будет выглядеть интерьер после ремонта, а также, какие ремонтно-строительные работы необходимо провести, какую приобрести отделку, оборудование и мебель.
Можно ли сделать ремонт квартиры без проекта?
Проект необходим строителям как ноты пианисту. Без него выполнить профессиональный дизайнерский ремонт квартиры сегодня невозможно. Проектная документация потребуется для:
- Составления сметы. Она позволит точно рассчитать и оптимизировать бюджет.
- Планирования общестроительных и отделочных мероприятий.
- Расчета потребности материалов и оборудования. Такая калькуляция поможет избежать лишних расходов.
- Проведения строительных и отделочных работ. Чтобы квартира после ремонта выглядела, как на эскизе дизайнера, прораб и мастера должны точно знать, что делать.
Цены на проект ремонта квартиры в Москве
Калькулятор стоимости дизайна интерьера

Стоимость проектирования интерьера зависит от площади объекта и вида проекта. Но в «Вира-АртСтрой» проект ремонта квартиры можно получить бесплатно, если:
- Заказать и оплатить Полный проект ремонта.
- Заказать ремонт под ключ по дизайн-проекту.
- Получить возврат стоимости проектирования на финальной стадии ремонта.
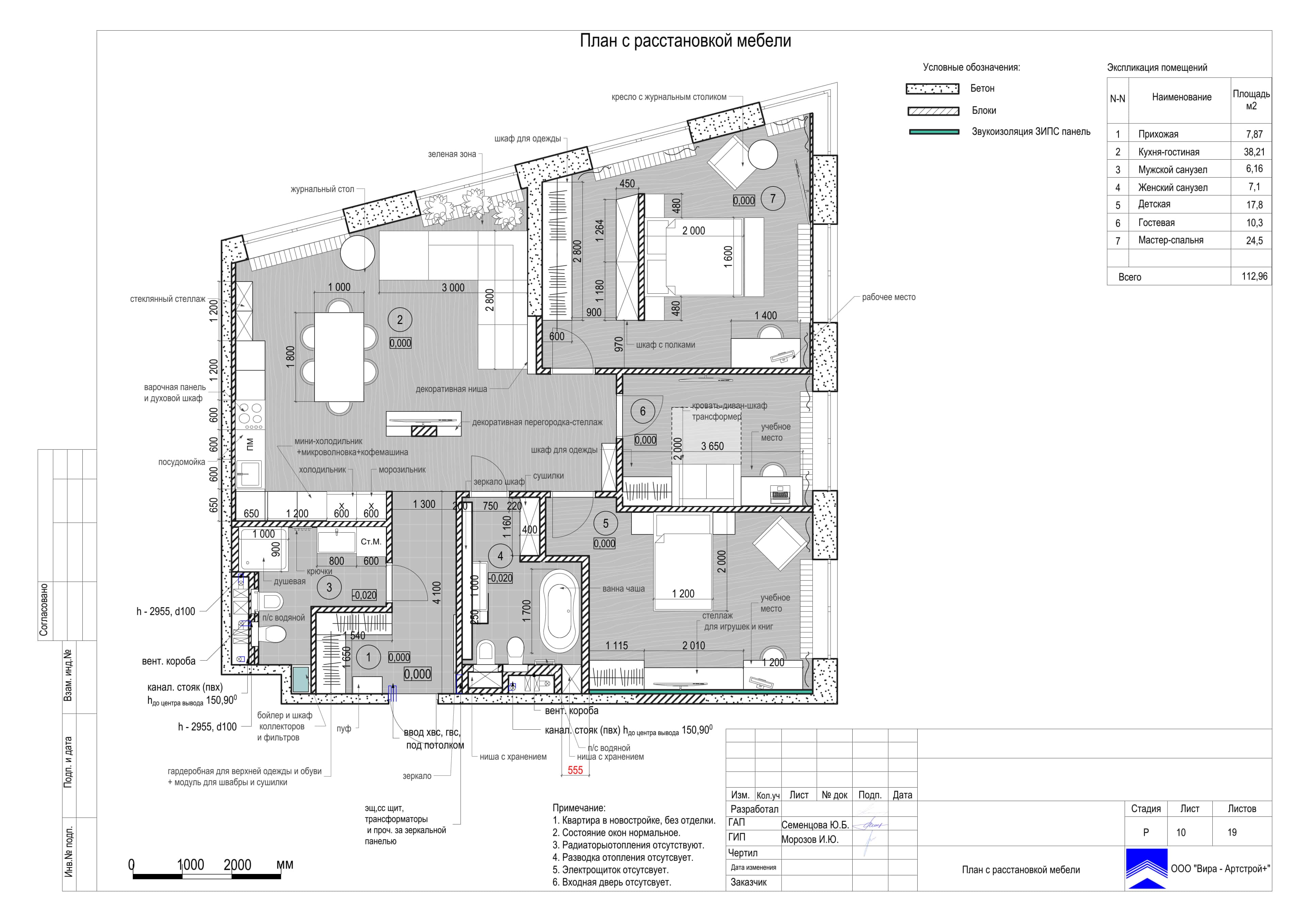
Состав проекта ремонта квартиры
1. Эскизный проект
- Замеры помещений с привязкой инженерных коммуникаций
- Планировочное решение с планом расстановки мебели
- 3D-визуализации интерьеров
- Консультации по подбору материалов, оборудования, мебели
2. Полный проект
- Эскизный проект
- Рабочая документация:
- Планы демонтажа/монтажа стен, перегородок, дверей, окон, радиаторов
- Схемы размещения сантехнического и электрооборудования
- Планы пола и потолка
- Развертки/разрезы стен
- Спецификации материалов, оборудования, мебели, дверей
Примеры проектов дизайнерского ремонта квартир в Москве
В нашей компании вы можете заказать дизайн квартиры в любом стиле интерьера. Предлагаем вам познакомиться с лучшими примерами проектов дизайнерского ремонта, выполненными для наших клиентов.
4-комнатная квартира 114 м² в стиле современная классика
Московский оникс. Квартира 114 кв. м в ЖК «Wellton Park»
Для этой просторной квартиры дизайнеры предложили холодную цветовую гамму, которая оптимальна для благородной неоклассики, и сложные фактуры. Центром студийной гостиной стала обеденная группа, а фоном для нее — эксклюзивный фартук из слэбов природного оникса. В спальне хозяев роль зонирующего элемента сыграли перегородка и кровать, отделившие гардеробную зону. А в подростковой комнате для мальчика нашлось место не только для мини-кабинета, но и для зоны отдыха с мягким креслом цвета мха.
4-комнатная квартира 100 м² в современном стиле
Игра фактур. Квартира 101 кв. м в московском ЖК «Павлова 40»
Ультрамодная рельефная отделка, светодиодная подсветка, нейтральная палитра, активное использование черного цвета — современный стиль в этом проекте воплощен в его самой актуальной интерпретации. В кухне-гостиной много поверхностей Soft touch, которые привносят в обстановку урбанистические нотки. А нюансы отделки подчеркивает многоуровневый свет.
Спальни решено было сделать светлыми и максимально уютными. А городскую тему продолжили в дизайне кабинета с бетонной отделкой и светильником из гибкого неона.
4-комнатная квартира 142 м² в современном стиле
Застывшая музыка. Квартира 142 кв. м в ЖК «Фили Сити»
Эта квартира, оформленная в современном стиле, расположена на 40-м этаже, так что оттуда открывается головокружительный вид на Москва-Сити. Поэтому дизайнеры по максимуму открыли панорамные окна, а для комфорта добавили камин.
Природные тона в отделке, много текстиля и дерева, керамогранит, фрезерованные и текстильные панели — многофактурная отделка усложняет интерьер и подчеркивает хороший вкус хозяев. Почти аскетичная кухня в стиле минимализм соседствует здесь с уютным музыкальным салоном. А винтажные зеркала — с оригинальной дизайнерской мебелью.
6-комнатная квартира 220 м² в современном стиле
Цветная сказка. Квартира 220 кв. м на Мичуринском проспекте
Лейтмотивом этого проекта стали нежные пастели, которые присутствуют в дизайне каждого помещения. Такая цветовая гамма создает весеннее настроение, а поддерживает ее соответствующий декор: авторские фотообои в гостиной и выполненные в акварельной манере фрески в детских.
Благодаря эффектным светильникам со стеклянными плафонами и элементами-лепестками интерьер выглядит легким и наполненным воздухом. А усиливает это ощущение культовое подвесное кресло BUBBLE из прозрачного акрила, которым дизайнеры дополнили обстановку гостиной.
4-комнатная квартира 95 м² в скандинавском стиле
Кошкин дом. Квартира 95 кв. м в ЖК «Фестиваль парк»
Уютная квартира в скандинавском стиле с элементами неоклассики — отличное решение для зрелой супружеской пары и их любимого кота. Светлые тона в сочетании с синими акцентами успокаивают и создают психологический комфорт, фактурный текстиль обеспечивает уют, а отделка активно участвует в зонировании пространства.
Спальню дизайнеры сделали многофункциональной. Кабинет дополнили реечной отделкой. А для домашнего питомца предусмотрели отдельную комнату с лежанкой на подоконнике и игровым модулем.
3-этажная квартира 162 м² в современном стиле
Изысканность в акцентах. Квартира 162 кв. м в ЖК «Джаз»
Проект этой светлой 3-этажной квартиры реализован в современном стиле и впечатляет оригинальными деталями. А самой масштабной из них является перегородка из смарт-стекла между минималистичной кухней и спальней хозяев, где установлен настоящий дровяной камин. Комнату дочери украшает ажурная перегородка-ширма, эффектно обосабливающая спальное место.
Комната для младших детей реализована в формате многоцелевой игровой площадки и дополнена двухъярусной кроватью-домиком. В кабинете внимание привлекает крупный фитомодуль — зеленой стеной оформлена зона с диваном. А на террасе оборудовано место для отдыха с плетеной мебелью и грилем.
4-комнатная квартира 104 м² в классическим стиле
Яркая классика. Квартира 104 кв. м в московском ЖК «Династия»
Неоклассический интерьер этой квартиры смотрится свежо и актуально благодаря достаточно насыщенной палитре и современным приемам организации пространства.
В качестве отделки дизайнеры предложили светлый кирпич, на фоне которого выигрышно смотрится текстильный декор и яркие детали. А установленная между кухней-столовой и гостиной раздвижная дверь с традиционной раскладкой позволяет легко трансформировать интерьер. В спальнях же атмосферу создают дизайнерские обои с модным принтом: полосатые, клетчатые, с панорамным изображением.
4-комнатная квартира 137 м² в стиле неоклассика
Воздушный замок. Квартира 137 кв. м на Никитском бульваре
Неоклассический интерьер в светлых тонах на фото смотрится элегантно и аристократично. Роскоши в обстановку добавляют детали цвета золота и гипсовая лепнина, а яркости — акценты изумрудного цвета.
В дизайне доминирует визуально расширяющий пространство универсальный белый цвет, поэтому интерьер надолго сохранит актуальность. А эргономику пространства улучшают предложенные проектировщиками решения: дополнительный кухонный блок в гостиной, антресоль со спальным местом в кабинете, барная стойка на лоджии в кухне.
Двухуровневая квартира 140 м² в современном стиле
Целый дом в одной квартире. Квартира 140 кв. м в ЖК «Life Ботанический сад 2»
Двухуровневая квартира с террасой и балконом — идеальный объект для воплощения любых дизайнерских идей. Высокие потолки и панорамные окна создают ощущение простора, которое авторы проекта решили поддержать воздушной лестницей со стеклянным ограждением и зеркальным декором. Центральное место в гостиной занял камин, ставший прообразом домашнего очага.
Уют в спальне и детских обеспечивают мягкие панели в зоне сна. Кабинет поражает эргономичной планировкой и панорамой за окном, которой можно наслаждаться в любое время суток, ведь от плотных штор хозяева отказались в пользу стильных горизонтальных жалюзи. А в хорошую погоду урбанистическим пейзажем можно любоваться, сидя на террасе, где оборудовали зону отдыха с большим диваном.
Двухуровневая квартира 240 м² с элементами лофта и неоклассики
Элегантный подход. Квартира 240 кв. м в ЖК «Солнечный берег»
Проект ремонта этой двухуровневой квартиры — органичный симбиоз неоклассики и лофта. Панели буазери тут дружат с винтажным красным кирпичом, просторная кухня с полуостровом плавно переходит в гостиную, а прихожая со строгой лепниной хорошо сочетается с лестницей, дополненной ограждением из стальных тросов.
Строгие геометрические формы и прямые линии уравновешивают эффектный декор, поэтому интерьер выглядит сбалансированным. А акценты расставляют харизматичные лофтовые светильники, предметы искусства и аксессуары.
5-комнатная квартира 150 м² в стиле современный лофт
Обитель магов. Квартира 150 кв. м в ЖК «Вандер Парк»
В дизайне интерьера на фото тон задают бетон, натуральное дерево и кобальтово-синие акценты. Они прекрасно вписываются в лофтовую концепцию проекта и обеспечивают нужное настроение. Просторная гостиная со студийной планировкой разделена на сегменты с помощью мебели и света. При этом кухня с минималистичным дизайном не привлекает внимания, а на первый план выходит обеденная группа с эксклюзивным столом из слэба и гостиная со встроенным биокамином.
Изюминкой спальни стало яркое панно из подсвеченного светодиодами каменного шпона. А для детских авторы проекта предложили тематический дизайн: морской и Лондон.
Как заказать проект ремонта?
Заказать дизайн-проект квартиры и ремонт под ключ в компании «Вира-АртСтрой» можно онлайн, оставив заявку на сайте. А для получения профессиональной консультации свяжитесь с нами по телефону, через мессенджер или форму обратной связи.

















































































































