Ремонт квартиры с нуля в новостройке или капремонт жилья в старом жилом фонде можно сравнить с работой художника, начинающего с чистого холста, когда есть только творческий замысел и загрунтованный холст (бетонные стены).
Успех в воплощении мечты о новом красивом интерьере зависит от слаженного взаимодействия заказчика и команды профессионалов, состоящий из дизайнеров, сметчика, специалистов по согласованию перепланировки и строителей. Быстро отремонтировать квартиру, получив комплексные услуги всех этих специалистов, вы сможете, заказав ремонт в «Вира-АртСтрой».
Предварительный расчет стоимости ремонта
Стоимость ремонта квартиры с нуля зависит от перечня и объема запланированных по дизайн-проекту работ и применяемых материалов. Поэтому итоговая смета всегда индивидуальна.
Точная сумма, которую придется потратить на ремонт вашей квартиры в новостройке, будет известна только после разработки дизайн-проекта и составления сметы. Заказать предварительный расчет стоимости можно на нашем сайте.
Сколько стоят ремонтные работы?
Чтобы составить представление о бюджете на ремонтные работы, посмотрите реальные проекты из нашего портфолио. Для каждого объекта указаны площадь, стоимость и сроки выполнения работ.
Пошаговый ремонт квартиры с нуля. Описание этапов
Если коротко, то ремонт квартиры с нуля предполагает такую последовательность:
- Заключение договора.
- Обмер объекта.
- Эскизный проект.
- Рабочий проект.
- Полная смета.
- Ремонт объекта под ключ в 3 этапа.
План-график работ
Как получить дизайн-проект бесплатно?
Важно понимать, что секрет качественного ремонта — это не только профессионализм строителей, выполняющих отделочные работы, но еще и мастерство дизайнеров, разрабатывающих проект интерьера.
Экономить на чертежах и эскизах нет никакого смысла. Тем более, что в компании «Вира-АртСтрой» средства, потраченные на разработку дизайна интерьера, вам вернутся при заказе ремонта.
Авторские интерьеры способны превратить типовую квартиру в новостройке в предмет гордости ее владельцев и в уютный уголок, куда хочется возвращаться даже после самых умопомрачительных путешествий. А стоимость проекта мы возвращаем клиентам на финальном этапе ремонта.
Примеры ремонта квартир из нашего портфолио
Просмотр портфолио ремонта квартир компании «Вира-АртСтрой» — это настоящее путешествие по стилям, странам и эпохам. Здесь вас ждут безупречные дизайнерские интерьеры от барокко до футуризма, изысканные колористические схемы, привкусы солнечного Средиземноморья, цветущего Парижа, деловитого Нью-Йорка и творческой Москвы.
Приглашаем вас окунуться в атмосферу современного дизайна и начать кругосветное путешествие по интерьерам московских квартир.
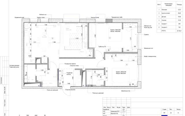
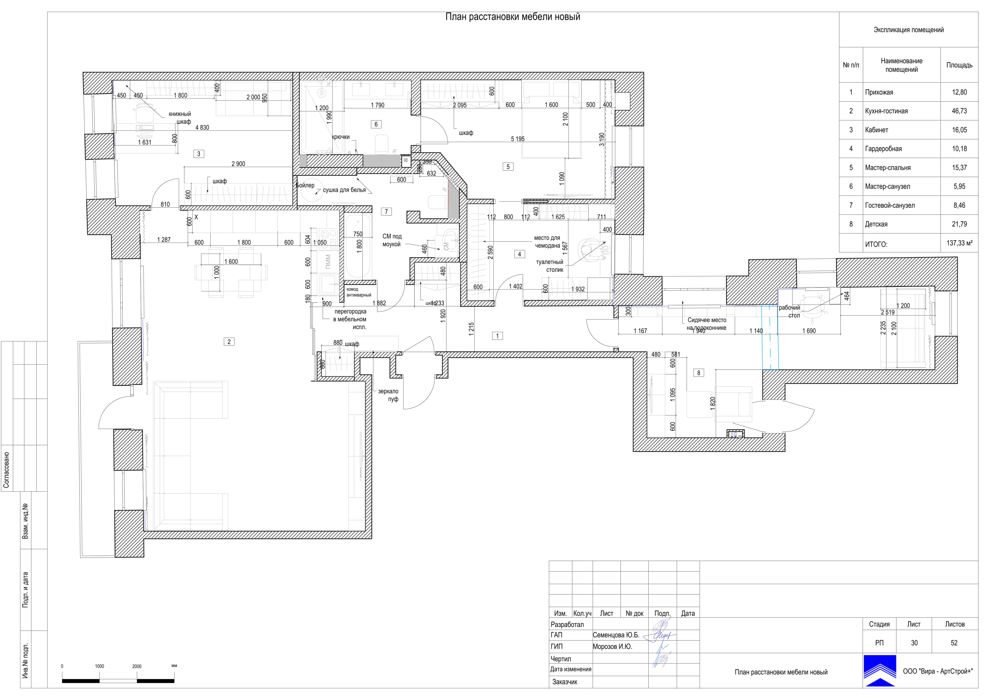
1. Средиземноморский вояж. Ремонт 3-комнатной квартиры 88 м²
Ремонт квартиры в ЖК «Вереск»
Первая остановка в нашем увлекательном туре по интерьерам — Италия. Темно-бирюзовые краски цвета вечернего моря, глубокий коричневый в сочетании с белым создают ощущение пребывания на острове Сицилия с его вереницами горных улочек, заснеженной вершиной вулкана Этна и извилистым берегом, в который вторгается морская синь. А может быть мы в одном из мелких портовых городков где-нибудь в Тоскане? Как бы то ни было, но впереди нас ожидают прохлада средиземноморского бриза и спокойный отдых в уединении — такие ассоциации вызывает квартира 88 м² в ЖК «Вереск».
Итальянская кухня
Римские шторы, светлый и темный мрамор, модный гарнитур с лаконичными плоскими фасадами и зеленое дерево в кадке — в этой кухне царит дух Италии. Для шумных семейных обедов предусмотрена овальная столовая зона, акцентированная дизайнерский люстрой, а для быстрого утреннего кофе с видом на город — барная зона у окна.
Эргономичная планировка — важный момент для организации удобного жилого пространства в квартире. Объединение кухни и гостиной — безусловный фаворит, но в этом проекте дизайнеры предусмотрели и возможность быстро разделить помещения при помощи раздвижной перегородки из рифленого стекла.
Обветренные скалы и белый песок
Фартук из коричневого мрамора сорта Royal Brown, тонированные стеклянные фасады витрин и темный обеденный стол напоминают об обветренных скалах над морем. А молочно-белая кухонная мебель и мраморный пол — о бескрайных пляжах с белоснежным песком.
Ночи Сицилии
Маленькая спальня с бежевыми оттенками в дизайне — настоящий приют отдохновения. Мраморная панель на стене продолжает историю скал в кухне. А мягкое изголовье кровати отражает европейские традиции оформления спален, создавая в комнате особый уют.
Мир маленькой принцессы
Детская комната для девочки декорирована в молочных и розовых цветах. Пространство делится на две функциональные зоны. В рабочей области со встроенной мебелью и мягкой подушкой на подоконнике внимание привлекают оригинальные статуэтки-медведи.
В зоне сна интерьер оживляет авторская фреска в оттенках интерьера с изображением рыб — еще одна отсылка к морской теме. А потолочная люстра в виде связки белых воздушных шаров делает обстановку максимально легкой и воздушной.
Эффектный силуэт
Белый холл с мраморным полом и лепным потолочным фризом удачно продолжает дворцовую тему. Большое полукруглое зеркало подсвечено светодиодами, которые подчеркивают его необычную форму. А в качестве основы для компактной открытой вешалки дизайнеры предложили строгую реечную отделку.
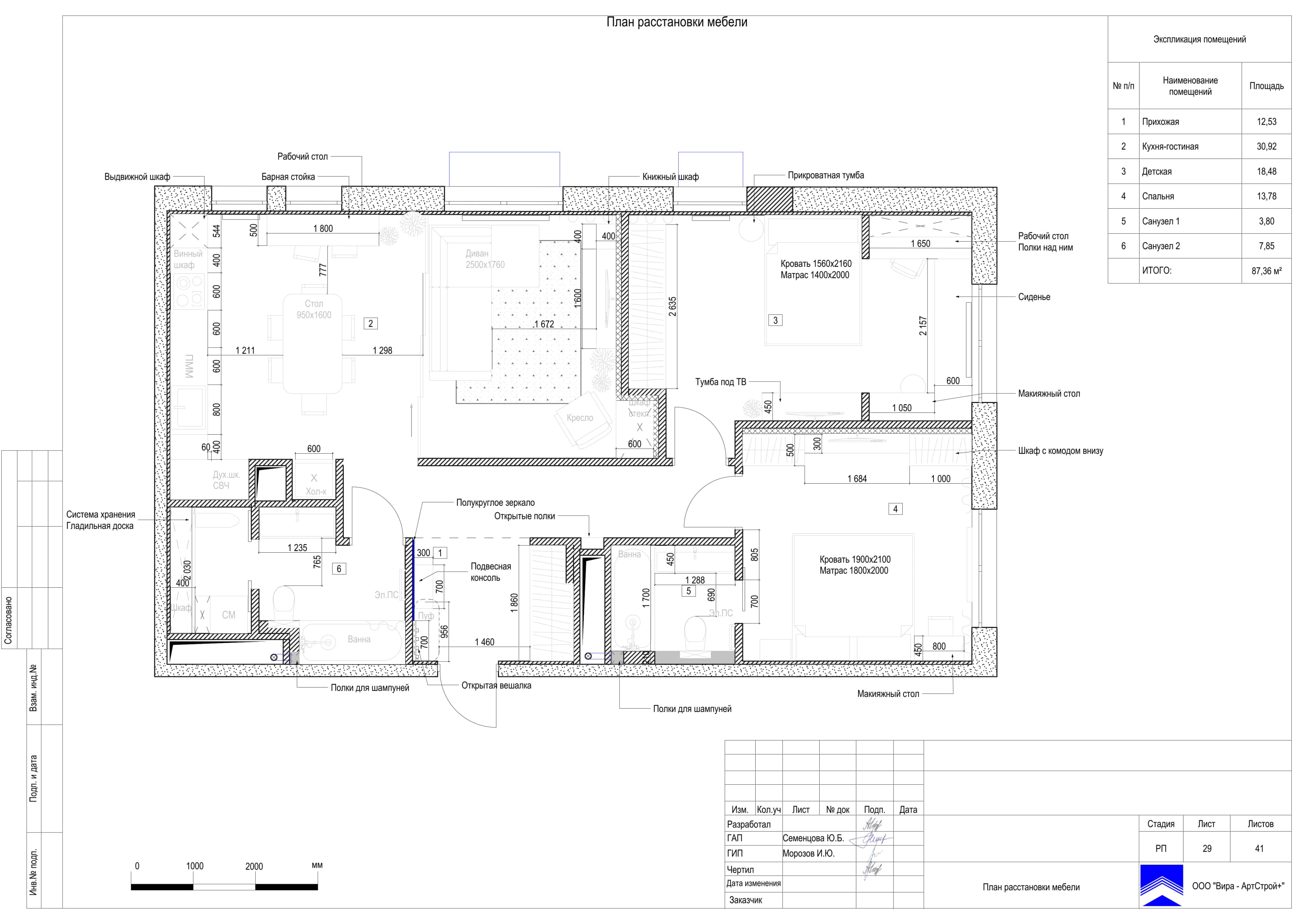
2. Парижская история. Ремонт 3-комнатной квартиры 111 м²
Ремонт квартиры в ЖК «Павелецкая сити»
Обогнув берега Италии, давайте высадимся во Франции, посетим светские приемы Парижа, пролетим над дюнами Новой Аквитании и скалистыми берегами Номандии. А поможет нам в этом проект квартиры в ЖК «Павелецкая сити», реализованный в духе современной роскоши. Мотивы неоклассики, природная цветовая гамма, дорогой текстиль, матовый металл в оттенках золота, бронзы и меди делают этот интерьер благородным и изысканным.
Зеленая аллея
В пространство коричневой гостиной смело вторгаются полоски темной зелени, напоминая нам о Зеленой аллее – линейном парк в 12-м округе Парижа, пересекающем мегаполис.
Сердцем гостиной стал большой бескаркасный диван цвета тауп, на котором приятно почитать или пообщаться с гостями. Его дополняют два кофейных столика с мраморными столешницами и оригинальными металлическими основаниями и светлый ковер, рисунок которого напоминает о дюнах Новой Аквитании.
Игра отражений
Большое зеркало, которым декорирована стена в гостиной, скрывает дверь в гардеробную и создает эффектное отражение интерьера. Этот прием позволил визуально расширить пространство, добавив в помещение света и воздуха.
Домашний бар
Барная стойка из бежевого мрамора в этой гостиной играет роль разделителя пространства. Строгая и лаконичная, она не перегружает пространство и позволяет с комфортом выпить чашку кофе. А мягкие стулья с обивкой из бархата глубокого зеленого цвета и витрина с коллекцией вин и бокалов создают ощущение уютного парижского бара.
Булонский лес
Оттенки шалфея, темной зелени и светлого дерева в парижской спальне более чем уместны и напоминают об атмосфере Булонского леса. Эффектные настольные лампы с текстильными абажурами и основаниями из цветного выдувного стекла дополняют современные настенные споты с металлическими корпусами цвета латуни. А стены в изголовье украшены нежной росписью и гипсовыми фигурками летящих птиц.
В будуарной зоне спальни дизайнеры сделали ставку на рельеф, оформив стену рифлеными панелями, а будуарную зону укомплектовав туалетным столиком с рифлением на фасаде и пуфом с аналогичным дизайном. Скрытая светодиодная подсветка большого зеркала позволила отказаться от установки дополнительных светильников. А изящества ящикам добавили 3D-ручки в виде латунных ласточек.
Скалы Нормандии
Современная ванная комната в серо-бежевых тонах — актуальный тренд, который в этом проекте реализован в премиальном формате. Мрамор и керамогранит напоминают о скалах в Нормандии на севере Франции. Там можно наслаждаться закатами над Ла-Маншем, а в этой ванной — расслабляться после рабочего дня.
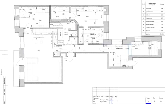
3. Москва 60-х. Ремонт 4-комнатной квартиры 138 м²
Ремонт квартиры в Москве на Спиридоновке
Следующая остановка в нашем кругосветном путешествии по интерьерам — стильная городская квартира площадью 138 м². Двери с фрамугой, высокие потолки, дубовый паркет «елочка», нотки сталинского ампира в интерьере — неужели мы оказались в Москве 60-х?
Дизайн этой квартиры был продиктован расположением в историческом доме начала XX века в центре Москвы на Спиридоновке и желанием владельцев подчеркнуть культурное наследие советской эпохи.
Лаконичный кухонный гарнитур с фартуком из состаренного зеркального полотна создает подходящий антураж для столовой зоны с большим овальным столом и яркими стульями с карминовой обивкой. Парные каскадные люстры добавляют обстановке торжественности, а черно-белый «шахматный» пол делает интерьер динамичным.
В интерьере отражена такая характерная черта интерьеров Москвы 1960-х как переход от сталинского ампира к советскому модернизму и функциональному минимализму. Неоклассические карнизы и молдинги сочетаются с более современными лаконичными формами мебели. В цветовой палитре естественные древесные тона комбинируются с яркими акцентами — темными оттенками синего, зеленого, красного.
Элементы Баухауса
Через эстетику советского модернизма в московских интерьерах 1960-х ярко проявилось влияние стиля Баухаус, зародившегося в одноименной немецкой школе дизайна и архитектуры в 1919-1933 гг. Так, в зоне гостиной этой квартиры главную роль играет низкий синий диван. В сочетании с декоративными подушками и постерами в прямоугольных рамах он создает авангардную композицию в духе Баухаус, основанную на игре простых геометрических форм и контрастном сопоставлении «цветовых пятен».
Отголоски сталинского ампира
Фризы, карнизы и молдинги, классическое оформление дверных проемов, паркет «елочка» — в отделке мастер-спальни отчетливо звучат отголоски сталинского ампира, весьма уместные в историческом доме. При этом, формы мебели и декора уже имеют более современный характер в духе советского модернизма.
Все внимание сосредоточено на акцентной прикроватной зоне в нише, украшенной современной картиной в цветах интерьера и изящной белой люстрой.
Яркие акценты в оттенке марсала прекрасно гармонируют с молочными стенами, портьерами и потолком. Фасады платяного шкафа окрашены в цвет стен, а две центральные дверцы сделаны зеркальными. Такой дизайнерский прием позволяет словно бы растворить этот объем в пространстве и визуально облегчить интерьер.
Творческая атмосфера «оттепели»
В интерьере кабинета с белыми стенами и сложными серо-синими акцентами царит творческая атмосфера Москвы эпохи хрущёвской оттепели. Глядя на него, мы вспоминаем о появлении Театра на Таганке и «театральном ренессансе» во МХАТе, Современнике и Большом.
Сказочный мир в стиле ретро
Нежная детская комната с имитацией панелей буазери на стенах дополнена авторскими обоями со стилизованным флористическим принтом в пастельных тонах. Их использовали в качестве декора для стен, красиво обрамив фрагменты эксклюзивной отделки молочно-белыми классическими молдингами.
Гжельская роспись
В отделке бело-синего санузла с душевой кабиной использована декоративная штукатурка с гжельской росписью, возникшей в Подмосковье в XVIII веке и возрожденной 40-50-х годах XX-го. Пол и нижняя часть стен облицованы керамогранитом под белый мрамор, а душевая кабина декорирована синей глазурованной плиткой и авторской мозаикой.
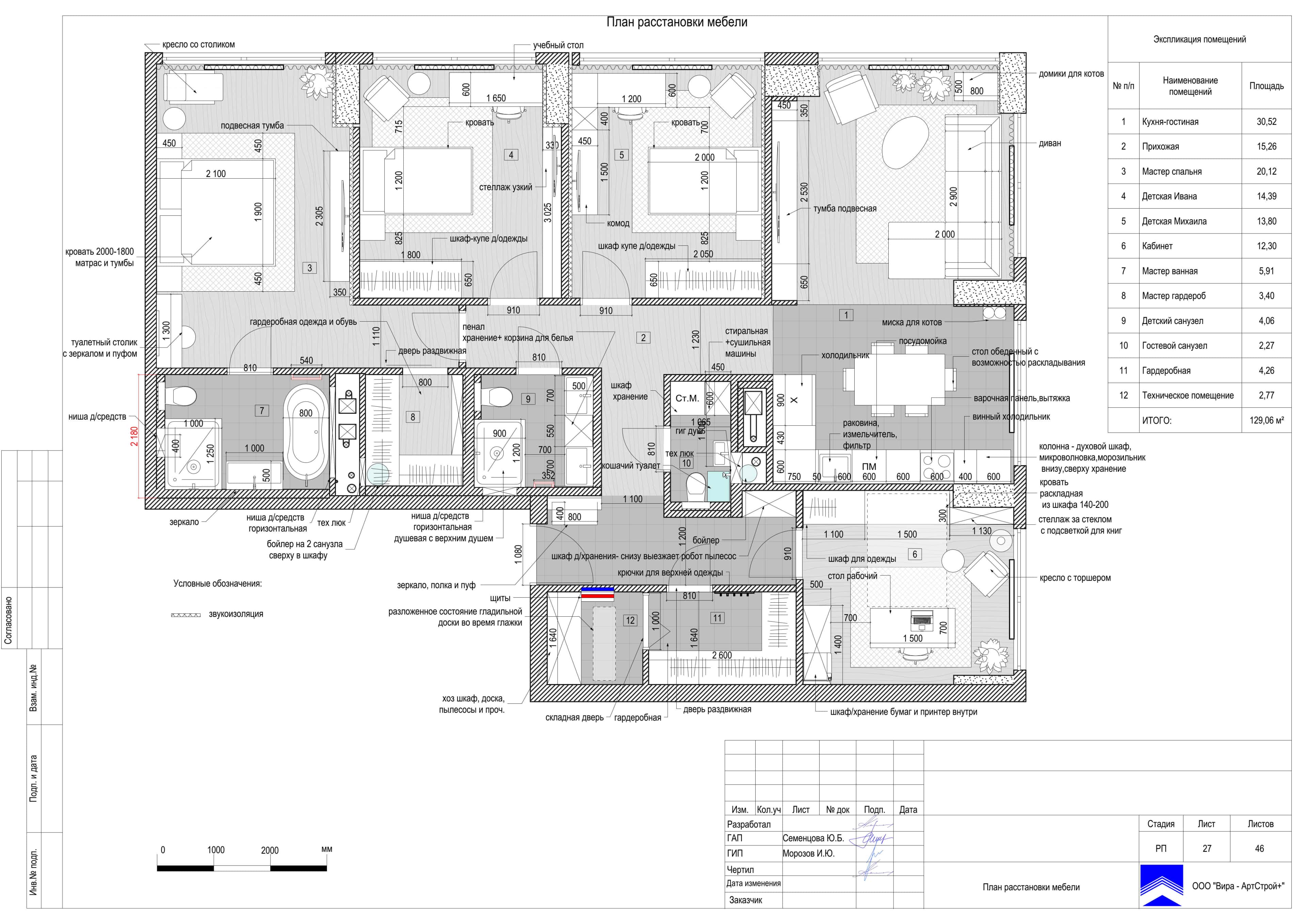
4. Нью-йоркское настроение. Ремонт 3-комнатной квартиры 130 м²
Ремонт квартиры в ЖК «Небо»
Любой круизный лайнер по пути делает остановки. И следующим остановочным пунктом сегодня станет сияющий тысячами огней Нью-Йорк. Именно с этим мегаполисом, где многообразие акцентов, языков, культур и традиций создает космополитическую среду, и ассоциируется интерьер квартиры 130 м² в ЖК «Небо»: стильный, респектабельный, динамичный.
Отделка премиум-класса, ультрасовременная техника, стильные акценты — кажется, что мы находимся в не московской новостройке, а в пентхаусе с видом на Таймс-сквер.
Современная роскошь
Максимально открытое светлое пространство, в котором доминирует ультрамодный оттенок тауп, большие окна, дизайнерские светильники, мрамор, матовое золото — все это создает атмосферу современной роскоши, которая присуща премиальным апартаментам на Манхэттене. Каждая деталь обстановки этой квартиры тщательно продумана, а вместе они создают удивительно органичный респектабельный ансамбль.
Утилитарный арт-объект
Умение превращать в арт-объекты утилитарные вещи у жителей Нью-Йорка в крови. Так, в этом проекте ТВ-зона со строгими книжными стеллажами выглядит как эксклюзивное декоративное панно, созданное современным художником. Такое впечатление создается благодаря необычной раскладке деревянных модулей и скрытой LED-подсветке.
Ничего лишнего
Нью-Йорк — не то место, где люди часто готовят дома, но это не отменяет наличие современной кухни. Лаконичные фасады шкафов, открывающиеся нажатием, уютная подсветка, стол для ужинов, который освещают пять оригинальных подвесов, — такого набора вполне достаточно для того, чтобы провести бессонную ночь за дегустацией новомодных коктейлей и обсуждением инвестиционных проектов.
Четкие линии
Спальня получилась одновременно роскошной и сдержанной. Сдержанной обстановку делает минимум мебели и декора — актуальное решение для городской квартиры. А за роскошь отвечает премиальная отделка (в том числе обои с графичным золотистым принтом) и эксклюзивный текстиль.
Яркая жизнь
Детские комнаты для сыновей хозяев сделали максимально яркими и оформили в тематике космоса и культового для Нью-Йорка баскетбола. Стены за изголовьем кровати в обеих детских акцентные: они декорированы дизайнерскими обоями, дополнены подсветкой и фитобоксами. Поддерживают концепцию дизайна и потолочные люстры — в «спортивной» комнате светильник как будто сделан из нескольких баскетбольных корзин, а в «космической» люстра напоминает спутник.
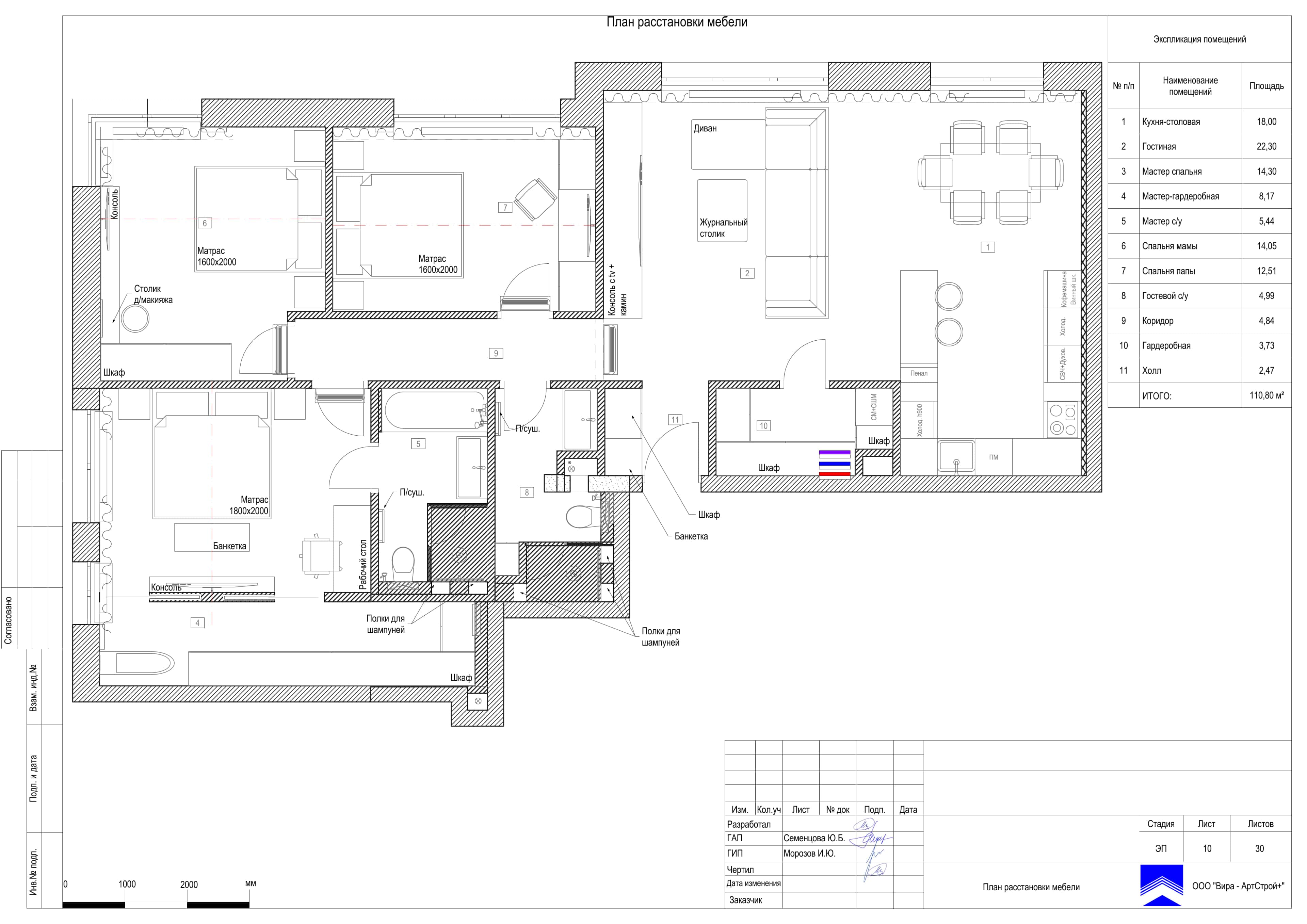
5. Круизный лайнер. Ремонт 4-комнатной квартиры 100 м²
Океанский лайнер — это, пожалуй, самый привлекательный транспорт для путешествий. Недаром, у Кортасара группа людей, выигравших морское путешествие из Аргентины в Японию, названа «счастливчиками». А теперь представьте, какие настроения будут господствовать в квартире, похожей на роскошный круизный корабль.
В интерьере квартиры в Зеленограде царят безмятежность, дух авантюризма, нетерпеливое предчувствие чего-то увлекательного. Скрасить томительное ожидание здесь можно в гостиной-библиотеке с настоящими антресолями, добраться до которых помогает лестница.
Под парусами
Завтрак на палубе в облаке морской свежести под шум бьющихся о бриз парусов и разговоры о только что прочитанных пассажирами книгах — разве это не лучшая обстановка для начала дня?
Интерьер этой кухни со стульями в бело-синюю полоску и люстрой Origami Bird позволяет своим владельцам испытать всю прелесть пробуждений и обедов на средиземноморском или атлантическом лайнере.
Поймай волну
В спальне с декором в виде доски для серфинга господствуют океанская свежесть и закулисная кулуарность. Такого эффекта удается достичь благодаря умелой комбинации прохладных оттенков голубого льда, напоминающих коктейли с ликером Блю Кюрасао, и глубокого синего, несущего успокоение и забвение морских глубин.
В поисках Моби Дика
Пожалуй, самой «морской» комнатой в квартире получилась детская. Здесь на стенах «плещутся» киты, будто бы срисованные с иллюстраций к «Моби Дику», а усаживаясь в кресло ты попадаешь в объятия акулы. Отдохнуть от приключений дня можно на кровати, организованной на втором ярусе, под самым потолком.
Колониальный изумруд
Интерьер ванной комнаты в бело-изумрудных тонах, благодаря интересному декору в виде зеркальной рамы из корабельного каната и стильным светильникам с латунными корпусам, получился около колониальным. Деревянный табурет и подставка под ванну лишь усиливают близость со стилем Нового Света.
Как создать красивый и содержательный интерьер?
Любое путешествие рано или поздно подходит к концу, от него остаются лишь впечатления и образы, которым впоследствии мы можем найти применение в повседневной жизни. Наверняка, и у вас есть любимые места на планете, о которых вы хотели бы вспоминать ежедневно?
Лучший способ это сделать — привнести в свой интерьер частичку душевного Прованса, харизматичной Испании, романтичного Парижа или другого дорогого сердцу уголка. А дизайнеры и строители «Вира-АртСтрой» вам в этом с радостью помогут.


















































































