Ремонт трехкомнатной квартиры в Москве — самая востребованная услуга у наших заказчиков в сегменте городского жилья. Три жилые комнаты — тот самый минимум, который необходим для комфортного проживания небольшой семьи. Планировочные решения трехкомнатных квартир часто предполагают объединение кухни и гостиной.
Цены и стоимость ремонта с материалами под ключ
Узнать примерную стоимость ремонта квартиры, можно, ознакомившись с реальными примерами работ из нашего портфолио дизайна и ремонта квартир.
Актуальные цены на ремонт квартир уточняйте на странице Цен. При заказе ремонта каждый заказчик получает возврат стоимости проекта интерьера.
Что входит в проект ремонта?
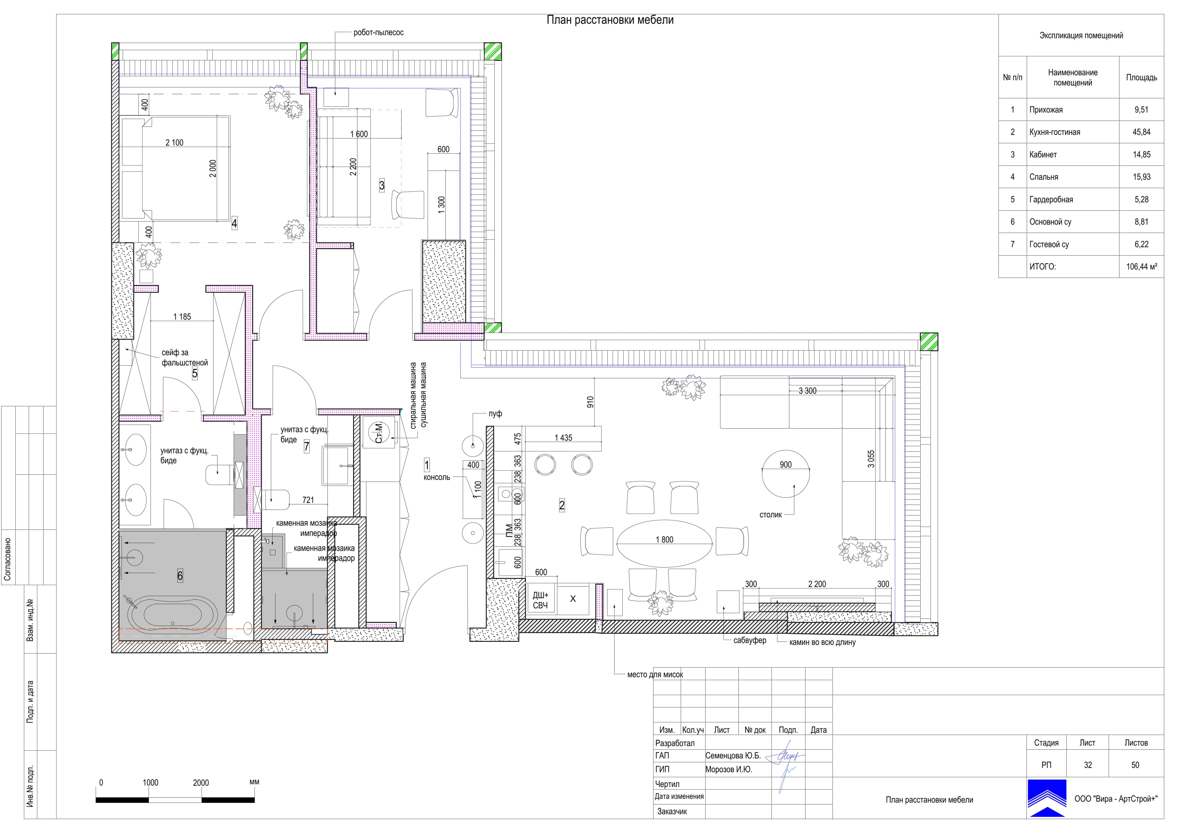
Наша компания специализируется на капитальном ремонте квартир и домов, который, как известно, требует тщательной подготовки. На первом этапе разрабатывается дизайн-проект будущего интерьера, включающий в себя:
- планировочные решения;
- рабочие чертежи (планы монтажа и демонтажа перегородок, расстановки мебели, экспликация полов и т. д.);
- визуализации будущего интерьера.
Наличие проекта помогает дизайнерам контролировать процесс ремонта, позволяет заказчикам представить финальный результат еще на этапе проектирования. Рабочие чертежи существенно облегчают задачу рабочим и практически полностью исключают ошибки при проведении работ.
Гарантии и страхование ремонта
Ремонт трехкомнатной квартиры с «Вира-АртСтрой» — это безопасно. Компания предоставляет 5-летнюю гарантию на все отделочные, сантехнические и иные работы. Все наши объекты страхуются уже на этапе выполнения работ.
Сроки выполнения ремонтных работ
Процесс ремонта в среднем длится около полугода. График работ служит ориентиром для нашего отдела по комплектации, который всегда точно знает, когда на объект необходимо организовать поставку того или иного оборудования или материалов.
3 этапа ремонта трехкомнатной квартиры
Первый этап, подготовительный. Продолжительность 2,5 месяца
Второй этап, промежуточный. Продолжительность - 1,5 месяца
Третий этап, завершающий. Продолжительность - 2 месяца
Примеры ремонта трехкомнатных квартир из нашего портфолиo
Все трехкомнатные квартиры имеют общие черты.
- Одна из комнат всегда отводится под спальню.
- Гостиная с кухней могут объединяться в студию или разделяться с помощью раздвижной перегородки.
- Третья комната обычно служит детской или кабинетом. Здесь все зависит от состава семьи.
В портфолио «Вира-АртСтрой» представлено большое количество реальных проектов дизайна и ремонта трехкомнатных квартир. С некоторыми из них мы познакомим вас сегодня.

Очарование простоты. Ремонт 3-комнатной квартиры в ЖК «Nagatino i-Land»
Лейтмотивом в оформлении интерьера квартиры в ЖК «Nagatino i-Land» для взрослой женщины и её пожилой мамы стала модная тема натурального дерева и камня, разыгранная в экологичной палитре серо-бежевых тонов.
Общественная зона квартиры, представленная просторной кухней-гостиной, позволяют не только устраивать семейные посиделки, но и принимать гостей. А две уютные спальни матери и дочери создают функциональные приватные пространства для каждой из хозяек.
Маленькая спальня площадью всего 12 м², предназначенная для пожилой мамы, реализована в уютном капсульном формате. При этом, в помещение, где нет ничего лишнего, дизайнерами виртуозно вписана просторная кровать и большая система хранения с гардеробным шкафом.
В этой угловой квартире спальня взрослой дочери имеет 2 окна, из которых открывается впечатляющий вид на город. Насладившись панорамой мегаполиса, можно легко уменьшить освещенность, задвинув плотные портьеры.
Оформление спальни в спокойных серо-бежевых тонах, напоминающее о скалистых пейзажах и природных валунах, способствует глубокой релаксации. А наличие большого гардеробного шкафа и туалетного/рабочего стола делает пространство максимально приватным.

Верх элегантности. Ремонт 3-комнатной квартиры в ЖК «Королёва 13»
Апартаменты для супругов с сыном, расположенные в ЖК «Королёва 13», имели высоту потолков более 3 метров и двойной ряд окон. Такие исходные данные позволили нашим дизайнерам создать в квартире 2-й уровень, увеличив ее полезную площадь. На 1-м этаже расположились гостиная со вторым светом, кухня, детская и санузел. а на 2-м — гардеробная и мастер-спальня с ванной.
Интерьер в светлых тонах оформлен в стиле неоклассика с элементами арт-деко. При выполнении ремонта премиум-класса использованы дорогие натуральные материалы или их высококачественные имитации, роскошные дизайнерские светильники и мебель. Лестница и встроенная мебель выполнены нашей компанией на заказ по чертежам автора проекта.
Монументальная общественная зона квартиры не уступает по роскоши гостиной загородной резиденции. Наличие второго света, великолепная сияющая люстра и мраморная панель в ТВ-зоне производят на гостей неизгладимое впечатление.
При этом, встроенная кухня максимально лаконична. Выполненная в цвет стен, она словно бы растворяется в пространстве парадной гостиной. Пол в кухонной зоне отделан высококлассным керамогранитом под мрамор, из которого также изготовлена столешница острова.
Мастер-спальня родителей на 2-м этаже квартиры решена в умиротворяющей палитре кофе с молоком. Прямо к комнате примыкает мастер-санузел, что опять же, приближает уровень комфорта и приватности квартиры к загородному дому.

Ремонт 3-комнатной квартиры 107 м² в стиле арт-деко
Владельцы квартиры — молодая пара — мечтали о создании богемного интерьера для дружеских вечеринок и приема гостей, который в то же время, был бы предназначен для комфортной жизни и работы в тиши домашнего кабинета. Наши дизайнеры оформили квартиру в стиле современное арт-деко, создав невероятно стильный интерьер в бежево-коричневом монохроме с золотистыми акцентами.
В спальне с гардеробной обустроили мини-кинотеатр с видеопроектором. Для большего уюта зону кровати акцентировали рельефными современными панелями из дерева со скрытой подсветкой.
Отсылки к эпохе Великого Гэтсби особенно четко читаются в интерьере роскошной ванной с контрастной отделкой из темного и светлого мрамора. Игра отражений, создаваемая расположенными друг против друга зеркалами, в купе с глянцевыми поверхностями полированного мрамора и подсвеченными нишами усложняет геометрию пространства. Под стать роскошной отделке дизайнерские светильники и сантехника, придающие композиции завершенность.
Великолепие мрамора и золота демпфируется текстурой натурального дерева и монохромной палитрой интерьера ванной, делая его сдержанно роскошным образчиком стиля современное арт-деко.

Ремонт 3-комнатной квартиры 124 м² в современном стиле
Минимализм тоже может быть роскошным! Разработанный нашими дизайнерами концептуальный проект квартиры с панорамными окнами в современном московском ЖК был безупречно воплощен мастерами по ремонту.
О профессионализме проектировщиков, качестве дизайнерского ремонта и применяемых материалов легко судить по фото. Главный же результат грамотного индивидуального подхода — актуальное жилое пространство, решенное в едином стиле и комфортное для каждого члена семьи.

Ремонт 3-комнатной квартиры 134 м² в стиле неоклассика
На сегодняшний день неоклассика — самый популярный стиль дизайна и ремонта квартиры или загородного дома. Это направление сочетает в себе классическую элегантность и утонченность с возможностью применения современных бюджетных решений.
Гармоничная палитра светлых тонов, дизайнерские обои и светильники, экологичные материалы отделки и изысканные линии классики рождают в интерьере неповторимую атмосферу уюта.









































































