Информация и галерея
- 72 м²
- 202 дней
- Скандинавский Эко-стиль
- Дизайн-проект
- Инженерные проекты
- Качественный ремонт
- Комплектация ремонта
- Авторский надзор
- Страхование ремонта
О проекте
Сегодня у нас в обзоре квартира площадью 72 квадратных метра на Измайловском шоссе.
Заказчики, семейная пара с двумя детьми, уже обращались к нам ранее с проектом двухэтажной квартиры в Измайлово, и остались очень довольны результатом.
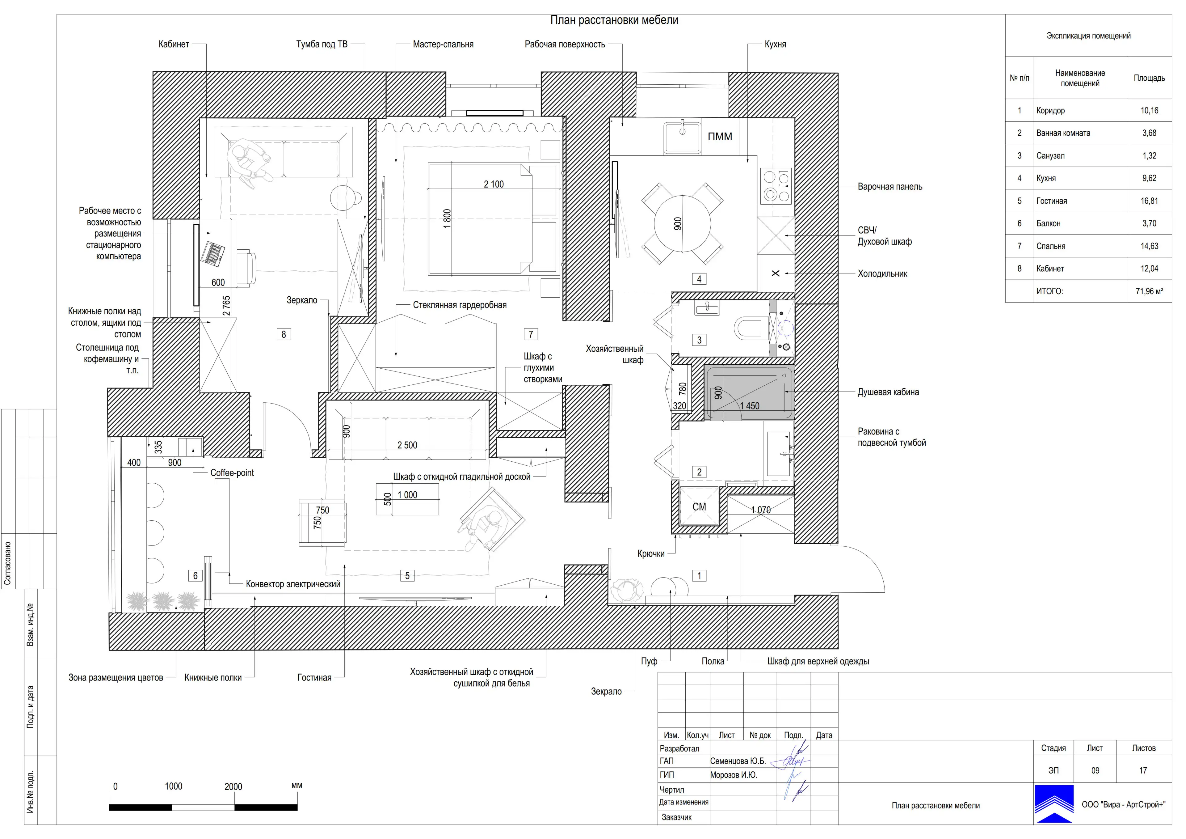
Поэтому при покупке второй квартиры супруги решили вновь обратиться к нам. Квартиру площадью 72 квадратных метра заказчики планируют в ближайшем будущем сдавать, а затем или передать в наследство детям, или использовать самим в пожилом возрасте. Перед нашими дизайнерами стояла задача создать универсальный интерьер, выделив место под одну спальню, большую гостиную, кабинет и гардеробную комнату.
Для этого мы произвели в квартире полную перепланировку. Чтобы распределить площадь между комнатами боле рационально, все перегородки, кроме несущих конструкций, демонтировали. За счёт новых перегородок мы убрали слишком длинный не функциональный коридор, увеличили площадь спальни, ванной и кабинета. Все помещения оставили на своих изначальных местах, но сделали проходной гостиную. Теперь в кабинет можно попасть только через неё.
Также во всей квартире, кроме лоджии, мы немного опустили потолки. Так мы выровняли пропорции комнат и придали интерьеру больше воздушности благодаря скрытым гардинам и более мягкому, струящемуся свету от спрятанных между стенами и потолком светодиодных лент. Этим приёмом мы не только внесли в общий интерьер изюминку и нотки уюта, но и добились эффекта невесомости потолков, вытянули объёмы квартиры по вертикали.
Основными источниками света во всей квартире сделали встроенные точечные светильники. Ещё мы заменили радиаторы отопления, дверные и оконные блоки. Кухню, спальню и кабинет, для большего комфорта заказчиков, оборудовали кондиционерами.
Таким образом, на 72-х квадратных метрах у нас расположились небольшая прихожая, раздельные, по желанию заказчиков, ванная и санузел, кухня, гостиная, соединённая с лоджией, кабинет и спальня с гардеробной.
Поскольку для заказчиков было важно получить светлое, просторное жилище, для оформления мы выбрали стиль джапанди.
Стиль джапанди считается синтезом Скандинавии и Японии в традиционных чертах и сочетает в себе скандинавскую натуральность и японскую практичность и минимализм, стремящиеся к простоте и натуральности. Функциональность, продуманность каждой детали, обилие естественного и искусственного света, отсутствие в цветовой гамме кричащих цветов делают этот стиль уместным почти в любом помещении жилой квартиры или дома. И хотя он предполагает обилие натуральных цветов камня,бетона, песка, древесины и других природных материалов, за счет грамотных сочетаний фактур, текстур и цветов джапанди может украсить жилище намного интереснее многих ярких, вычурных стилей.
Следуя заветам стиля джапанди, в качестве основного цвета для отделки стен и потолков во всех комнатах, а также в прихожей и коридоре, мы использовали мягкие светлые песочные оттенки, расширяющие пространство, а также белый цвет. Напольные покрытия подобрали с текстурой под дерево. В зонах общего пользования, чтобы упростить процесс уборки, отдали предпочтение керамограниту, в более приватных – инженерной доске.
Межкомнатные двери выбрали из шпонированного дерева, в скрытом коробе, до потолка, чтобы еще раз зрительно вытянуть все пространство вверх. Плинтуса также подобрали скрытые и покрасили в тон стенам.
Видео
Бывает лучше один раз увидеть, чем несколько раз услышать. Именно по этой причине мы подготовили для вас видео-обзор по этому объекту.
Подписывайтесь на наши каналы, чтобы быть в курсе новых интересных интерьеров:
Общий вид





Коридор
Кроме светлой краски, для оформления стены слева от входной двери мы использовали зеркальные панели с двумя светильниками-бра.

Первая на очереди – прихожая. Кроме светлой краски, для оформления стены слева от входной двери мы использовали зеркальные панели с двумя светильниками-бра. Пол выложили светлым керамогранитом, имитирующим дерево.


Справа от входной двери встроили в стену вещевой шкаф с дверцами из шпонированного дерева. Рядом вмонтировали несколько крючков для верхней одежды.


Напротив, вдоль зеркала, протянули столик-полку из светлого дерева для аксессуаров и легко теряющихся мелочей вроде ключей. Для комфортной смены обуви под столиком разместили два пуфа оливкового цвета, своими округлыми очертаниями похожих на замшелые валуны.
В качестве декора расположили рядом со столиком небольшое дерево-бонсай в стильном высоком градиентном горшке.
Кухня
Высокое размещение духовых шкафов производители начали рекомендовать практически сразу после появления первой независимой духовки более полувека назад.

Финальная точка нашей экскурсии - кухня. Её, в отличие от остальных комнат, мы решили не отделять от коридора дверями или перегородками. Этот приём позволил сохранить свободный доступ к находящемуся в коридоре хозяйственному шкафу и создать в коридоре более уютную атмосферу за счет обильного поступления туда с кухни естественного света.


В отделке кухни мы задействовали те же самые материалы, что в коридоре и прихожей: светлый керамогранит под дерево, светлую краску на основных стенах и потолке, подсветку в нишах потолка. А вот стены, окаймляющие рабочую кухонную поверхность, и саму столешницу мы выложили таким же керамогранитом, что и санузел. Под белыми подвесными шкафчиками, чтобы готовить было удобнее, протянули светодиодную ленту.


Остальной кухонный гарнитур подобрали в акцентном серо-мятном цвете. Духовой шкаф и микроволновую печь встроили в гарнитур, разместив их вертикально, на комфортном для хозяйки квартиры уровне.
Кстати, немногие знают, что такое расположение духового шкафа – вовсе не модное веяние. Высокое размещение духовых шкафов производители начали рекомендовать практически сразу после появления первой независимой духовки более полувека назад. Так контролировать процесс приготовления блюда, а также наводить в духовке чистоту, значительно удобнее, чем в низко расположенном духовом шкафу. К тому же ставить в вертикальную духовку тяжёлые блюда и вынимать их обратно намного проще и безопаснее.
Встроили в гарнитур мы и варочную панель, холодильник и посудомоечную машину. Холодильник и посудомоечную машину, во избежание визуальной перегрузки интерьера, скрыли за створками шкафов.
Посередине кухни разместили круглый обеденный стол из светлого дерева. В тон к нему подобрали стулья с округлыми спинками. Над столом, в качестве дополнительного локального источника света, повесили светильник, тоже круглый, в лучших традициях стиля джапанди. Напротив стола, чтобы нахождение на кухне было ещё более приятным для домочадцев, повесили плазменный телевизор.
В качестве декора использовали зелёные растения в небольших кашпо на подоконнике и деревянную посуду.
Кабинет
В качестве декора, помимо растений и мягкого ковра, такого же, как в гостиной, повесили над диваном фактурную круглую картину в стиле джапанди.

Отделку здесь сохранили такую же: минималистичную и светлую, с белыми стенами, потолками с подсветкой по периметру и инженерной доской из белёного дуба на полу. Выступающую стену справа при входе в комнату обыграли высокими зеркалами. Зрительно расширяя комнату за счёт удачного расположения напротив окна, они также будут наполнять кабинет большим количеством света и создавать дополнительный уют.


У окна мы разместили рабочую зону с вместительным шкафом с полками и ящичками, письменным столом из светлого дерева, лампой и офисным креслом.


Зону отдыха оборудовали подвесным диваном на деревянном каркасе. Продолжение каркаса может служить как подставкой для декора, так и для книг или кружек. Рядом также предусмотрели круглый кофейный столик, небольшой комод и телевизор.
В качестве декора, помимо растений и мягкого ковра, такого же, как в гостиной, повесили над диваном фактурную круглую картину в стиле джапанди.
Гостиная
Вся мебель низкая в традициях японского стиля.

Стену в нише за льняным диваном натурального цвета мы вновь оформили зеркальными панелями, чтобы зрительно увеличить гостиную и улучшить её пропорции. На полу постелили инженерную доску из белёного дуба. К светодиодным лентам и точечным накладным светильникам добавили трековую систему освещения и несколько светильников в нише над телевизором.


У дивана поставили два плетёных кресла и круглый деревянный журнальный столик. Вся мебель низкая в традициях японского стиля. На полу, для большего комфорта, расстелили мягкий ковёр с длинным ворсом.


По бокам от дивана симметрично расположили шкаф из шпонированного дерева с откидной гладильной доской, и вход в кабинет, куда мы заглянем позже.
Напротив дивана для хранения вещей расположили белые шкаф с откидной сушилкой для белья, тумбочки и скошенные полки для книг из белёного дуба.
Чуть дальше, в зоне бывшей лоджии, которую мы совместили с гостиной, чтобы расширить её площадь, оборудовали кофейный уголок. Стены здесь выкрасили в белый цвет, на полу продолжили инженерную доску как в гостиной. Источниками света сделали подвесные круглые светильники.
Вдоль подоконника протянули узкую деревянную столешницу. В тон ей подобрали барные стулья с округлыми спинками. Справа от столика встроили в нишу выдвижные ящики и полки с зеркальной задней стенкой. На них мы разместили посуду, кофемашину и мини-холодильник для вин.
В качестве декора поставили на столик абстрактную картину в раме, а в противоположном верхнем углу подвесили цветы.
Спальня
Дополнительного уюта спальне придали, постелив пушистый ковёр и повесив в комплект к лёгким тюлевым занавескам блэк-аут шторы, которые значительно улучшат качество сна заказчиков.

Напротив санузла находится спальня. Здесь мы вновь использовали много светлого цвета в отделке стен и потолка и инженерную доску из белёного дуба на полу. Изголовье кровати выделили шпонированными деревянными панелями. Кроме светодиодной ленты и точечных встроенных потолочных светильников, над тумбочками, по обеим сторонам кровати, предусмотрели подвесные светильники. В уголке для чтения за плюшевым креслом округлой формы, похожим на обкатанный огромный валун из песчаника, мы также разместили напольный торшер.


Для хранения вещей на входе в спальню встроили в нишу деревянный шкаф с глухими створками. Рядом с ним, по желанию заказчиков, оборудовали небольшую застекленную гардеробную. Оценить получившийся образ хозяева смогут, воспользовавшись высоким зеркалом справа от шкафа.


Дополнительного уюта спальне придали, постелив пушистый ковёр и повесив в комплект к лёгким тюлевым занавескам блэк-аут шторы, которые значительно улучшат качество сна заказчиков.

Ванная
В ванной потолок и основные стены, в отличие от остальных помещений, мы покрасили в более приглушенный, серый цвет.

Вновь вернемся в коридор и пройдём к ванной. Обратите внимание, насколько тщательно наши дизайнеры использовали каждый свободный уголок! Небольшое пространство между ванной и санузлом они также не оставили без внимания и встроили в него хозяйственный шкаф.


В ванной потолок и основные стены, в отличие от остальных помещений, мы покрасили в более приглушенный, серый цвет.


Пол оформили крупноформатным керамогранитом с имитацией текстуры мрамора. Им же выложили и возведённый нами с нуля поддон душевой кабины. Стены застеклённой душевой тоже выполнили из крупноформатного керамогранита более серого оттенка.
Для банных принадлежностей предусмотрели под раковиной деревянную подвесную полку с ящиками. Шкаф из шпонированного дерева оборудовали полками для хранения бытовой химии и нишей, в которую встроили стиральную машину.
Санузел
Сантехнические коммуникации за подвесным унитазом скрыли светло-коричневой деревянной панелью со створками.

Пол здесь выложили крупноформатным керамогранитом тёплого песочного оттенка. Потолок выделили белой краской и светодиодной лентой. Сантехнические коммуникации за подвесным унитазом скрыли светло-коричневой деревянной панелью со створками.

Чтобы хозяевам и гостям не приходилось ходить мыть руки до ванной комнаты, предусмотрели в санузле глубокую подвесную раковину. Над ней повесили такое же, как в ванной, но чуть более вертикальное зеркало с подсветкой.



















































