Информация и галерея
- ЖК AFI Park Воронцовский
- 60 м²
- 180 дней
- Современный
- Дизайн-проект
- Инженерные проекты
- Качественный ремонт
- Комплектация ремонта
- Авторский надзор
- Страхование ремонта
О проекте
Мы буквально пересобрали пространство, чтобы каждый из квадратных метров работал на комфорт будущих жильцов.
В этом выпуске вы узнаете, как угодить взыскательным арендаторам и при этом остаться в рамках разумного бюджета.
Задача была нестандартной — создать пространство, в которое захочется переехать и в котором будет комфортно любым жильцам. Мы постарались сделать квартиру одновременно стильной, удобной и недорогой в содержании. В итоге у нас получилось комфортное жильё, где каждая деталь работает на будущих жильцов, а каждый рубль вложен разумно.
Мы проектировали интерьер для инвестора, которому важно заинтересовать лояльных долгосрочных жильцов (в качестве типовых арендаторов была принята взрослая семейная пара, возможно с ребёнком). Поэтому каждый элемент интерьера работал на три фронта: эстетичный дизайн, который с порога покоряет сердце и создаёт ощущение «я хочу здесь жить!», практичные материалы, которые не требуют сложного ухода и отличаются долговечностью, и разумный бюджет, чтобы инвестиции как можно быстрее окупились.
Мы отказались от временных трендов, сделав ставку на вневременную классику, и спланировали пространство так, чтобы и родителям, и ребёнку при его наличии было комфортно. Получился интерьер-хамелеон: сдержанный, но не скучный, функциональный, но не бездушный, и главное — готовый к жизни с первого дня.
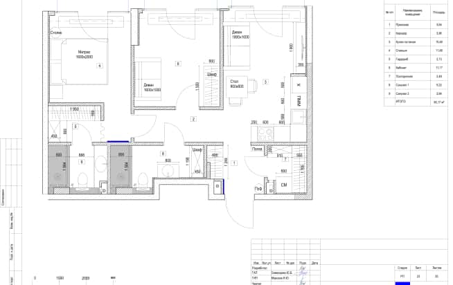
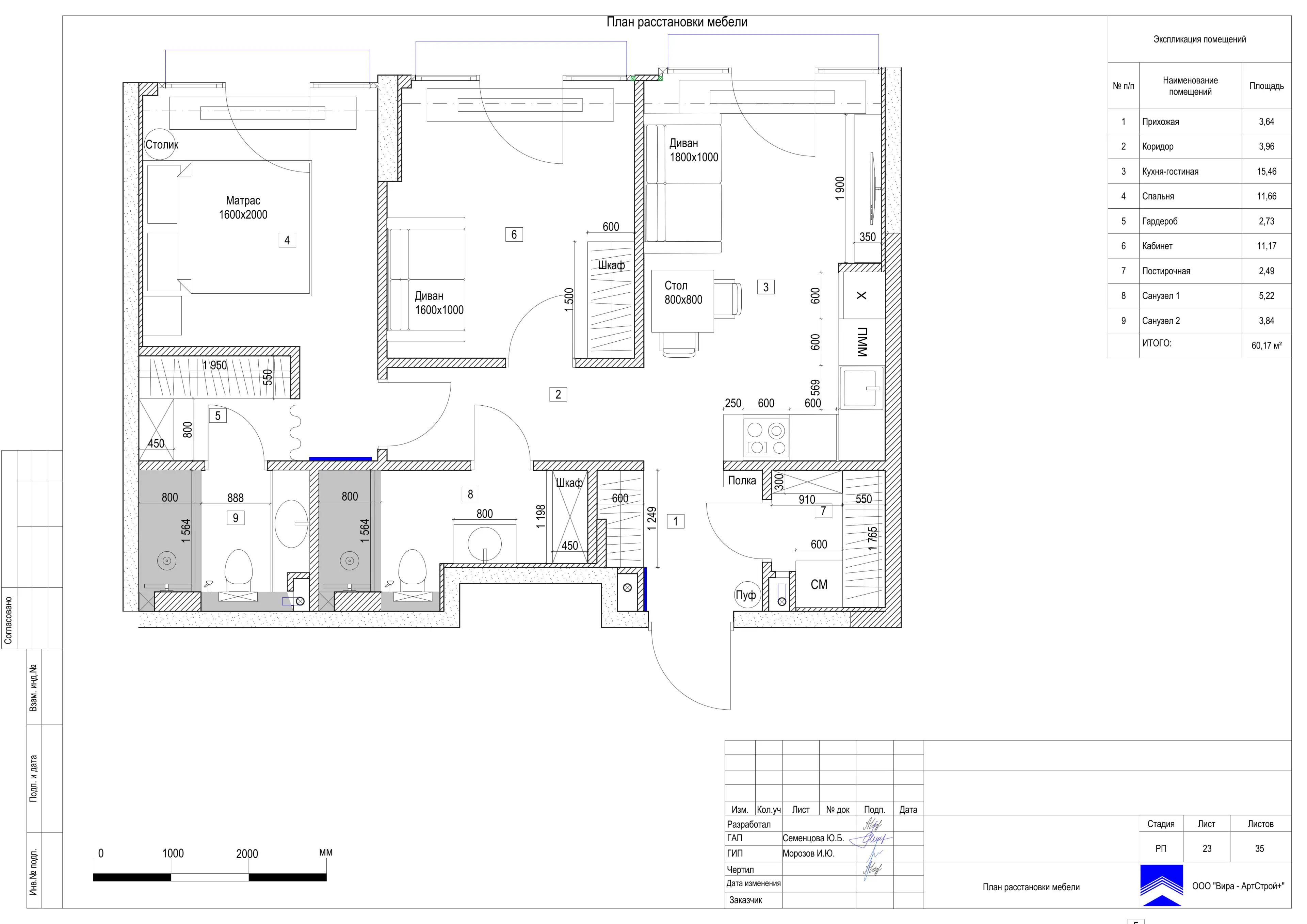
Мы буквально пересобрали пространство, чтобы каждый из 62-х квадратных метров работал на комфорт будущих жильцов. Бывший санузел при входе превратился в удобную гардеробную с постирочной зоной. А гостевой туалет теперь расположен в глубине коридора, который немного сдвинулся и «поделился» пространством с центральной комнатой — кабинетом или будущей детской. Она стала чуть компактнее, но гораздо уютнее.
Главное преобразование — хозяйская спальня. Мы создали из неё полноценный мастер-блок: организовали отдельную гардеробную и добавили мастер-санузел, в который можно попасть прямо из комнаты. Так у родителей будет своё приватное помещение со всеми удобствами. В итоге мы создали продуманную среду для жизни, где учтены и повседневные мелочи, и потребность в личном пространстве.
Квартира выполнена в современном стиле. За основу мы взяли нейтральную палитру серо-бежевых оттенков — они создают спокойную универсальную базу, визуально расширяют пространство и служат идеальным фоном для любых сценариев жизни. К этой основе мы добавили яркие акценты: натуральное дерево в отделке пола и мебели, а также шоколадные и терракотовые тона в текстиле и декоре.
Такой подход позволяет сохранить целостность восприятия при переходе из комнаты в комнату и избежать дробления пространства. Материалы и текстуры дополняют цветовую гамму: матовые поверхности, натуральный текстиль, древесные фактуры и глянцевые акценты создают тактильно богатый интерьер, который воспринимается как единая композиция.
Видео
Бывает лучше один раз увидеть, чем несколько раз услышать. Именно по этой причине мы подготовили для вас видео-обзор по этому объекту.
Подписывайтесь на наши каналы, чтобы быть в курсе новых интересных интерьеров:
Планировка

Прихожая и коридор
Интерьер прихожей лаконичный, при его создании мы вдохновлялись японской эстетикой: минимум деталей — максимум смысла.

Прихожая сразу задаёт тон всей квартире — она получилась очень светлой, спокойной и современной. Мы отдали предпочтение немарким материалам, за которыми очень легко ухаживать.


Для шкафа в прихожей мы выбрали оттенок светлого дерева, чтобы добавить помещению тепло и уют. Шкаф выполнен во всю высоту стены, зрительно делая потолки выше, а всю прихожую — просторнее. Рядом со шкафом – такое же высокое зеркало.


Интерьер прихожей лаконичный, при его создании мы вдохновлялись японской эстетикой: минимум деталей — максимум смысла. Украшением и одновременно ярким акцентом в прихожей служит терракотовый пуфик для переобувания.
Из прихожей открывается эффектный вид в глубину квартиры, на гостиную. Мы сознательно отказались от межкомнатных дверей в этой зоне, теперь свет из гостиной свободно проникает в прихожую, пространство «дышит» и кажется значительно больше.
Кухня-гостиная
В итоге получилась элегантная кухня-гостиная, где всё идеально сбалансировано: современная сдержанность минимализма здесь не противоречит домашнему уюту.

Пространство кухни-гостиной объединяет функциональность и эстетика, создавая современную атмосферу лёгкости. На полу в кухне — светлый керамогранит, такой же, как в прихожей, а в зоне гостиной и в жилых комнатах уложен инженерный трёхслойный паркет оттенка дуб с ультраматовой шёлковой текстурой.


Кухня собрана в духе разумного минимализма. Высокие шкафы в спокойном тёмно-бежевом цвете тянутся до самого потолка, что визуально вытягивает пространство. Фактурный фартук кофейного оттенка добавляет стене глубину и выгодно оттеняет монохромную гамму, внося нотку уюта.


Для обеденной зоны мы выбрали компактный стол и изящные стулья светлого серо-зелёного цвета — получилось уютное место для семейных ужинов и дружеских посиделок. Освещение тщательно продумано: помимо основного верхнего света, мы добавили подвесные светильники-шарики, которые дают мягкий рассеянный свет.
Гостиная естественно продолжает кухонное пространство, составляя с ним единую светлую зону. Подвесная тумба цвета светлого дерева подчёркивает горизонталь и визуально облегчает стену, а небольшой декор на полке добавляет интерьеру домашнее тепло.
В зоне отдыха царит атмосфера спокойствия — здесь нет кричащих красок, только мягкие нейтральные тона. В итоге получилась элегантная кухня-гостиная, где всё идеально сбалансировано: современная сдержанность минимализма здесь не противоречит домашнему уюту.
Мастер-спальня с гардеробной
Мы сознательно отказались от парных симметричных тумбочек — так интерьер становится интереснее, обретая характер и индивидуальность.

Спальня выдержана в гармоничной молочно-серой палитре. Мягкое изголовье кровати, выделенное светло-серой акцентной панелью по стене, визуально структурирует пространство и создаёт ощущение защищённости.


Световые сценарии помещения тщательно продуманы: линейная подсветка над изголовьем добавляет мягкий рассеянный свет, а подвесные светильники у прикроватных тумб делают атмосферу более интимной.


Окно спальни выходит на южную сторону, но бежевые портьеры, оттенок которых перекликается с паркетом, позволяют при необходимости защититься от яркого солнечного света.


Декор в спальне подобран так, чтобы радовать глаз и расширять границы. Абстрактная картина в пастельных тонах создает медитативное настроение, а зеркало в нише придаёт интерьеру объём и иллюзию дополнительного пространства.

Игривый акцент — вторая прикроватная тумбочка с бело-серым абстрактным орнаментом. Мы сознательно отказались от парных симметричных тумбочек — так интерьер становится интереснее, обретая характер и индивидуальность.
Гардеробную мы скрыли за шторой, чтобы не загромождать помещение и сохранить общую минималистичную концепцию. Всё необходимое всегда рядом, но при этом в спальне царит идеальный порядок.
Гардеробная получилась очень функциональной. Светодиодная подсветка установлена по всей длине полок. Всё их содержимое идеально видно, поэтому утренние сборы на работу будут происходить в разы быстрее.
Для белья и разных мелочей мы установили удобный встроенный комод с глубокими ящиками. На ящиках нет выступающих ручек, что позволяет поддерживать минималистичность интерьера.
Кабинет
Центральным акцентом стала стена с абстрактным рисунком, её плавные линии добавляют помещению динамику.

Кабинет получился светлым и воздушным, а благодаря нейтральной палитре его легко адаптировать под любые нужды. Сегодня это рабочее пространство, а завтра может стать уютной детской или гостевой комнатой.


Центральным акцентом стала стена с абстрактным рисунком, её плавные линии добавляют помещению динамику. Этот же ритм подхватывает асимметричный столик необычной формы, создавая интересный визуальный диалог.

Скрытые системы хранения позволили визуально расширить пространство, а тёплый деревянный пол и мягкий текстиль портьер уравновешивают современную лаконичность стен. Фактурное кресло-мешок с уютными полосочками так и манит присесть с книжкой и чашкой вкусного какао.
Молочная дверь мягко сливается со стеной цвета крем-брюле, не нарушая общую гармонию. Освещение здесь также точечное — света достаточно, а интерьер не перегружен лишними конструкциями.
Терракотовый придиванный столик и сам диван цвета молочного шоколада служат цветовыми якорями в этой спокойной светлой комнате.
Постирочная
Гардеробная совмещённая с постирочной.

Гардеробная, совмещённая с постирочной, помимо шкафов и полок для одежды дополнена вместительными встроенными полками, на которых удобно хранить белье, бытовую химию и хозяйственные принадлежности. Цвета этого помещения — бежевый и светлое дерево.


Санузел
Благодаря скрытым нишам в душевой всегда будет царить идеальный порядок. Все средства аккуратно прячутся во встроенных полочках.

Для оформления санузла мы использовали светло-серый крупноформатный керамогранит. Раковина установлена на изящной подвесной тумбе, это визуально облегчает интерьер и помогает поддерживать идеальный порядок..


На пол мы положили крупную серую плитку с едва заметным рисунком под камень. Чтобы ни одна мелочь не нарушала чистоту линий, мы встроили вдоль стены высокие шкафы до самого потолка.

Стены в душевой зоне выделены мелкой вертикальной плиткой мятно-серого цвета с рельефом, что делает интерьер более динамичным. Душевую мы оградили прозрачными перегородками: стекло не скрадывает пространство, а контрастные профили добавляют интерьеру графичность.
Благодаря скрытым нишам в душевой всегда будет царить идеальный порядок. Все средства аккуратно прячутся во встроенных полочках, чтобы ничего не нарушало чистый вид интерьера.
Мастер-санузел
Вся фурнитура серебристого цвета, поэтому она органично сочетается с окружающим пространством.

Мастер-санузел выполнен в белой и светло-серой холодной гамме. Круглое зеркало с подсветкой даёт достаточно света для уходовых процедур и смягчает строгую геометричность линий. Вертикальная белоснежная плитка на стене за раковиной добавляет помещению кристально-чистое сияние.


Пол облицован крупноформатным матовым керамогранитом. Стены частично покрыты плиткой под мрамор с мягким рисунком, а душевая зона выделена прозрачными стеклянными перегородками с чёрным металлическим профилем.

Внутри душевой кабинки расположена встроенная ниша для хранения банных принадлежностей. Душевая оборудована верхним тропическим душем и компактной ручной лейкой. Вся фурнитура серебристого цвета, поэтому она органично сочетается с окружающим пространством.
Унитаз мы выбрали идеально белый, подвесной. Он выглядит очень аккуратно, а его сиденье закрывается автоматически, плавно и бесшумно. Над унитазом расположен высокий встроенный шкаф, дверцы которого не выделяются на фоне стен.















































