Информация и галерея
- ЖК Большая семерка
- 69 м²
- 197 дней
- Современный
- Дизайн-проект
- Инженерные проекты
- Качественный ремонт
- Комплектация ремонта
- Авторский надзор
- Страхование ремонта
О проекте
Мы создавали пространство для молодой, динамичной и растущей семьи. Наши заказчики — молодые родители с двумя сыновьями. А самое главное — семья ждет третьего малыша. Поэтому мы готовили проект «на вырост».
Сегодня мы покажем наш новый проект — дизайн и ремонт квартиры площадью 60 квадратных метров, в котором стиль минимализм обрёл тёплое и уютное прочтение. Для нас этот проект стал особенным, ведь мы создавали пространство для молодой, динамичной и растущей семьи. Наши заказчики — молодые родители с двумя сыновьями. А самое главное — семья ждет третьего малыша. Поэтому мы готовили проект «на вырост».
В такой квартире пространство должно быть гибким и функциональным не только сегодня, но и через несколько лет, когда будет подрастать третий ребёнок. Поэтому система хранения спроектирована с запасом, а все используемые в интерьере материалы — практичные, безопасные и износостойкие, чтобы выдержать беготню, активные игры и творческие эксперименты троих детей.
Мы учли, что у каждого члена семьи должно быть своё личное пространство. Родителям нужна тихая зона для отдыха, а детям — просторное и функциональное место для игр и развития. Поэтому была сделана перепланировка квартиры с целью максимально расширить полезную площадь за счёт сокращения пространства коридора.
Мы отказались от идеи коридора как основной проходной зоны. Вместо этого мы интегрировали часть его площади в основные комнаты, создав открытое, светлое и логически связанное пространство для жизни. Общесемейная зона (совмещённая кухня-гостиная) стала ярким многофункциональным центром для общения и совместных занятий. Родительская спальня выполнена в более спокойной умиротворяющей палитре, чтобы она могла стать настоящим убежищем для уставших взрослых.
В основе дизайн-проекта лежит философия современного минимализма, переосмысленного для жизни большой семьи. Мы стремились создать спокойное и тактильно приятное пространство, где ничто не отвлекает от главного: комфорта и общения близких людей.
Мы сознательно отошли от стерильности и холодности, которые часто ассоциируются с минимализмом. Вместо этого мы создали «тёплый минимализм», где главную роль играют не декоративные элементы, а сами материалы, их текстура и игра света. Уют создается за счёт акцентных цветовых пятен, текстиля, тёплых тонов и продуманного сценарийного освещения.
Мы выдержали всю квартиру в единой спокойной натуральной палитре, построенной на нюансах и оттенках. База — нейтральные молочные и бежевые тона. Акценты — более глубокие природные оттенки и чёрные детали. Мы гордимся тем, что нам удалось создать интерьер-хамелеон, который идеально адаптируется к жизни большой семьи. Он одновременно спокойный, практичный и гармоничный. Здесь каждое помещение логически связано с другими, создавая эстетичную и удобную среду обитания.
Видео
Бывает лучше один раз увидеть, чем несколько раз услышать. Именно по этой причине мы подготовили для вас видео-обзор по этому объекту.
Подписывайтесь на наши каналы, чтобы быть в курсе новых интересных интерьеров:
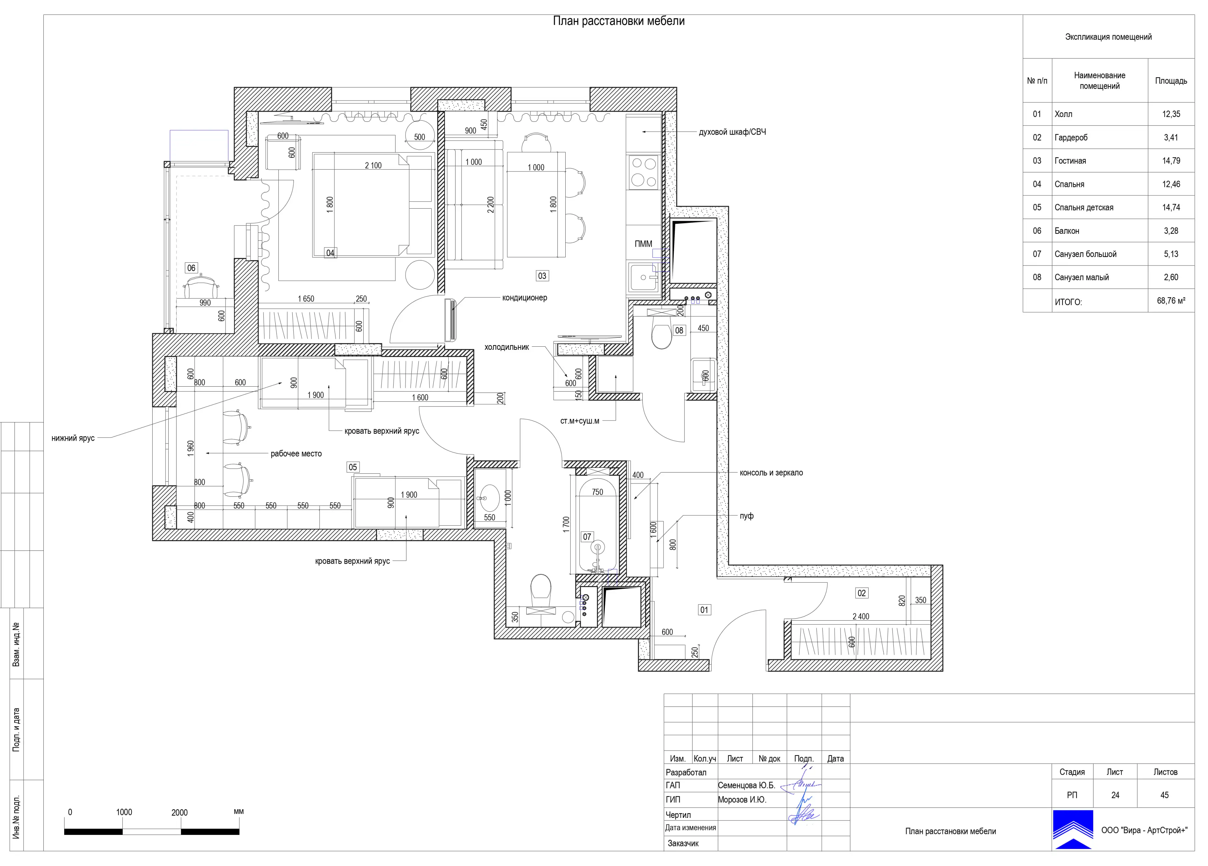
Планировка

Прихожая и коридор
Имитация натурального камня с прожилками и мягкими разводами добавляет интерьеру глубину и благородную сдержанность.

Прихожая — зона с повышенной проходимостью, поэтому на пол мы уложили светлый итальянский керамогранит. Он был выбран за свою практичность и эстетику. Имитация натурального камня с прожилками и мягкими разводами добавляет интерьеру глубину и благородную сдержанность. Большое зеркало визуально расширяет пространство и позволяет разглядеть себя в полный рост. Вместо стандартной тумбочки мы установили подвесной столик с ящиками, который отлично подходит для хранения мелочей и совсем не занимает место. На рифлёном бархатном пуфике, выполненном в тон столику, очень удобно и сидеть, и переобуваться. Чтобы не дробить пространство, мы выбрали алюминиевые распашные двери скрытого монтажа стильного серо-бежевого цвета, которые органично сочетаются с оттенком стен. Чёрные дверные ручки изготовлены из высококачественной латуни. Все ручки нажимные, что очень удобно — если руки заняты, то дверь можно открыть даже локтем. Чёрный откос входной двери и светильники лаконичных форм подчёркивают строгую геометрию пространства.




Гардеробная
Поскольку семья большая, мы установили много полочек для обуви.

Из прихожей можно попасть в гардеробную. Она компактная, но очень удобная. Верхнюю полку мы превратили в открытую антресоль, куда можно сложить чемоданы и другие редко используемые вещи. Поскольку семья большая, мы установили много полочек для обуви. В качестве освещения используется светодиодная подсветка. Она дает рассеянный дневной свет, который не бьёт по глазам и не искажает цвета.


Кухня-гостиная
Полы с выразительной, приятной на ощупь текстурой дерева задают основную тёплую тональность всему интерьеру.

Пройдя до конца коридора, мы попадаем в кухню-гостиную. Сюда же переходят шпонированые настенные покрытия из холла, плавно заканчиваясь кухонным гарнитуром. Места хранения скрыты за панелями, что позволило нам не перегружать интерьер. На уровне пола зона кухни-гостиной отделяется другим напольным покрытием. Здесь уложена дубовая инженерная доска в палубной раскладке. Полы с выразительной, приятной на ощупь текстурой дерева задают основную тёплую тональность всему интерьеру. А их ультраматовая шёлковая поверхность отличается повышенной износостойкостью и неприхотлива в уходе.


В гостиной достаточно посадочных мест для хозяев и гостей дома. Мягкий диван припылённо-синего цвета прекрасно сочетается с общим колоритом интерьера, но при этом является ярким цветовым акцентом. Стулья цвета слоновой кости и лаконичный стол не бросаются в глаза, но при этом очень удобны. Над столом мы разместили подвесной светильник, который помог нам выделить обеденную зону и придать ей уют.


Фартук в кухне-гостиной мы оформили керамогранитом с расцветкой под мрамор. Чередование остеклённых рифлёных фасадов с подсветкой придало помещению дополнительную глубину. Вся мебель и техника — встроенные, что обеспечивает лаконичность линий и позволяет по максимуму использовать свободное место.
Зона отдыха получилась очень уютной и цельной. Дверь в спальню родителей практически не выделяется на фоне стены и совсем не оттягивает на себя внимание. Для хранения посуды, сувениров и других бытовых мелочей мы установили узкий шкаф до потолка со стеклянной витриной. Поскольку стены и мебель здесь однотонные, для столешницы мы выбрали мраморную текстуру, которая красиво сочетается с деревянным рисунком кухни и пола.
Спальня
Основной свет в помещении — светодиодные встроенные светильники на потолке. Они дают достаточно света, но при этом не перегружают пространство.

В спальню родителей можно попасть из гостиной. Она оформлена тоже в бежевых тонах, но немного темнее, чем детская. На полу здесь также инженерная доска, которая единым полотном проходит через жилые комнаты, объединяя их в единую гармоничную зону. На стильных круглых тумбочках возле кровати можно с комфортом расположить гаджеты, книги или косметику. Светильники мы выбрали подвесные, что позволяет не занимать место на самих тумбочках.


Встроенный шкаф без декора и дверных ручек совсем не выделяется на общем фоне и визуально воспринимается как продолжение стены. Возле выхода на лоджию мы расположили уютное кресло-качалку цвета слоновой кости, в котором будет очень уютно отдыхать или читать перед сном. Открытые полочки с подсветкой в торцевой части шкафа можно использовать как витрину для сувениров и дополнительный источник освещения.


Основной свет в помещении — светодиодные встроенные светильники на потолке. Они дают достаточно света, но при этом не перегружают пространство. Дополнительный свет и декоративный элемент — светодиодная подсветка, которая отделяет текстурированую панель цвета молочного какао от основной стены.


Возле кровати мы положили светлый ковёр. Он выделяет зону отдыха, к тому же на его мягкий ворс очень приятно становиться босыми ногами. Из спальни можно выйти на лоджию. Мы утеплили её и организовали место, где можно спокойно поработать или поиграть на компьютере, уединившись от остальных членов семьи.
Детская
Кровать мы сделали двухъярусной — такая конструкция экономит место и очень нравится мальчишкам.

Теперь давайте посмотрим на детскую спальню. В семье подрастают двое мальчиков, поэтому рабочее пространство рассчитано на двоих. Цвета спальни — молочный, бежевый и светло-серый. Кровать мы сделали двухъярусной — такая конструкция экономит место и очень нравится мальчишкам. Верхний ярус защищён деревянными рейками. Шкаф для одежды — встроенный. В нижнем ярусе шкафа располагаются ящики для игрушек.


Рабочее место мы сделали симметричным, чтобы каждый ребёнок имел собственный ящик и полочки для книг и канцелярских принадлежностей. Чтобы оставить в комнате достаточно свободного пространства для игр, для хранения вещей мы установили высокий встроенный шкаф. Стулья мы выбрали эргономичные — они не утомляют спину, позволяя сохранять хорошую осанку. Столешницу встроили в подоконник. Это решение позволяет рационально использовать и место, и дневной свет.




Балкон


Санузел большой
Вместо стандартной раковины мы установили глубокую раковину-чашу — это решение смотрится более современно.

Полы и стены санузлов мы оформили тем же светлым керамогранитом, что и пол в прихожей. Сквозное использование материалов стирает визуальные границы между помещениями и создаёт ощущение целостности и простора. К тому же этот приём помог нам визуально расширить небольшие санузлы. В обоих санузлах установлены безободковые подвесные унитазы. Итальянская сантехника отличается исключительным качеством и надёжностью, а подвесная конструкция гораздо удобнее при уборке.


Вместо стандартной раковины мы установили глубокую раковину-чашу — это решение смотрится более современно. Под столешницей мы разместили выдвижные ящики и полочку для банных принадлежностей. Зеркало практически до потолка дарит дополнительное ощущение пространства. Сверху и снизу зеркало оформлено светодиодной подсветкой дневного света. Полочку для уходовых средств мы сделали встроенной и скрыли за занавеской. Её совсем не видно со стороны, а водонепроницаемая подсветка позволяет рассмотреть всё содержимое, находясь в ванне. Если оставить включённой только подсветку, получится идеальное освещение для принятия расслабляющей ванны.

Выбирая душевую лейку, мы остановились на тропическом душе чёрного цвета со стильной текстурой «брашированный хром». Этот материал благородно выглядит и не собирает на себя капли и отпечатки пальцев. В тон душу подобраны смеситель для раковины и остальная сантехническая фурнитура.
Санузел малый
Санузел спланировали и как постирочную, разместив в нём стиральную и сушильную машины.

При выборе раковины для малого санузла мы остановились на квадратной форме, которая более органично смотрится в компактном помещении. Свободного места здесь мало, поэтому ручка одного из ящиков тумбочки играет роль вешалки для полотенец. Санузел спланировали и как постирочную, разместив в нём стиральную и сушильную машины. Для хранения белья и бытовой химии мы предусмотрели большой встроенный шкаф над сушилкой.




















































