Информация и галерея
- ЖК Дом Достижение
- 64 м²
- 215 дней
- Современная классика
- Дизайн-проект
- Инженерные проекты
- Качественный ремонт
- Комплектация ремонта
- Авторский надзор
- Страхование ремонта
О проекте
Интерьер может гибко подстраиваться под разные жизненные сценарии, сохраняя при этом эстетическую гармонию и уют.
Cегодня мы раскроем вам секрет гармонии между строгой классикой и динамичной жизнью в IT-ритме. В этом выпуске вы увидите, как рождался интерьер для пары топ-менеджеров, дни которых расписаны по минутам, а вечера принадлежат друг другу и двум очаровательным собакам.
Мы соединили века: там, где стены говорят на языке древних архитекторов, технологии отвечают на языке программирования. За изящными молдингами скрывается умный дом, а античные пропорции служат рамкой для цифровой реальности. Здесь каждая комната стала многофункциональным хабом: в спальне можно не только отдыхать, но и работать, кабинет трансформируется в спальную зону, а в гостиной можно как проводить мозговые штурмы, так и развлекаться с питомцами. Этот проект доказывает, что неоклассика может быть невероятно гибкой и отлично подходит для современного ритма жизни.
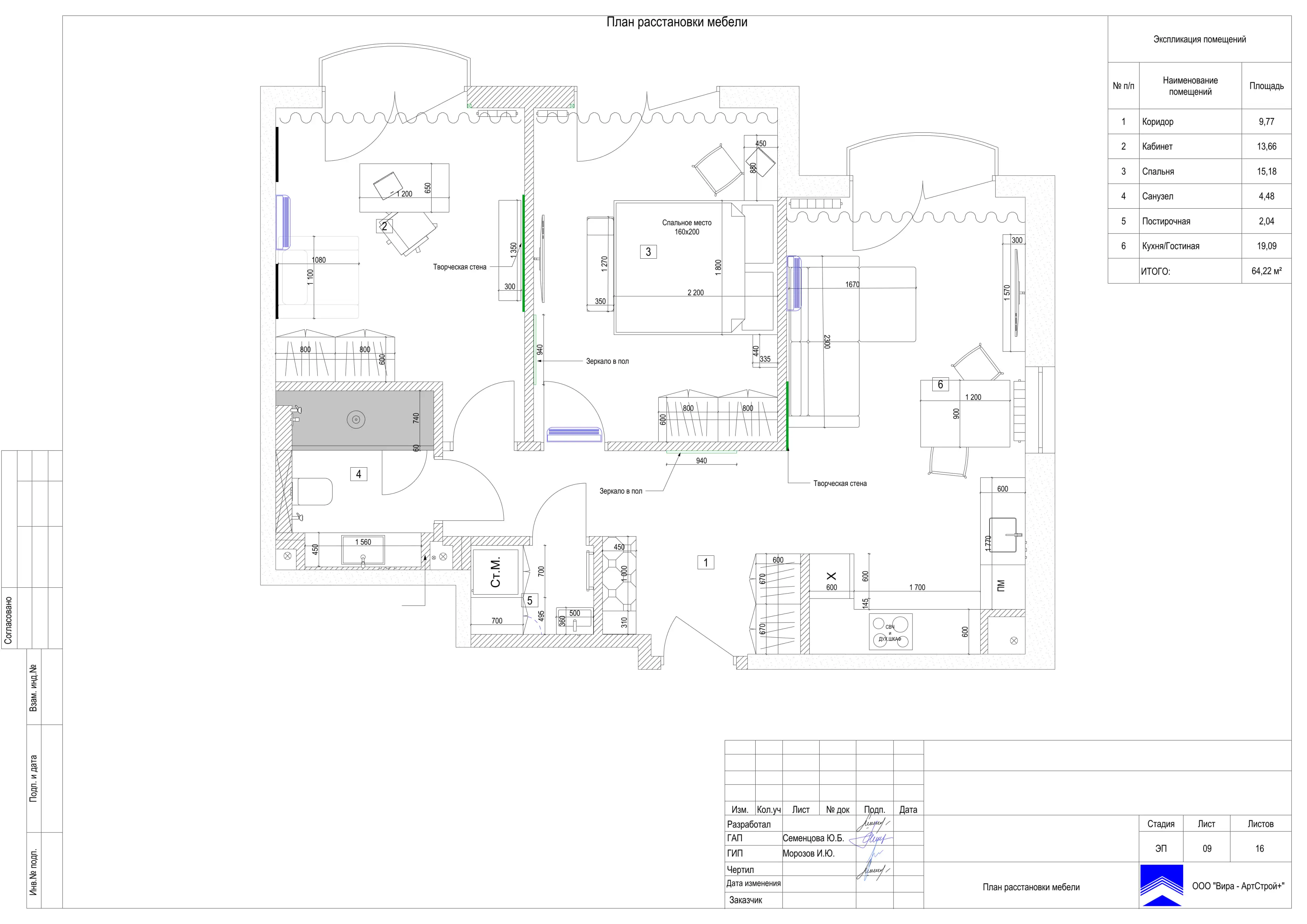
Планировку от застройщика мы не трогали, но сделали квартиру максимально функциональной. Мы разделили помещения на две многофункциональных комнаты, в каждой из которых можно отдыхать и работать, и одно общее пространство – кухню-гостиную. В спальне оборудовали рабочий уголок, а кабинет легко превращается во вторую спальню, если кто-то засиделся за работой, чтобы каждый из супругов мог трудиться, не мешая другому.
Для четвероногих членов семьи мы предусмотрели умное решение – компактную раковину в постирочной,где удобно будет мыть лапы после прогулок.
В кабинете и гостиной мы выделили творческие стены, позволяющие размещать фотографии, рабочие заметки и вдохновляющие идеи, наполняя пространство личной энергетикой.
Все зоны объединены тщательно продуманной эргономикой и визуальными связями, создающими ощущение целостности. Интерьер может гибко подстраиваться под разные жизненные сценарии, сохраняя при этом эстетическую гармонию и уют.
Стены и мебель мы украсили лаконичными молдингами, а также добавили яркие акценты, которые не нарушают гармонию, а ведут с ней диалог, оживляя интерьер, но не перегружая его. Пространство получилось цельным, но не статичным. Каждая комната сохраняет индивидуальность, объединённая общим языком форм, цвета и вниманием к деталям.
Видео
Бывает лучше один раз увидеть, чем несколько раз услышать. Именно по этой причине мы подготовили для вас видео-обзор по этому объекту.
Подписывайтесь на наши каналы, чтобы быть в курсе новых интересных интерьеров:
Планировка

Прихожая и коридор
Лаконичная имитация лепнины, рельефные дверные коробки и тонкие молдинги работают как изящные акценты: не кричат о себе, но создают ощущение продуманности и стиля.

Прихожую мы объединили с кухней-гостиной. Отсутствие межкомнатых дверей и одинаковый светлый керамогранит на полу придают пространству одновременно и целостность, и ощущение простора.


Большое зеркало напротив входа также визуально расширяет пространство, придавая ему дополнительную глубину.


Второе зеркало расположено над изящной полочкой для ключей и мелочей. Вместе с пуфиком и акцентной стеной с фреской оно создаёт удобный и законченный ансамбль.


Белый встроенный шкаф до потолка с тонкими молдингами одновременно решает практические задачи и задаёт стилистику всего пространства. Золотистые ручки, как ювелирные акценты, подчеркивают статусность интерьера, созвучную с эстетикой неоклассики.
Тонкая чёрная окантовка входной двери контрастирует с лаконичными светлыми оттенками стен, придавая интерьеру завершённость.
Лаконичная имитация лепнины, рельефные дверные коробки и тонкие молдинги работают как изящные акценты: не кричат о себе, но создают ощущение продуманности и стиля. В этом и есть суть неоклассики – интерьер получился элегантным, но не пафосным, утончённым, но не вычурным.
Кабинет
Раскладное кресло – место, где можно поспать, если заработался допоздна, или оставить ночевать припозднившегося гостя.

Инженерная доска на полу кабинета и лаконичные молдинги задают элегантную базу. Светло-бежевую гамму нарушают сочные акценты – приглушённо-синее кресло, дверцы шкафа и декоративная панель на стене. Интерьер выглядит стильно, но не пафосно, работать здесь одно удовольствие.


Сочетание синего и бежевого цветов в портьерах создает сдержанный, но выразительный контраст. Раскладное кресло – место, где можно поспать, если заработался допоздна, или оставить ночевать припозднившегося гостя.


Золотистые бра с изящными линиями подчеркивают элёгантность интерьера, добавляя ему глубину и уют. Светильник на рабочем столе – более лаконичный, настраивающий на рабочий лад.


Линейные светодиодные потолочные светильники совсем не бросаются в глаза, но при этом дают достаточно света.
Молдинги на дверцах шкафа практически такие же, как на стенах, поэтому шкаф буквально растворяется в стене. Этот приём позволил нам сохранить целостность и ритмичность интерьера, но при этом добавить ему динамику за счёт контрастного цвета.
Напротив кресла располагается мягкая настенная панель, на которую можно прикреплять фотографии и записи по рабочим процессам.
Спальня
Рядом со спальным местом находится второй рабочий стол, чтобы хозяева квартиры могли располагаться по отдельности и не мешать друг другу.

В спальне мы добавили смелые акценты: насыщенная красная стена и выразительная фреска за изголовьем мгновенно преображают пространство. В сочетании с нейтральным фоном красный создаёт интенсивный, но не утомительный контраст, помогая переключиться с рабочего ритма на личное общение.


Шторы здесь, как и в остальных комнатах, изготовлены на заказ, чтобы оттенки совпадали с акцентными цветами помещения. Этот же оттенок повторяется в текстиле, рамках картин и обивке кресла.


Рядом со спальным местом находится второй рабочий стол, чтобы хозяева квартиры могли располагаться по отдельности и не мешать друг другу. Над рабочим местом мы расположили шкаф с подсветкой для хранения документов или личных вещей.

Встроенный шкаф на тон темнее стен с молдингами в цвет фасадов сохраняет цельность, но читается объёмно. Рядом располагается акцентная стена с белыми молдингами, что добавляет пространству контраст и ритм.
Пол из инженерной доски – разумный компромисс между эстетикой и практичностью. Материал сохраняет теплоту и живую текстуру натурального дерева, но при этом обладает повышенной стойкостью к истиранию и прост в уходе.
Благодаря зеркалу во всю стену комната кажется больше и светлее. Телевизор мы оформили молдингами, получилось стильно и аккуратно: техника есть, но она не режет глаз.
Санузел
Полностью стеклянные дверцы душевой кабины буквально растворяют границы, делая пространство светлее и визуально просторнее.

Над раковиной в ванной комнате мы разместили зеркало до потолка, которое визуально расширяет пространство. Несколько вариантов подсветки позволяют играть со световыми сценариями, создавая нужную обстановку.


Встроенная в столешницу раковина превращает функциональный узел в целостную композицию. Поверхность абсолютно гладкая и монолитная, а это значит, что уход за ней сводится к простому движению губки. Стильный акцент – рельефные дверцы тумбочки.


Подвесной унитаз со скрытой инсталляцией занимает минимум пространства. К тому же зона вокруг него становится максимально доступной для уборки.

Полностью стеклянные дверцы душевой кабины буквально растворяют границы, делая пространство светлее и визуально просторнее. Отсутствие заметных контуров и фурнитуры превращает душевую зону в часть общего интерьера, а не в обособленную конструкцию.
Подсветка под встроенной тумбой для раковины создает эффект парящей мебели, визуально увеличивая площадь санузла. Ночью она может работать как деликатный ночник, позволяя ориентироваться без включения основного света.
Лейка душа с чёткими графичными линиями продолжает общий замысел, подчёркивая лаконичность стиля. Встроенная ниша с подсветкой скрывает из поля зрения уходовые средства и подсвечивает пространство душевой уютным светом.
Постирочная
Поскольку постирочная расположена рядом со входом, здесь установлена раковина для того, чтобы можно было мыть собак.

Постирочная выдержана в светлых тонах с чёрными акцентами. Керамогранит здесь,как и в основном санузле, чуть темнее, чем в остальных помещениях. Поскольку постирочная расположена рядом со входом, здесь установлена раковина для того, чтобы можно было мыть собак.


Ровные линии светлых встроенных шкафов до потолка сочетаются с тёмными круглыми дверцами стиральной и сушильной машин. Это создаёт современный геометричный акцент в стиле ар-деко, который интересно контрастирует с общим интерьером квартиры.

Строгие прямые линии серебристого полотенцесушителя стали ещё одним выразительным акцентом. Мы отказались от привычной подсветки по периметру зеркала, заменив её на статичный прожектор, который создаёт идеальное бестеневое освещение.
Круглое зеркало смягчает строгость квадратной раковины, а чёрная подвеска-ремень перекликается с другими тёмными акцентами в помещении. Лаконичный смеситель строгой формы завершает композицию, подчёркивая чистоту линий и выверенность пропорций.
Кухня-гостиная
Угловой диван отлично экономит пространство: вместо нескольких кресел – один продуманный модуль.

Хотя кухня-гостиная и коридор не разграничены межкомнатными дверями, мы расставили мебель так, чтобы создавать ощущение приватности и уюта. Нам удалось найти баланс между открытостью для общения и интимностью личного пространства, при котором каждый сможет найти для себя комфортный уголок.


Диван сочного цвета молодой травы в гостиной – свежий акцент, который оживляет пространство. Над ним ещё одна творческая стена для заметок, записок и фото, оформленная молдингами.


Телевизор также оформлен молдингами, а римская штора с цветочным орнаментом дарит помещению расслабленное настроение.


Обеденный стол мы разместили напротив окна с видом на город. Он стоит сразу возле кухни, чтобы было удобно приносить еду.


Кухонные фасады тоже украшены молдингами, так гарнитур легко вписался в общий стиль неоклассики. Мраморный оттенок фартука и столешницы перекликается с рисунком керамогранита на полу.


Угловой диван отлично экономит пространство: вместо нескольких кресел – один продуманный модуль. А в углу можно организовать уютное «гнездо» с пледами и подушками – идеальное место для вечернего отдыха.


Большой полукруглый торшер создаёт уют в зоне отдыха, а его округлая ножка смягчает строгую геометрию молдингов.

Кондиционер бежевого цвета в окружении молдингов перекликается с творческой стеной и совсем не портит общую стилистику помещения.
На полу в кухне-гостиной мы положили устойчивый к влажности и механическим повреждениям керамогранит. Мы не стали разделять обеденную зону и зону отдыха напольными покрытиями, так пространство получилось более цельным.
Верхние шкафы кухонного гарнитура мы оставили белыми, чтобы избежать скучного дробления пространства на равные прямоугольники.
Угловая кухня использует «мёртвый» угол, который в линейной композиции просто пустует за торцом мебели. Конструкция образует «рабочий треугольник», позволяющий не делать лишних шагов во время готовки.


























































