Заказчики-супруги, не найдя соответствующее их требованиям жилье, приобрели две смежные квартиры. Их нужно было объединить в одну.
При проектировании интерьера хочется сделать его максимально технологичным, комфортабельным, наполненным индивидуальностью и при этом просторным. Как добиться в интерьере сбалансированного минимализма, разберём на примере проекта для квартиры площадью 109 квадратных метров в жилом комплексе «Дом Серебряный Бор».
Заказчики-супруги, не найдя соответствующее их требованиям жилье, решили создать квартиру мечты сами и приобрели две смежные квартиры. Их нужно было объединить в одну. Для размещения гостей на ночь нужна была отдельная комната. Также пара хотела обустроить два санузла.
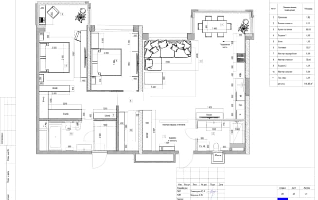
Трудностью при объединении квартир стало то, что разделявшая их стена была несущей, и её полный демонтаж был невозможен. Поэтому согласовали с вышестоящими инстанциями демонтаж небольшого участка несущей стены посередине между квартирами. Таким образом между ними возник коридор.
Вход в образовавшуюся квартиру оставили только с правой стороны.
Чтобы обустроить жилище мечты заказчиков, все не несущие перегородки убрали. Для более рационального использования пространства лоджии объединили с примыкающими к ним комнатами и дополнительно утеплили. Почти все стандартные окна заменили на панорамные, во всю стену.
Коридор между двумя частями квартиры переоборудовали под холл. С его помощью соединили в новой планировке два крыла квартиры.
Левое крыло сделали приватным. Здесь разместили гостевую комнату и мастер-спальню с собственными гардеробной и санузлом.
Чтобы перемещаться из холла в комнаты было комфортнее, техпомещение, мастер-спальню и гостевую комнату от холла отделили глухими раздвижными дверями. Также этот приём позволил рациональнее использовать площадь каждого соединённого с холлом помещения и сохранить в них приватность обстановки.
Правое крыло с зонами общего пользования от холла отделили раздвижной стеклянной дверью. Так в холле будет светлее, и при этом в него и приватную часть квартиры будет проникать меньше шума и запахов.
В правой части квартиры обустроили прихожую, гостевую ванную комнату и кухню-гостиную. Прихожую и кухню-гостиную перегородками разделять не стали. Так визуально каждая из зон будет казаться больше, и в прихожую будет проникать больше света.
Потолки во всей квартире выровняли гипсокартоном. Установка гипсокартона позволила равномерно обеспечить каждый уголок квартиры регулируемым освещением и скрыть тяжеловесные карнизы штор.
Интерьер квартиры по задумке заказчиков должен был окутывать уютом, отражать индивидуальность хозяев и при этом состоять из минимума деталей. Чтобы добиться такого сбалансированного минимализма, в качестве стилевого решения выбрали современный стиль с элементами экостиля.
Благодаря большим окнам, светлой отделке, обилию зеркал и множеству разнообразных светильников наш интерьер получился лёгким, воздушным и пронизанным светом.
Чёрно-белая комбинация элементов интерьера вносит в прихожую элегантные нотки.
Динамику входной зоне придают чёрные детали и напольный узор «ёлочка». Чёрно-белая комбинация элементов интерьера также вносит в прихожую элегантные нотки.
Чтобы приводить себя в порядок перед выходом было удобнее, в дополнение к накладным светильникам оснастили зону с зеркалом подсветкой.
Ванная
Благородные нотки интерьеру ванной добавляют керамогранит под мрамор и элементы из дерева.
Чтобы стиральная и сушильная машины гармонично смотрелись в интерьере ванной, их встроили в нишу одного из хозяйственных шкафов.
Благородные нотки интерьеру ванной добавляют керамогранит под мрамор и элементы из дерева. Светло-жёлтый керамогранит в сочетании с подсветкой потолка также зрительно увеличивает помещение. Ещё с помощью подсветки и дерева наполнили ванную уютом и теплом.
Кухня-гостиная
Лоджию, ставшую с кухней-гостиной единым пространством, переоборудовали под обеденную зону.
Зоне гостиной утончённое звучание придаёт настенное панно с текстурой под оникс. Помимо него, сдержанный интерьер гостиной оживляют узоры инженерной доски и ковра, вкрапления коричнево-оранжевого цвета, чёрные детали, растительный декор.
В вечернее время осветить гостиную позволят торшер, подвесной светильник и единая для всей кухни-гостиной трековая система.
Чтобы гостиная вмещала больше гостей, диван для неё подобрали угловой. После посиделок его также можно разложить и превратить в дополнительное спальное место для гостей.
Кроме трековых светильников, связующим звеном между зонами кухни и гостиной стал биокамин в ТВ-зоне. Он наполняет помещение особым уютом и элегантностью. Подчеркнули значимость этой зоны и сделали интерьер кухни-гостиной ещё более нарядным ещё одним панно из оникса.
Рядом с камином вдоль стены протянули белоснежный кухонный гарнитур. Расширили полезную площадь кухни выдвижным столиком контрастного чёрного цвета.
Чтобы кухня-гостиная была более просторной, лоджию, ставшую с ней единым пространством, переоборудовали под обеденную зону.
По-домашнему уютной обстановку здесь делают коричнево-бежевые элементы, текстиль, растительный декор. Элегантность этой зоне добавляют изящные подвесные светильники. Огромные панорамные окна наполняют всё помещение воздухом и светом.
Гостевая
Зеркала в сочетании с белыми стенами и подсветкой потолка работают на зрительное увеличение пространства.
В гостевой комнате для бо́льшего удобства гостей, кроме зоны отдыха, уместили шкаф для одежды, ТВ-зону и будуарный уголок.
Зеркала в сочетании с белыми стенами и подсветкой потолка работают на зрительное увеличение пространства.
Мастер-гардеробная
Тёмное стекло шкафчиков гардеробной скрывает содержимое полок от чужих глаз.
Благодаря тому, что она является проходным помещением, из холла и санузла в спальню будет проникать меньше шума.
Тёмное стекло шкафчиков гардеробной делает в сочетании с подсветкой интерьер более воздушным и одновременно скрывает содержимое полок от чужих глаз. Кроме подсветки, уют в гардеробную вносит инженерная доска.
Мастер-спальня с лоджией
Объединённую с мастер-спальней лоджию превратили в рабочий уголок.
На это работают контрастное сочетание элементов и обилие дерева. Уюта также добавили текстилем и сухоцветами.
Более динамичной обстановку сделали с помощью металлических профилей, зеркал, чередующихся с панелями из тёмного дерева, напольного узора и чёрных деталей.
Зеркала, профили, панорамные окна, светлая отделка основных стен и подсветка потолка визуально расширяют спальню.
Объединённую с мастер-спальней лоджию превратили в рабочий уголок. Создать на нём более приватную обстановку позволят шторы. Эту зону тоже наполнили уютом за счёт дерева, зелёного кресла и растительного декора.
Мастер-санузел
Главную мечту заказчика – небольшую сауну украсили плиткой из гималайской соли.
Для более рационального использования площади мастер-блока мастер-санузел от гардеробной отделили раздвижной дверью.
Здесь обустроили главную мечту заказчика – небольшую сауну. Одну из её стен украсили плиткой из гималайской соли. Она будет очищать воздух и насыщать его укрепляющими иммунитет микроэлементами.
Динамику интерьера санузла задают сочетание двух видов керамогранита. Керамогранит с текстурой под мрамор наполняет санузел благородным звучанием. Керамогранит с мелкой мозаикой акцентно выделяет зону с ванной. Комбинация в отделке этих двух видов бежевого керамогранита также работает на зрительное увеличение санузла.