Квартира площадью 63 квадратных метра в жилом комплексе “Джаз” принадлежит семейной паре. Эту квартиру супруги приобрели, чтобы организовывать дружеские вечеринки. Двухуровневую квартиру с выходом на открытую террасу наши дизайнеры предложили оформить в стиле лофт. Создать атмосферу старого промышленного здания помогли современные материалы с эффектом ржавчины, имитацией бронзы и бетона. Сложная задача стояла перед нашими инженерами, и они прекрасно с ней справились. Необходимо было установить пассажирский лифт и разработать систему инженерных коммуникаций для санузла на втором уровне.
В результате на первом уровне спланировали прихожую с гардеробной, большую гостиную с кухней и санузел. На втором уровне, перед выходом на террасу, организовали зону отдыха и разместили компактный санузел.
Видео
Бывает лучше один раз увидеть, чем несколько раз услышать. Именно по этой причине мы подготовили для вас видео-обзор по этому объекту.
Подписывайтесь на наши каналы, чтобы быть в курсе новых интересных интерьеров:
В прихожей часть стен покрыли декоративной штукатуркой под бетон. Для акцентной стены выбрали стеновые панели с имитацией ржавого металла. Так как прихожая соединяется с гостиной, для одежды и обуви спланировали гардеробную. Вход в неё скрывает зеркальная дверь. Этот приём раздвигает узкое пространство и решает утилитарную функцию.
1 этаж Кухня-гостиная
Основную часть комнаты занимает чилаут зона. Угловой диван и кресло формируют обособленное пространство.
Просторная комната с двумя большими окнами досталась гостиной, совмещённой с кухней. Стены здесь покрыли декоративной штукатуркой. На пол уложили керамогранит Керама Марацци с имитацией стали, покрытой ржавчиной.
Основную часть комнаты занимает чилаут зона. Угловой диван и кресло формируют обособленное пространство. Дополнительно эту часть комнаты выделили с помощью акцентной вставки на полу. Керамогранит с эффектом ковра контрастирует с более тёмными оттенками и освежает палитру комнаты.
Чтобы сохранить ощущение свободного пространства, дизайнеры подобрали диван с низкой спинкой. Акцент сместили на журнальный стол и кресло. Эта пара – яркие представители стиля лофт. Каркас из металла, простая форма, потёртый, грубоватый вид создают аутентичную атмосферу старого цеха. Сделать обстановку более гостеприимной и уютной мы решили с помощью камина. Для этого выбрали подвесную модель круглой формы, как противовес угловатости остальной мебели. Постеры в рамах выставлены на полу, что создаёт ассоциацию с художественной мастерской. Это отсылка к истории возникновения лофтов, которые становились и жильём и мастерской для творческих людей.
Оборудовать кухню наши дизайнеры решили в нише рядом со входом. Чтобы интегрировать её в общее пространство, выбрали комбинацию фасадов под бронзу и бетон. Для фартука в рабочей зоне предложили вариант с раздвижными дверцами, за которыми скрываются аксессуары и техника. Это решение помогает сохранить визуальную чистоту в интерьере и замаскировать кухню. Холодильник сместили в пространство под лестницей.
Зону столовой спланировали у окна. Обеденную группу, стеллаж и винный холодильник объединяет лаконичный дизайн. Выверенная геометрия упорядочивает пространство и при этом оставляет ощущение простора.
Систему освещения наши дизайнеры разрабатывали под общую концепцию интерьера. Чтобы подчеркнуть потолочные балки, использовали ЛЕД-ленту. Границы кухни выделили линейным светильником, встроенным в потолок. Для контраста над обеденным столом расположили хрустальную люстру.
1 этаж Санузел
В серые стены и пол под камень врывается кусочек тропического леса в виде панно во всю стену слева от входа.
На первом этаже спланировали санузел с душевой. Для стен и пола выбрали керамогранит итальянской фирмы Керама Марацци. В серые стены и пол под камень врывается кусочек тропического леса в виде панно во всю стену слева от входа. Решение дизайнеров сделать яркий акцент преобразило аскетичный интерьер. Чтобы добавить в палитру тёплых оттенков, мы выбрали покрытие для двери под бронзу.
С одной стороны от входа расположили стиральную машину и тумбу с раковиной. С другой — душевую кабину. Чтобы сохранить объём помещения и не перегораживать панно, установили ограждение из прозрачного стекла.
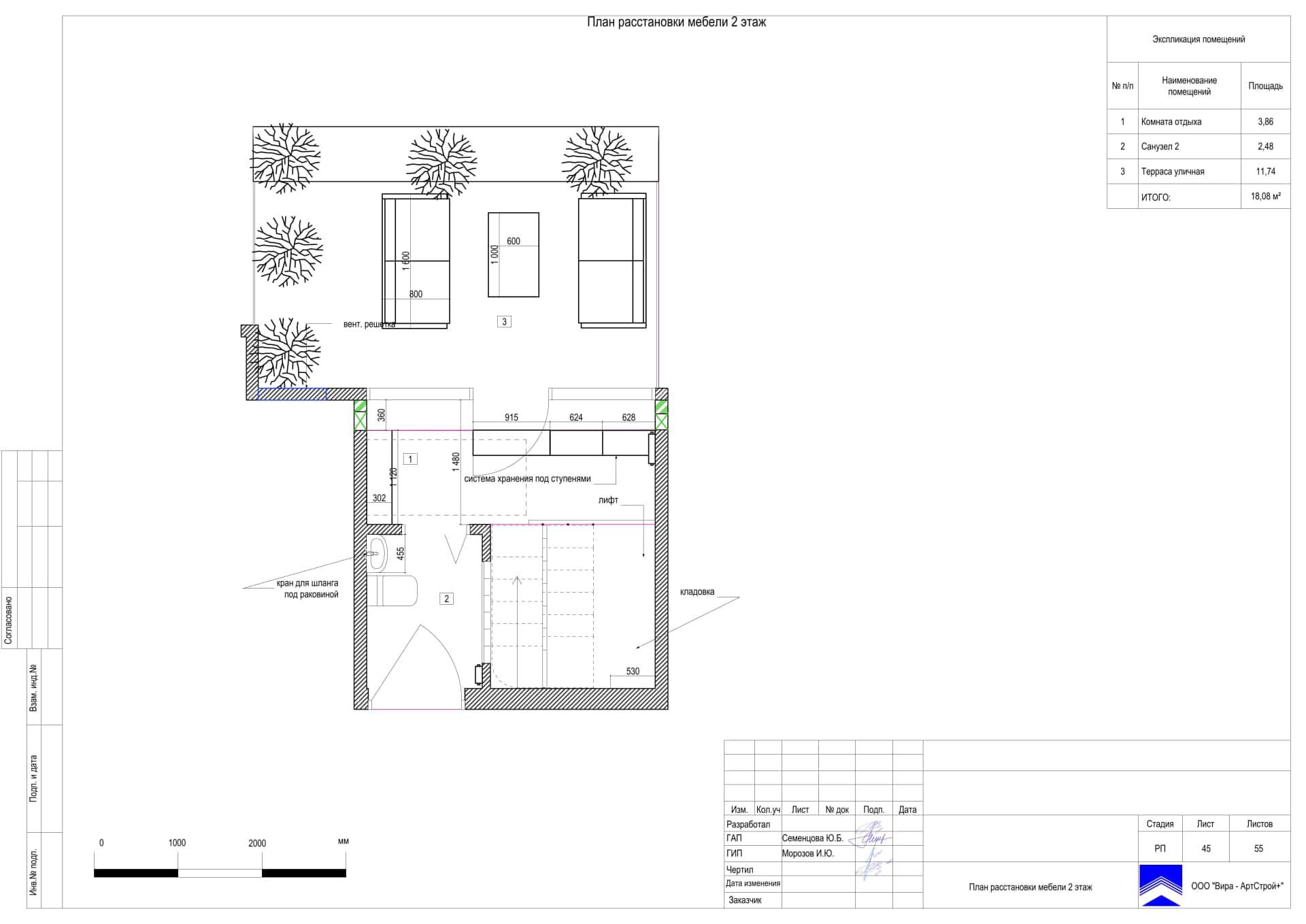
2 этаж Комната отдыха
Аутентичность обстановке добавили с помощью встроенного светильника с эффектом разлома в стене.
На второй уровень ведёт лестница. Ступени отделали тем же керамогранитом, что и пол в гостиной. Прозрачное ограждение и перила из металла сделали лестницу логичным продолжением гостиной. Для дополнительного комфорта предусмотрели пассажирский лифт.
Пространство второго уровня начинается с комнаты отдыха. Для отделки стен и потолка здесь использовали те же материалы, что и в гостиной. У окна расположили скамью с ящиками для хранения и мягкими подушками. Аутентичность обстановке добавили с помощью встроенного светильника с эффектом разлома в стене. Особый шарм интерьеру придают люстра с хрустальными подвесками и стена из стеклоблоков.
2 этаж Терраса
Ширма из живых растений создаёт ощущение, что находишься на лоне природы.
Открытую террасу мы предложили оформить как зелёный оазис для отдыха. В центре установили очаг, чтобы любоваться открытым огнём, сидя на диванах. Ширма из живых растений создаёт ощущение, что находишься на лоне природы. Получилось атмосферное пространство для летних встреч с близкими.
Чтобы визуально расширить маленькое помещение, часть стены выложили стеклоблоками.
За дверью с покрытием под бронзу находится компактный санузел. Здесь расположили раковину и унитаз. Чтобы визуально расширить маленькое помещение, часть стены выложили стеклоблоками.