Перепланировка и возведение антресольного этажа отвечают всем необходимым законодательным требованиям.
К нам обратилась владелица квартиры с интересной планировкой с просьбой разработать ей дизайнерский проект так, чтобы максимально использовать существующее пространство с высокими потолками и получить в итоге функциональный уютный интерьер.
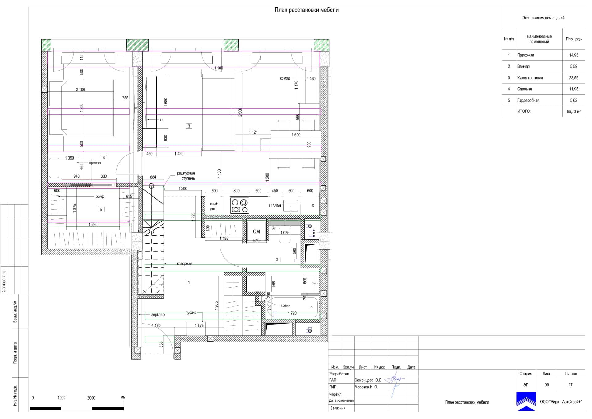
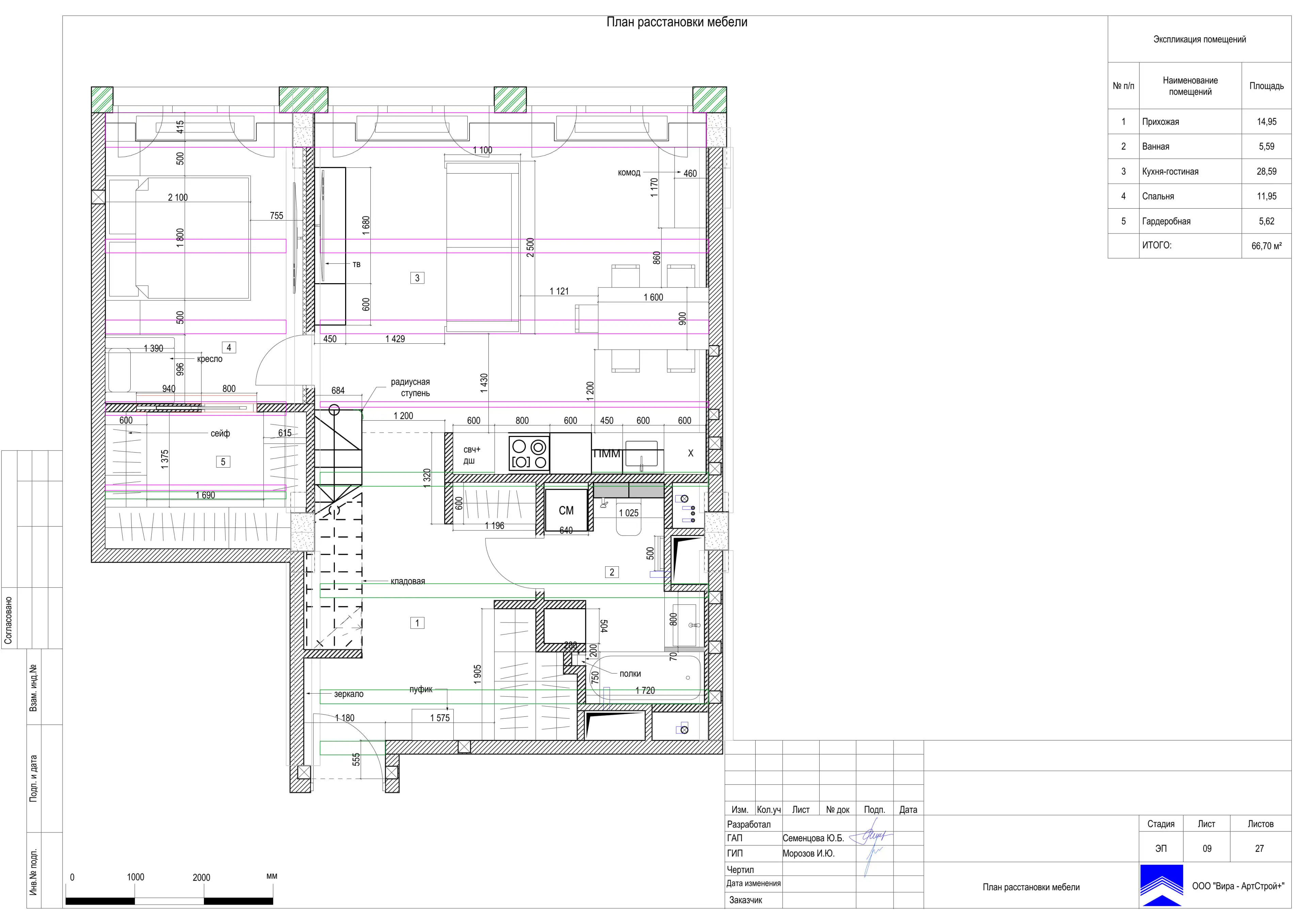
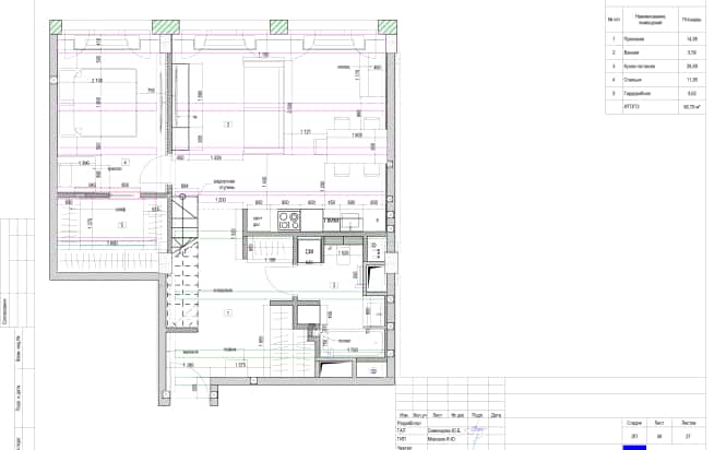
Квартира в жилом комплексе «Джаз» изначально имела площадь 68 квадратных метров. Наши дизайнеры выделили помещения прихожей, кухни-гостиной, спальни с гардеробной и санузла.
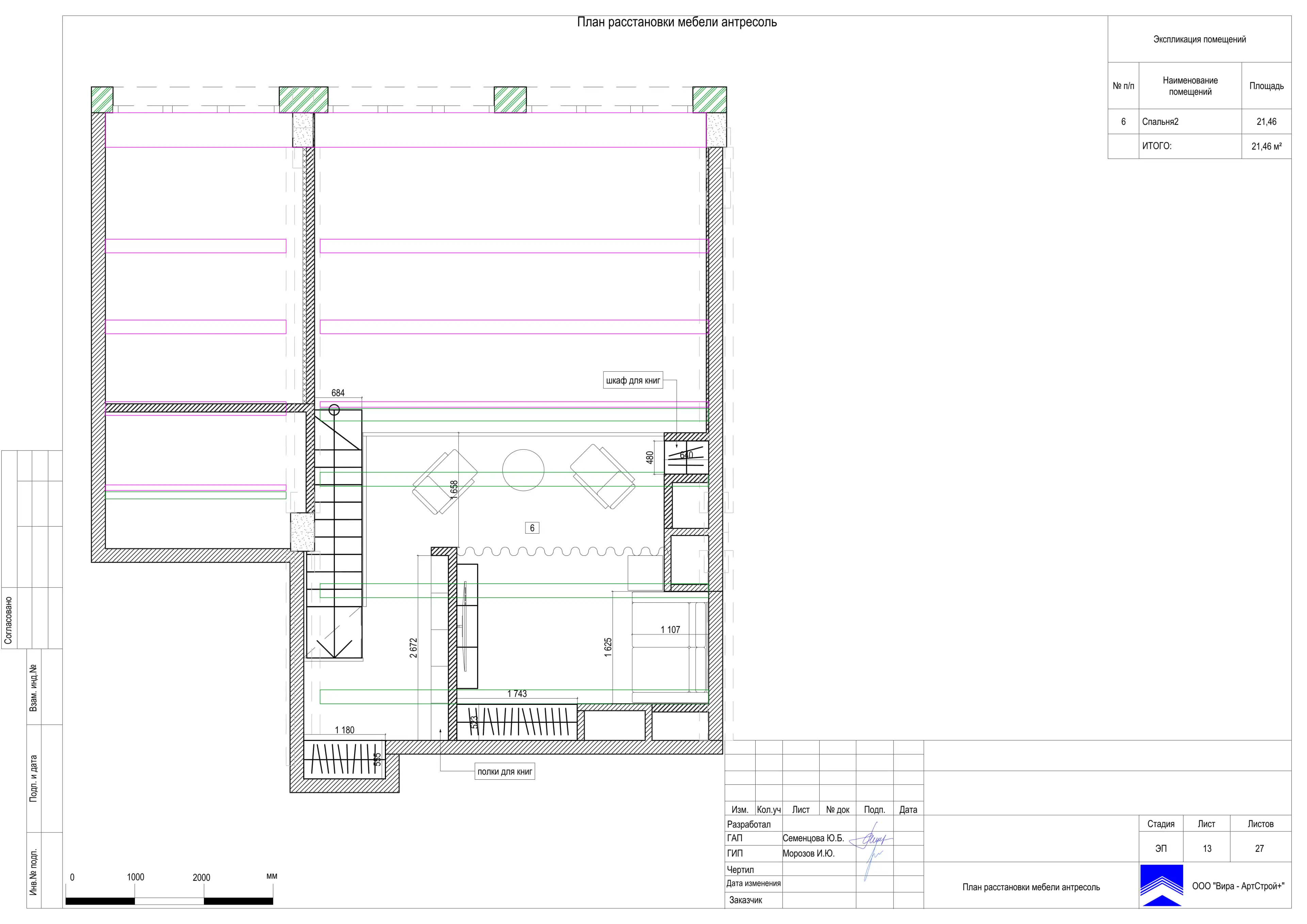
Дополнительно мы спроектировали жилую антресоль, так называемый мезонин, заняв часть площади квартиры над прихожей, санузлом и рабочей зоной кухни, и организовали дополнительное пространство.
Перепланировка и возведение антресольного этажа отвечают всем необходимым законодательным требованиям.
Видео
Бывает лучше один раз увидеть, чем несколько раз услышать. Именно по этой причине мы подготовили для вас видео-обзор по этому объекту.
Подписывайтесь на наши каналы, чтобы быть в курсе новых интересных интерьеров:
Светлые двери с филёнками и высокие плинтусы привнесли в современный интерьер этой квартиры флёр изысканности и утончённости.
Прихожая – просторное помещение, выполненное в тёплых бежевых тонах. Стены отделаны светло-бежевой штукатуркой, а на полу уложена мелкоформатная плитка в раскладке «ёлочка», выделяющая входную зону.
При входе дизайнеры расположили мягкую скамью-пуф, а рядом разместили большой гардеробный шкаф-купе с филёнчатыми дверями в цвет стен, скрыв его в нише.
Светлые двери с филёнками и высокие плинтусы – характерные признаки стилистики неоклассики – привнесли в современный интерьер этой квартиры флёр изысканности и утончённости.
Ванная
Хозяйственная зона с убранными в колонну стиральной и сушильной машинами скрыта в образовавшейся нише между унитазом и стеной.
Помещение санузла, как продолжение жилых комнат, также выполнено в тёплом бежевом цвете с зеленоватыми акцентами и с элементами неоклассики.
Стены облицованы нейтральным светло-бежевым керамогранитом, а напольная плитка такая же, как и во входной зоне прихожей.
В нише разместили напольную тумбу с ящиками приглушённого зелёного оттенка с врезной раковиной. Над ней – зеркало с подсветкой.
По противоположной стене над ванной мы обустроили нишу, а рядом дизайнеры спроектировали ещё один высокий шкаф в цвет базовой бежевой плитки.
Бачок унитаза скрыт вместе с системой инсталляции, а над ней размещён шкафчик с филёнчатыми фасадами, такими же, как фасады тумбы под раковиной.
Хозяйственная зона с убранными в колонну стиральной и сушильной машинами скрыта в образовавшейся нише между унитазом и стеной.
Современные встроенные потолочные светильники дают рассеянный ровный свет, хорошо освещающий все уголки помещения.
Кухня-гостиная
За счёт почти пятиметровой высоты потолка объём кухни-гостиной по желанию заказчицы удалось разделить на первый этаж и антресоль со вторым светом.
При обустройстве антресольного этажа в прихожей появилась лестница, и наши дизайнеры использовали подлестничное пространство, оборудовав закрытые секции для хранения вещей. Здесь же выделено место для хранения и подзарядки робота-пылесоса.
Лестница является объединяющим элементом прихожей и пространства кухни-гостиной – основного помещения этой квартиры.
За счёт почти пятиметровой высоты потолка объём кухни-гостиной по желанию заказчицы удалось разделить на первый этаж и антресоль со вторым светом. Антресольный этаж обустроили, уменьшив высоту потолка в смежных хозяйственных помещениях.
Огромные окна в пол наполняют всё это пространство большим количеством воздуха и света. Лёгкие струящиеся серебристые шторы освежают светло-бежевый тон стен, подчёркивают элегантный современный интерьер с оттенком современной классики.
Центральное место здесь занимает мягкий светлый диван с шерстяным пледом и множеством подушек, располагающий к умиротворению и расслабленному отдыху.
Напротив дивана наши дизайнеры расположили корпусную мебель в классическом стиле: консольную тумбу, шкафчик-витрину с отделкой шпоном из ценных пород дерева и плазменную панель.
Здесь спокойные бежевые стены украшены интересной инсталляцией из металла и деревянных полочек, где расположились живые растения, книги, декоративная керамика, а рядом с ней – акварельная живопись.
Уютный столовый гарнитур, состоящий из обеденного стола и кресел с мягкой серо-зелёной обивкой, соседствует с эффектным винтажным комодом, являющимся акцентом в этой зоне.
Дизайнеры подобрали филёнчатые фасады спокойного серо-зелёного цвета, которые сочетаются с обивкой кресел и подчёркивают красоту фактур, используемых в интерьере этой комнаты.
Спальня
Бирюзовый текстиль и акварельный натюрморт над кроватью придают нежному интерьеру спальни изысканность и индивидуальность.
Уютная хозяйская спальня – соседнее помещение, расположенное рядом с кухней-гостиной. Эта небольшая комната вместила в себя всё необходимое для комфортного сна и отдыха.
Кровать с объёмным мягким изголовьем светло-бежевого цвета, симметрично расположенные с двух сторон небольшие прикроватные тумбочки, бра, висящие над ними, и молдинги на стене – элементы интерьера, выполненного в стиле современной классики.
Рядом с кроватью дизайнеры предусмотрели небольшое кресло со светлой обивкой, где можно расположиться с любимой книгой перед сном.
Бирюзовый текстиль и акварельный натюрморт над кроватью придают нежному интерьеру спальни изысканность и индивидуальность.
Вместо традиционной люстры дизайнеры выбрали современные трековые светильники с разнонаправленным светом.
Никаких лишних вещей и громоздкой мебели в этой миниатюрной спальне нет, всё необходимое размещено в смежной гардеробной.
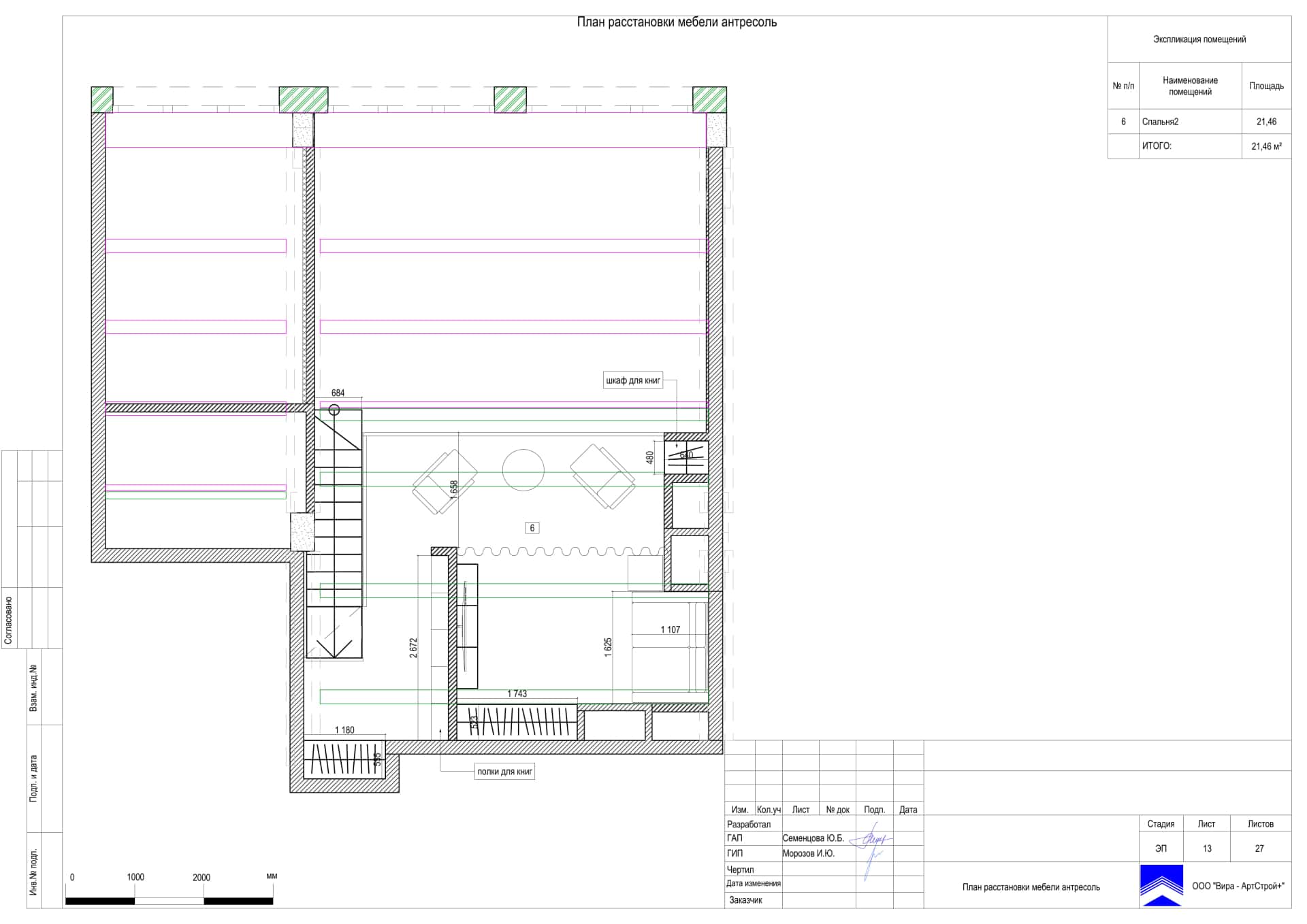
Спальня на антресоли
На балконе можно удобно разместиться в кресле с чашечкой кофе или книгой.
Высота позволяет обыграть потолок в стиле неоклассики и декорировать его довольно массивным карнизом.
Теплота антресольного пространства подчёркивается сочетанием нежных бежевых оттенков в отделке и текстиле и изумрудно-травяным цветом дивана и картины над ним, выступающим в качестве акцентного.
Для гостей, решивших остаться на ночь, можно разложить диван, превратив его в удобное спальное место.
В этой импровизированной гостевой есть своя телевизионная зона, комод и даже встроенный шкаф, позволяющий разместить личные вещи.
Не обошлось здесь и без библиотеки. Наши дизайнеры тоже обустроили её на антресольном этаже, сразу при входе.
В отделке шкафов прослеживается наследие классицизма и традиционное сочетание архитектуры высоких потолков с использованием классической мебели в интерьере жилого пространства.