Информация и галерея
- ЖК Филисити
- 71 м²
- 209 дней
- Современная классика
- Дизайн-проект
- Инженерные проекты
- Качественный ремонт
- Комплектация ремонта
- Авторский надзор
- Страхование ремонта
О проекте
Мы кардинально преобразили помещение, объединив кухню и гостиную в единую светлую зону, где удобно принимать гостей, работать и отдыхать.
Мы создали пространство, где каждая деталь работает на комфорт и эстетику, превратив стандартную квартиру в личный оазис посреди городской суеты — уютное пространство, организованное под задачи активного человека.
Заказчица поставила перед нами конкретные задачи:
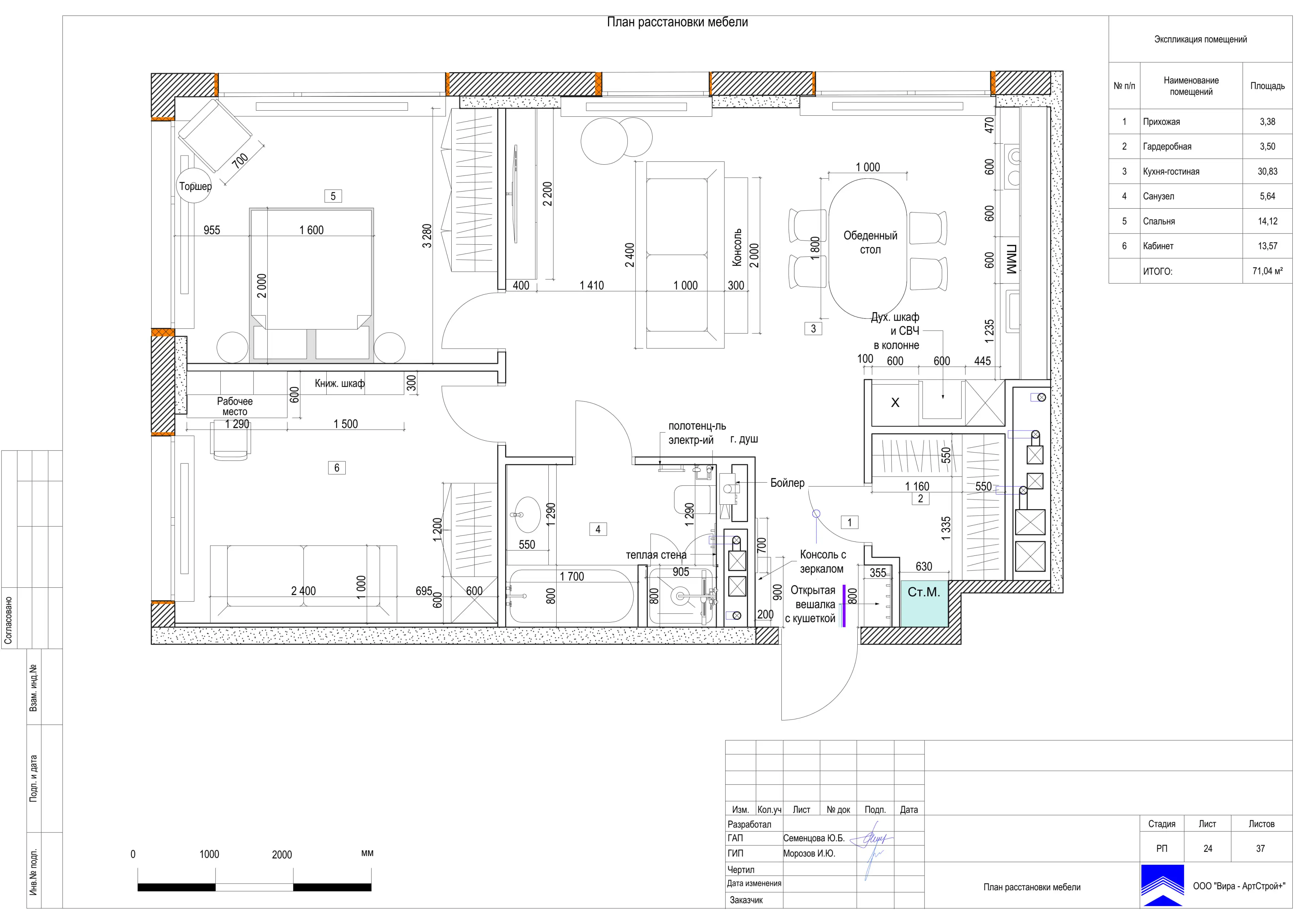
• Увеличить и объединить зону кухни и гостиной.
• Избавиться от тесного и неудобного гостевого санузла.
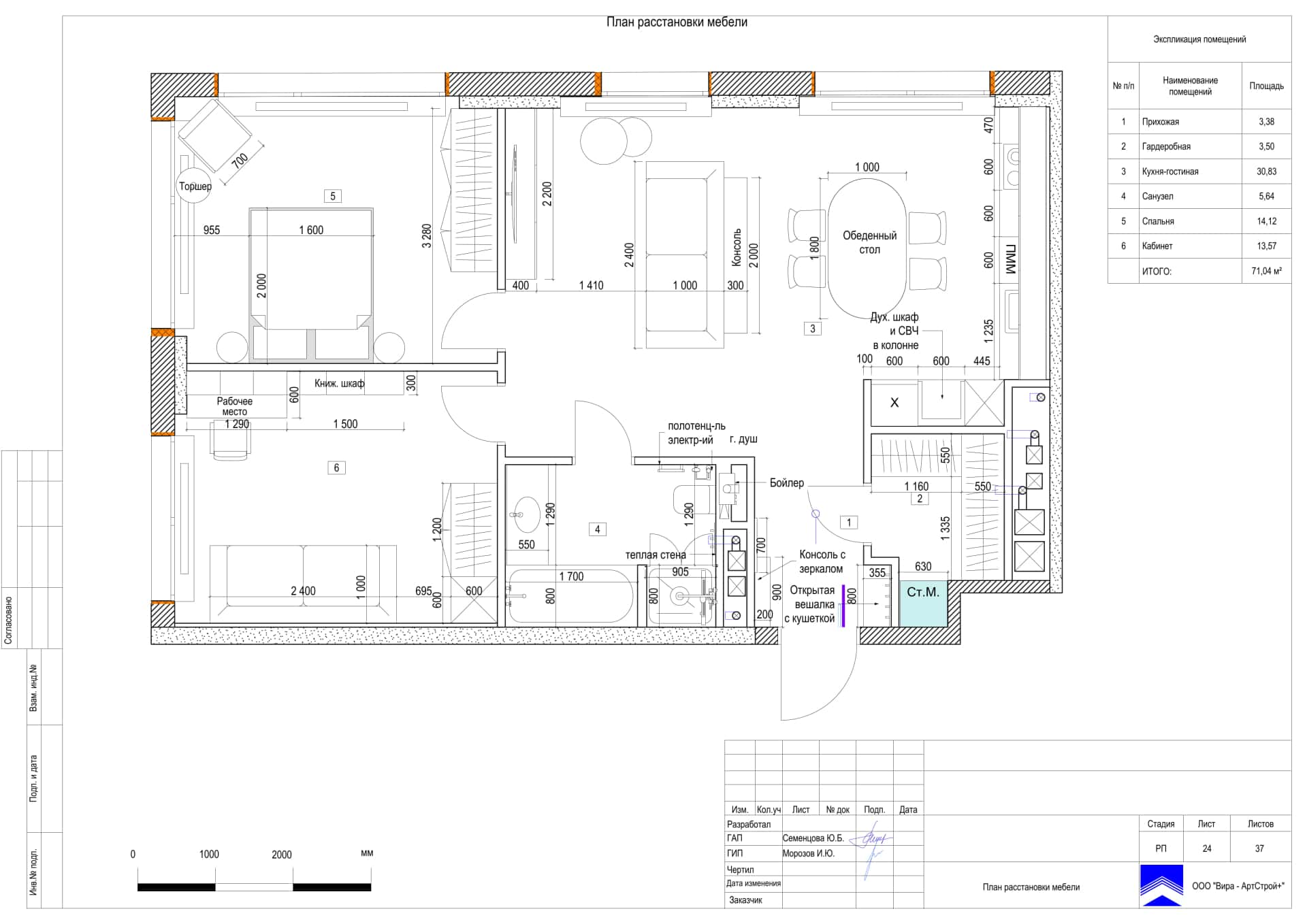
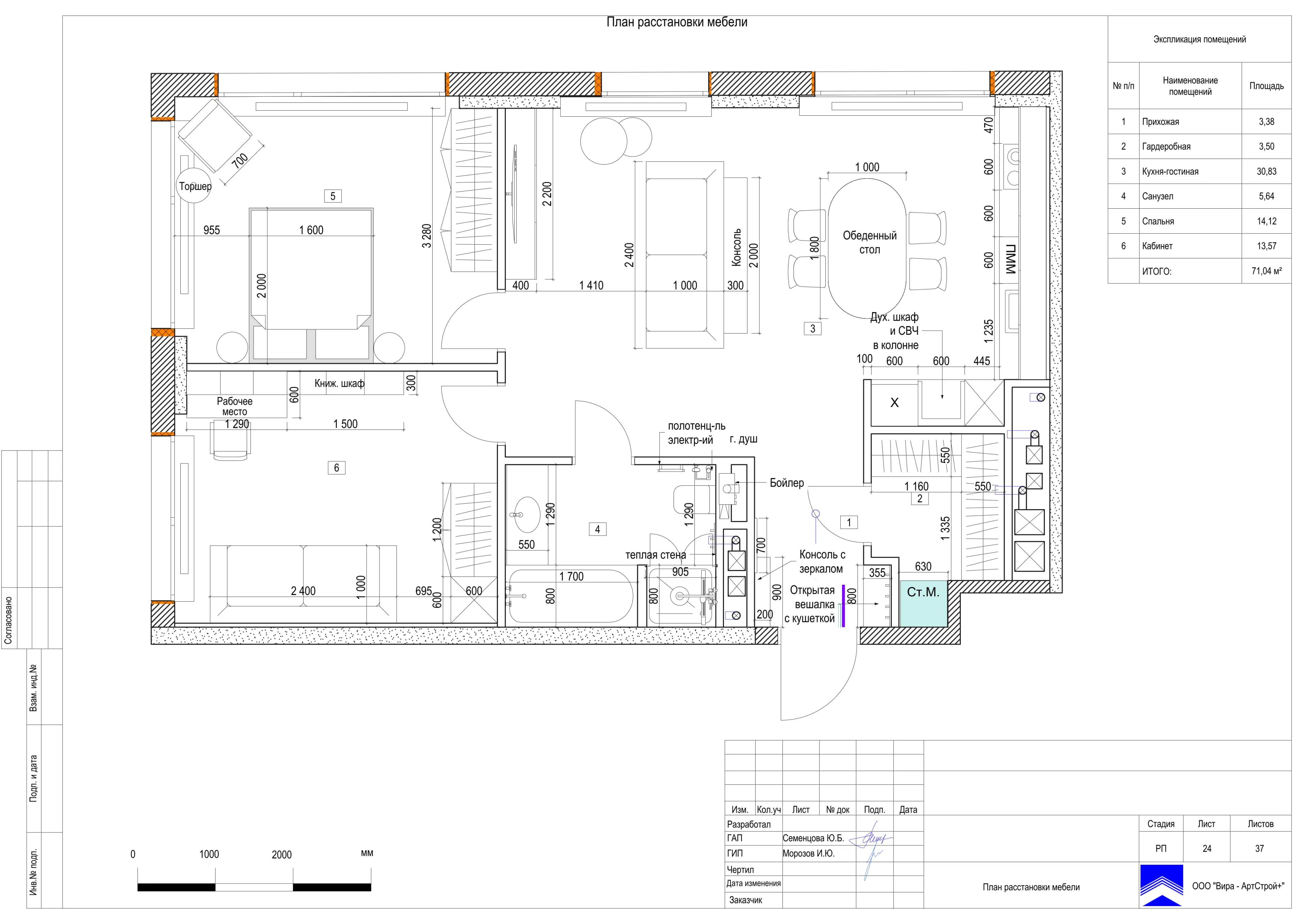
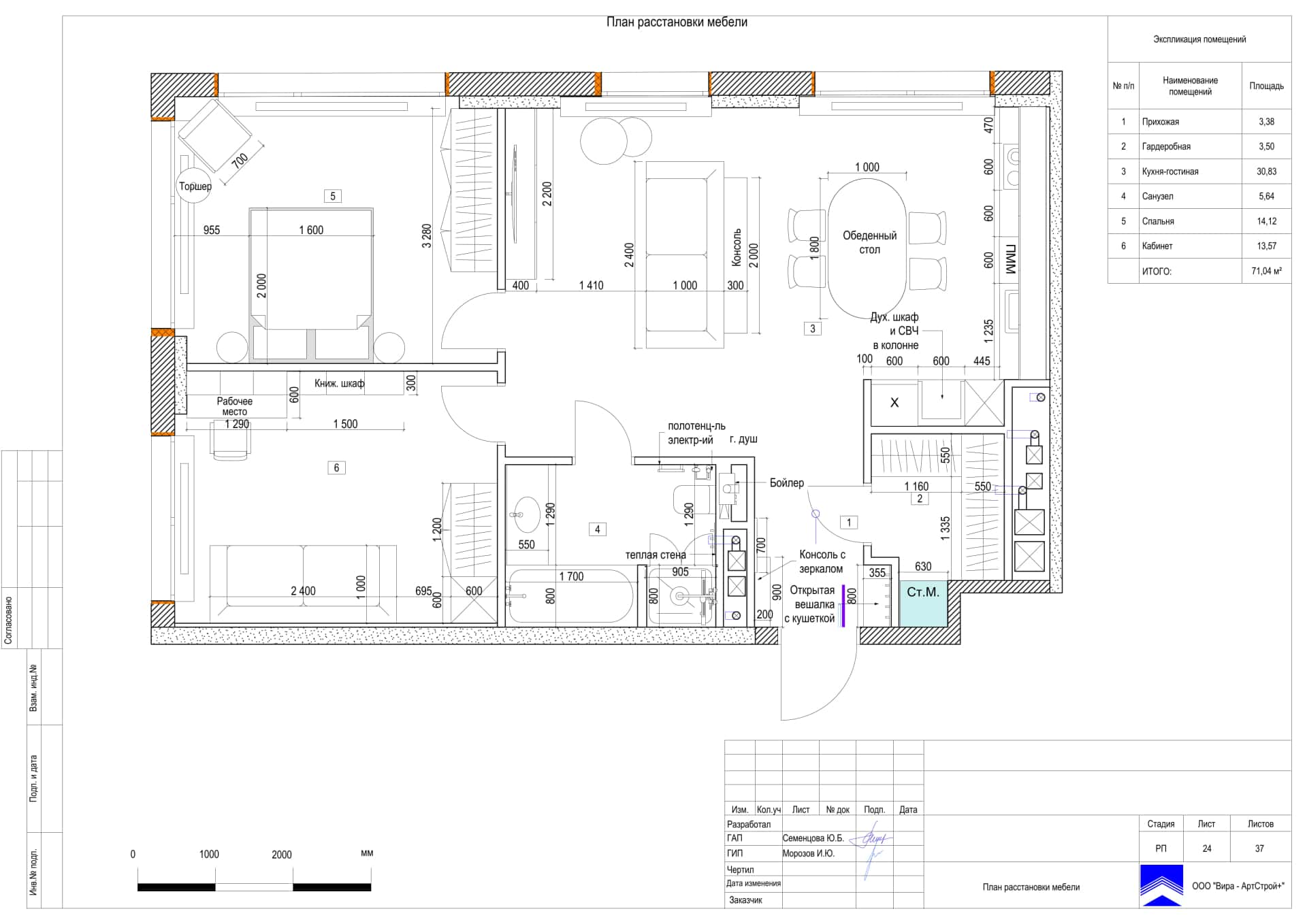
• Организовать эффективную систему хранения бытовой техники и принадлежностей.
• Создать современное, светлое и многофункциональное пространство.
Мы кардинально преобразили помещение, объединив кухню и гостиную в единую светлую зону, где удобно принимать гостей, работать и отдыхать. Кухня-гостиная напрямую соединяется с коридором, без межкомнатных дверей. Из неё можно попасть в ванную, спальню и рабочий кабинет, а сразу возле входной двери в прихожей располагается вход в хозяйственный блок со стиральной и сушильной машинами, системой хранения для бытовой химии и местом для гладильной доски, который мы разместили на месте гостевого санузла.
Интерьер выполнен в минималистичном, но при этом экологичном стиле. Мы использовали чистые оттенки белого, бежевого и топлёного молока, чтобы наполнить пространство светом и воздухом. Мебель отличается простыми геометрическими формами, её лаконичные очертания и отсутствие лишних деталей создают ощущение визуальной лёгкости. Все помещения объединены общей цветовой гаммой и материалами, что подчёркивает целостность интерьера. Акценты расставлены с помощью тактильных текстур — дерева, матовых поверхностей и мягкого текстиля, добавляющих уют и спокойствие.
Видео
Бывает лучше один раз увидеть, чем несколько раз услышать. Именно по этой причине мы подготовили для вас видео-обзор по этому объекту.
Подписывайтесь на наши каналы, чтобы быть в курсе новых интересных интерьеров:
Планировка

Прихожая
Белый керамогранит с серыми мраморными прожилками стелется единым полотном от входной двери до окон гостиной.

Прихожая за счёт светлых стен и пола выглядит очень просторной. Мы отказались от громоздких люстр в пользу точеного освещения и светодиодной подсветки вокруг зеркала, что также визуально расширяет помещение.


Уютный пуфик с серой обивкой расположен в нише, которая одновременно является вешалкой для верхней одежды. Под пуфиком мы разместили практичные ящики и нишу с подсветкой для обуви, а для хранения сезонных вещей предусмотрели антресоль, которая благодаря светлым дверцам совсем не бросается в глаза.
Высокое зеркало визуально удваивает пространство — коридор сразу кажется больше и светлее. Для ключей и других мелочей предназначена изящная парящая тумба с дизайнерским светильником, которая совсем не занимает места.
Белый керамогранит с серыми мраморными прожилками стелется единым полотном от входной двери до окон гостиной. Такой приём стирает границы между помещениями, а переход из прихожей в гостиную становится естественным и незаметным, усиливая впечатление цельности интерьера.
Гардеробная



Кухня-гостиная
Кухня собрана на ненавязчивых контрастах: внизу — гладкие белые фасады, вверху – рифлёные шкафы серо-бежевого цвета.

Кухня собрана на ненавязчивых контрастах: внизу — гладкие белые фасады, вверху – рифлёные шкафы серо-бежевого цвета. Никаких ручек — только аккуратные выемки, чтобы ничто не нарушало чистоту линий. Фартук из мраморной плиты с верхней подсветкой кажется продолжением стены.


Обеденная группа — овальный стол и мягкие стулья — создаёт камерную и уютную атмосферу. Столешница органично вписывается в общую эстетику: её плавные формы визуально смягчают геометрию пространства, а древесная фактура добавляет интерьеру тепло.


Рифлёные массивные подножья стола перекликаются с дверцами подвесных шкафов. Вся бытовая техника встроенная, а для запасов кухонных принадлежностей предусмотрен незаметный шкаф с лаконичным белым фасадом.


Люстра-кольцо над столом - лаконичный штрих, который завершает композицию. Вторую такую же люстру мы разместили над зоной отдыха. Светлые межкомнатные двери идеальными пропорциями и объёмными молдингами мягко подчёркивают элегантность интерьера, добавляя ему благородство без излишней тяжести.


На полу во всех жилых помещениях уложена инженерная доска с ультраматовой отделкой. Она не царапается, мягко рассеивает свет и подчёркивает природную красоту дерева.


Бежевый диван при необходимости легко раскладывается, обеспечивая комфортное спальное место. Коврик с мраморным рисунком в тон кухонному керамограниту объединяет пространство в гармоничный ансамбль. За диваном мы расположили удобный столик для мелочей, а на стену повесили картину-пейзаж в схожей цветовой гамме.


Освещение многовариантное: точечные потолочные светильники и шикарные люстры как центральные акценты.
Санузел
Поскольку наша клиентка — девушка, которая много работает, мы предусмотрели для неё и душевую кабинку, и полноценную ванну для отдыха и релакса.

Ванную мы оформили белым керамогранитом с серо-бежевыми прожилками. Большое круглое зеркало со светодиодной подсветкой — стильный акцент, который перекликается с люстрами в жилых помещениях, поддерживая общую стилистику интерьера квартиры.


Интегрированная раковина подчёркивает лаконичную эстетику ванной. Встроенная столешница достаточно большая, чтобы разместить на ней весь арсенал уходовых и косметических средств.


Поскольку наша клиентка — девушка, которая много работает, мы предусмотрели для неё и душевую кабинку, и полноценную ванну для отдыха и релакса. Вся сантехническая фурнитура в санузле выполнена в оттенке матовое золото. Без привычного хромированного блеска помещение выглядит гораздо более уютным.

Электрический полотенцесушитель и инсталляция над унитазом в отделке под матовое золото добавляют санузлу ненавязчивый лоск. В сочетании со светлой мраморной плиткой это выглядит современно и изящно.
Спальня
Чтобы смягчить геометричность прямых линий, мы решили использовать круглые прикроватные тумбочки.

Спальня оформлена в более светлых тонах, чем остальные помещения. Два вертикальных светильника в изголовье, торшер возле кресла и большая круглая люстра позволяют реализовать разные сценарии освещения. Бархатистая обивка мебели — приятный тактильный акцент, который сразу делает комнату уютнее.


Чтобы смягчить геометричность прямых линий, мы решили использовать круглые прикроватные тумбочки. Каждая из тумбочек имеет ящик для мелочей и удобную полочку для книг или гаджетов.


Светлый шкаф до потолка почти сливается со стеной, но рифлёные панели на нижних створках добавляют интерьеру лёгкую динамику. Шкаф не широкий, но его высота позволяет разместить всё необходимое, не загромождая пространство.
Уютное полукруглое кресло так и манит расположиться с хорошей книжкой и отдохнуть от всего мира. Торшер на высокой металлической ножке даёт достаточно света, но при этом сам выглядит практически невесомым.
Рядом со спальней мы расположили гардеробную с функцией постирочной Это закрытое и защищенное от пыли пространство, поэтому все полки здесь открытые. Это позволяет сэкономить место и сразу же видеть, где что лежит.
В высокий встроенный шкаф над стиральной машиной можно поместить всё, что нужно, а благодаря лаконичным светлым дверцам он смотрится частью стены. Светодиодная подсветка полочек не греется, не расходует много электроэнергии, но при этом позволяет быстро найти все необходимое.
Кабинет
Рабочая зона оборудована в нише встроенного шкафа, поэтому в помещении остается много свободного места.

Кабинет мы сделали тоже очень светлым и уютным. Бархатистая обивка дивана приятно контрастирует с гладкостью стен и паркетной доски, а его бежево-серый цвет не бросается в глаза, поэтому пространство выглядит цельным. Большая люстра-кольцо и два вертикальных настенных светильника создают интересный геометрический контраст и позволяют использовать разные сценарии освещения.


Рабочая зона оборудована в нише встроенного шкафа, поэтому в помещении остается много свободного места. Лаконичные белые дверцы выглядят как часть стены, а гофрированная панель над столом визуально выделяет рабочее место.


Сам стол — подвесной, без ножек, которые занимали бы лишнее место и могли бы мешать при уборке помещения. Светильник-шарик выглядит очень мило и сглаживает строгие линии интерьера. Для дополнительного освещения мы использовали светодиодную ленту над столом.

Фасад книжного шкафа также белый и максимально лаконичный, но на торцевой стене и внутренней части книжных полок мы оставили деревянную текстуру, которая органично сочетается с полом и придаёт интерьеру уютные нотки эко-стиля.


















































