Информация и галерея
- ЖК «Грин Парк»
- 55 м²
- 178 дней
- Современная классика
- Дизайн-проект
- Инженерные проекты
- Качественный ремонт
- Комплектация ремонта
- Авторский надзор
- Страхование ремонта
О проекте
Квартира площадью 54 м2 находится в ЖК “Грин Парк” и куплена взрослыми детьми в подарок для мамы. Этот приятный сюрприз готовили к празднику 8-е марта. Сложность состояла в том, что будущая хозяйка квартиры не принимала участия в разработке проекта. Заказчики попросили дизайнеров подобрать примеры интерьеров, чтобы определиться со стилем. Из множества вариантов отобрали самые подходящие, и на их основе дизайнеры сформировали концепцию будущего интерьера. Предстояло создать лёгкий нетривиальный интерьер в стиле неоклассика.
Видео
Бывает лучше один раз увидеть, чем несколько раз услышать. Именно по этой причине мы подготовили для вас видео-обзор по этому объекту.
Подписывайтесь на наши каналы, чтобы быть в курсе новых интересных интерьеров:
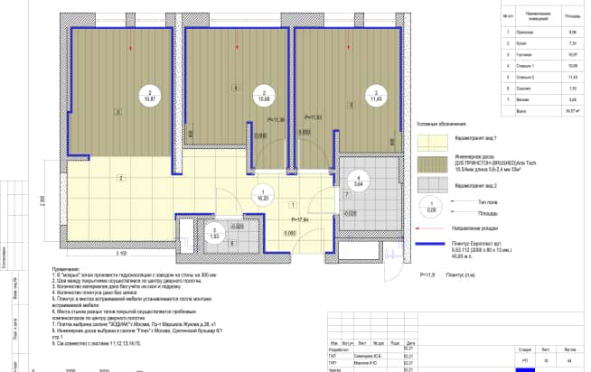
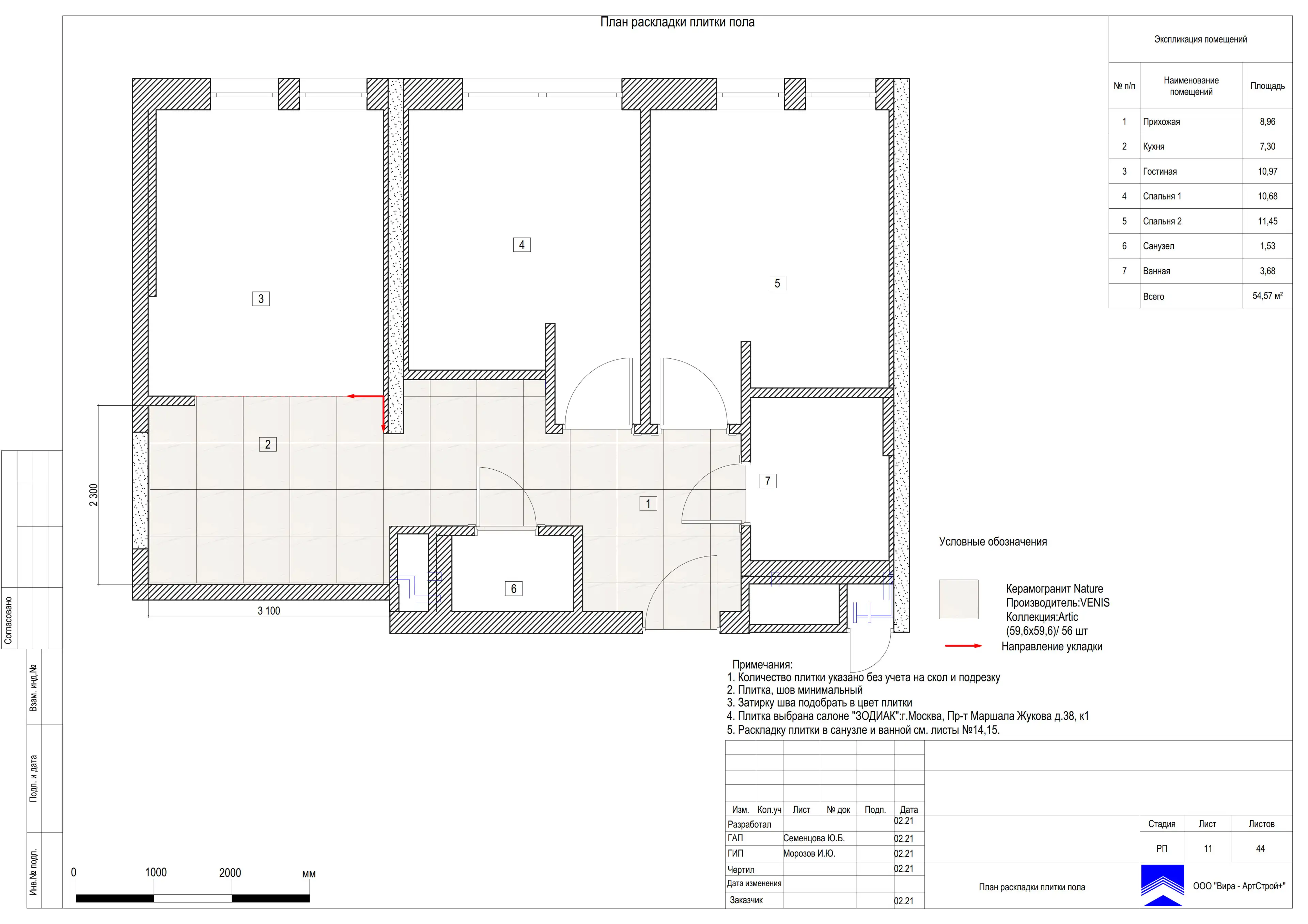
Прихожая
Здесь всё под рукой. Вместительные тумбы для обуви и мелочей помогают сохранять порядок. Для хранения верхней одежды спроектировали большой шкаф, который спрятали в нишу.

Приглашаю вас подробно рассмотреть все комнаты и начнём с прихожей. Дизайнеры спланировали компактную и удобную входную зону. Сдержанная палитра, лепнина на потолке, большое зеркало, филёнчатые фасады и двери с широкими наличниками – неизменные атрибуты классического стиля. Дизайнеры освежили и осовременили его сочными бирюзовыми акцентами, воздушными бра и встроенными потолочными софитами.

Здесь всё под рукой. Вместительные тумбы для обуви и мелочей помогают сохранять порядок. Для хранения верхней одежды спроектировали большой шкаф, который спрятали в нишу. На полу – практичный керамогранит с системой “тёплый пол”. Прихожая и коридор являются проходной зоной, из которой можно попасть в остальные комнаты.
Кухня-гостиная
Для ТВ-зоны дизайнеры выбрали асимметричную композицию.

По коридору проходим в кухню-гостиную. Небольшая, 18 квадратных метров, уютная комната наполнена светом и свежестью. За основу цветовой палитры комнаты дизайнеры взяли светло-бежевый и белый. С помощью бирюзового, коричневого и серого расставили акценты. Для отделки стен использовали декоративную штукатурку и краску сложного бежевого цвета. Лепнина по периметру потолка – дань классическому стилю и приём, который корректирует восприятие пространства. Дизайнеры разделили комнату на зоны с помощью напольного покрытия. Для кухни выбрали практичный керамогранит, для гостиной инженерную доску с палубной раскладкой.


Кухонный гарнитур дизайнеры постарались сделать незаметным. Благодаря белым глянцевым фасадам с интегрированными ручками он растворяется на фоне стены. Кухонный фартук оформили керамогранитом под мрамор с размытым рисунком. Подсветку рабочей зоны спрятали в верхние шкафчики. Духовку и микроволновку поместили в торцевой шкаф, чтобы их было не видно со стороны гостиной. Пол из керамогранита под белый мрамор для дополнительного комфорта оборудовали системой подогрева.

Акцент в этой зоне дизайнеры сделали на обеденной группе.Стол и стулья привлекают внимание насыщенным цветом и золотистой отделкой. Освещают зону кухни-столовой встроенные светодиодные светильники.
У окна расположили лаунж-зону. Акцентную стену оформили декоративной штукатуркой, которую вручную расписывал художник. Это панно делает интерьер уникальным и является его изюминкой. Цвета акцентной стены продолжаются в палитре дивана и ковра.
Для ТВ-зоны дизайнеры выбрали асимметричную композицию. Стены покрасили в нежно-бежевый цвет и украсили молдингами. Подвесной стеллаж со стеклянными дверцами привлекает взгляд благодаря фактуре дерева. Это впечатление усиливает внутренняя подсветка, которая добавляет объём. Телевизор резко выделяется на светлом фоне и является доминантой композиции. Тумбу под телевизором решили сделать незаметной. Эффект парения, который даёт подвесная мебель, делает интерьер легче, оригинальнее и просторнее.
Через большие окна в комнату попадает достаточно солнечного света. Многослойные шторы помогают регулировать его интенсивность и создают цветовой акцент. Потолочное освещение предусматривает комбинацию люстры и встроенных точечных светильников. Люстра в зоне отдыха перекликается по стилю с настенными бра. Стеклянные плафоны и позолоченные каркасы создают красивые блики и покоряют своей воздушностью.
Как видите, дизайнеры создали интерьер, в котором есть всё необходимое, чтобы провести время в уединении за любимым занятием и пообщаться с близкими.
Спальня
Акцентная стена выполнена в похожей технике, что и в гостиной. Художник создавал рисунок в акварельном стиле по декоративной штукатурке.

Приватная часть квартиры начинается со спальни. Светлая, бодрящая палитра комнаты сочетается с современной мебелью и декором. Для стен подобрали светло-бежевую краску, для пола – инженерную доску натурального цвета. Это сочетание создаёт базу для ярких акцентов и помогает сбалансировать колористику комнаты.


Акцентная стена выполнена в похожей технике, что и в гостиной. Художник создавал рисунок в акварельном стиле по декоративной штукатурке. Яркие цвета с панно продолжаются в декоре кровати. Мягкое изголовье сочетает обивку из велюра и экокожи, чтобы создать интересный контраст фактур. Кровать и тумбы создают симметричную композицию. С помощью зеркальных вставок на стене и подвесного светильника дизайнеры привнесли асимметрию, чтобы сделать интерьер сложнее и интереснее.
Зеркала на стене и на дверце шкафа преобразуют пространство и создают иллюзию удвоения. Дизайнеры расположили их так, чтобы отражения не мешали во время сна. Многослойные шторы помогают регулировать интенсивность естественного освещения и поддерживают яркую палитру. В результате получился современный интерьер с лёгким настроением и нетривиальной цветовой палитрой.
Гостевая комната
Встроенные потолочные софиты и люстра, подвес у туалетного столика и торшер у дивана помогают подстроить освещение под естественные биоритмы человека и позаботиться о здоровье.

Рядом со спальней хозяйки дизайнеры спланировали комнату для гостей. Интерьер для неё разработали спокойный, уютный и комфортный.


Акцентную стену оформили деревянными рейками. На фоне бирюзовой стены это простое украшение смотрится эффектно, а вертикальные линии поднимают потолок. Компактный диван раскладывается вперёд и превращается в кровать.

У окна организовали уютную чилаут-зону, чтобы расслабиться и насладиться созерцанием или почитать. Для этого увеличили подоконник, который дополнили шкафчиком для хранения. Секция с открытыми полками преображает гладкий фасад. Сюда удобно положить недочитанную книжку или журнал. Радиаторы закрыли экранами с прорезями для циркуляции воздуха.
Стену за телевизором оформили рейками. Подвесная тумба и туалетный столик формируют горизонтальную линию, чтобы зрительно увеличить ширину комнаты. За столиком, при необходимости, можно поработать с ноутбуком. Для этого вместо пуфа поставили лёгкое кресло. Зеркало выполняет не только утилитарную функцию, но и является предметом изысканного декора.
Встроенные потолочные софиты и люстра, подвес у туалетного столика и торшер у дивана помогают подстроить освещение под естественные биоритмы человека и позаботиться о здоровье.
Ванная
Керамогранит переходит со стены на пол и экран ванны, чтобы размыть границы комнаты и визуально увеличить её.

Дизайнеры продумали планировку так, чтобы в приватной части квартиры была своя ванная. Это спокойный, сбалансированный интерьер, в котором на первое место поставлены функциональность и эргономика.


Зона ванны и раковины отделана плиткой ручной работы. Плитки разложили вертикально, чтобы поднять потолок. Переходы оттенков дают эффект мозаики и напоминают о набегающих морских волнах. Керамогранит переходит со стены на пол и экран ванны, чтобы размыть границы комнаты и визуально увеличить её. Стену за подвесным унитазом решили оформить керамогранитом под дерево, чтобы усилить приятные ассоциации с природой.
Дизайнеры выбрали раковину со столешницей и создали максимально удобную и привлекательную композицию. Полезную площадь над стиральной машиной можно использовать для косметики и декора. В ящики под раковиной уместится фен и другие полезные мелочи. Большое зеркало с подсветкой расширяет пространство и переотражает свет от подвесных светильников. Этот приём помогает создать приятное мягкое освещение перед сном. Утром, когда надо проснуться, потолочные светодиодные светильники дают яркий свет.
Приглушённые оттенки бирюзового и фактура дерева, в зависимости от освещения, помогают создать умиротворяющую обстановку или взбодриться.
СУ
В отделке стен скомбинировали разный материал и цвет, чтобы компенсировать ощущение, будто находишься на дне колодца, которое возникает в очень маленьких помещениях.

Рядом с кухней-гостиной разместили гостевой санузел. На площади всего полтора квадратных метра уместили минимально необходимый набор. Получился очень милый интерьер в нежных оттенках бежевого и мятного. В отделке стен скомбинировали разный материал и цвет, чтобы компенсировать ощущение, будто находишься на дне колодца, которое возникает в очень маленьких помещениях. Для нижней части стен использовали испанскую плитку ручной работы, верхнюю оштукатурили и покрасили. Для пола выбрали керамогранит с оригинальным орнаментом. Чтобы согреть холодный камень, установили систему “тёплый пол”.


Компактная подвесная сантехника с мягкими округлыми формами экономит свободное пространство. Зеркало над раковиной и постеры с птицами создают контраст форм, чтобы сделать интерьер интересным и запоминающимся. В потолок встроены светодиодные светильники, которые дают яркий свет. Для мягкого приглушённого освещения предусмотрели пару подвесов у зеркала.
Даже такое маленькое помещение дизайнеры оформили со всей тщательностью и вниманием к деталям, чтобы выдержать общий стиль интерьера.
Дизайн-проект
Только разработав дизайн-проект, можно реализовать все ваши пожелания и предложения дизайнера. Наша компания уже 30 лет создает эксклюзивные интерьеры, которые радуют наших клиентов комфортом, уютом и продуманностью до мелочей.












































































