Квартира площадью 93 квадратных метра расположена в ЖК «Квартал 38А». Молодая хозяйка квартиры модель и блогер, живущая попеременно в Москве и Лондоне. Концепция интерьера эдакий белый холст, который заказчица сможет нарисовать по своему усмотрению, наполнив любимыми вещами и декором. Вкус у хозяйки отличный, и подчеркнуть его — одна из задач, поставленных перед дизайнерами.
Интерьер планировался светлый и лаконичный настолько, чтобы обстановка не приелась и не потеряла актуальности даже через десять лет. В минималистичную композицию следовало интегрировать натуральные материалы и элементы роскоши: напольное покрытие из золотистого дуба, ажурные молдинги, хрустальные люстры и сверкающую фурнитуру.
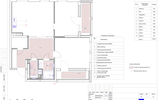
В данной квартире заказчица планирует проводить много времени, работать, принимать гостей, поэтому здесь предусмотрели отдельную комнату — кабинет, который при необходимости превращается в гостевую спальню. Также в квартире предусмотрена продуманная система вентиляции и кондиционирования.
Видео
Бывает лучше один раз увидеть, чем несколько раз услышать. Именно по этой причине мы подготовили для вас видео-обзор по этому объекту.
Подписывайтесь на наши каналы, чтобы быть в курсе новых интересных интерьеров:
Примечательно, что межкомнатные двери оформлены в соответствии со стенами — одна белая, с классической фрезеровкой, другая — деревянная со скрытым коробом.
Квартира встречает нас эффектным сочетанием чёрно-белого камня и дерева. Керамогранит, стилизованный под мрамор, выложен «ковром», белым на чёрном фоне. Во входной зоне стены белые, а подсвеченная ниша с зеркалом, консольным столиком и банкеткой, облицована деревом. Напротив входной зоны расположено ещё одно зеркало в полный рост. Сразу за нишей находится встроенный шкаф с матовыми стеклянными дверями.
Прихожая переходит в просторный холл, где одна стена выкрашена белым и декорирована молдингами, а противоположная также облицована деревом. Примечательно, что межкомнатные двери оформлены в соответствии со стенами — одна белая, с классической фрезеровкой, другая — деревянная со скрытым коробом. Здесь мы видим изящный столик в колониальном стиле на современный лад, который предназначен для нужных мелочей и предметов декора. Напротив — абстрактное полотно, выделенное двумя эффектными светильниками. Свет в этом пространстве выполняет не только свою непосредственную функцию, но и стилистическую — роскошная хрустальная классическая люстра удачно контрастирует с диодной подсветкой и лаконичными современными светильниками.
Заканчивается холл широкими полупрозрачными раздвижными дверями из матового стекла, ведущими в гостиную.
Кухня-гостиная
Несмотря на минимум цветов и преимущественно гладкие поверхности, пространство выглядит объёмно и интересно.
В объединённом пространстве кухни-гостиной царит уже более современная атмосфера. Доминирует белый цвет: потолок, стены, фасады кухни, фартук под белый мрамор, стеллаж, обеденный стол и стулья. Ярким акцентом служит диван спокойного травянистого оттенка, а теплоты интерьеру добавляет золотисто-песочная дубовая доска на полу. Несмотря на минимум цветов и преимущественно гладкие поверхности, пространство выглядит объёмно и интересно. Не последнюю очередь в этом сыграл многоуровневый потолок, декорированный классическим карнизом и дополненный по периметру подсветкой. Помимо диодной подсветки, на потолке мы видим компактные цилиндрические светильники, а центр комнаты венчает современная люстра, напоминающая орбиту с вращающимися на ней спутниками. Фактурными акцентами выступают фасады тумбы под телевизором и отдельных кухонных шкафчиков, а также грубый текстиль штор.
Струящимися белыми занавесками замаскирована дверь, ведущая на лоджию, где расположен компактный рабочий уголок.
Спальня хозяйки также выполнена в белом цвете и представляет собой классический дамский будуар на современный лад. Широкое изголовье кровати примыкает к стене и очерчено молдингами с лепниной, а по бокам композицию дополняют тумбочки и подвесные светильники с шарообразными плафонами. В изножье кровати — широкая банкетка. Встроенные шкафы расположены по обе стороны от двери.
Напротив кровати консольный туалетный столик с высоким зеркалом, рядом с которым эффектно выделяется панно, воспроизводящее рисунок оникса. Под столиком приютилась подвесная тумба для косметики и других принадлежностей. Мягкое кресло кремового оттенка гармонирует с цветом штор. Струящимися белыми занавесками замаскирована дверь, ведущая на лоджию, где расположен компактный рабочий уголок. На потолке стильный контраст светильников в графичном чёрном каркасе, и изящных белых молдингов. Последними декорирована и стена. Напротив рабочего стола ещё один встроенный шкаф, а окна занавешены полупрозрачной матовой тканью.
Кабинет и лоджия
К кабинету примыкает лоджия, где расположили рабочую зону
Кабинет, он же гостевая комната, также оформлен лаконично. Стены выкрашены в сливочный оттенок и декорированы молдингами с изящной лепниной. Ковёр и шторы тоже белые. У входной двери притаился встроенный шкаф, чьи дверцы практически незаметны на общем фоне. Под стать ему выглядит лаконичная белая консольная тумба под ТВ-панелью.
Как и в гостиной, диван здесь мягкого зелёного оттенка, с которым красиво сочетается ореховый цвет кресла. Динамизма спокойному интерьеру придают открытые полки контрастного чёрного цвета с подсветкой и необычный футуристичный стеллаж.
К кабинету примыкает лоджия, где расположили рабочую зону: консольный стол белого цвета, лаконичный шкаф в тон, пара мягких кресел помимо рабочего. Чёрный профиль высоких окон эффектно сочетается с тонкой лепниной на белых стенах. Дополнительными акцентами служат настольная лампа и торшер, тоже чёрные.
Основной санузел
В основном санузеле белая гамма дополнена пудрово-розовым оттенком.
В аналогичном стиле выполнен и основной санузел, но здесь больше мрамора, а белая гамма дополнена пудрово-розовым оттенком тумбы под умывальником. Просторная душевая отгорожена стеклянной дверью. Изнутри она также выложена плиткой под мрамор до самого потолка, что создаёт одновременно ощущение монолитности и чистоты.
Гостевой санузел
Гостевой санузел оформлен гламурно, если не помпезно. Ощущается здесь реверанс в сторону ар-деко.
Несмотря на небольшую площадь, гостевой санузел оформлен гламурно, если не помпезно. Ощущается здесь реверанс в сторону ар-деко: сочетание молдингов, золотистой фурнитуры и мраморной плитки создает ощущение роскоши, но не гнетущей и ко многому обязывающей, а почти легкомысленной, кинематографической. При этом здесь элементы классики также гармонично сочетаются с современными: зеркало арочной формы в золотистой раме дополнено диодной подсветкой, а кран умывальника встроен в стену.
Только разработав дизайн-проект, можно реализовать все ваши пожелания и предложения дизайнера. Наша компания уже 30 лет создает эксклюзивные интерьеры, которые радуют наших клиентов комфортом, уютом и продуманностью до мелочей.