В интерьере квартиры заказчики хотели подчеркнуть свой высокий статус, не уходя в чрезмерную помпезность.
Всё ещё представляете роскошные интерьеры как что-то очень дорогое, вычурное и присущее узкому кругу элиты? Разбираемся, в чём же на самом деле заключается современная роскошь в интерьере, на примере проекта квартиры площадью 111 квадратных метров в жилом комплексе «Павелецкая сити».
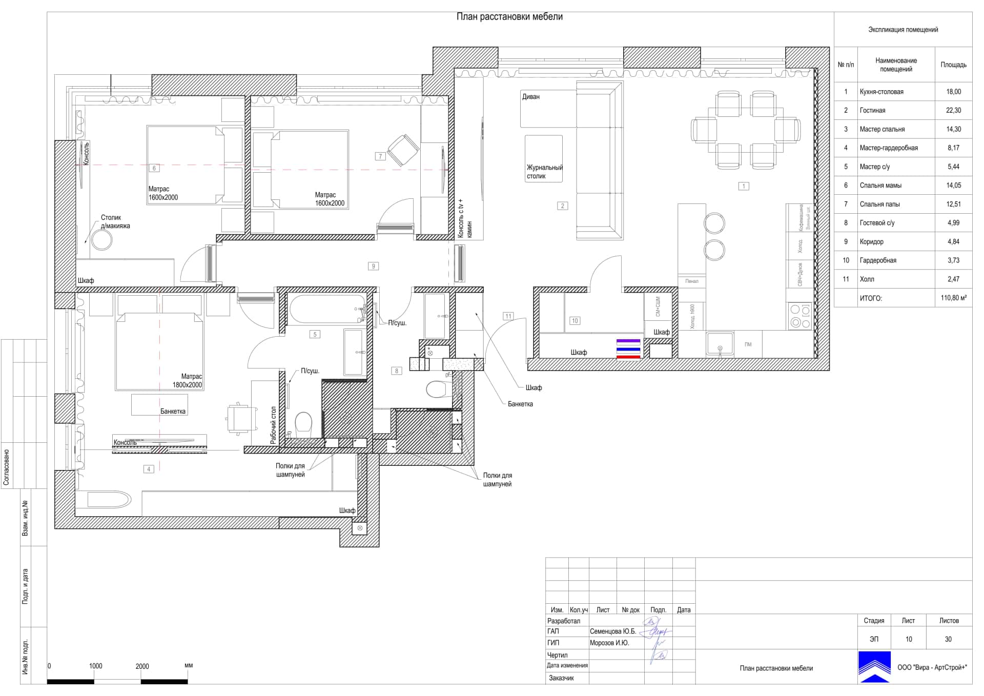
Проект предназначен для семьи с сыном-студентом. Супругам требовались раздельные спальни с рабочими уголками. Ещё пара попросила разместить в квартире как можно больше мест для хранения одежды. Для сына же нам предстояло спроектировать максимально уединённое пространство, включающее все возможные удобства.
Чтобы реализовать пожелания заказчиков, изменили планировку квартиры.
Прихожую уменьшили. За счёт её площади и площади коридора увеличили гостевой санузел. Чтобы прихожая визуально казалась просторнее, и в неё поступало больше света, не стали отделять её от гостиной глухими перегородками.
В помещении справа от прихожей организовали гардеробную. Чтобы рациональнее использовать площадь прихожей, проход в гардеробную со стороны прихожей заложили. Новый проход в гардеробную обустроили со стороны кухни-гостиной.
Сыну заказчиков отвели самую большую комнату с собственными гардеробной и санузлом. По соседству с комнатой сына расположились спальни родителей.
Для бо́льшего комфорта заказчиков спальни и гостиную оснастили сплит-системами. Холл, зону готовки на кухне и оба санузла оборудовали тёплым электрическим полом.
Потолки во всей квартире выровняли гипсокартоном. Установка гипсокартона позволила равномерно обеспечить каждый уголок квартиры регулируемым освещением и скрыть тяжеловесные карнизы штор.
В интерьере квартиры заказчики хотели подчеркнуть свой высокий статус, не уходя в чрезмерную помпезность. При этом обстановка должна была окутывать умиротворением и уютом. Исходя из этого, мы совместили в интерьере современный стиль с элементами роскоши и дали ему новое, более современное прочтение.
В итоге у нас получилось настоящее воплощение современной роскоши. Интерьер не пестрит изысканными элементами и при этом наполнен утончённым звучанием. Есть в нём и индивидуальность, и по-настоящему тёплая домашняя атмосфера. Это ещё раз доказывает, что подлинная роскошь в интерьере проявляется не в изобилии дорогих атрибутов. Она кроется в тонком равновесии эргономики и эстетики, простоты и вычурности, оригинальности и вневре́менности, и доступна абсолютно каждому.
Благородное звучание кухне придали чёрно-белым сочетанием элементов интерьера, геометрическим напольным узором, текстурами под мрамор.
Благородное звучание кухне придали чёрно-белым сочетанием элементов интерьера, геометрическим напольным узором, текстурами под мрамор. Также элегантные нотки кухне придают шкафы-витрины и бархатные стулья.
Кроме застеклённых шкафов, воздушность и лёгкость обстановке кухни добавили подсветкой. Подсветкой, деревом и мягкой обивкой барных стульев также внесли в кухню уют.
Стулья в акцентном изумрудном цвете, рейки, подсветка, напольный узор и чёрно-белые контрасты вносят в обстановку кухни динамику.
Её обстановку сделали нарядной за счёт бархата, деталей из латуни, изящной люстры и абстрактной картины.
Визуально увеличили зону столовой светло-бежевой отделкой стен, рейками и подсветкой потолка. Кроме подсветки, уют внесли текстилем и деревом.
В гостиной для поддержания единства с интерьерами кухни и столовой использовали те же самые материалы, что и в предыдущих зонах комнаты.
Элегантные нотки добавляют шкафы-витрины, детали из латуни и биокамин. Кроме биокамина, уютом это пространство наполняют подсветка и дерево.
Мастер-спальня
Особую значимость зоны отдыха подчеркнули высоким бархатным изголовьем в акцентном серо-зелёном цвете, латунными профилями и деревянными рейками.
Обстановка спальни настраивает на расслабление за счёт обилия дерева и расширяющего пространство цвета светлый тауп. Кроме дерева, уют добавляют текстиль и мягкая подсветка потолка.
Так же, как и в предыдущих помещениях, элегантность обстановке добавили молдингами, элементами из латуни, изящными осветительными приборами.
Особую значимость зоны отдыха подчеркнули высоким бархатным изголовьем в акцентном серо-зелёном цвете, латунными профилями и деревянными рейками.
Кроме реек и профилей, динамику в интерьере спальни задают молдинги и вкрапления коричневого цвета. Обилием сдержанных тонов и тёмного дерева также придали комнате брутальные нотки.
Мастер-санузел
Преобладание в отделке светло-серых тонов зрительно раздвигает пространство санузла.
Чтобы в мастер-санузле сына можно было принимать ванну и душ по отдельности с максимальным комфортом, мы разместили здесь раздельные душевую кабину и ванну.
Утончённые нотки санузлу придали текстурами под мрамор и деталями из латуни. Вместе с деревянными элементами они также вносят в обстановку динамику.
Спальня мамы
Фреска на стене в изголовье кровати наполняет помещение женственностью и изяществом.
Кроме шкафа для хранения вещей, здесь также разместили тумбу в ТВ-зоне. Рабочий уголок благодаря зеркалу с подсветкой превратили ещё и в будуарную зону.
Большое зеркало, подсветка потолка и преобладающие в интерьере бежево-белые тона работают на зрительное расширение спальни.
Уют вносят дерево, подсветка, акцентный текстиль и настенные декоративные элементы в виде летящих ласточек.
Спальня папы
Для более рационального использования пространства спальни шкаф для одежды подобрали корпусный, до потолка.
В спальне главы семейства для поддержания единства интерьера квартиры вернулись к цветовой гамме кухни-гостиной.
На зрительное расширение пространства работают бежевая отделка стен, белая мебель, молдинги, подсветка потолка.
Элегантное звучание интерьеру спальни придают молдинги, детали из латуни, хрусталь и бархат. Дерево, текстиль и подсветка наполняют комнату уютом.
Акцентный текстиль, молдинги и элементы из латуни также делают обстановку спальни более динамичной и нарядной.
Для более рационального использования пространства спальни шкаф для одежды подобрали корпусный, до потолка. Благодаря нише посередине конструкции обустроили в спальне ТВ-зону. Встроенный же в шкаф столик позволил организовать рабочий уголок.
Гостевой санузел
Изюминку санузлу добавляет зеркало оригинальной полукруглой формы.
Изюминку санузлу добавляет зеркало оригинальной полукруглой формы. Зеркало и обилие светлого керамогранита делают санузел визуально больше.
Подсветкой улучшили видимость в умывальной зоне и в душевой кабине, а также внесли в интерьер санузла уют.
Прихожая и коридор
Элегантность прихожей придаёт отделка банкетки и зоны с крючками для одежды бархатом.
Прихожую визуально увеличили за счёт светлых основных стен и мебели, зеркальной панели и подсветки потолка.
Подсветка также делает обстановку прихожей уютнее. Кроме неё, осветить прихожую можно точечными светильниками.
Утончённое звучание в обстановку прихожей внесли молдингами, деталями из латуни и керамогранитом под мрамор. Также элегантность и уют прихожей придаёт отделка банкетки и зоны с крючками для одежды бархатом.
Неприметное пространство коридора тоже не оставили без внимания и наполнили утончённым звучанием с помощью молдингов и абстрактных картин.
Светло-бежевой отделкой стен поддержали единство с интерьером кухни-гостиной и зрительно расширили коридор. Продублировали из кухни-гостиной и инженерную доску на полу.