Информация и галерея
- ЖК Рассказово
- 63 м²
- 203 дней
- Современный
- Дизайн-проект
- Инженерные проекты
- Качественный ремонт
- Комплектация ремонта
- Авторский надзор
- Страхование ремонта
О проекте
Заказчик хотел видеть интерьер жилища реализованным в современном стиле, в спокойных тонах, с использованием натуральных материалов.
Хотим представить вам обзор нового проекта квартиры площадью 63 квадратных метра.
Владелец квартиры, находящейся в жилом комплексе «Рассказово», - молодой мужчина, увлечённый работой и карьерой, ещё холостой, но планирующий создать уютное гнёздышко для молодой семьи.
Заказчик хотел видеть интерьер жилища реализованным в современном стиле, в спокойных тонах, с использованием натуральных материалов.
Нашим дизайнерам удалось воплотить запрос в наилучшем виде, и сейчас мы рассмотрим этот интерьер во всех подробностях.
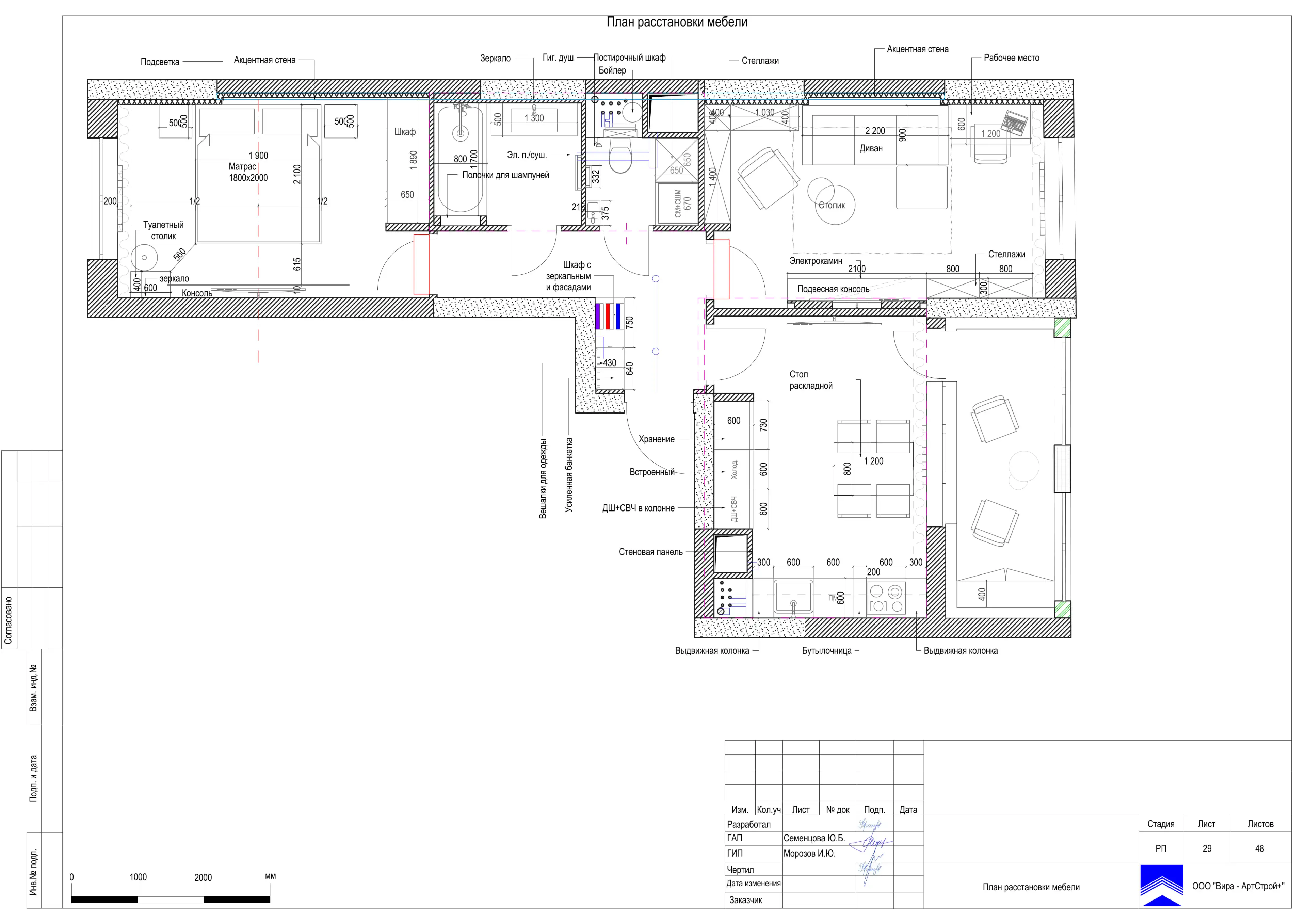
По желанию заказчика мы оставили спальню только для отдыха, а рабочее место для «домашнего офиса» выделили в гостиной.
Ванную комнату сделали свободной, а в санузле разместили зону прачечной и выделили достаточное количество мест для хранения во всех помещениях квартиры, включая прихожую и балкон.
Видео
Бывает лучше один раз увидеть, чем несколько раз услышать. Именно по этой причине мы подготовили для вас видео-обзор по этому объекту.
Подписывайтесь на наши каналы, чтобы быть в курсе новых интересных интерьеров:
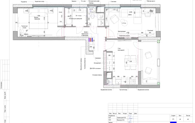
Планировка

Прихожая и коридор
Большое количество межкомнатных дверей дизайнеры скрыли, установив системы монтажа без видимого крепежа и наличников.

Прихожая решена в сочетании светло-серой штукатурки, светлого же полированного керамогранита с чуть заметной текстурой и шпона дерева.


Входная дверь и стена отделаны дубовым шпоном как единый портал. Такой приём визуально расширяет помещение.


При входе наши дизайнеры разместили открытую секцию для верхней одежды с парящей тумбой-пуфом и антресолью, а также шкаф.
Стену декорировали функциональной вертикальной подсветкой, что придало лаконичному интерьеру прихожей динамику и стиль.
Большое количество межкомнатных дверей дизайнеры скрыли, установив системы монтажа без видимого крепежа и наличников.
Небольшие помещения прихожей и коридора оптически расширили за счёт светлого покрытия стен, зеркал и максимального объединения пространства без визуального шума.
Отдельную роль сыграло хорошее освещение каждого уголка с помощью точечных потолочных встроенных светильников и интересного приёма с вертикальной подсветкой.
Спальня
Помимо дневного рассеянного света, дизайнеры предусмотрели множество сценариев искусственного освещения.

Стены спальни мы также покрыли светло-серой штукатуркой, работающей на восприятие размеров помещения. Но, учитывая пожелание заказчика использовать в интерьере натуральные материалы, большую часть стены в изголовье дизайнеры декорировали панелью с отделкой из дубового шпона с вертикальными металлическими профилями и подсветкой в тандеме с небольшими светильниками, выполняющими роль бра.


С другой стороны в изголовье наши дизайнеры подобрали ещё один интересный светильник в современной минималистичной стилистике.


Эта комната получилась очень светлой. Помимо дневного рассеянного света, дизайнеры предусмотрели множество сценариев искусственного освещения: центральную люстру, светильники над прикроватными тумбочками и потолочные системы освещения, продолжающие заданные этими светильниками вертикальные линии, переходящие над кроватью в замыкающий периметр контур.


Двуспальная кровать в мягкой обивке из серого текстиля, светло-серое постельное белье и шерстяной серый плед в классическую «ёлочку» с бахромой придают помещению спальни уют и особый сдержанный шик.
Справа от кровати наши дизайнеры спроектировали большой вместительный гардеробный шкаф, габариты которого совсем не читаются за счёт слияния цветовой гаммы материала фасадов с отделкой стен.
Стена напротив кровати отделана фасадными панелями и смотрится единым гарнитуром со шкафом, подвесной тумбой и туалетным столиком.
С использованием таких приёмов крупногабаритная корпусная мебель визуально кажется очень лёгкой и практически не занимающей объём комнаты.
Парящий туалетный столик наши дизайнеры укомплектовали мягким белым пуфом и высоким ростовым зеркалом, отражающим свет, падающий из окна.
Вертикальная подсветка зеркала гармонично сочетается со всеми заданными дизайнерами вертикалями, «поднимающими» потолок в спальне.
Гостиная
При помощи этой ниши наши дизайнеры выделили зону отдыха и изменили прямолинейность конфигурации помещения для визуального увеличения пространства комнаты.

Гостиная в этой квартире представляет собой современное многофункциональное помещение, состоящее из двух зон: зоны отдыха и рабочей зоны, и оформленное преимущественно в светлых серо-бежевых тонах.


Рядом с диваном наши дизайнеры расположили уютное кресло с обивкой тёплого молочного цвета на изящных тонких ножках и круглый журнальный столик из массива дуба.


Над диваном в неглубокой нише разместили морской пейзаж, передающий настроение спокойствия, умиротворения и природной гармонии, и минималистичные бра для локального освещения диванной группы.


При помощи этой ниши наши дизайнеры выделили зону отдыха и изменили прямолинейность конфигурации помещения для визуального увеличения пространства комнаты.

Современный интерьер гостиной включает в себя уютный уголок с книжными шкафами, обустроенный в лучших традициях зоны отдыха и релакса.
Открытые секции и секции со стеклянными фасадами в сочетании с фасадами из дубового шпона облегчают эту корпусную мебель, демонстрируя книги и аксессуары, являющиеся украшением комнаты.
С другой стороны от дивана, у окна, дизайнеры расположили небольшой, но удобный для работы за ноутбуком подвесной столик, снабжённый двумя ящиками для необходимых мелочей и документов, и подвесные полки.
Напротив дивана наши дизайнеры обустроили открытый каминный портал – современный тренд с использованием безопасного био-камина.
Встроенный био-камин врезали в поверхность подвесной тумбы, а фронтальную стену отделали декоративной реечной панелью со скрытой подсветкой.
Такой паровой камин не требует дров или угля, а работает на экологичном и чистом биотопливе без нагрева, запаха и гари, являясь, ко всему прочему, ещё и увлажнителем воздуха, без которого уже сложно представить современный интерьер.
Напротив рабочей зоны, у окна, дизайнеры разместили ещё один шкаф с фасадами, покрытыми дубовым шпоном, и шкаф-витрину.
А в качестве основного освещения использовали такие же трековые встроенные светильники, как и в спальне.
Кухня
Шкафы с лаконичными ультрасовременными фасадами с дубовой текстурой спроектированы так, чтобы скрыть сантехнический короб за одним из них.

Фасады рабочей зоны кухни наши дизайнеры подобрали в светло-бежевом цвете с декоративной филёнкой в сочетании с рельефными фасадами, размещёнными над столешницей.


Шкафы с лаконичными ультрасовременными фасадами с дубовой текстурой спроектированы так, чтобы скрыть сантехнический короб за одним из них. Здесь же разместили встроенную бытовую технику.

Стеклянная секция витрины визуально облегчает конструкцию корпусной мебели так же, как в спальне и гостиной.
Столовая группа, состоящая из обеденного стола и четырёх стульев с мягкими сиденьями и спинками, расположилась в центре кухни у окна.
Каркас мебели из массива дуба и серые шторы в пол поддерживают сочетание фактур и цвета интерьера жилых комнат.
В качестве основного освещения использованы встроенные потолочные споты, а над столом мы повесили двойную футуристическую люстру в сочетании жёлтого и чёрного металла, подобранную нашими дизайнерами в качестве эффектного декора.
Ванная
Большая керамическая столешница с врезной раковиной является главным украшением ванной комнаты с лаконичным современным интерьером.

Стены ванной комнаты облицованы базовой светло-серой плиткой, а зона раковины выделена рельефной плиткой-компаньоном.


Большая керамическая столешница с врезной раковиной опирается на подвесную тумбу в отделке под дерево. Над ней наши дизайнеры расположили масштабное круглое зеркало с подсветкой. Эта функциональная центральная композиция является главным украшением ванной комнаты с лаконичным современным интерьером.

Боковая стена и пол тоже исполнены в этом материале. Таким образом, зона ванной и душа выглядит единым целым блоком без лишних деталей, ограниченная лишь небольшой стеклянной перегородкой.
По противоположной стене от душевой лейки дизайнеры спроектировали нишу для косметики и необходимых аксессуаров.
Санузел
Зеркало над раковиной и рельефная плитка за полотенцесушителем создают стильную атмосферу в этом маленьком помещении.

Скрытая инсталляция унитаза и пол отделаны серым керамогранитом, а стены той же базовой светлой плиткой, что и ванная комната.


Зеркало над раковиной и рельефная плитка за полотенцесушителем создают стильную атмосферу в этом маленьком помещении.

По левой стороне удалось разместить в колонну стиральную и сушильную машины, а оставшееся пространство закрыть встроенными шкафами.
Балкон
Утеплённый балкон дизайнеры спланировали как дополнительную зону отдыха «тет-а-тет».

Утеплённый балкон, примыкающий к кухне, дизайнеры спланировали как дополнительную зону отдыха «тет-а-тет» с двумя креслами и журнальным столиком.

По задней стене разместили дополнительные места хранения: шкаф с секцией выдвижных ящиков в светло-сером корпусе в цвет отделки стен.
















































