Каждое помещение здесь с индивидуальным характером, однако общее пространство объединено единой идеей, цветовой гаммой, отделочными материалами и обязательными элементами неоклассики.
Сегодня я познакомлю вас с великолепным, элегантным, продуманным до мелочей интерьером в стиле современная классика.
Наши заказчики – зрелая семейная пара, которая обратилась к нам за проектированием квартиры для собственного проживания.
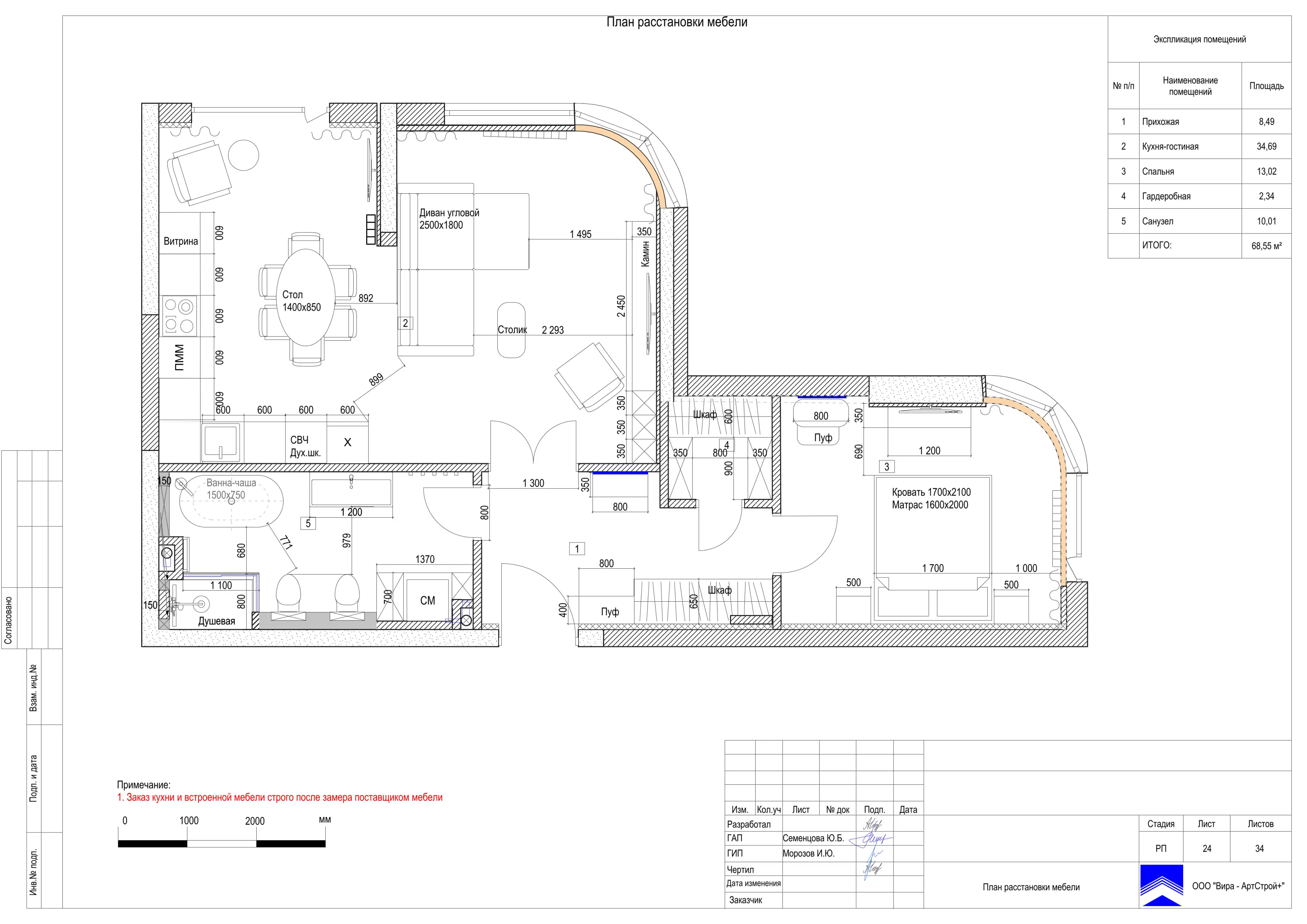
В квартире площадью 87 квадратных метров, расположенной в жилом комплексе «Режиссер», команда дизайн-студии «Вира-АртСтрой» провела большую работу, начиная с изменения планировочного решения по желанию заказчиков.
В результате проектирования кухня-гостиная стала единым пространством. К этому помещению также был присоединён балкон.
Заказчики отказались от двух санузлов в пользу одного большого, расширенного за счёт части прихожей.
А часть гардероба, запланированного застройщиком, отдали под прихожую, чтобы разместить шкаф для верхней одежды.
В результате получилась рациональная удобная планировка большого светлого пространства с высокими панорамными окнами.
Интерьер квартиры наши дизайнеры выполнили в нежных розовато-бежевых тонах с золотой отделкой.
Каждое помещение здесь с индивидуальным характером, однако общее пространство объединено единой идеей, цветовой гаммой, отделочными материалами и обязательными элементами неоклассики: широкими карнизами, изящными филёнками, оригинальной мебелью и светильниками.
Видео
Бывает лучше один раз увидеть, чем несколько раз услышать. Именно по этой причине мы подготовили для вас видео-обзор по этому объекту.
Подписывайтесь на наши каналы, чтобы быть в курсе новых интересных интерьеров:
Украшением интерьера прихожей служит высокое зеркало с подсветкой, расширяющее пространство.
Интерьер прихожей исполнен в нежных молочных и приглушённых коричневых тонах. Через двустворчатые стеклянные двери гостиной прихожую заливает поток дневного света.
При входе наши дизайнеры обустроили открытую гардеробную секцию. Белая тумба с ящиками дополнена декоративной панелью из мягкой велюровой обивки припылённо-коричневого цвета и такой же подушкой.
Украшением интерьера прихожей служит высокое зеркало с подсветкой, расширяющее пространство, которое расположили напротив входа, в комплекте с подвесным столиком. В столике прячется ящик, вмещающий необходимые мелочи.
Широкий карниз по периметру потолка и белые двери с филёнками привносят классическую элегантность в интерьер помещения.
Кухня-гостиная
Великолепные панорамные окна в обрамлении прозрачных белоснежных штор и лёгких светло-бежевых гардин дарят помещению гостиной огромное количество естественного света и воздуха.
Кухня-гостиная представляет собой большое пространство, разделённое простенком на две части – зоны гостиной и кухни-столовой.
По центру гостиной расположен большой комфортный угловой диван со светлой обивкой, множеством декоративных подушек и пледами.
Стена за диваном выделена изящной филёнкой и необычном элегантным декором, напоминающим переплетение золотой и белой драпировки.
Эффектные журнальные столики на ножках из полированного жёлтого металла придают изысканный акцент в сочетании с другими золотыми элементами и аксессуарами, использованными в дизайне интерьера этой квартиры.
Напротив дивана дизайнеры обустроили телевизионную зону, разместив плазменную панель и подвесную тумбу на фоне акцентной стены с росписью под розовато-бежевый мрамор с золотым декором – тончайшими золотыми вертикальными профилями, поддерживающими ритм вертикалей корпусной мебели.
Дополняет корпусную мебель стеллаж-витрина для книг и аксессуаров, а также глубокое коричневое кресло на высоких тонких ножках.
Великолепные панорамные окна в обрамлении прозрачных белоснежных штор и лёгких светло-бежевых гардин дарят помещению гостиной огромное количество естественного света и воздуха.
Чудесные двери с ребристым стеклом в лёгких латунных рамах, будучи ещё одним акцентом в интерьере, разделяют разные по назначению помещения, но не скрывают общий объём.
Для обеденной группы, являющейся продолжением центральной композиции, наши дизайнеры выбрали белый стол с мраморной столешницей на оригинальном рельефном подстолье и шесть мягких кресел в классическом стиле ар-деко.
Эту центральную композицию окружает угловой кухонный гарнитур с лаконичными фасадами белого и бежевого цвета.
В качестве декора здесь выступает тонкий профиль из латуни, мраморный фартук и широкий карниз, идущий по всему периметру помещения.
Кухонная мебель дополнена шкафом-витриной, отделяющим рабочую зону кухни от небольшой зоны отдыха, расположенной на территории присоединённого к общему пространству балкона, и представленной дизайнерами классической группой: креслом, журнальным столиком и торшером.
Уютный светлый и лёгкий интерьер кухни-гостиной располагает как к размеренному отдыху вдвоём, так и к задушевным беседам в тёплой компании гостей.
Спальня
Каждый элемент мебели и декора здесь – великолепный образчик вкуса, изящества и стиля сдержанной классики.
В приватном помещении спальни наши дизайнеры задают тот же тон богемной размеренной жизни, используя светлые тёплые тона в отделке и классические элементы в современном прочтении.
Изголовье за кроватью выделено мягкой мебельной панелью с латунными вставками, а стены декорированы скруглёнными гипсовыми молдингами, являющимися связующими элементами в дизайне интерьера этой квартиры.
Округлые линии белых лаковых фасадов поддерживают полусферические плафоны прикроватных ламп, а подвесные декоративные светильники повторяют вертикаль отделки изголовья.
Люстру, висящую над кроватью, наши дизайнеры подобрали под стать всему интерьеру спальни – лёгкую и изящную. Она, в свою очередь, поддерживает скругление, заданное архитектурными формами помещения. Высокие радиусные окна наполняют спальню большим количеством дневного света.
Периметр спальни также обрамляет широкий карниз как важный элемент современной классической стилистики.
Напротив кровати дизайнеры расположили небольшую подвесную тумбу лаконичной формы из шпона светлого дерева с рельефными фасадами и плазменную панель.
За счёт того, что эта мебельная группа расположена в нише, кажется, будто в комнате почти нет монолитных стен. Этот приём ещё больше усиливает ощущение лёгкости и невесомости, свойственное интерьеру этой квартиры.
Каждый элемент мебели и декора здесь – великолепный образчик вкуса, изящества и стиля сдержанной классики.
Абстрактная живопись добавляет лёгкий цветовой акцент и колорит современного динамичного веяния времени в искусстве и интерьере.
Санузел
Ванна-чаша безусловно является изюминкой этого помещения.
Следующее приватное помещение квартиры – ванная комната – едва ли уступает красотой отделки, габаритами помещения и наполненности воздухом хозяйской спальне.
В ванной наши дизайнеры выделили две зоны: зону релаксации и ухода за собой и более утилитарную зону, где расположили унитаз, биде, душевую и хозяйственную часть.
Подвесную тумбу с мраморной раковиной-столешницей и элегантное круглое зеркало с подсветкой расположили на фоне акцентной мраморной отделки тёплого розовато-бежевого тона.
А напротив наши дизайнеры выделили зону душевой, которую ограничили лишь тонкой латунной рамой и стеклом.
В хозяйственной зоне стиральная машинка встроена в большой вместительный шкаф, сливающийся по цвету с отделкой стен.