Информация и галерея
- ЖК Режиссёр
- 65 м²
- 225 дней
- Современная классика
- Дизайн-проект
- Инженерные проекты
- Качественный ремонт
- Комплектация ремонта
- Авторский надзор
- Страхование ремонта
О проекте
Интерьер в стиле современная классика создан для зрелой семейной пары, которая после долгих лет жизни за городом решила вернуться в мегаполис.
Сегодня я представлю вниманию поклонников современного классического стиля наш эксклюзивный проект дизайна интерьера, воплотивший тепло домашнего очага и изысканность городской жизни.
Площадь квартиры — 65 квадратных метров. Её интерьер в стиле современная классика создан для зрелой семейной пары, которая после долгих лет жизни за городом решила вернуться в мегаполис, сохранив при этом атмосферу домашнего уюта. Дизайн интерьера построен на сочетании бежевых оттенков с насыщенными коричневыми деталями. Изысканные неоклассические приёмы и продуманный декор обеспечивают комфорт и визуальную гармонию.
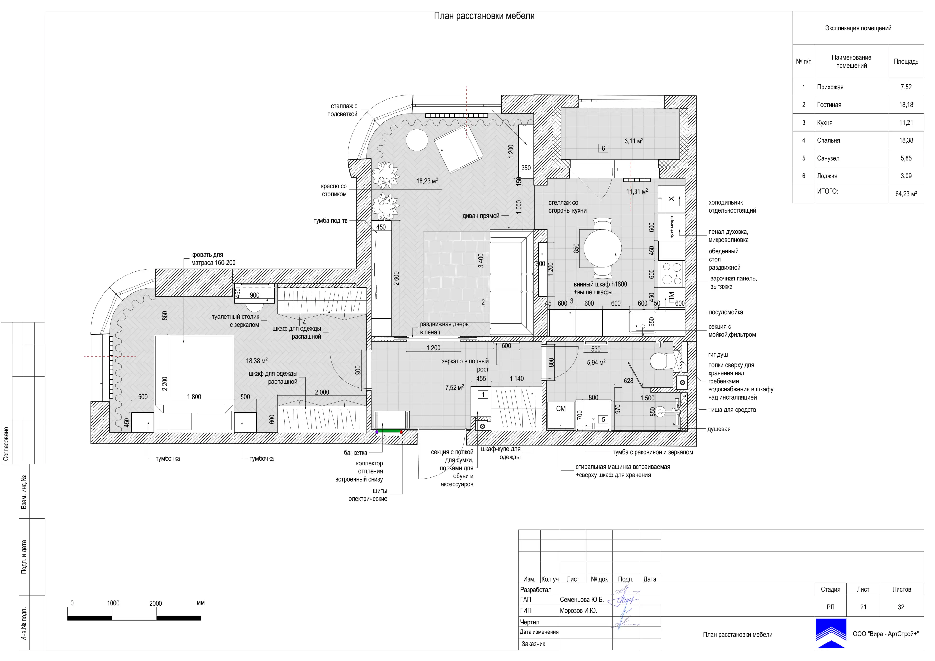
Планировку от застройщика мы практически не меняли. Просторная прихожая ведёт в спальню, санузел и гостиную, из которой, в свою очередь, мы можем попасть на кухню и лоджию. Правильная организация зон позволяет сохранить визуальное единство пространства, сохраняя ощущение простора даже в относительно небольшой площади.
Видео
Бывает лучше один раз увидеть, чем несколько раз услышать. Именно по этой причине мы подготовили для вас видео-обзор по этому объекту.
Подписывайтесь на наши каналы, чтобы быть в курсе новых интересных интерьеров:
Планировка

Прихожая
Точечные светильники на потолке мягко освещают пространство, подчёркивая качество материалов и придавая помещению очарование.

Входя в квартиру, мы попадем в прихожую — просторную, аккуратную, с мягким оттенком топлёного молока на стенах, создающим уютную атмосферу. Пол — матовый светлый керамогранит с чёрными вставками, придающими динамику пространству.


Вдоль стены — встроенный шкаф от пола до потолка. Он вместителен, но не загромождает пространство. В центре шкафа — контрастная полка для сумок и мелочей.

Фасад шкафа и двери чуть светлее стен, что визуально расширяет помещение. Высокое зеркало с подсветкой создаёт иллюзию объёма. У входа — овальная банкетка в тон стен для комфортного переобувания.
Точечные светильники на потолке мягко освещают пространство, подчёркивая качество материалов и придавая помещению очарование. Всё вместе формирует гармоничную обстановку для отдыха и создаёт чувство защищённости.
Гостиная
Интерьер ведёт тонкий диалог между прошлым и настоящим.

Ровно напротив входа в квартиру мы видим раздвижные стеклянные двери с раскладкой, которые ведут в гостиную — сердце дома, где классика изящно сплетается с современностью. Светло-бежевые стены с молдингами наполняют пространство воздухом и светом.


Справа от входа мы расположили белый бархатный диван с отделкой в технике капитоне́. Его плавные линии и мягкая фактура дарят ощущение уюта. За диваном — зеркало с латунной раскладкой, перекликающееся с дверями. По бокам от зеркала — изящные бра, льющие тёплый свет. Напротив дивана — телевизионная зона со светлой низкой тумбой и узким высоким стеллажом для книг и декора. В зоне дивана гармонично сошлись мягкий коричневый ковёр, диванные подушки в тон и мраморный столик с рифлёной опорой.

Радиусное окно щедро льёт естественный свет. У окна — кресло молочного оттенка и латунный кофейный столик. Между окном и кухней — шкаф с прозрачными дверцами, с тёмной внутренней отделкой и подсветкой. На стене напротив — фреска с развалинами в бежевых тонах. Живые акценты вносят растения в латунных и деревянных напольных горшках.
Освещение превращает комнату в спектакль света и тени: потолочные светильники мягко очерчивают пространство, а восьмилучевая латунная люстра рождает игру бликов.
Интерьер ведёт тонкий диалог между прошлым и настоящим: молдинги и капитоне́ соседствуют с лаконичными формами, а природные текстуры в сочетании с металлом создают умиротворённый, но выразительный уют — словно каждая деталь шепчет о вкусе и любви к прекрасному.
Кухня
Интерьер соединяет пастельные тона с графичными контрастами, а природную фактурность — с чёткой геометрией.

Кухня, открывающаяся из гостиной через арочный проём, дышит теплом и продуманностью. На полу — светло-бежевый керамогранит с рисунком опала, гармонирующий с пастельными филёнчатыми фасадами. Стены в том же оттенке растворяют в себе кухню.


Акцент — фартук из кофейного кварцевого агломерата с мраморной фактурой: он придаёт глубину и игру цвета. Верхние шкафы со стеклянными дверцами оживляют пространство — контрастная отделка и подсветка эффектно презентуют предметы, стоящие на полках.


Чёрная бытовая техника в колонне рядом с матовым холодильником задаёт строгий ритм. Этот оттенок повторяется в балконном блоке, уравновешивая светлую палитру. Выход на застеклённую светлую лоджию добавляет воздуха.
Центр обеденной зоны — круглый стол со светлой мраморной столешницей, перекликающейся с фартуком. Конусовидное подстолье из тёмно-коричневого шпона и два мягких полукресла ему в тон создают атмосферу для неспешных трапез.
Освещение завершает образ: точечные светильники и круглая «хрустальная» люстра над обеденным столом рождают блики на мраморной поверхности. Интерьер соединяет пастельные тона с графичными контрастами, а природную фактурность — с чёткой геометрией.
Спальня
Сердце спальни — светло-коричневая кровать с мягким полукруглым изголовьем, расположившаяся в ласковых лучах оконного света.

Слева от входа находится спальня — умиротворяющее пространство, в котором классическая изысканность гармонично сочетается с домашним теплом. Светлые обои с фактурой рогожки и изящные молдинги наполняют пространство воздухом, придавая ему благородную невесомость.


При входе взгляд невольно задерживается на высоких шкафах, которые, будто растворяясь в стенах, хранят в себе тайны упорядоченного быта. Латунные ручки, подобные маленьким солнечным бликам, перекликаются с другими металлическими акцентами интерьера, превращая утилитарные формы в часть единой симфонии пространства.


Сердце спальни — светло-коричневая кровать с мягким полукруглым изголовьем, расположившаяся в ласковых лучах оконного света. Её окружают парные прикроватные тумбочки и бра, будто вышедшие из старинной французской усадьбы. Шестилучевая латунная люстра, похожая на люстру в гостиной, и деликатное точечное освещение рождают мягкий, убаюкивающий свет, настраивающий на безмятежный покой.
Акцентная стена за кроватью, украшенная геометрическим рисунком, вносит в интерьер живую динамику, а большое радиусное окно, подобно природному прожектору, заливает комнату солнечным светом и раздвигает границы пространства. Закруглённый угол, перекликаясь с мотивами гостиной, становится незримой нитью, связывающей все помещения дома в единое гармоничное целое.
В нише напротив кровати притаился туалетный столик с мягким пуфом — его рельефные фасады с узором «соты» привносят в интерьер тактильную интригу, приглашают прикоснуться к игре текстур. Светло-бежевая гамма, разбавленная благородным сиянием латуни, сплетает все элементы в единую мелодию покоя, создавая пространство, где каждый уголок шепчет о безмятежном отдыхе и душевном равновесии.
Санузел
Техника спрятана за дверцами, что сохраняет чистоту линий и избавляет пространство от визуального шума.

Справ от входной двери находится санузел, совмещённый с постирочной зоной. Это помещение гармонично сочетает функциональность и эстетику. Стены и пол облицованы бежевым керамогранитом с мраморной текстурой — его мерцающие прожилки создают ощущение тепла натурального камня.


Ключевая особенность — скрытая постирочная: техника спрятана за дверцами, что сохраняет чистоту линий и избавляет пространство от визуального шума. Контраст белых раковины и унитаза с тёплым керамогранитом подчёркивает свежесть интерьера, а латунные элементы (сантехника и полотенцесушитель) вносят благородные металлические отблески.

Нижняя часть стен напротив душевой и умывальника оформлена тёмно-серым керамогранитом с белыми прожилками — это чётко зонирует пространство и усиливает игру света и теней. Стеклянное ограждение душевой практически незаметно, а её стена оставлена без декора, позволяя глазу отдохнуть на естественной текстуре материала.
Функциональные детали продуманы до мелочей: встроенная ниша в душевой с подсветкой, закрытые шкафы молочного цвета, высокая тумба под раковиной и зеркало с контурной подсветкой. Точечное потолочное освещение равномерно заполняет пространство мягким светом. В итоге получился сбалансированный интерьер, где каждая деталь работает на удобство и красоту.




































