Информация и галерея
- ЖК Садовые кварталы
- 95 м²
- 198 дней
- Современный
- Дизайн-проект
- Инженерные проекты
- Качественный ремонт
- Умный дом
- Комплектация ремонта
- Авторский надзор
- Страхование ремонта
О проекте
Наши дизайнеры выполнили интерьер квартиры в стиле современного минимализма с лёгкими скандинавскими нотами.
В этом выпуске мы представляем вашему вниманию новую работу наших дизайнеров: интерьер квартиры, предназначенной владельцем для сдачи в аренду.
Большие окна, светлые многофункциональные пространства каждого помещения, уютная, домашняя обстановка – вот залог идеального жилища для будущих квартиросъёмщиков.
Наши дизайнеры создали универсальный и стильный интерьер, отвечающий всем современным требованиям удобного и комфортного жилища, при этом вложения в ремонт оптимальны по бюджету, а проект – инвестиционно выгоден.
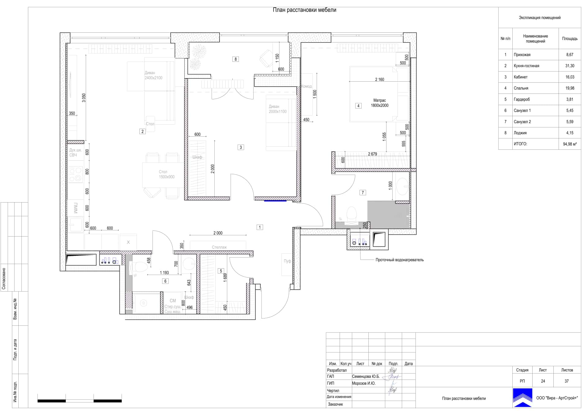
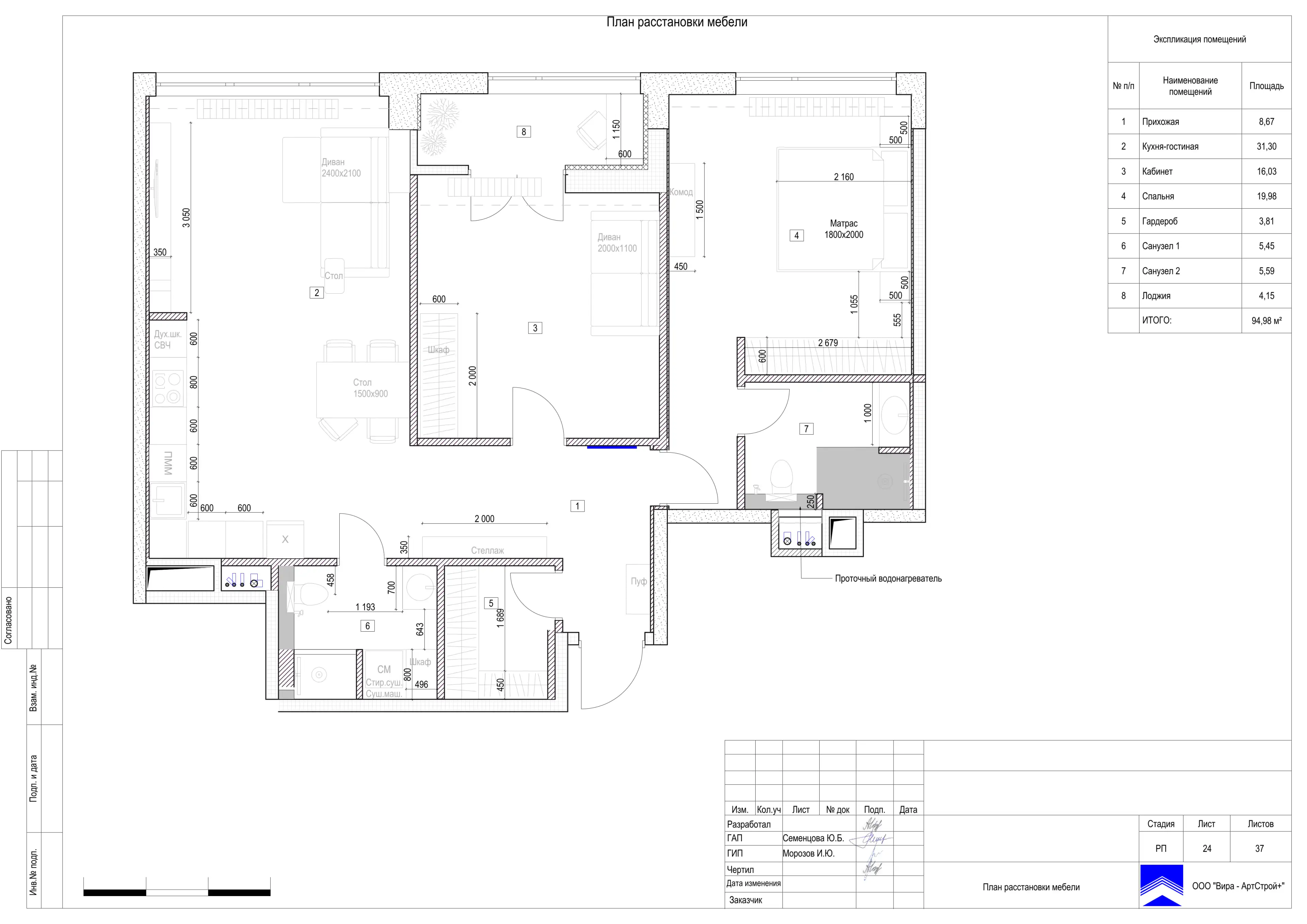
Мы эффективно использовали имеющуюся площадь, создав функциональные помещения кухни-гостиной, мастер-спальни, мастер-санузла и кабинета-гостевой с присоединённой лоджией.
Гостевой санузел мы увеличили за счёт того, что спроектировали вход со стороны кухни-гостиной, а в прихожей организовали гардеробную, сделав общее пространство ещё более удобным и практичным.
Наши дизайнеры выполнили интерьер квартиры в стиле современного минимализма с лёгкими скандинавскими нотами.
Видео
Бывает лучше один раз увидеть, чем несколько раз услышать. Именно по этой причине мы подготовили для вас видео-обзор по этому объекту.
Подписывайтесь на наши каналы, чтобы быть в курсе новых интересных интерьеров:
Планировка

Прихожая
Оригинальный дизайнерский пуф и не менее оригинальное полотно на стене поддерживают стилистическую концепцию разделения на 2 контрастных цвета.

В компактной прихожей преобладают мягкие природные оттенки: стены выкрашены в спокойный молочный цвет, а входная зона визуально выделена покраской в более насыщенный оттенок с добавлением тона какао, что придаёт интерьеру прихожей большую выразительность.


Оригинальный дизайнерский пуф и не менее оригинальное полотно на стене поддерживают стилистическую концепцию разделения на 2 контрастных цвета. Дополняют композицию минималистичные потолочные светильники.


Напротив входной двери разместили большое зеркало. Помимо своей прямой функции оно позволяет оптически расширить помещение и добавить ощущение простора и воздуха.
Стеллаж из массива дерева в скандинавском стиле доминирует в пространстве коридора, придавая обстановке индивидуальность и шарм.
Полотна с контрастной абстрактной живописью добавляют динамику и глубину пространству прихожей, а также создают гармоничный визуальный баланс с минималистичной мебелью из дерева и нейтральной отделкой стен.
Кухня-гостиная
Простор и отсутствие лишних деталей создают ощущение «чистого», не перегруженного пространства, свойственного современной и скандинавской стилистике.

В интерьере кухни-гостиной мы также использовали светлые текстуры стен и напольного покрытия, создающие ощущение большого объёма и наполненности воздухом.


Зона столовой интегрирована в общее пространство комнаты, но визуально выделена благодаря деревянному столу с эффектным массивным подстольем и кожаным стульям.


Подвесные светильники-шары над столом дают мягкий тёплый свет, создавая камерность и особый уют в тёмное время суток.


Мы обыграли конструктивный элемент здания, вписав в нишу, образованную несущей конструкцией, стеллаж. Рядом расположили уголок для отдыха.
Напротив зоны отдыха разместили мебельную группу, состоящую из парящей консоли с выдвижными ящиками и шкафов-витрин. На стене расположили плазменную панель.
Кухонная зона выполнена в лаконичной линейной компоновке. Для неё подобрали белые лаковые фасады без ручек и встроенную технику в минималистичном исполнении.
Фартук над столешницей выложен горизонтальной светлой плиткой с оригинальным рисунком. Сливаясь по тону с таким же оттенком стены, он интересен своей рельефной текстурой.
Интересным акцентом в кухонной мебели выступает вертикальный шкаф с открытыми полками в отделке из шпона дерева. Подсветка под верхними шкафами и в потолочной нише делает кухню визуально лёгкой и добавляет функционала.
Простор и отсутствие лишних деталей создают ощущение «чистого», не перегруженного пространства, свойственного современной и скандинавской стилистике.
Кабинет
Пространство выглядит лёгким, спокойным и функциональным: здесь можно как отдохнуть, так и продуктивно поработать.

Ещё одна жилая комната в этой квартире – кабинет, который может исполнять функцию гостевой комнаты или детской.


Нейтральная гамма серо-бежевых оттенков подчёркивает уют и визуально расширяет комнату. Пространство выглядит лёгким, спокойным и функциональным: здесь можно как отдохнуть, так и продуктивно поработать.

Центральное место занимает светлый диван лаконичной формы, который может использоваться как дополнительное спальное место.
Наши дизайнеры подобрали множество разнофактурного текстиля: шторы, ковёр, декоративные подушки и акцентный рыжий плед, добавляющего интерьеру комнаты мягкость и завершённость.
Простой шкаф с деревянными фасадами от пола до потолка создаёт ощущение целостности и не перегружает пространство.
Зеркало оригинальной несимметричной формы арт-объект и добавляет изюминку несколько аскетичному интерьеру.
Рабочая зона вынесена на утеплённую лоджию, так как здесь много естественного света. Чтобы впустить этот свет и в пространство комнаты, лоджию отделили от основного помещения прозрачными раздвижными перегородками.
Мы выбрали лёгкий столик и эргономичное кресло в благородном зелёном оттенке, а стену оформили декоративной панелью с точечной системой хранения и удобными мобильными полками.
Эта комната – баланс уюта и функционала. Днём она легко превращается в рабочий кабинет с панорамным видом, а вечером остаётся уютным пространством для отдыха.
Мастер-спальня
Наши дизайнеры создали лёгкий и воздушный интерьер мастер-спальни, здесь нет ничего лишнего, только чистота линий и функционал для комфортного отдыха.

С другой стороны от входной зоны расположена мастер-спальня, которую выполнили в спокойной минималистичной эстетике с акцентом на свет и натуральные материалы. Мягкие серо-бежевые оттенки стен и текстиля создают атмосферу расслабленности и умиротворения.


Белый цвет кровати с лаконичным мягким изголовьем привносит ощущение свежести. А встроенный шкаф из светлого дерева, прикроватные тумбочки и напольное покрытие добавляют тёплые оттенки и придают уют интерьеру спальни.


Прикроватные тумбы и оригинальные дизайнерские светильники усиливают ощущение порядка и функциональности, свойственных современной стилистике.


Миниатюрные поворотные бра сочетаются со светильниками, создающими настроение и дающими мягкий свет в зоне отдыха.
Напротив кровати разместили стильный комод на тонких ножках с рельефными белыми фасадами и кадку с крупным растением, добавляющим живости интерьеру спальни.
В качестве основного декора в спальне выступает круглое настенное панно с рельефом из матовой и глянцевой текстур. Будто с лунного диска скинули шелковую драпировку, приглашая немного вздремнуть.
Наши дизайнеры создали лёгкий и воздушный интерьер мастер-спальни, здесь нет ничего лишнего, только чистота линий и функционал для комфортного отдыха.
Гардеробная
Это небольшое, но функциональное помещение мы обустроили при помощи открытых секций для одежды, полок и встроенного комода.

Конечно, в современном интерьере квартиры не обойтись без гардеробной, которую мы оборудовали рядом с входной зоной в квартиру. Это небольшое, но функциональное помещение мы обустроили при помощи открытых секций для одежды, полок и встроенного комода.

Гостевой санузел
Вертикальная раскладка зелёной плитки в душевой подчёркивает высоту стен и поддерживает вертикальный ритм, заданный фасадами мебели.

Ещё один санузел в квартире – гостевой – находится рядом с кухней-гостиной. Его цветовая гамма строится на сочетании светлых нейтральных оттенков с акцентами в зелёных оттенках.


Для гостевого санузла мы подобрали компактную подвесную тумбу серо-зелёного цвета, а над раковиной разместили круглое зеркало с подсветкой, дающей мягкий свет, что визуально расширяет пространство.

Подвесная чаша унитаза со скрытой инсталляцией подчёркивает лёгкость и современность выбранной стилистики.
За унитазом мы обустроили скрытые шкафы с лаконичными фасадами до потолка, смотрящимися как единая стена, тем самым создав максимум мест хранения и визуальный порядок.
Встроенный в нишу шкаф, расположенный рядом с душевой, скрывает систему хранения и бытовую технику: стиральную и сушильную машины, установленные в колонну. Чёткая геометрия фасадов создаёт аккуратный и цельный вид без ощущения загромождённости.
В нишах мы предусмотрели удобные полки для хранения косметики, а вертикальная раскладка зелёной плитки в душевой подчёркивает высоту стен и поддерживает вертикальный ритм, заданный фасадами мебели.
Мастер-санузел
Лёгкий элегантный интерьер санузла создаёт настроение современного спа-уголка при спальне – чистая геометрия, тёплые оттенки и комфорт.

Интерьер помещения продолжает общую философию минимализма и натуральных материалов. Бежево-песочные тона керамики под травертин создают ощущение теплоты и спа-атмосферы.


Для санузла выбрали накладную раковину-столешницу с большой, удобной и практичной напольной тумбой. Над ней повесили круглое зеркало с контурной подсветкой, добавляющей интерьеру глубину и функциональный свет.
Мы спрятали инсталляцию подвесного унитаза за гладкой стеновой панелью, а рядом для удобства пользования установили гигиенический душ.
Подсветка, встроенная в потолок и ниши, дает мягкий свет и формирует атмосферу спокойствия и уюта. Лёгкий элегантный интерьер санузла создаёт настроение современного спа-уголка при спальне – чистая геометрия, тёплые оттенки и комфорт.
Лоджия


















































