Информация и галерея
- ЖК «Сердце столицы»
- 110 м²
- 241 день
- Современный
- Дизайн-проект
- Инженерные проекты
- Качественный ремонт
- Умный дом
- Комплектация ремонта
- Авторский надзор
- Страхование ремонта
О проекте
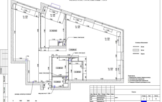
Квартира площадью 110 квадратных метров расположена в ЖК «Сердце столицы». Её обитатели — семья из трёх человек, родителей и десятилетнего сына. Планировку переделали полностью, чтобы обеспечить условия не только для комфортного быта, но и для творчества.
У заказчиков нестандартное хобби— они создают и реставрируют масштабные модели автомобилей, поэтому и требования клиентов были неординарными, в частности, хозяевам квартиры нужны были выставочные стенды с подсветкой для моделей, а также дополнительный свет по всей квартире. Кроме того, были и другие специфические пожелания: два санузла, зелёные стенды с живыми растениями, полноценная гардеробная, мастерская для моделирования и тёмная цветовая гамма. Давайте посмотрим, как дизайнеры справились с этой нетривиальной задачей!
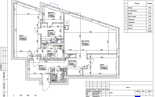
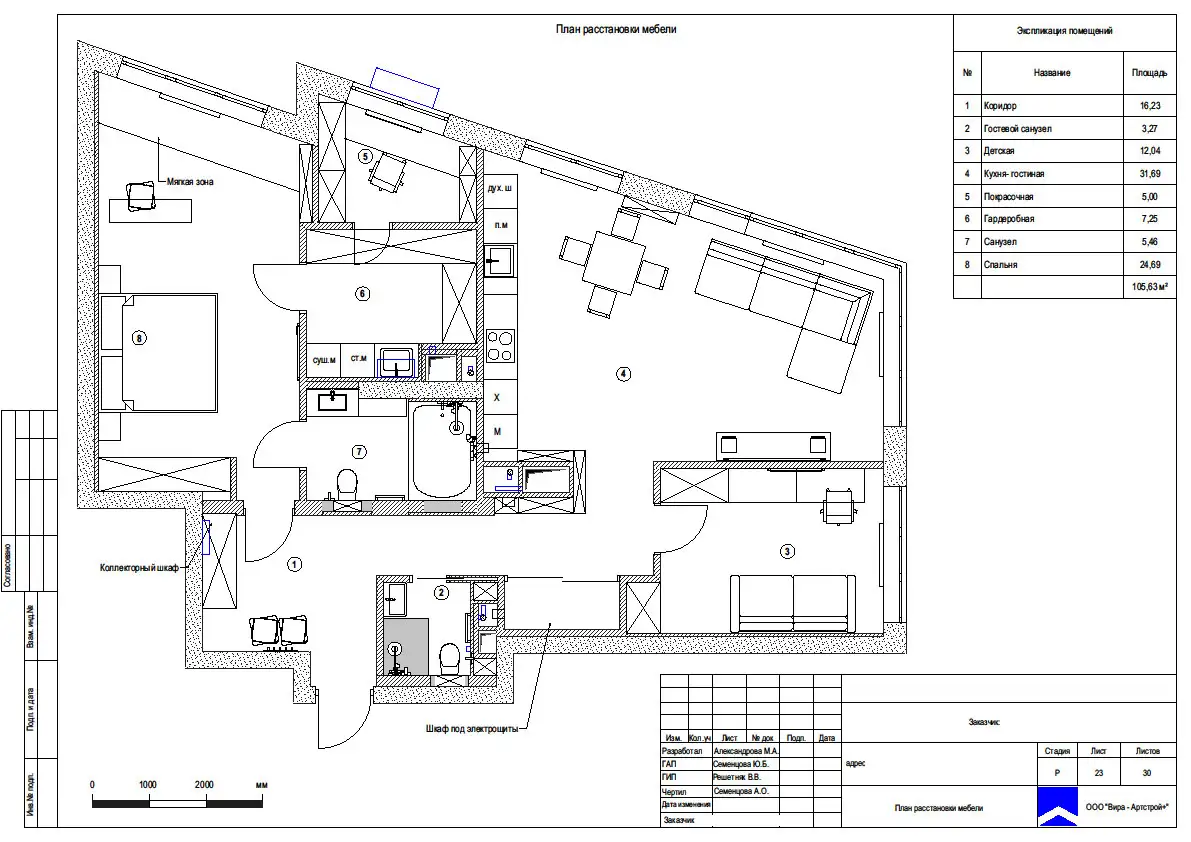
В ходе ремонта был выполнен полный демонтаж внутренних стен. Квартиру поделили на три функциональных зоны. Первая — спальня, к которой примыкают санузел, гардеробная и покрасочная-мастерская, где семья вместе занимается любимым хобби. Вторая зона — просторная кухня-гостиная, третья — детская. Все три зоны объединены общим коридором, и отовсюду есть быстрый удобный доступ ко второму санузлу.
Стиль интерьера очень современный, и при этом совершенно не претенциозный — такая обстановка будет актуальной и через пять, и через десять лет. Поскольку супруги хотели оформить квартиру в тёмных тонах, дизайнеры предложили палитру из серых и коричневых оттенков, которые в детской переходят в пастельную бежевую гамму.
Чтобы оживить и разнообразить тёмный интерьер, дизайнеры использовали сочетание выразительных фактур, созданных, в частности, при помощи декоративной штукатурки. Особенно тщательно поработали над светом — он в этой квартире выполняет не только привычную утилитарную функцию, но и декоративную, а также помогает эффективно зонировать пространство комнат.
Коридор
По потолку пущена зигзагообразная светодиодная лента, переходящая на стены. Это создает оригинальный, несколько футуристичный эффект.

Оформление коридора стало своего рода вызовом, с которым наши дизайнеры достойно справились. Как оказалось, даже небольшое и узкое пространство может быть решено в тёмной гамме без какого-либо ущерба.


В прихожей и коридоре доминируют серые и коричневые оттенки, в соответствии с требованиями заказчиков. Входная дверь, ламинат, рейки с вешалками выполнены в благородном оттенке «тёмный шоколад». У входа пол покрыт керамогранитной плиткой NEWPORT DARK GRAY (STON-KER), стилизованной под бетон.Такой прием не только разграничивает зоны визуально, но и очень долговечен.
По одной стороне коридора стены покрыты тёмно-серой декоративной минеральной штукатуркой, образующей грубую шероховатую фактуру. На другой стороне стены выложены декоративной плиткой PARK DARK GRAY с эффектом 3D-оттенка. В мягком свете её рельеф кажется более глубоким, а сам рисунок почти гипнотическим.
Кстати, о свете! Во входной зоне по всему периметру потолка установлены точечные светильники, в коридоре же по потолку пущена зигзагообразная светодиодная лента, переходящая на стены. Это создает оригинальный, несколько футуристичный эффект. Собственная подсветка имеется и у стеллажа, где представлена часть коллекции автомоделей — уже с порога гости могут увидеть и оценить неординарное хобби хозяев.
Единственный цветовой акцент в прихожей — травянисто-зелёный пуф, который на серо-коричневом фоне выглядит очень естественно, словно островок мягкого мха на камне. Рядом ниша с зеркалом и туалетным столиком. Для вещей предусмотрен встроенный шкаф с большими раздвижными зеркальными дверями, которые вместе с правильно организованным освещением визуально расширяют пространство, нивелируя тем самым все предполагаемые недостатки тёмной цветовой гаммы.
Кухня-гостиная
Пространство кухни-гостиной большое, открытое и многофункциональное. И здесь нашлось место для витрин с моделями автомобилей, они размещены по обеим сторонам кухонной зоны и в арке, ведущей в коридор.

Пространство кухни-гостиной большое, открытое и многофункциональное. Комната поделена на зону отдыха, обеденную и рабочую зоны. Как и в остальных помещениях, здесь преобладают оттенки коричневого и серого, исключения — белый потолок и вкрапления зелёного.


У большого панорамного окна бежевый угловой диван с контрастными подушками сочного зелёного оттенка, в тон дивану шторы. Рядом приземистый журнальный столик с массивными ножками и стеклянной столешницей. Напротив ТВ-панель, стена под которой декорирована очень эффектно. Большая её часть отделана вертикальными деревянными рейками, а справа от телевизора смонтировано великолепное панно из живого мха во всю высоту стены. Дополненное светодиодной подсветкой, панно оживляет всю комнату. Это своего рода свой собственный маленький садик, один взгляд на который поднимает настроение и умиротворяет.

Обеденный стол, как и журнальный, со стеклянной столешницей. Четыре мягких стула с широкой спинкой серовато-бежевые, в тон дивану и шторам.
Кухня организована максимально лаконично, всё необходимое разместилось вдоль одной стены: рабочие поверхности, техника, шкафы. Фасады тёмно-серые с шоколадно-коричневой вставкой по центру, матовые, минималистичные, вся кухня представляет собой единую конструкцию. Фартук в рабочей зоне также тёмно-серый, стилизованный под мрамор.
Как и полагается в открытых объединённых пространствах, здесь дизайнеры много внимания уделили приёмам визуального зонирования. Так, в гостиной и кухне разное напольное покрытие, ламинат и плитка. Потолок также разделён — в гостиной он двухуровневый, белый, увенчанный по центру футуристичными шестиугольными люстрами. В зоне кухни в потолок вмонтирована вставка из деревянных реек, между которыми установлены светильники. Дополнительные точечные лампы расположены по всему периметру потолка.
Конечно же, и в гостиной нашлось место для витрин с моделями автомобилей, они размещены по обеим сторонам кухонной зоны и в арке, ведущей в коридор. Фасады стеллажей отлично сочетаются по цвету с кухонной мебелью и комодом под телевизором, образуя гармоничную композицию.
Спальня
На стене за кроватью - модульные 3D-панели из термообработанного ясеня с эффектным геометрическим узором.

В спальне, как и в прихожей, интерьер построен на серо-коричневых тонах. Часть стен покрыта декоративной штукатуркой с эффектом сырого бетона, как и в коридоре, но около 70% поверхностей отданы глубоким коричневым оттенкам. На стене за кроватью мы видим модульные 3D-панели из термообработанного ясеня с эффектным геометрическим узором, восприятие которого меняется в зависимости от освещения. Сама кровать большая, с чёрным кожаным изголовьем, дополненным панелями по бокам. По обеим сторонам от нее роскошные светильники BOCCI: стеклянные шары на изящных тросах разной длины, похожие на сказочные огни. Дополнительные точечные светильники вмонтированы в потолок по всей комнате. Слева от кровати шкаф-купе с зеркальными дверями, рядом дверь, ведущая в гардеробную. В свою очередь, через гардеробную можно попасть в мастерскую-покрасочную, предназначенную для моделирования, и в отдельный хозяйский санузел.


Комод и прикроватные тумбочки бетонно-серые, под цвет штукатурки. При помощи перегородки из тонких деревянных реек спальня поделена на две части: непосредственно жилую и рабочую, расположенную у окна. Здесь можно удобно устроиться с ноутбуком, сидя за столом или лежа на широком мягком подоконнике. В стенной нише рядом с рабочим местом оборудовали ещё одну витрину с подсветкой для коллекционных машин. Благодаря такому расположению эта деталь не выглядит навязчивой, но придает интерьеру индивидуальность.

Напротив кровати телевизор, стена под которым украшена фреской с узором из тропических листьев от фирмы Affresco.
Детская
На стене у кровати серо-бежевые обои Affresco с фантазийным рисунком, изображающим парящие в небе воздушные шары, цирковых артистов и животных.

Самая светлая комната в квартире — детская. Здесь также присутствуют оттенки коричневого, поддерживающие общую эстетику пространства — паркетная доска на полу шоколадного оттенка, дверь, столешница рабочего стола. Но доминируют в комнате светлые тона: бежевый, белый, жемчужно-серый.


Для отделки стен здесь также использованы разные фактуры. Так, в рабочей зоне мы видим белую 3D-панель, напоминающую стену из снега. Здесь, кроме непосредственно рабочего места, разместили серый шкаф и телевизор.
Напротив диван молочно-кремового цвета. Чтобы сэкономить пространство, дизайнеры выбрали раскладывающуюся модель — ночью компактный диванчик превращается в полноценное спальное место. Рядом ещё один шкаф, встроенный в стену. На стене у кровати серо-бежевые обои Affresco с фантазийным рисунком, изображающим парящие в небе воздушные шары, цирковых артистов и очаровательных животных. «Небесную» тему поддерживают подвесные светильники по обе стороны от дивана, также выполненные в виде воздушных шаров. По центру потолка оригинальная люстра, корпус которой напоминает скрещенные между собой планетарные орбиты, что тоже дополняет композицию с небесным мотивом. Как и в родительской спальне, над дверью установлен кондиционер, чтобы создать в комнате оптимальный микроклимат.
Санузел хозяйский
Пространство организовано очень эргономично. В углу душевая кабина со стеклянными стенками и тропическим душем.

Как мы помним, отдельный санузел при спальне был одним из ключевых требований заказчиков. Как и сама спальня, он оформлен в коричневых оттенках. Чтобы сделать пространство более объёмным, дизайнеры использовали разные текстуры. На стенах мы видим 3D-панели, такие же, как в спальне, плитку GRAVITY ALUMINIUM HEXAGON COPPER, выполненную в виде мелкой мозаики, и деревянные вставки того же оттенка, что и дверь. На полу керамогранит Atlas Concorde Elgo Dark Brown Ret, имитирующий древесину.


Пространство организовано очень эргономично. В углу душевая кабина со стеклянными стенками и тропическим душем. Рядом тумба с умывальником и зеркалом. Унитаз подвесной, со скрытой инсталляцией. Над ним сделали небольшую нишу с подсветкой для декора или нужных мелочей.
Санузел общий
Второй санузел значительно просторнее. Здесь разместили ванну с нижней подсветкой и стеклянной ширмой и ТВ-панелью на стене.

Второй санузел, общий, значительно просторнее. Здесь разместили ванну с нижней подсветкой и стеклянной ширмой и ТВ-панелью на стене. Теперь понежиться в пене можно под любимый фильм — идеальное завершение тяжёлого дня.


Стена, к которой примыкает умывальник, почти полностью зеркальная, что визуально расширяет пространство и добавляет интерьеру динамичности. Цветовая гамма здесь также построена на шоколадных оттенках. Кафель на стенах стилизован под мрамор, над ванной и унитазом мозаика, как в хозяйском санузле, на полу керамогранит Minnesota Moka, имитирующий тёмный паркет.
На потолке точечные светильники, подсветка также вмонтирована в панно над унитазом и в нижнюю часть тумбы с умывальником. Такой свет подчёркивает глубину цветов и контраст фактур.
Дизайн-проект
Только разработав дизайн-проект, можно реализовать все ваши пожелания и предложения дизайнера. Наша компания уже 30 лет создает эксклюзивные интерьеры, которые радуют наших клиентов комфортом, уютом и продуманностью до мелочей.





















































