Информация и галерея
- ЖК Серебряный фонтан
- 109 м²
- 246 дней
- Современная классика
- Дизайн-проект
- Инженерные проекты
- Качественный ремонт
- Умный дом
- Комплектация ремонта
- Авторский надзор
- Страхование ремонта
О проекте
Концептуальная основа интерьера заключается в синтезе традиционных черт классицизма с мягкими натуральными материалами и современными технологиями.
Этот проект был разработан для бизнес-леди, ведущей активный образ жизни и часто принимающей в гостях любимых внуков. Главной задачей было создание универсального пространства, служащего источником вдохновения и спокойствия для хозяйки, а также комфортного окружения для творческой активности детей.
Архитектурные изменения предусматривают небольшую перепланировку: расширение гардеробной за счёт площади кухни-гостиной и гостевой детской и слияние двух отдельных санузлов в один крупный и функциональный. Такое решение позволило сделать интерьер более эргономичным, обеспечивая достаточную площадь для хранения вещей и исключив ненужные преграды.
Концептуальная основа интерьера заключается в синтезе традиционных черт классицизма с мягкими натуральными материалами и современными технологиями.
Потолки во всей квартире мы выровняли с использованием гипсокартона, что позволило сформировать идеально ровные поверхности и внедрить систему регулируемого освещения. Инженерная доска пола оттенка выбеленного дуба, расположенная в жилых зонах, придаёт дому ощущение тепла и уюта, гармонично переходящее в долговечность и устойчивость покрытий из керамогранита в функциональных зонах. Палитра квартиры основана на пастельной гамме природных оттенков, обогащённой точечными яркими акцентами.
Особое внимание заслуживает тот факт, что наша заказчица увлечена живописью и балетом, что отразилось на общей атмосфере интерьера. Декорирование стен произведениями искусства известных мастеров и выбор отделочных материалов, воспроизводящих лёгкость и грациозность танца, придают жилью уникальную эмоциональную окраску и превращают его в настоящее произведение искусства.
Использование сочетания традиций и новаторского подхода позволило добиться высочайшего уровня комфорта и эстетического удовольствия, наглядно демонстрируя, как успешно можно соединить классические формы и современные технологии, сохранив при этом атмосферу домашнего тепла и уюта.
Видео
Бывает лучше один раз увидеть, чем несколько раз услышать. Именно по этой причине мы подготовили для вас видео-обзор по этому объекту.
Подписывайтесь на наши каналы, чтобы быть в курсе новых интересных интерьеров:
3D-тур
Панорамные туры позволяют осматриваться в интерьере, приближать или отдалять объекты, переходить из помещения в помещение. Мы делаем фотосъемку лучших наших работ специальным оборудованием, после чего создаются эти 3D туры. Владельцев iPad и iPhone порадуют дополнительные возможности, связанные с наличием гироскопа!

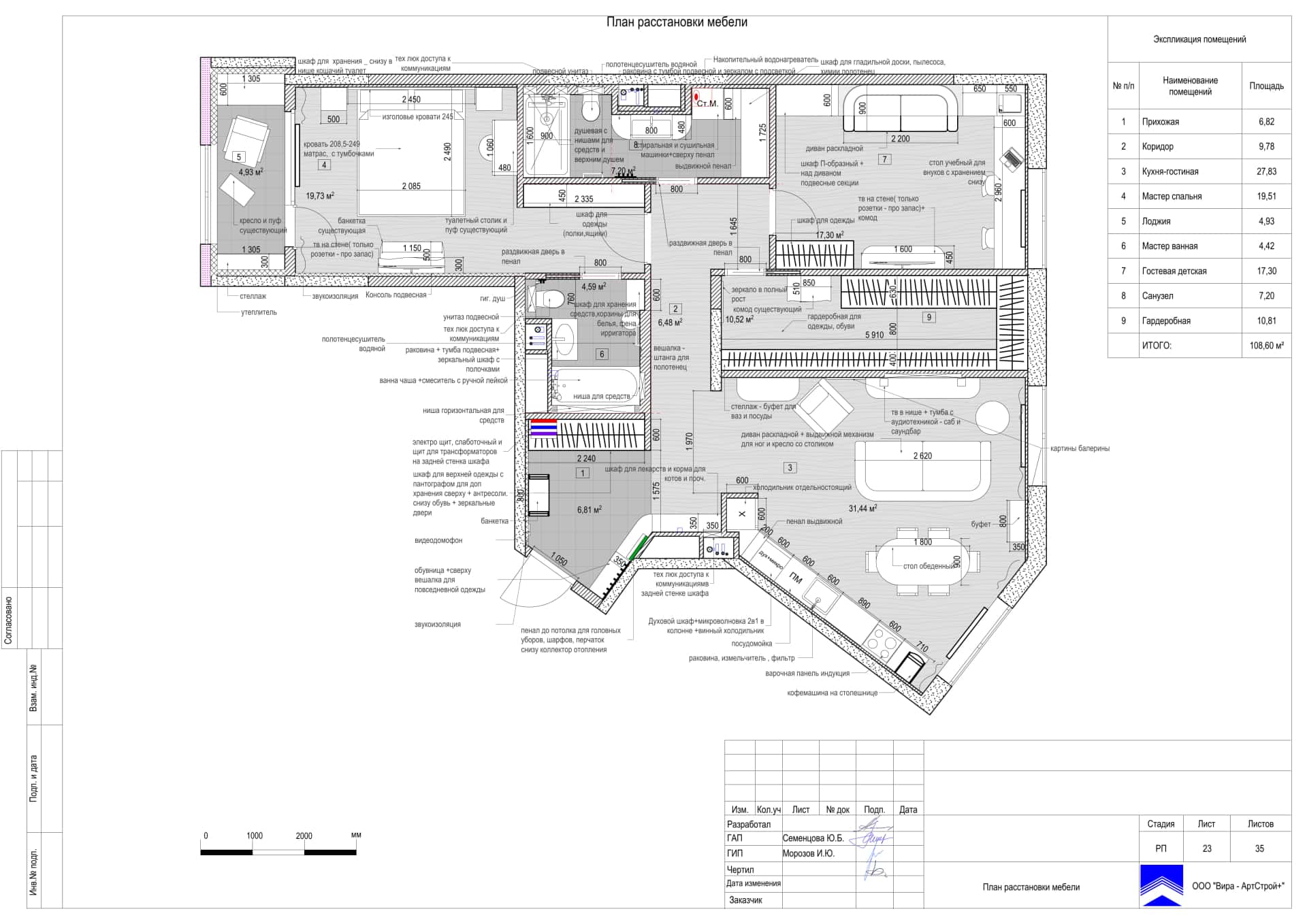
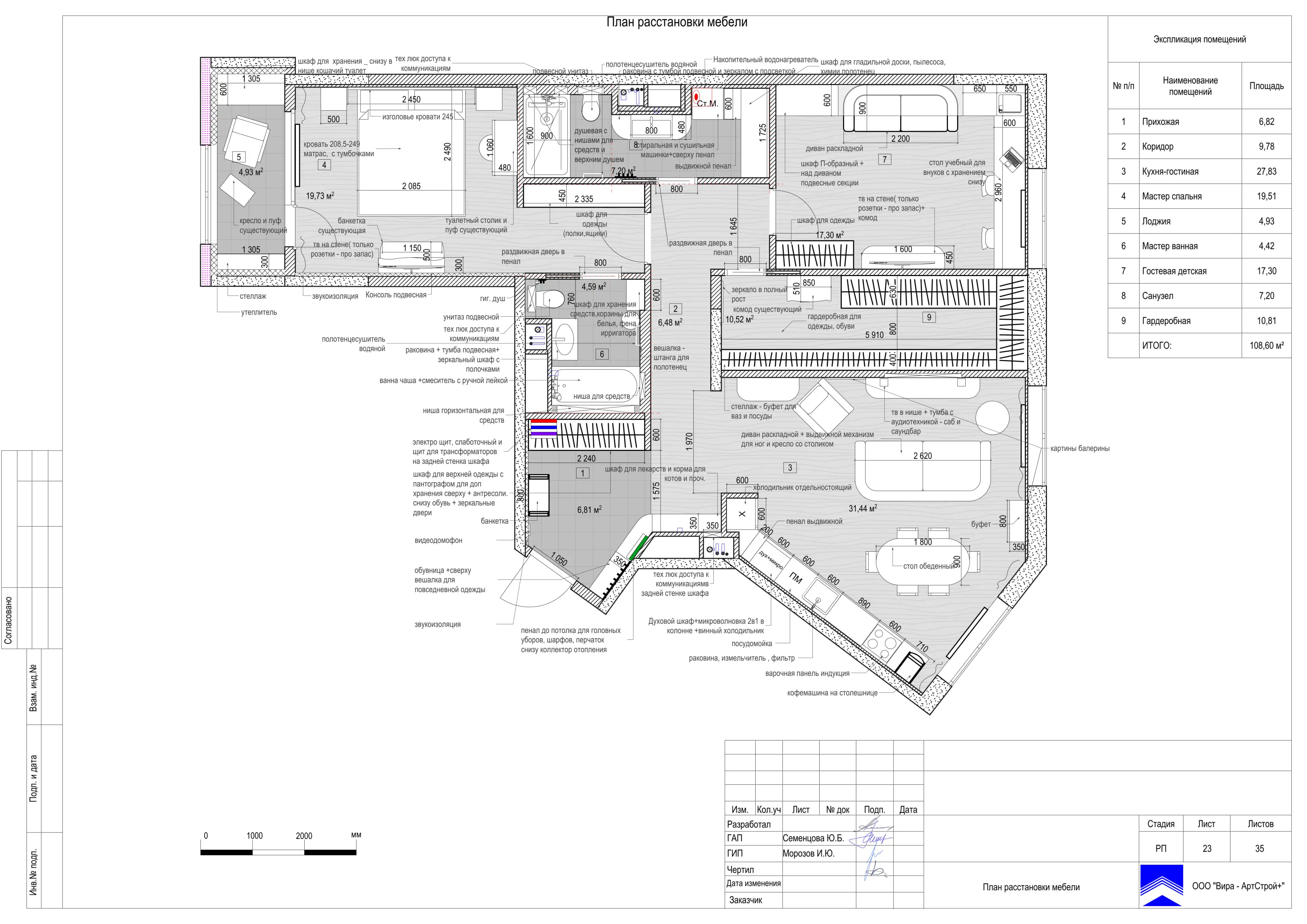
Планировка

Прихожая и коридор
Центром пространства стало большое состаренное зеркало, придающее интерьеру винтажный шарм.

Как театр начинается с вешалки, так любая квартира начинается с прихожей. Наша прихожая выдержана в утончённой гамме: стены окрашены в светлый зеленовато-серый оттенок и украшены молдингами, создающими изящный рельеф. Пол — светлый, под мрамор, с нежными прожилками, добавляющими благородство.


Освещение многослойное: трекинговая система на потолке позволяет расставлять световые акценты, а классическая люстра на длинном золотом подвесе дарит тёплый свет и изысканность.


Центром пространства стало большое состаренное зеркало, придающее интерьеру винтажный шарм. Под ним — бархатная банкетка в коричнево-серых тонах на контрастных чёрно-золотых ножках: мягкость ткани сочетается с графичностью опор.


Вместительный шкаф со скруглёнными формами объединяет в себе филёнчатые и зеркальные секционные дверцы, визуально расширяя пространство. Его мягкие линии гармонично сочетаются с общей стилистикой, не перегружая обстановку. У входа — открытая секция для верхней одежды, обитая тем же бархатом, что и банкетка: этот текстильный мотив связывает ключевые элементы интерьера.


Из прихожей в помещения квартиры ведёт просторный светлый коридор, при отделке которого мы использовали те же материалы и цвета, что и в прихожей.

Ключевым акцентом, задающим тон всему интерьеру квартиры, служит висящая на стене репродукция картины Эдгара Дега «Голубые танцовщицы». Напротив неё мы разместили ещё одно состаренное зеркало, обрамлённое классическими настенными светильниками, которые перекликаются с люстрой из прихожей.
Кухня-гостиная
Художественный акцент в интерьере создают репродукции картин Анри де Тулуз-Лотрека — «Сидящая танцовщица в розовом трико» и «Женщина за туалетом».

По правой стороне коридора располагается просторная гостиная, объединённая с кухней. Она раскрывается как гармоничное пространство, где единая цветовая гамма связывает функциональные зоны в целостную композицию. Светлые зеленовато-серые стены с изящными молдингами продолжают тон, заданный при входе в квартиру — спокойный, но выразительный.


Кухонная зона поддерживает эту линию: мебель выполнена в чуть более тёмном оттенке той же палитры. Филёнчатые фасады придают ей классический шарм, а сочетание ребристых и стеклянных секций верхних шкафов добавляет динамику. Кухонный фартук из керамогранита под розовый оникс становится неожиданным акцентом — его тёплые переливы мягко контрастируют с прохладной гаммой стен. Под духовым шкафом уютно расположился винный холодильник, подчёркивая продуманность планировки.


Центром обеденной зоны выступает большой овальный стол на полукруглых ребристых основаниях. Его лаконичную форму уравновешивают мягкие полукресла глубокого синего цвета — их насыщенный оттенок звучит как сочный аккорд в сдержанной симфонии пространства. Над столом парит вытянутая люстра на длинных цепях: большие стеклянные лепестки создают игру света и тени, превращая каждую трапезу в маленькое представление.


Зона гостиной встречает простором и комфортом. Светло-синий бархатный диван с каретной стяжкой становится главным героем пространства — его благородная фактура и цвет перекликаются с обеденными креслами, создавая единую цветовую нить. Диван раскладывается и может использоваться как полноценное спальное место для гостей. Перед диваном — круглый журнальный столик и ковёр в тон, формирующие уютную зону отдыха. Разноцветные диванные подушки добавляют интерьеру живость и очарование.

Напротив — ТВ-зона, оформленная с изысканной сдержанностью. Фактурные обои на боковых панелях добавляют глубину, а длинная подвесная тумба с ребристыми фасадами поддерживает общую стилистику помещения. Рядом с телевизором — мягкое кресло из той же коллекции, что и диван, обеспечивающее единство композиции. В простенке между окнами расположился комод под старину, а рядом с креслом — винтажный буфет для посуды, вносящие лёгкую нотку ностальгии.
Художественный акцент в интерьере создают репродукции картин Анри де Тулуз-Лотрека — «Сидящая танцовщица в розовом трико» и «Женщина за туалетом». Эти работы привносят в пространство эстетику танцевального искусства: изящные силуэты, выразительные жесты и тонкая игра цветовых оттенков словно оживляют атмосферу балетного закулисья. Благодаря картинам интерьер наполняется артистизмом и особой пластической выразительностью — мотив танца становится невидимой нитью, связывающей функциональность пространства с поэтикой движения.
Освещение выстраивает сложную световую партитуру: трекинговая система на потолке позволяет гибко регулировать акценты, а классический напольный торшер со стеклянным абажуром добавляет мягкий рассеянный свет. В этом пространстве классика встречается с артистизмом, а функциональность — с эстетикой, рождая интерьер, где каждая деталь рассказывает свою историю.
Мастер-спальня
На стене за кроватью — объёмное панно с изображением цветов: рельефная фактура и деликатная цветовая гамма оживляют стену, привнося в интерьер природную поэтику.

Слева по коридору мы расположили мастер-блок — спальню хозяйки и её ванную комнату. Спальня предстаёт как оазис безмятежности, где каждая деталь дышит утончённой гармонией. Светлые серо-бежевые стены, украшенные изящными молдингами, создают фон, одновременно нейтральный и выразительный — словно холст, на котором разворачивается симфония текстур и форм.


При входе в мастер-блок взгляд невольно задерживается на шкафу для одежды: его секционные зеркальные дверцы перекликаются с решением из прихожей, обеспечивая стилистическое единство дома. Зеркальные поверхности не только визуально расширяют пространство, но и играют со светом, наполняя комнату мягким сиянием.


Центром композиции становится кровать с высоким бархатным изголовьем. Слегка закруглённые по бокам контуры и каретная стяжка придают ей благородную пластику, превращая в настоящий предмет искусства. По обеим сторонам — прикроватные тумбочки на изящных изогнутых ножках, словно застывшие в лёгком танце. Над ними парят стеклянные светильники на длинных золотых подвесах: их прозрачные формы и тёплый металлический блеск создают атмосферу камерного уюта. Для вечернего чтения предусмотрены небольшие регулируемые точечные светильники — ненавязчивые, но функциональные.


Потолок украшает люстра в форме изогнутых пересекающихся колец. Её необычный силуэт вносит в пространство деликатный современный акцент, гармонично дополняя общую классическую композицию.

На стене за кроватью — объёмное панно с изображением цветов: рельефная фактура и деликатная цветовая гамма оживляют стену, привнося в интерьер природную поэтику.
Напротив окна расположился винтажный туалетный столик на изогнутых ножках. Его круглое зеркало украшено золотой лепниной, добавляющей нотку торжественности. Напротив кровати — телевизор, органично вписанный в композицию: под ним парит лёгкая ребристая консоль с выдвижными ящиками, а по бокам — панели с фактурными обоями в цветочных мотивах. Эти детали создают рамку, превращающую экран в элемент декора.
Завершают ансамбль две изящные детали: банкетка для переодевания в изножье кровати и круглый пуфик у туалетного столика. Серебряная обивка банкетки и плавные линии ножек перекликаются с пуфиком, формируя дуэт, где функциональность сочетается с эстетикой. Под кроватью раскинулся серо-голубой ковёр с низким разноуровневым ворсом — его мягкая текстура и приглушённый оттенок добавляют пространству тактильный комфорт и визуальную глубину.
Мастер-лоджия
Здесь мы оборудовали дополнительный уголок для отдыха и расслабления, установив глубокое мягкое кресло и пуфик для ног

Из спальни можно выйти на лоджию. На ней мы оборудовали дополнительный уголок для отдыха и расслабления, установив глубокое мягкое кресло и пуфик для ног успокаивающего серо-фиолетового цвета. Также мы оборудовали небольшой шкаф и напротив него открытый стеллаж для размещения книг, предметов декора и, возможно, коллекции нашей владелицы.

Мастер-ванная
Белые, бежевые, золотые и коричневые оттенки переплетаются, создавая благородную симфонию фактур.

Слева от входа в мастер-блок мы разместили ванную комнату хозяйки. Мастер-ванная предстаёт как пространство утончённой роскоши, где сдержанная палитра и продуманные детали создают атмосферу спа-салона.


Отделка и цветовая гамма задают тон: стены облицованы керамогранитом под светлый мрамор с выразительными бежево-коричневыми прожилками. Пол контрастирует с ними геометрическим узором в тех же тонах — это добавляет интерьеру графичность, не нарушая единства палитры. Белые, бежевые, золотые и коричневые оттенки переплетаются, создавая благородную симфонию фактур.


Зона умывания оформлена с особой изысканностью. Раковина из искусственного камня повторяет мраморный рисунок стен, становясь их естественным продолжением. Под ней — парящая тумба со скруглёнными углами и выдвижными ящиками: её лёгкая конструкция визуально «разгружает» пространство. Над раковиной скрыт овальный настенный шкафчик — он замаскирован за зеркалом с подсветкой, что придаёт композиции лаконичность и современность.


У входа расположился высокий шкаф-пенал с золотой отделкой. Его торжественные акценты уравновешивает круглый пуфик из эко-кожи в коричневом цвете. Каретная стяжка на поверхности пуфика добавляет тактильную глубину, а плавные формы смягчают строгость линий.
Функциональные зоны продуманы до мелочей. Подвесной унитаз со скрытой инсталляцией подчёркивает чистоту линий интерьера, избавляя пространство от лишних деталей. Стена у ванны превращена в художественное полотно: мозаичное панно с крупным цветочным рисунком оживляет поверхность, а подсветка по его периметру создаёт эффект свечения, превращая эту зону в центральный акцент. Напротив душа встроены компактные полочки для банных принадлежностей — их лаконичный дизайн не нарушает целостность композиции.
Освещение выстраивает многослойную атмосферу. Классическая люстра на золотой основе дарит тёплый обволакивающий свет, а потолочные споты обеспечивают функциональную подсветку ключевых зон. В сочетании с зеркальными поверхностями и мраморными текстурами свет играет, создавая игру бликов и теней.
Гостевая-детская
Диван обрамляет шкаф с закрытыми секциями и открытыми книжными полками — сочетание филёнчатых фасадов молочного цвета и свободных поверхностей создаёт баланс функциональности и лёгкости.

Гостевая-детская встречает нас умиротворяющей гаммой: жемчужно-серые стены с изящными молдингами создают благородный фон, где каждая деталь смотрится особенно выразительно.


Центральное место занимает светло-серый мягкий раскладной диван. На нём свободно могут разместиться два ребёнка. Диван обрамляет шкаф с закрытыми секциями и открытыми книжными полками — сочетание филёнчатых фасадов молочного цвета и свободных поверхностей создаёт баланс функциональности и лёгкости. Над диваном закреплены классические бра, разливающие тёплый уютный свет.


За спинкой дивана — выразительный акцент: фреска, имитирующая мозаичное панно с абстрактным рисунком. Её переливы и геометрические мотивы оживляют стену, превращая её в художественное полотно.


Освещение продумано многослойно. Трекинговая система на потолке позволяет гибко регулировать световые акценты, а центральная люстра — россыпь прозрачных шариков — создаёт эффект лёгкого сияния. Встроенная подсветка в книжном шкафу мягко высвечивает корешки книг, добавляя пространству камерность и уют.

Напротив дивана — телевизор, под которым расположилась высокая тумба с рифлёными фасадами. Рядом стоит двустворчатый шкаф для одежды: его молочный цвет и филёнчатые фасады гармонично вписываются в общую палитру.
Особая зона — у окна. Здесь протянулась парящая рабочая консоль с выдвижными ящиками. Два светло-серых кресла приглашают к совместным занятиям: бабушка может использовать это место как свой рабочий кабинет, а во время своих приездов в гости этот просторный стол становится местом для совместного творчества или приготовления уроков детьми.
Завершает композицию молочный ковёр у дивана. На нём расположился белый мраморный круглый журнальный столик — лаконичный акцент, объединяющий пространство.
Санузел
В центре внимания — большая прямоугольная раковина на парящей тумбе. Её закруглённые выдвижные ящики и рифлёные фасады создают игру светотени, придавая мебели скульптурную выразительность.

Санузел выполнен в изысканной серо-бежевой гамме: стены и пол облицованы керамогранитом, который задаёт пространству благородную текстуру. Жемчужно-серая мебель деликатно оттеняет отделку, а золотые аксессуары вносят тонкие блики роскоши.


В центре внимания — большая прямоугольная раковина на парящей тумбе. Её закруглённые выдвижные ящики и рифлёные фасады создают игру светотени, придавая мебели скульптурную выразительность. Над раковиной размещено масштабное прямоугольное зеркало с подсветкой по периметру: свет мягко очерчивает границы, визуально расширяя пространство.


Освещение выстроено многослойно. По бокам от зеркала свисают потолочные светильники на длинных подвесах — их изящные линии и золотой отблеск привносят камерный уют. Дополняют картину встроенные споты, равномерно распределяющие свет и подчёркивающие фактуру материалов.


Справа от умывальной зоны расположена колонна, в которой компактно размещены стиральная и сушильная машины. Рядом — большой шкаф во всю стену. Его филёнчатые фасады обеспечивают вместительное хранение, сохраняя визуальную целостность интерьера.
Подвесной унитаз со скрытой инсталляцией подчёркивает чистоту линий, избавляя пространство от лишних деталей. Душевая зона частично отгорожена прозрачной стеклянной перегородкой, что сохраняет ощущение простора. В стене возле душа встроены полочки для банных принадлежностей: их подсветка и плитка с геометрическим узором превращают утилитарную зону в миниатюрный арт-объект.
Гардеробная
Основу системы хранения составляют открытые полки со встроенной подсветкой — свет мягко подчёркивает содержимое, придавая пространству изысканность и глубину.

Дальше по правой стороне коридора после кухни-гостиной мы разместили вместительную гардеробную. Она выдержана в молочном цвете, создающем атмосферу мягкости и спокойствия.


Основу системы хранения составляют открытые полки со встроенной подсветкой — свет мягко подчёркивает содержимое, придавая пространству изысканность и глубину. Также для хранения предусмотрены вместительные выдвижные ящики.
В центре одной из стен размещено высокое овальное зеркало с подсветкой по периметру — его плавные линии и тёплое свечение становятся визуальным акцентом, не только помогая всесторонне оценить подобранный образ, но и украшая интерьер утилитарного помещения.
Дополняет композицию винтажный комод с расписными фасадами и золотыми ручками — он отведён для аксессуаров и придаёт интерьеру художественный штрих.



































































