Информация и галерея
- ЖК Shagal
- 84 м²
- 198 дней
- Современный
- Дизайн-проект
- Инженерные проекты
- Качественный ремонт
- Умный дом
- Комплектация ремонта
- Авторский надзор
- Страхование ремонта
О проекте
Для интерьера мы подобрали изысканное сочетание тёплых натуральных оттенков — от молочных до кофейных.
Сегодня вы увидите интерьер квартиры, разработанный нашей командой в современном стиле с тенденцией к минимализму для молодой семейной пары.
Для интерьера мы подобрали изысканное сочетание тёплых натуральных оттенков — от молочных до кофейных.
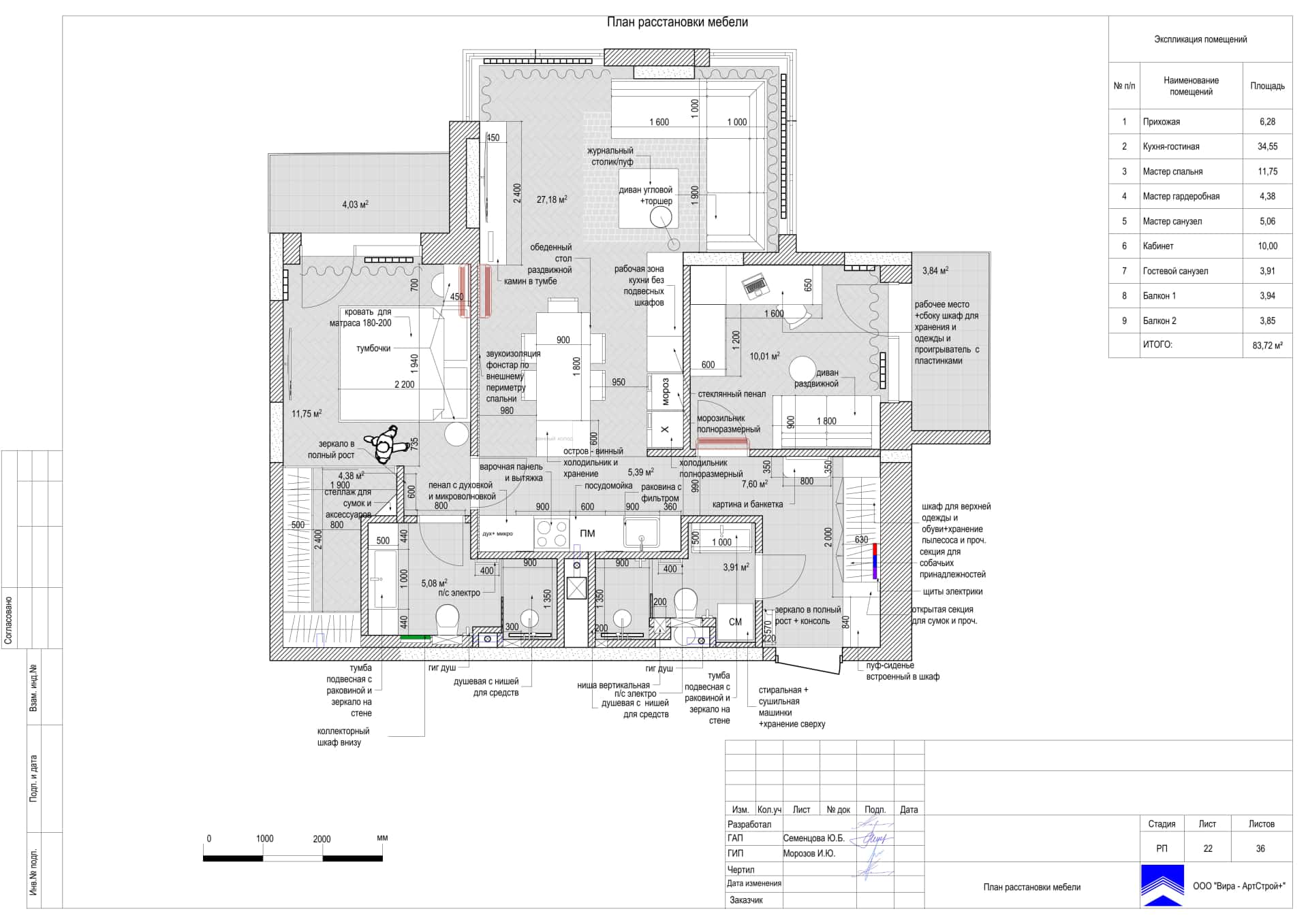
Мы изменили планировку квартиры с учётом современных тенденций и потребностей молодой семьи: объединили кухню-гостиную, выделили отдельное помещение под кабинет, где в будущем можно будет расположить детскую, создали мастер-спальню с мастер-гардеробной и мастер-санузлом, и оставили второй, гостевой санузел.
Видео
Бывает лучше один раз увидеть, чем несколько раз услышать. Именно по этой причине мы подготовили для вас видео-обзор по этому объекту.
Подписывайтесь на наши каналы, чтобы быть в курсе новых интересных интерьеров:
Планировка

Прихожая
Двери в соседние помещения декорированы так же, как и стены, со скрытым крепежом и без использования наличников.

Прихожая нашей квартиры – небольшое помещение, но благодаря интерьеру, решённому в современном стиле, оно смотрится светлым, лёгким и наполненным воздухом.


Стены отделаны декоративной штукатуркой в молочном оттенке. Двери в соседние помещения декорированы так же, как и стены, со скрытым крепежом и без использования наличников.
При входе мы разместили зеркало от пола до потолка с подсветкой и небольшим парящим консольным столиком для необходимых мелочей.
С другой стороны от входа наши дизайнеры установили большой гардеробный шкаф с отделкой из шпона кофейного цвета и оригинальную скамью, интегрированную в корпусную мебель.
Открытые секции с аксессуарами и большое живописное полотно в стиле современного абстракционизма придаёт минималистичному интерьеру индивидуальность и творческий креатив.
Кухня-гостиная
Живые растения поддерживают выбор эко-материалов в отделке интерьера этого помещения.

Угловой модульный диван с мягкой обивкой кофейного цвета уютно расположился в нише в обрамлении больших окон. Здесь достаточно места для посиделок в компании друзей.


Необычный столик в современном эко-стиле и абстрактная картина на стене контрастируют с современным чёрным торшером, создающим особое настроение в вечернее время.


В поверхность напольной тумбы встроили безопасный открытый био-камин. А плазменную панель разместили на фоне декоративных панелей из такого же тёмно-коричневого шпона дерева и рельефного панно «под камень» со скрытой подсветкой.


Столовый гарнитур, включающий в себя стол из массива тёмного дерева с широким рельефным основанием и мягкие велюровые светло-бежевые кресла на чёрном металлокаркасе, обрамлён корпусной кухонной мебелью.

Одна из секций высокого шкафа со стеклянным фасадом-витриной придаёт лёгкость и особый шарм интерьеру этого помещения, а также сочетается со стеклянной дверцей винного шкафа, встроенного в остров, который примыкает к обеденному столу.
Паркетный пол из тёмного дерева в традиционной раскладке «ёлочка» в этой зоне добавляет респектабельность и красиво подчёркивает серый керамогранит в отделке столешницы и стены за кухонной мебелью.
Трековые системы освещения помогают зонировать помещение и являются основным источником света. А оригинальные дизайнерские медные светильники, висящие над столом, похожие на экзотические цветы, создают настроение и являются основным декором кухни.
Вся бытовая встроенная техника со стороны зоны столовой скрыта либо за фасадами шкафов, либо расположена со стороны коридора, в рабочей зоне кухонной мебели. Здесь же размещена кухонная мойка.
Керамогранит на полу выполняет утилитарную функцию в рабочей зоне кухни, визуально отделяет её от основного помещения кухни-гостиной и плавно перетекает в коридор и далее в прихожую.
Мастер-спальня
Асимметричная отделка стены в изголовье придаёт динамику, современный шарм и делит зону отдыха на мужскую и женскую части.

Вторая масштабная и многофункциональная зона в этой квартире – мастер-блок, включающий в себя спальню, гардеробную и санузел. Это не просто комнаты, а целая современная система хозяйских помещений, в которых есть весь необходимый для удобства функционал приватного пространства.


Мастер-спальня тоже выполнена в сочетании светлых стен, мебели и отделки из тёмного шпона. Центральное место занимает белая кровать в мягком корпусе. Асимметричная отделка стены в изголовье придаёт динамику, современный шарм и делит зону отдыха на мужскую и женскую части. Мужская часть выполнена очень лаконично: наши дизайнеры выбрали небольшую подвесную тумбу и минималистичный прикроватный светильник над ней.


Со стороны окна, на женской половине, мы разместили большое вертикальное зеркало во всю стену, а вместо прикроватной тумбочки — туалетный столик и небольшой белый пуф.

Прикроватный светильник расположили в изголовье, а над ним — контрастную картину в том же стиле абстракционизм.
Большое окно, выходящее на балкон, обеспечивает спальню дневным светом, а трековые потолочные светильники являются основным освещением в тёмное время суток.
Размер мастер-гардеробной максимально увеличен за счёт пространства входной зоны спальни. Для того, чтобы скрыть простенок со стороны комнаты, мы разместили здесь второе зеркало во всю высоту помещения.
Попасть в мастер-гардеробную можно через откатную секцию стены из тёмного стекла, разделяющей пространство спальни и гардеробной, но пропускающей дневной свет от окна.
Гардеробная получилась сложной формы, так как является смежным помещением между спальней и хозяйским санузлом.
Наполнение гардеробной реализовали, использовав лёгкие мобильные конструкции с навесными рейлингами и полками для одежды.
Мастер-санузел
Светлый базовый керамогранит сочетается с керамогранитом, имитирующим природную фактуру тёмного дерева.

Мастер-санузел, как продолжение пространства мастер-спальни, выполнен в тех же цветах, а коллекции керамогранита имитируют отделочные материалы комнаты. Такой приём визуально «повышает» статус утилитарного помещения до интерьера жилого.


Светлый базовый керамогранит сочетается с керамогранитом, имитирующим природную фактуру тёмного дерева.


Массивная лаконичная раковина с подвесной тумбой тёмно-серого цвета и большим квадратным зеркалом занимает пространство от стены до стены, придавая целостность интерьеру санузла.

Рядом дизайнеры разместили подвесной унитаз в цвете графит, сочетающийся с оттенком тумбы под раковиной.
Зону душевой мы обустроили в образовавшейся нише, отделённой от общего пространства санузла прозрачной стеклянной перегородкой.
Освещение душевой осуществляется при помощи скрытой потолочной подсветки и подсветки ниши с полочками под косметику.
Кабинет
Рабочее место ограничено аккуратным письменным столом с выдвижными ящиками и лаконичными навесными полками для книг и аксессуаров.

Справа от входа дизайнеры установили уютный светлый диван, а за ним тонированную зеркальную панель во всю высоту стены. Также на стене за диваном разместили светильник-бра для чтения и легкой местной подсветки.


Корпусная мебель в этой комнате представлена угловым гарнитуром, выполненным в отделке из шпона тёмного дерева. Шкаф — место для дополнительного хранения — совмещён с рабочей зоной как единая мебельная группа.


Рабочее место ограничено аккуратным письменным столом с выдвижными ящиками и лаконичными навесными полками для книг и аксессуаров.

Так как для работы за ноутбуком нет необходимости в ярком освещении, дизайнеры ограничились лёгкой подсветкой открытых секций мебели и скрытой подсветкой по контуру стола.
Рабочая зона дополнена удобным мягким креслом на колесиках в велюровой обивке приглушённого терракотового цвета.
Гостевой санузел
Подсветка по периметру хорошо освещает помещение, отражаясь от глянца керамогранита.

Накладная раковина и консоль, состоящая из двух подвесных тумб с ящиками и большим зеркалом, вписана в нишу.


Слева от входа наши дизайнеры разместили подвесной унитаз со скрытой инсталляцией и встроенные в колонну стиральную и сушильную машины, совместив в единую композицию бытовую технику и секции для хранения.


В отделке вновь используется коллекция керамогранита с фактурой тёмного дерева, сантехника и мебель в цвете графит.

Небольшая ниша зоны душевой практически повторяет отделку такой же душевой хозяйского санузла с той лишь разницей, что здесь напольное покрытие дизайнеры выбрали тоже базовое, как и отделку стен.
Ниши с подсветкой превращают стандартную конфигурацию помещения в необычную, дополнительно освещают и избавляют от монтажа навесных секций.

















































