Информация и галерея
- ЖК Shagal
- 84 м²
- 196 дней
- Современный
- Дизайн-проект
- Инженерные проекты
- Качественный ремонт
- Умный дом
- Комплектация ремонта
- Авторский надзор
- Страхование ремонта
О проекте
Запрос был чётким: уже сейчас нужно удобное рабочее место для удалённой работы, но при этом важно, чтобы пространство легко могло трансформироваться в будущем, когда в семье появится ребёнок.
Сегодня мы покажем наш новый проект — уютную квартиру для молодой пары, в которой мы создали пространство, готовое к самому главному чуду в их жизни.
Этот проект мы разрабатывали для семьи, которая мечтает о ребёнке и заранее готовит для него уютное гнёздышко. Перед нами стояла особенная и вдохновляющая задача — разработать интерьер не только для их сегодняшней жизни, но и с перспективой на рождение малыша.
Заказчики — современные активные люди, ценящие комфорт, функциональность и уютную атмосферу. Их запрос был чётким: уже сейчас им нужно удобное рабочее место для удалённой работы, но при этом важно, чтобы пространство легко могло трансформироваться в будущем, когда в семье появится ребёнок. Этот взгляд и определил ключевую философию проекта: мы создавали гибкий интерьер, где каждый метр работает на качество жизни сегодня, но готов к изменениям завтра.
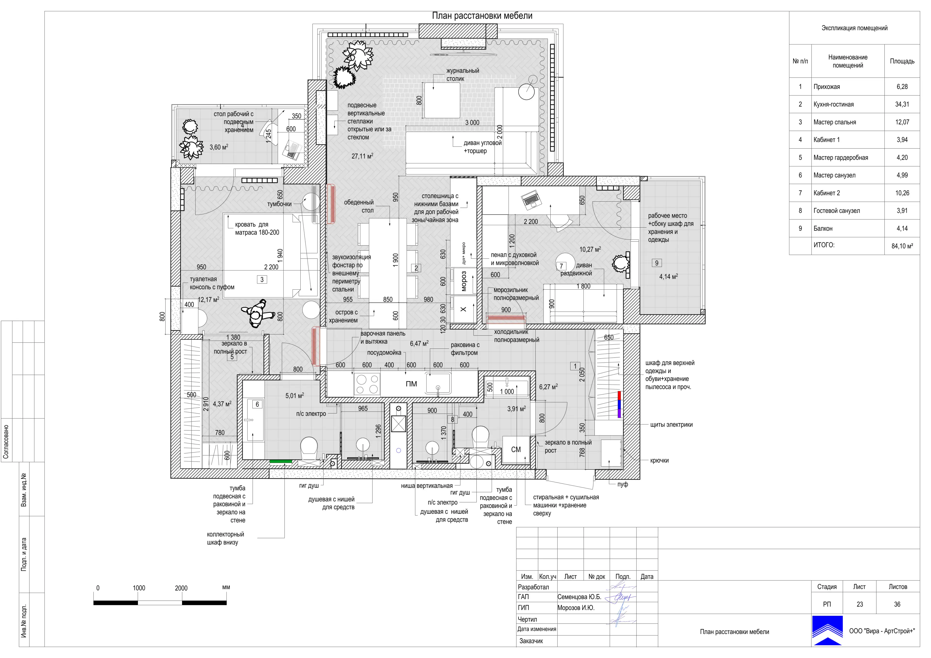
Сердцем квартиры стала кухня-гостиная. Мы соединили два помещения в общее светлое пространство, ставшее центром притяжения для общения и отдыха. Поскольку наши заказчики работают из дома, мы организовали два полноценных рабочих места. Изолированный кабинет, который в будущем легко превратится в детскую, и удобная рабочая зона на утеплённом балконе с отличным естественным светом.
Личная зона родителей — спальня — совмещена с гардеробной для максимального удобства. Из родительской спальни есть выход в отдельный мастер-санузел, что обеспечивает максимум удобства и приватности. В квартире есть и второй санузел, гостевой, попасть в который можно из прихожей.
Мы вдохновлялись природой и создали светлый воздушный интерьер в современном стиле с экологичным уклоном. За основу взяли нейтральную палитру натуральных оттенков, которые наполнили пространство простором и светом. Оливковые и изумрудные акценты оживляют обстановку, напоминая о весенней листве.
Видео
Бывает лучше один раз увидеть, чем несколько раз услышать. Именно по этой причине мы подготовили для вас видео-обзор по этому объекту.
Подписывайтесь на наши каналы, чтобы быть в курсе новых интересных интерьеров:
Планировка

Прихожая
Мы решили не перегружать пространство столиками и тумбочками.

Прихожая выполнена в светлых тонах. В качестве напольного покрытия мы использовали белый керамогранит с матовой поверхностью и мраморными разводами. Маленькие чёрные вставки между плитками придают пространству современную графичность, но при этом не перегружают его. Стены выкрашены в сложный желтовато-бежевый цвет.


Справа от двери мы обустроили удобную нишу с пуфиком и крючками для одежды. Бледно-оливковая обивка пуфика выделяется на общем фоне прихожей, но не создаёт резкого контраста. Хотя ниша закрыта с трёх сторон, точечный светильник даёт достаточно света.


Мы решили не перегружать пространство столиками и тумбочками — для мелочей мы обустроили полки с подсветкой в боковой стене ниши. Это удобно для хозяев дома, при этом чистые линии интерьера не нарушаются.
Кухня-гостиная
Пространство получилось цельным, но при этом очень просторным и воздушным.

Из прихожей можно попасть в рабочую зону кухни. Цвет стен и напольное покрытие здесь такие же, как в коридоре, поэтому пространство выглядит цельным и гармоничным.


Кухня-гостиная — большое совмещённое пространство, где есть зоны для отдыха, приёма пищи и, конечно же, готовки — заказчики работают дома и готовят три раза в день. Планировка асимметричная, но логичная и очень удобная. Зоны расположены не по линейке, а в свободном порядке, но каждая читается легко и сразу. Поэтому пространство дышит и не кажется заставленным мебелью.


В гостиной и жилых помещениях мы уложили дубовую паркетную доску. Это экологичный и при этом влагостойкий материал, что особенно важно для семьи с ребёнком. Классическая палубная укладка напоминает традиционный деревянный настил. Она визуально расширяет пространство и подходит для помещений любой формы и размера.


Кухонный гарнитур мы поделили на два отдельных объекта, расположенных под углом друг к другу. Таким образом, пространство получилось цельным, но при этом очень просторным и воздушным.


Фасад кухни — молочный, чуть светлее основного оттенка стен. Вся техника встроенная, а отсутствие выступающих дверных ручек и объёмного декора позволяет сохранить ощущение простора.

Деревянный обеденный стол и мягкая мебель приглушённого светло-зелёного оттенка придают кухне-гостиной нотки эко-стиля, не выходя при этом за рамки современной стилистики.
Отдельная подвесная люстра над обеденным столом обеспечивает камерность и уют. Плафоны-шары выделяются на фоне общей линейной геометрии, что дополнительно смягчает обеденную зону.
Зона гостиной выделяется светлым ковром с расцветкой под мрамор и уютным раскладным диваном оливкового цвета.
Круглый журнальный столик и торшер с плафонами-шариками перекликаются с люстрой над обеденным столом, что придаёт помещению целостность.
Два подвесных вертикальных стеллажа с подсветкой предназначены для посуды и сувениров. Стеклянные дверки не мешают обзору, но при этом защищают содержимое шкафчиков от пыли.
Мастер-спальня
Личную зону родителей мы отделили, совместив с гардеробной и отдельным санузлом.

Напольное покрытие спальни — та же инженерная доска. В изголовье мы сделали смелый акцент — выкрасили стену в глубокий изумрудный цвет. Она сразу притягивает взгляд и смотрится абсолютно органично на фоне желтовато-бежевой гаммы.


По обеим сторонам кровати мы поставили парные деревянные тумбочки и дополнили их высокими цилиндрическими светильниками, тёплый свет которых создает уютную интимную атмосферу.


Чёрная полупрозрачная раздвижная дверь гардеробной не только зонирует пространство, но и добавляет интерьеру лёгкую интригу.


Гардеробная оборудована вместительным встроенным шкафом. Места для вещей более чем достаточно, а встроенная подсветка помогает быстро найти нужное.

Рядом с гардеробной расположился туалетный столик с подсветкой по периметру зеркала. Мягкий зеленоватый пуфик добавляет уюта, делая этот уголок идеальным местом для косметических ритуалов хозяйки.
Выход на балкон мы оформили лёгкими белыми занавесками. Они мягко рассеивают свет, наполняя комнату воздухом и смягчая границу между помещением и улицей.
Застеклённый балкон, выполняющий функцию кабинета, основательно утеплён. Расположение стола позволяет ловить мягкий боковой свет, поэтому работать здесь легко и приятно целый день. На обоих балконах мы уложили керамогранит кремового цвета с матовой поверхностью. Материал устойчив к низким температурам и имеет 4-й класс износостойкости.
Кабинет
Рабочее место с деревянным столом и эргономичным креслом спроектировали с прицелом на будущее.

Кабинет спроектирован так, что его функция может быть быстро изменена, обеспечивая плавный переход к новому этапу жизни семьи. Эта комната в будущем станет детской, поэтому мы заранее создали для неё подходящий фон. На розово-бежевой стене у дивана уже поселились забавные гуси — первый шаг к сказочной атмосфере.


Белый встроенный шкаф с ящиками (пока для вещей, а в будущем — для игрушек) не перегружает пространство. Яркий акцент здесь — шкаф у рабочей зоны мягкого терракотового цвета. Круглые столик и люстра добавляют интерьеру мягкость и завершённость.


На пол мы положили ту же паркетную доску, что и в других помещениях. Ей не страшны ни пролитая вода, ни детские игры. К тому же это экологичный материал, который не выделяет вредных веществ.

Рабочее место с деревянным столом и эргономичным креслом спроектировали с прицелом на будущее: сегодня здесь работают взрослые, а завтра оно станет уголком для учёбы и творчества ребёнка.
Столешница большая — это удобно и для работы, и для творчества. Вместительные ящики скрывают всё необходимое, позволяя не загромождать пространство. Стол приставной, поэтому при желании его легко переместить в любое другое место комнаты.
Раскладной диван решает вопрос с размещением гостей, а белый тюль, прикрывающий балконную дверь, добавляет помещению лёгкость и свет.
Гардеробная

Мастер-санузел
Стеклянные панели душевой комнаты позволяют сохранить ощущение единого пространства.

Напольное покрытие в мастер-санузле такое же, как в прихожей, что придаёт интерьеру целостность. Основной цвет стен — бежевый, а стены возле раковины и в душевой кабине мы выделили вертикальной плиткой травянистого оттенка.


Внутри душевой кабины разместили тропический душ и удобную полочку для банных принадлежностей с водонепроницаемой подсветкой.


Стеклянные панели душевой комнаты позволяют сохранить ощущение единого пространства. Вся сантехническая фурнитура в этом санузле — бронзового цвета.
Накладная раковина-чаша смотрится очень современно, подсветка по периметру зеркала и два дополнительных светильника дают достаточно света.
Гостевой санузел
Стиральную и сушильную машины мы встроили в нишу, а сверху расположили просторный шкафчик для белья и бытовой химии.

Оформление гостевого санузла перекликается с мастер-вариантом, но акцентные стены выполнены в тёплых терракотовых оттенках, а сантехническая фурнитура — серебристая. Высокое овальное зеркало позволяет рассмотреть себя со всех сторон. Раковина — такая же чаша, но встроенная тумбочка немного меньше по размеру.


Стиральную и сушильную машины мы встроили в нишу, а сверху расположили просторный шкафчик для белья и бытовой химии.

Унитаз здесь тоже подвесной. Сиденье с микролифтом обеспечивает дополнительную тишину и безопасность. Крышка не хлопает и исключает риск прищемить пальцы, что особенно важно, если в доме есть дети.
В душевой кабине установлен тропический душ. Встроенная ниша с подсветкой, видимой только изнутри, добавляет каплю интимности и удобства — всё необходимое под рукой и с приятным освещением.
Балкон























































