Информация и галерея
- ЖК Событие
- 91 м²
- 225 дней
- Современный Эко-стиль
- Дизайн-проект
- Инженерные проекты
- Качественный ремонт
- Умный дом
- Комплектация ремонта
- Авторский надзор
- Страхование ремонта
О проекте
Наши заказчики хотели получить деликатный и выдержанный стиль, спокойный для восприятия, но при этом поиграть с цветом и добавить любимые синие и голубые оттенки.
Сегодня я продемонстрирую вам интерьер квартиры площадью 91 квадратный метр, разработанный дизайнерами и выполненный командой специалистов по дизайнерскому ремонту компании «Вира-АртСтрой».
Интерьер этой квартиры наши дизайнеры создали для семейной пары врачей. Оба их сына уже выросли и живут отдельно, поэтому зонирование пространства спроектировано с учетом потребностей и привычек двух человек.
Наши заказчики хотели получить деликатный и выдержанный стиль, спокойный для восприятия, но при этом поиграть с цветом и добавить любимые синие и голубые оттенки.
Пара много путешествует и любит заниматься дайвингом на островах, поэтому наши дизайнеры приняли решение разработать концепцию современного эко-стиля в натуральных материалах с применением древесных текстур, известняковых пород и с акцентами на морскую тематику. Вкрапление синих и бирюзовых оттенков в аксессуарах и отделке стало основной задачей при создании интерьера этой квартиры.
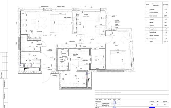
Очень интересно планировочное решение квартиры: удобное, функциональное, в тенденциях современного обустройства жилья с разделением общей, приватной и хозяйственной зоны.
Пространство прихожей не отделено от пространства кухни-гостиной, а за её дверью уже находится приватная зона, которая включает в себя многофункциональный кабинет со спортивным уголком, спальню, раздельные гардеробные, постирочную и хозяйский санузел.
Ещё одна гардеробная для сезонной одежды и гостевой санузел расположены при входе в квартиру.
Видео
Бывает лучше один раз увидеть, чем несколько раз услышать. Именно по этой причине мы подготовили для вас видео-обзор по этому объекту.
Подписывайтесь на наши каналы, чтобы быть в курсе новых интересных интерьеров:
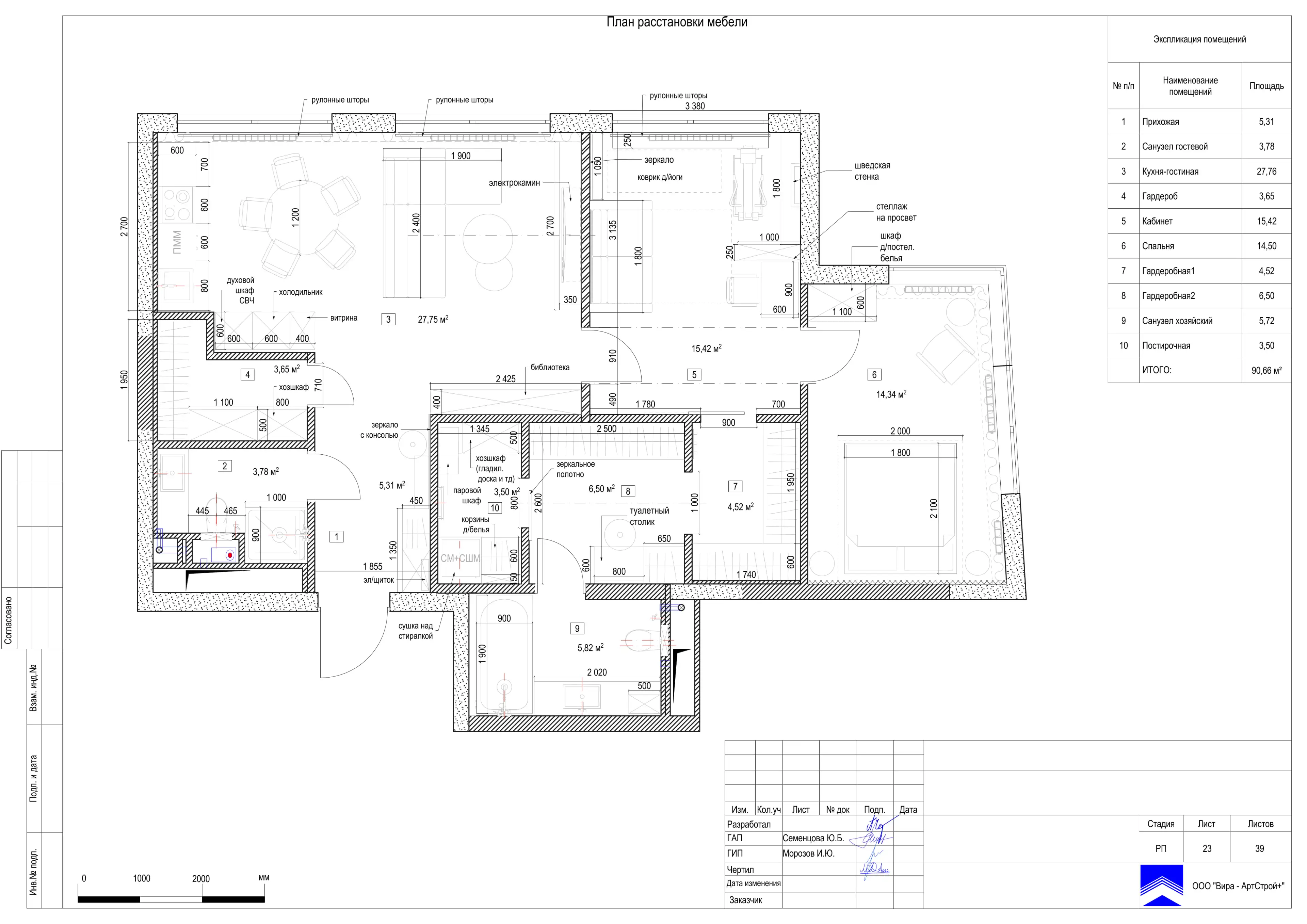
Планировка

Прихожая
Прихожая – небольшое помещение, плавно перетекающее в кухню-гостиную подобно природному ландшафту, в котором нет чётких границ.

Прихожая – небольшое помещение, плавно перетекающее в кухню-гостиную подобно природному ландшафту, в котором нет чётких границ.


Наши дизайнеры уже от входа в квартиру стараются размыть границы внутренних помещений, контуры стен, потолка, дверей и мебели, глобально используя белый цвет и текстуры натурального дерева.
Здесь расположен высокий лаконичный шкаф для верхней одежды, большое зеркало в пол, удобный мягкий пуф и необычный столик-консоль в этническом стиле.
В интерьере прихожей пока появляется лишь намёк на морские цвета и оттенки в небольших деликатных аксессуарах.
Гостевой санузел
Ниша с подсветкой в тёмно-бирюзовом цвете и фасады шкафчика смотрятся единым гарнитуром с консолью под раковиной и притягивают к себе внимание.

Для гостевого санузла дизайнеры подобрали подвесную шпонированную консоль с ящиками и тёмно-бирюзовыми открытыми секциями, накладную раковину и круглое зеркало с подсветкой.


Керамической плиткой с имитацией рельефного известняка отделали фронтальную стену, а остальные стены – базовой светло-бежевой плиткой из той же коллекции.
Подвесной компактный унитаз расположен рядом и практически незаметен. А вот ниша с подсветкой в тёмно-бирюзовом цвете и фасады шкафчика смотрятся единым гарнитуром с консолью под раковиной и притягивают к себе внимание.
Душевая зона отделена рельефными стеклянными шторками в металлоконструкции чёрного цвета, как и вся фурнитура в этом помещении, и перекликается с такой же шторкой в хозяйской ванной.
Кухня-гостиная
Использованный дизайнерами приём зеркальной вертикали между окон и объединения целой стены римскими и вертикальными светлыми шторами создаёт буквально безграничное пространство кухни-гостиной.

Кухня-гостиная тоже спроектирована очень функциональной и современной. Большое помещение традиционно разделено дизайнерами на зону отдыха, обеденную зону и рабочую зону кухни.


Интерьер выполнен в сочетании светлых стен, лёгких штор, мягкой мебели и тёплых фактур дерева. А дополняющим цветовым акцентом выступает морской синий и множество оттенков воды и неба: от бирюзы до насыщенного синего.


Большие панорамные окна наполняют помещение воздухом и светом. Использованный дизайнерами приём зеркальной вертикали между окон и объединения целой стены римскими и вертикальными светлыми шторами создаёт буквально безграничное пространство кухни-гостиной.


Центральное место в зоне отдыха занимает большой модульный диван с обивкой из белого велюра. Дополняющие декоративные подушки и плед наводят на ассоциации плывущего белого лайнера в глубинах океана.


Напротив диванной группы наши дизайнеры создали большую панорамную каминную и телевизионную зону в современном стиле, разместив био-камин на поверхности мебельной консоли, а над ним – плазменную панель.

Небольшой стеллаж в отделке из шпона дерева помогает выделить импровизированную каминную вытяжку, оформленную белыми лаковыми панелями, на фоне белой стены.
Дизайнеры добавили в интерьер этой квартиры нотки этники, которая гармонично слилась с эко-стилем и морской тематикой. Так, необычный журнальный столик в этническом стиле великолепно гармонирует с остальной мебелью в зоне отдыха и привносит особый островной колорит.
Одним из важных пожеланий заказчиков было обустройство библиотеки в гостиной. Стеллажи, изготовленные на заказ в сочетании шпонированных фасадов и открытых секций бирюзового цвета, вместили не только книги, но и сувениры из разных стран, собранные в память о совместных путешествиях.
Небольшой круглый столик на массивном основании раскладывается для приёма гостей. Кресла, отделанные шпоном дерева с мягкой велюровой обивкой внутри, очень уютные и располагающие к долгому чаепитию.
Оригинальный светильник на подвесах, спускающихся над столом, создаёт особую атмосферу в вечернее время.
Современные трековые светильники и встроенные потолочные споты зонируют кухню-гостиную и создают разные сценарии освещения, от локального, интимного, до ровного, освещающего каждый уголок.
Часть напольных и навесных шкафов с минималистичными лаковыми фасадами белого цвета сливаются со стеной, и только фартук из керамогранита в серовато-бирюзовых оттенках с текстурой оникса, напоминающий бушующие волны океана, притягивает к себе внимание.
Из-за отсутствия видимой фурнитуры и мелких аксессуаров корпусная мебель выглядит скорее как стена – монументально, а не громоздко, поддерживая восприятие большого открытого пространства этой части квартиры.
Гардеробная
Гардеробные функционально автономны, но объединены общим пространством.

Из кабинета можно попасть не только в спальню, но и в смежные гардеробные, ванную комнату и постирочную.


Все эти помещения спроектированы как продолжение спальни – в тех же светлых оттенках и с корпусной мебелью с фасадами из шпона дерева.


Отдельные гардеробные обустроены как мужская и женская. Открытые гардеробные секции оснащены рейлингами, полками и ящиками для белья, а все секции снабжены подсветкой для удобства пользования.
При входе в женскую гардеробную наши дизайнеры обустроили комфортную туалетную группу, состоящую из большого зеркала, парящего косметического столика и мягкого голубого пуфа.
Здесь также обустроены удобные открытые секции с подсветкой для одежды и обуви, а основное освещение дают потолочные споты.
Кабинет
В интерьер кабинета наши дизайнеры добавили акцентные аксессуары в бирюзовых и синих тонах.

Здесь также доминирует белый цвет: в текстуре окрашенных стен, римских штор на окне и обивке лёгкого диванчика на ножках.


Учитывая пожелания заказчиков, мы создали для интерьера кабинета подоконник-сиденье, чтобы была возможность любоваться видами на парк. Подоконник выдвинули вперед за счёт столярной конструкции, скрывающей радиатор отопления.


Небольшой уютный диванчик дополнен синим пледом и декоративной подушкой, а над ним – великолепное живописное полотно в технике импрессионизм с воспоминаниями о ласковых объятиях моря.

Зону отдыха выделяет подсветка парящего потолка, светильники для подсветки картины и рассеянное освещение потолочными спотами. Здесь, как и в кухне-гостиной, можно создать множество световых сценариев.
Здесь же, у окна с видом на парк и с возможностью хорошо проветрить помещение, установили шведскую стенку и тренажер для тренировок.
Чуть дальше расположили небольшой, но достаточный для работы за ноутбуком столик и оригинальное рабочее кресло зеленоватого оттенка, перекликающегося с абстрактным полотном на стене.
Зона для спорта отделена от рабочей зоны сквозным стеллажом, являющимся конструктивной опорой для парящего столика. А искусственного освещения от настольной лампы вполне достаточно для подсветки рабочего стола и ноутбука.
Спальня
Стена за кроватью выкрашена в льдистый голубой цвет, а живописное полотно над изголовьем продолжает морскую тематику и поддерживает общую цветовую гамму комнаты.

Пройдя через кабинет, можно попасть в хозяйскую спальню, которую наши дизайнеры создали очень светлой и воздушной. Интерьер спланирован в более нежных голубых и бирюзовых оттенках, как гладь моря в ясный спокойный день.


Центральное место занимает кровать с небольшими круглыми тумбочками и светильниками-подвесами с двух сторон.

Стена за кроватью выкрашена в льдистый голубой цвет, а живописное полотно над изголовьем продолжает морскую тематику и поддерживает общую цветовую гамму комнаты.
Напротив кровати наши дизайнеры расположили белое мягкое кресло необычной формы, два небольших журнальных столика и экзотическое растение, создав уютный уголок для медитации или чтения.
Белые стены и лёгкие шторы со светло-серыми гардинами выступают в роли нейтрального фона для выбранной мебели, акцентного бирюзового текстиля и аксессуаров.
Санузел
Стену за ванной отделали голубым крупноформатным керамогранитом с текстурой, напоминающей морской прибой.

Наши дизайнеры выбрали большую парящую консоль, оснащённую ящиками и массивной столешницей из искусственного камня с интегрированной раковиной, а над ней разместили шкафчик и масштабное зеркало.


Стену за ванной отделали голубым крупноформатным керамогранитом с текстурой, напоминающей морской прибой.
Эффект накатывающих волн получился при облицовке выступающей конструктивной части-ниши, служащей полочкой для косметики.
















































