Информация и галерея
- ЖК Вдохновение
- 53 м²
- 170 дней
- Современная классика Кантри
- Дизайн-проект
- Инженерные проекты
- Качественный ремонт
- Комплектация ремонта
- Авторский надзор
- Страхование ремонта
О проекте
Эту квартиру клиент планировал использовать для хоум-офиса и встреч с коллегами.
Сегодня у нас обзор интересного эклектичного интерьера квартиры площадью 53 квадратных метра, созданного нашими дизайнерами и обустроенного для работы и отдыха главы семьи.
Заказчик – очень взрослый мужчина, проживающий с семьёй в квартире, расположенной на территории жилого комплекса «Вдохновение». А эту квартиру, находящуюся в том же здании, он планировал использовать для хоум-офиса и встреч с коллегами.
Свой офис хозяин хотел видеть отделанным преимущественно натуральными материалами, с простым, немного брутальным интерьером, хотя элементы и современного, и классического стиля тоже вызывали положительный отклик. Поэтому нами было решено создать интерьер в симбиозе современной классики с элементами кантри.
Нами было предложено несколько вариантов планировочных решений, основанных на запросах заказчика. В результате удалось исполнить все пожелания, несмотря на то, что квартира имеет небольшую площадь.
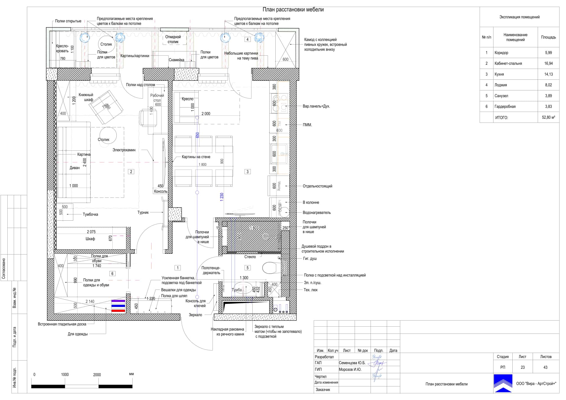
Так наши дизайнеры выделили прихожую с отдельной гардеробной, кабинет, объединённый со спальней, кухню, при необходимости берущую на себя функцию гостевой, мини-гостиную, расположенную на проходной лоджии, и санузел.
Видео
Бывает лучше один раз увидеть, чем несколько раз услышать. Именно по этой причине мы подготовили для вас видео-обзор по этому объекту.
Подписывайтесь на наши каналы, чтобы быть в курсе новых интересных интерьеров:
Планировка

Прихожая
Филёнчатые фасады и простые линии гардеробной секции демонстрируют непосредственный и естественный стиль кантри, выбранный нашими дизайнерами в роли акцента.

На фоне базовой белой краски, которой мы покрыли стены, красиво выделяется тёплая древесная текстура. Дизайнеры подобрали керамогранит под дерево и шпонированные классические двери.


При входе разместили открытую гардеробную секцию, исполненную на заказ для интерьера этой прихожей в спокойном серо-зелёном оттенке. Эта корпусная мебель снабжена антресолями и скамьей с мягким сиденьем, а для удобства пользования оснащена подсветкой.


Филёнчатые фасады и простые линии гардеробной секции демонстрируют непосредственный и естественный стиль кантри, выбранный нашими дизайнерами в роли акцента.
А в качестве основного освещения – светильник в виде стилизованной шишки. Помимо подвесного светильника, освещение прихожей дополнено встроенными потолочными спотами для создания ровного рассеянного освещения.
В качестве сдержанного, но эффектного декора на стене наши дизайнеры подобрали натуральный слэб дерева, поместив его в раму для картин и тем самым подчеркнув брутальную эстетику интерьера квартиры.
Кроме этого, кухонную дверь дизайнеры выполнили в классической расстекловке, что даёт возможность проникать естественному свету в помещение прихожей.
Кабинет-спальня
Несмотря на то, что корпусная мебель выполнена из массива дерева, она совсем не смотрится громоздкой.

Кабинет наши дизайнеры объединили со спальней, для квартиры, предназначенной для временного пребывания, этого вполне достаточно.


Интерьер этой комнаты решён с использованием тех же базовых приёмов: стены окрашены в тот же белый цвет, пол устлан инженерной дубовой доской, а корпусная мебель изготовлена из массива дерева.


А также новые интересные оттенки: сочетание сочного терракотового цвета с приглушённым оттенком голубого.

Этот сложный оттенок в обивке кресла повторяется также в живописном полотне, висящем над диваном, в шторах и в светильнике, которые наши дизайнеры подобрали для умиротворяющего интерьера кабинета.
Рядом с раскладным диваном расположили традиционный книжный шкаф со стеклянными дверцами, который в сочетании с уютным креслом располагает к вечернему чтению.
Несмотря на то, что корпусная мебель выполнена из массива дерева, она совсем не смотрится громоздкой — книжный шкаф выглядит лёгким за счёт стеклянных фасадов, а гардеробный шкаф мы разместили в нише, чтобы скрыть его глубину.
Напротив зоны отдыха, у окна, дизайнеры расположили рабочий стол на лёгкой металлической конструкции с двумя удобными выдвижными ящиками, чтобы всё необходимое было под рукой.
Рядом поставили вместительную напольную консоль с паровым камином для создания настроения, плазменную панель и деревянную шведскую стенку, вписанную в общую мебельную группу.
Изящным элементом, украшающим этот яркий интерьер, стала люстра в природном стиле с импровизированным венком из веток и со множеством стеклянных подвесов, отдающая дань современной классике.
Кухня
Владелец квартиры планирует периодически собирать коллег для решения рабочих моментов в неформальной обстановке за обедом или ужином.

В помещении кухни в качестве базовой отделки используется краска того же цвета, что и в прихожей. А одна из стен выкрашена в природный серо-зелёный оттенок, являющийся фоном для деревянной мебели и современной живописи в авангардном стиле, создавая ощущение будто бы тоже написанного маслом на холсте сюжета.


Естественным украшением сдержанного интерьера кухни является деревянный обеденный гарнитур из массивного стола из тика с толстым слэбом в качестве столешницы, а также шести винтажных стульев.


Владелец квартиры планирует периодически собирать коллег для решения рабочих моментов в неформальной обстановке за обедом или ужином.


Довершает эту композицию висящий на цепях светильник, размещённый над столом, изготовленный в виде деревянной балки с намотанными верёвками-проводами, на которые подвешены открытые декоративные лампочки.

У окна дизайнеры расположили небольшой раскладной диванчик с обивкой яркого зеленовато-жёлтого цвета и декоративными подушками на случай, если нужно будет оставить припозднившегося гостя на ночь.
Шторы с цветочным рисунком добавляют нотку ностальгии и деревенского уюта и опять отсылают к стилистике кантри.
Рабочая зона кухни состоит из напольных и навесных шкафов разного формата. Фасады в серо-зелёном оттенке перекликаются с акцентной стеной, расположенной напротив. Комплектация кухни подобрана нашими дизайнерами в том же стиле кантри и визуально сочетается с фасадами гардеробного шкафа в прихожей.
Шкафы-витрины со стеклянными дверцами и подсветкой не только несут утилитарную функцию, но и являются декоративной составляющей интерьера кухни.
Белая столешница и фартук из бежевой керамической плитки добавляют изысканность и великолепно сочетаются с бытовой техникой в белом корпусе.
Как и в прихожей, в качестве дополнительного освещения наши дизайнеры выбрали встроенные потолочные споты, которые хорошо освещают пространство кухни.
А дубовая инженерная доска на полу объединяет интерьер всей квартиры и придаёт натуральный тёплый колорит этому жилищу.
Лоджия
Эта лоджия является проходной, имеет панорамные окна и два входа и добавляет много естественного света как в помещение кухни, так и в кабинет.

Пройдя через кухню, можно выйти на утеплённую лоджию, оборудованную в качестве самостоятельной зоны отдыха.


Эта лоджия является проходной, имеет панорамные окна и два входа и добавляет много естественного света как в помещение кухни, так и в кабинет.


Интерьер лоджии продолжает концепцию кухни: стены отделаны декоративной штукатуркой с шероховатой поверхностью светло-серого цвета, инженерная доска на полу, деревянная мебель и декоративные потолочные балки, сочетающиеся с элементом кухонного светильника.
Наши дизайнеры не зря спроектировали поперечные тёмные балки на фоне белого потолка: с помощью этого приёма мы не только подчеркнули стилистику кантри, но ещё и оптически расширили узкое пространство лоджии.
Со стороны кухни дизайнеры разместили буфет с посудой, как бы продлевая зону кухни-столовой в пространстве лоджии.
Посередине разместили эффектную скамью из массива дерева с фигурной спинкой, подлокотниками и мягким белым сиденьем.
А со стороны кабинета - небольшой диван-кресло, похожий на кухонный мини-диванчик. Тоже в природном зеленоватом оттенке, повторяющем оттенок фасадов кухонной мебели.
Оригинальный чайный столик из слэба натурального дерева на чёрном металлическом подстолье довершает интерьер этого небольшого, но очень уютного пространства.
Санузел
Душевая зона отделена лишь тонкой стеклянной перегородкой и визуально не дробит интерьер.

И последнее, небольшое, но необходимое помещение – санузел, который наши дизайнеры оформили необычно и интересно в приглушённых оттенках терракотового и голубого цветов.


В образовавшейся из-за скрытых коммуникаций нише на фоне серо-голубой плитки мы разместили вместительную подвесную тумбу со столешницей и дизайнерской раковиной с грубой текстурой дерева.


Над раковиной – масштабное асимметричное зеркало неправильной формы и подвесные светильники из стекла в стиле современной классики.

Шпонированные мебельные фасады придают интерьеру санузла тепло и тонко сочетаются с терракотовой керамической плиткой. А столешница и отделка открытых секций графитового цвета придает чёткость, динамичность и стиль.
Душевая зона отделена лишь тонкой стеклянной перегородкой и визуально не дробит интерьер. Но фронтальная стена и подиум тоже выделены серо-голубой керамической плиткой.
К активной цветовой и текстурной отделке дизайнеры подобрали всю фурнитуру в нейтральном хроме, сочетающуюся со встроенными потолочными спотами в современном стиле и не отвлекающую от восприятия цвета и декора.
Но особый шик, конечно же — это подобранная с тонким вкусом напольная плитка с этническим орнаментом в стиле кантри, вносящая нотку ностальгии и ретро-колорита.












































