Информация и галерея
- ЖК Вереск
- 88 м²
- 201 дней
- Современная классика
- Дизайн-проект
- Инженерные проекты
- Качественный ремонт
- Умный дом
- Комплектация ремонта
- Авторский надзор
- Страхование ремонта
О проекте
Нам предстояло совместить уют семейного гнёздышка с практичностью повседневной жизни и изысканностью, отвечающей вкусу владельцев.
Представляем вам проект просторной квартиры, выполненной в стиле современная классика. Этот интерьер мы разрабатывали для дружной семьи — супружеской пары и их дочери-школьницы.
Нам предстояло совместить уют семейного гнёздышка с практичностью повседневной жизни и изысканностью, отвечающей вкусу владельцев. Для наших заказчиков важна гармония и функциональность, при этом они предпочитают светлые цвета в интерьере, поэтому в основе проекта — классические пропорции, дополненные современными элементами и умными решениями для хранения.
Мы серьёзно изменили планировку — снесли перегородку и объединили кухню с гостиной. Получилось большое и светлое помещение, где теперь собирается вся семья. За счёт детской мы немного увеличили мастер-спальню. А ещё полностью переделали санузлы: сделали удобный выход в родительскую ванную прямо из спальни и объединили гостевой санузел с хозяйственной комнатой.
По желанию хозяев одни помещения мы сделали светлыми и воздушными, а другие — темнее, более уютными и камерными.
В квартире площадью чуть меньше 90 квадратных метров мы создали пространство, которое идеально подстроилось под ритм жизни семьи: здесь есть место и для шумных семейных обедов в гостиной, и для уединённого отдыха в спальне, и для визитов самых дорогих гостей. Здесь продумано всё, от мест хранения вещей до настроения, которое создаёт свет.
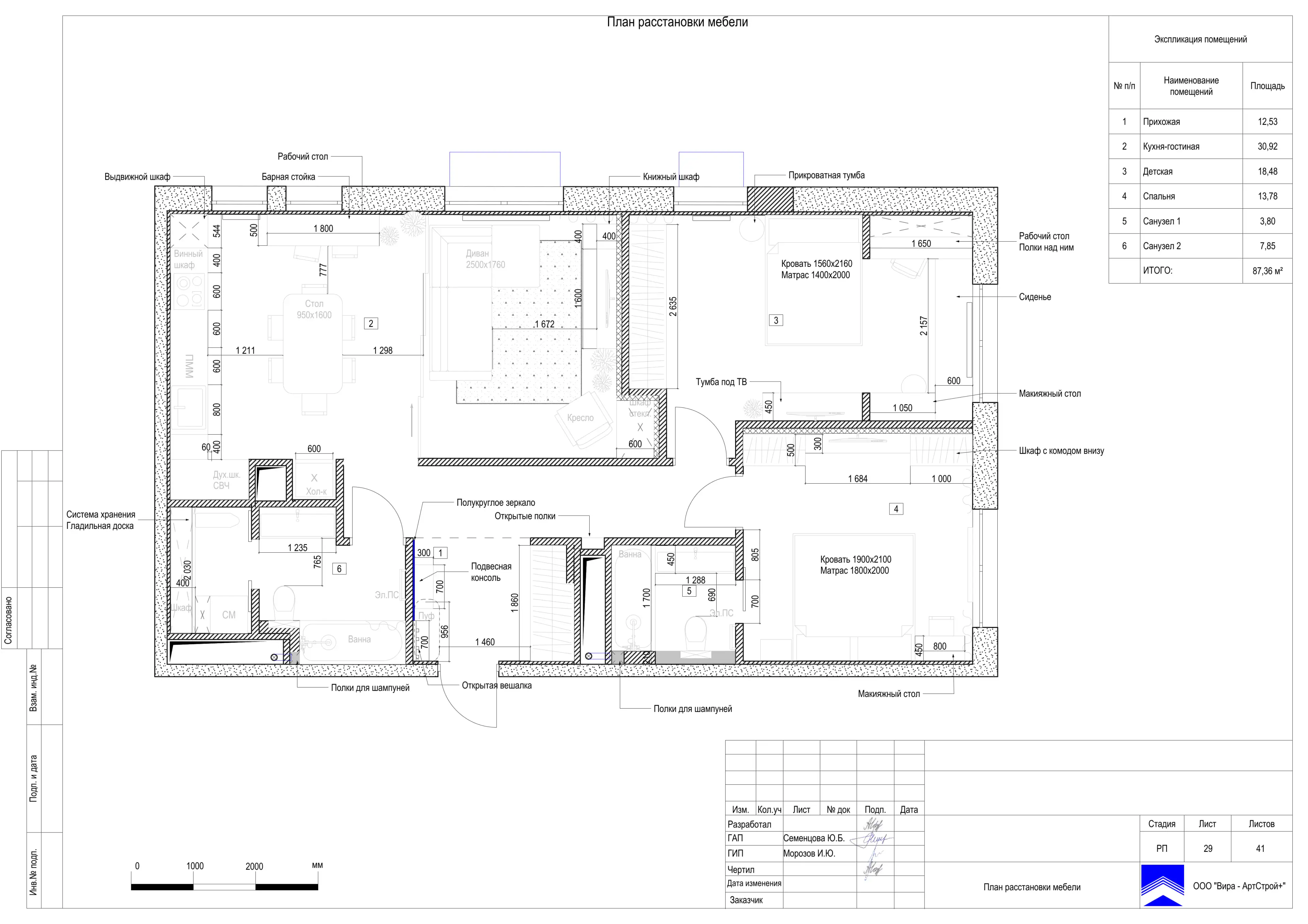
Планировка

Прихожая и коридор
Оригинальный акцент — кисточки на дверных ручках. Эта отсылка к классическому стилю смягчает строгую геометрию пространства и добавляет интерьеру элемент барочного шика.

Прихожая оформлена в светлых тонах. Потолок с декоративными карнизами, стены и филёнчатые фасады шкафов выполнены в белом цвете. Пол покрыт светлым керамогранитом с бежевыми и коричневыми прожилками.


Освещение осуществляется с помощью потолочной трековой системы и напольных плинтусов с подсветкой. Это очень удобный приём для ночного перемещения по квартире, когда основной свет режет глаза.


Вешалка для верхней одежды изготовлена из шпонированной панели. Её тёплая древесная текстура разбавляет и согревает белизну стен. Рядом с вешалкой на стене мы разместили большое полукруглое зеркало с подсветкой и тумбочку для обуви с мягким бирюзовым сиденьем.


Шкафы в прихожей практически не выделяются на фоне стен, визуально расширяя пространство. Оригинальный акцент — кисточки на дверных ручках. Эта отсылка к классическому стилю смягчает строгую геометрию пространства и добавляет интерьеру элемент барочного шика.


Филёнчатые фасады шкафов гармонично сочетаются с молдингами на стенах. Эти молдинги также являются дополнительным обрамлением для абстрактных картин в серо-чёрно-синих тонах, которые висят на стенах в небольшом коридоре, ведущем в остальные помещения квартиры.
Кухня-гостиная
Зона гостиной отделена от зоны кухни-столовой раздвижной перегородкой, изготовленной из рифлёного стекла, что позволяет как полностью разделить эти 2 помещения, так и объединить их в одно целое.

Пространство кухни-гостиной визуально разделено на две зоны: гостиную и кухню-столовую. Зонирование помещений также произведено и с помощью напольного покрытия – в зоне кухни и столовой продолжается керамогранит из прихожей и коридора, а в зоне гостиной полы покрыты дубовой инженерной доской.


Кухонная зона оформлена в белых и кофейных цветах с акцентом на тёмный мраморный фартук и посудный шкаф, дверки которого выполнены из дымчатого рифлёного стекла, что придаёт интерьеру роскошь и блеск. Белые шкафы до потолка создают ощущение простора и упорядоченности.


Встроенный холодильник с дверцей холодного голубовато-серого цвета выделяется на фоне мебели, но при этом не перетягивает на себя всё внимание. Остальная кухонная техника также встроенная.


Бежевые обеденные полукресла и бирюзово-голубые высокие стулья, стоящие в барной зоне у окна кухни, органично сочетаются с общей тональностью интерьера. Велюровая обивка и металлическая отделка мягкого золотистого цвета стильно выделяются на фоне глянцевых поверхностей стен и пола. Большие окна прикрыты римскими шторами с неброским геометрическим рисунком.


За столом овальной формы удобно собираться всей семьей. Над ним висит современная люстра с множеством стеклянных подвесок, которая является ярким акцентом в интерьере и добавляет пространству сияние. Люстра большая, поэтому она даёт достаточно света и помогает создать нужное настроение. Стол не имеет классических ножек и стоит на центральной опоре. Это не только стильное, но и очень удобное решение. В отличие от ножек, такое подстолье не мешает сидящим за столом и облегчает процесс уборки.

Зона гостиной отделена от зоны кухни-столовой раздвижной перегородкой, изготовленной из рифлёного стекла, что позволяет как полностью разделить эти 2 помещения, так и объединить их в одно целое.
Центральное место в гостиной занимает большой угловой диван сочного синего цвета, который создаёт уютную атмосферу для отдыха и общения. Возле дивана на серо-белом ковре стоит круглый кофейный столик с мраморной столешницей. Такой же столик, только меньшего размера, составляет пару стоящему в углу глубокому мягкому креслу в светлой обивке.
В углах по обеим сторонам от телевизора наши дизайнеры разместили шкафы для книг и декора, закрытые дверцами из такого же рифлёного стекла, что было использовано при изготовлении посудного шкафа и перегородки. Бежевая тумба под телевизором — парящая, что тоже визуально облегчает интерьер.
Стены в зоне гостиной украшены фактурными обоями, зеркалами, 3Д-панелями, создающими игру света и тени. Золотистый декор на стене гостиной разбивает строгую геометрию линий и придаёт помещению дополнительный уют.
Детская
Эта комната создавалась с одной мыслью — чтобы ребёнку здесь было уютно, спокойно и интересно.

Комната для девочки-школьницы оформлена в благородных пудровых тонах. Это очень девичий цвет, но, в отличие от ярко-розового, он не утомляет глаза и помогает с детства воспитывать хороший вкус.


На небольшом круглом прикроватном столике девочке будет удобно размещать книги, гаджеты и другие полезные мелочи. Круглый ковёр у кровати с мягким густым ворсом добавляет пространству асимметричность, зрительно расширяя его и визуально отделяя зону отдыха.


Игривая, но при этом стильная люстра с круглыми плафонами напоминает связку воздушных шариков. Обои с принтом резвящихся китов также придают интерьеру лёгкость и игривость. Напротив кровати располагается низкая бежевая тумба, телевизор и вертикальная зеркальная вставка от пола до потолка, которая зрительно расширяет пространство. Стены и фасады мебели частично выполнены в трёхмерной технике.


Высокий встроенный шкаф вмещает в себя всю одежду, игрушки и другие нужные для ребёнка вещи. Филёнчатые дверцы шкафа оформлены в светло-бежевом цвете: он немного выделяется на фоне стен, но при этом не перегружает интерьер.

Рабочая зона отделена от спальной небольшой перегородкой. Вся мебель в этой зоне белого цвета — он придаёт интерьеру лёгкость и помогает сосредоточиться над домашними заданиями. Столешница не имеет ножек, что позволяет по максимуму использовать свободное пространство. Над рабочим столом располагаются открытые и закрытые книжные полки. Стол стоит возле окна, что позволяет эффективно использовать дневной свет для занятий.
На мягкой светлой банкетке, расположенной вместо подоконника, удобно читать или общаться с подругами. Напротив рабочего стола расположен парящий туалетный столик с настенным зеркалом оригинальной формы и круглым плюшевым пуфиком — мечта любой девочки.
Эта комната создавалась с одной мыслью — чтобы ребёнку здесь было уютно, спокойно и интересно. Поэтому упор сделан на удобство, функциональность и, конечно, комфортную атмосферу. Также стоит отметить и продуманное освещение: встроенные потолочные светильники, трековая система, люстра, настольные и настенные лампы обеспечивают равномерное распределение света по всей комнате.
Мастер-спальня
Расположение мебели продумано таким образом, чтобы максимально эффективно использовать пространство.

Если мы пройдём от входа в квартиру по коридору направо, то попадём в элегантную и современную мастер-спальню, выполненную в светлых тонах с акцентами приглушённо-зелёного и серо-коричневого цветов. Интерьер помещения характеризуется лаконичностью и функциональностью. Особое внимание заслуживает акцентная стена за изголовьем кровати, украшенная тёмным керамогранитом и тонированной зеркальной вставкой. Эта стена привлекает взгляд и делает интерьер запоминающимся. Светлая мебель и отделка стен в сочетании с большими окнами создают ощущение простора и воздуха в помещении.


Расположение мебели продумано таким образом, чтобы максимально эффективно использовать пространство. Кровать с высоким мягким изголовьем белого цвета стоит в центре комнаты, что является традиционным решением для создания фокусной точки в пространстве. Возле кровати располагается удобный подвесной туалетный столик. Зеркало над ним занимает всю стену до потолка, что позволяет видеть себя в полный рост и не дробит пространство, сохраняя визуальную целостность интерьера. Удобный пуф со спинкой мягкого зелёного цвета идеально сочетается с текстилем и аксессуарами.


Как и в остальных помещениях, цвет двери соответствует цвету стен, что позволяет визуально расширить пространство, не дробя его на отдельные элементы. Высокие белые шкафы с двух сторон вмещают в себя всё необходимое и при этом почти не выделяются на фоне стен цвета топлёного молока. Между шкафами располагается телевизор с тумбой, стена за которыми украшена вертикальными латунными вставками и такой же зеркальной панелью, как на стене за кроватью.


Мастер-санузел
Центральным элементом ванной является тумба с большим зеркалом, которая благодаря своему цвету и лаконичному дизайну становится главным акцентом в композиции.

Ванная комната, смежная с мастер-спальней, тоже оформлена в светлых тонах, что визуально расширяет пространство и создаёт ощущение чистоты и свежести. Тёмный керамогранит пола с мраморным эффектом добавляет интерьеру нотку роскоши и изысканности. Золотистый металл сантехники делает помещение более тёплым и практически не контрастирует с общей тональностью интерьера.


Тумбочка под раковиной и стена над унитазом оформлены светлыми ребристыми панелями. Это делает пространство не скучным, но при этом не перегружает его. Белый полотенцесушитель практически не выделяется на фоне светлых стен. Подвесной унитаз без постамента смотрится очень стильно, к тому же такое решение заметно облегчает уборку помещения.


Центральным элементом ванной является тумба с большим зеркалом, которая благодаря своему цвету и лаконичному дизайну становится главным акцентом в композиции. Место под раковиной используется для хранения полотенец и других банных принадлежностей, что обеспечивает порядок и функциональность.
На бортиках встроенной раковины прямоугольной формы достаточно места, чтобы можно было разместить все необходимые принадлежности и косметические средства. Подсветка под тумбочкой визуально расширяет помещение.
Большое зеркало прямоугольной формы также отражает свет и увеличивает пространство. Водостойкие точечные светильники на потолке дают достаточно света, но при этом совсем не бросаются в глаза.
Полочки для шампуней, гелей и других моющих средств скрыты в нише. Они доступны для того, кто находится в ванне, но при этом совсем не заметны для находящихся в самом помещении.
Ванная получилась стильная и современная, при этом всё продумано до мелочей. Каждая деталь на своём месте и всё в целом смотрится очень гармонично.
Санузел
При работе над дизайном этого помещения особый акцент делался на том, чтобы каждая деталь, и каждый предмет здесь играли свою роль и идеально сочетались друг с другом.

Вторая ванная комната, расположенная в противоположном конце коридора, выполнена в довольно тёмных оттенках цвета тауп, но благодаря подсветке и мраморному узору стен она выглядит достаточно просторной. Фурнитура и сантехника здесь также золотистые. Унитаз — подвесной, и находится на той же стене, где расположена ванна.


При работе над дизайном этого помещения особый акцент делался на том, чтобы каждая деталь, и каждый предмет здесь играли свою роль и идеально сочетались друг с другом. Удобные крючки для одежды и полотенец располагаются прямо возле ванны, позволяя легко дотянуться до всего необходимого. Вместо привычной банной занавески мы использовали прозрачные панели — это более практично, к тому же прозрачный пластик не скрадывает место и не сужает пространство визуально.


Полы здесь светлее, чем стены, но это нестандартное решение отлично вписывается в общий интерьер, добавляя ему света, объёма и ощущения свежести. Полочки для банных принадлежностей также располагаются так, что их можно заметить, только находясь в ванне. Вместо обычного душа установлен тропический, поэтому все члены семьи смогут наслаждаться приятным расслабляющим гидромассажем. Большое квадратное зеркало с подсветкой визуально расширяет помещение, а подвесная тумбочка под раковиной оформлена объёмными фасадами, которые органично контрастируют с текстурой мрамора.


В небольшом смежном помещении мы организовали хозяйственную комнату с постирочной, гладильной зонами и стеллажом для хранения бытовой химии, инструментария и парковкой для робота-пылесоса. Цветовое решение здесь такое же, как и в ванной комнате. Внутренняя подсветка стеллажа — не только очень красиво, но и практично.





























































