
Информация и галерея
- ЖК Врубеля 4
- 101 м²
- 250 дней
- Французская классика
- Дизайн-проект
- Инженерные проекты
- Качественный ремонт
- Умный дом
- Комплектация ремонта
- Авторский надзор
- Страхование ремонта
О проекте
Эта квартира — место силы и вдохновения, творческого потока, где рождается искусство и эстетика.
Интерьер квартиры в стиле французская классика выполнен дизайнерами студии «Вира-АртСтрой» для художницы-акварелистки, что сразу задало особый тон и уникальность процессу проектирования и реализации задуманного.
Эта квартира площадью 101 квадратный метр в жилом комплексе «Врубеля 4» — место силы и вдохновения, творческого потока, где рождается искусство и эстетика. Мы выверили интерьер до мелочей, здесь нет случайных элементов, всё служит одной цели: создать стилистически целостное пространство, которое будет отражать личность хозяйки и дарить комфорт.
Цветовая палитра интерьера выбрана с учётом предпочтений заказчицы. Нейтральные тона стен и мебели создают идеальный фон для акварельных акцентов живописных полотен и примечательных аксессуаров. Пол из инженерной доски тёплого коричневого оттенка с рисунком «английская ёлка» добавляет уют, гармонию и шарм классической стилистики.
При этом пространство квартиры наполнено незаурядными дизайнерскими решениями, такими, как использование подвесных галерейных систем, стеклянных фактурных блоков, отдельностоящей раковины, антикварных предметов мебели, а также богатой палитры отделочных материалов, текстиля и фактур.
Вся обстановка способствует тому, чтобы вдохновение приходило само собой.
Художник — это человек, который видит мир через призму цвета, света и формы. Поэтому требования к созданию пространства для работы и жизни были нестандартными, продиктованными не только повседневными нуждами, но и необходимостью эргономики помещения для свободы творчества и самовыражения.
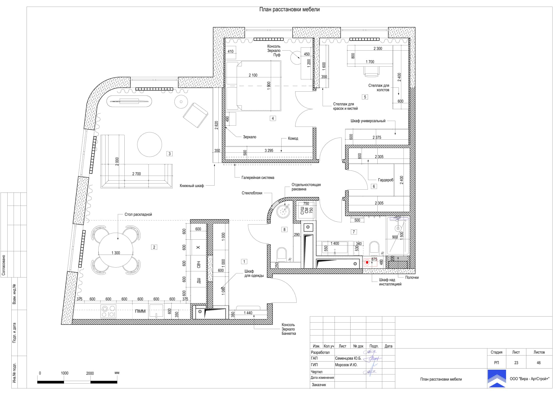
В квартире выделили прихожую с отдельной гардеробной, кухню, объединённую с гостиной, спальню со смежной мастерской, гостевой и хозяйский санузлы.
Планировка

Прихожая
Галерея стала не только визуальной доминантой интерьера, но и источником вдохновения для самой художницы и её гостей.

Элегантный интерьер прихожей с первых шагов погружает в стиль парижского шика Монмартра – обители художников прошедшей эпохи.


Слева от входа расположен консольный столик с настольной лампой, зеркалом и мягким пуфом в роскошном обрамлении из ценных пород дерева. Напротив – вместительный гардероб с белыми филёнчатыми фасадами.


Однотонные стены цвета топлёного молока являются фоном для акварельных работ владелицы квартиры, которые наши дизайнеры превратили в своеобразный выставочный зал.

Картины размещены на специальных подвесных системах крепления, легко позволяющих менять экспозицию в зависимости от настроения или текущих проектов. Мягкое ровное освещение реализовано за счёт спотов – точечных потолочных светильников.
Галерея стала не только визуальной доминантой интерьера, но и источником вдохновения для самой художницы и её гостей.
При разработке планировочного решения дизайнеры сохранили радиус несущих стен и повторили скругление по стене, перетекающей из прихожей в коридор, оформив его прозрачными фактурными стеклоблоками.
Кухня-гостиная
Изюминкой оформления кухни, её настоящим сердцем и душой стала уютная и одновременно изысканная обеденная зона.

Кухня и гостиная, открывающиеся с этого ракурса, решены в сочетании приглушённых молочных и мягких серых оттенков, создающих идеальный фон для мебели и выразительного декора.


Напольное покрытие, единое практически для всех помещений квартиры, добавляет уют и завершённость, визуально объединяя разные зоны этого пространства в одно целое.


В зоне отдыха разместился просторный диван с обивкой из светлого текстиля, который усиливает ощущение воздушности и умиротворения в этой просторной и светлой комнате.


Акцентные диванные подушки в классическую «гусиную лапку» добавляют игривую нотку и текстурное разнообразие.


Напротив дивана между окнами с мягкими бархатистыми серыми шторами мы расположили большой телевизор на тонких высоких ножках.


Оригинальный столик из фактурного тёмного металла, отсылающий к взрывному, авангардному когда-то ар-деко, подобран нашими дизайнерами с любовью к деталям. Своей округлой формой он поддерживает радиусы и скругления, заданные архитектурной планировкой.


Небольшие накладные потолочные светильники, сливающиеся по цвету с белым потолком, дизайнеры расположили по периметру помещения. В тёмное время суток они дают мягкое рассеянное освещение в большом помещении, не загромождая пространство и не привлекая к себе лишнего внимания.


Также в зоне отдыха дизайнеры расположили большой шкаф-витрину с тонкими чёрными металлическими рамами, в котором собраны книги по искусству, памятные аксессуары и оригинальные арт-объекты.

Рядом разместили уютное пёстрое кресло, металлический чёрный торшер на длинной тонкой ножке и ещё один круглый журнальный столик, на этот раз с текстурой светлого мрамора.
Дизайнеры студии «Вира-АртСтрой» всегда используют самые актуальные современные приемы, даже если создают интерьер в классическом стиле.
Так тут, в зоне гостиной, запроектировано понижение потолка у стены, смежной с коридором: здесь спрятана современная технологичная сплит-система вентиляции и кондиционирования.
За зоной отдыха мы расположили функциональную зону кухни-столовой, которая безупречно вписалась в дизайн общего пространства.
Нами было принято решение отказаться от верхних навесных шкафов на кухне, что позволило значительно облегчить визуальное восприятие этой зоны. Выбор был продиктован стремлением создать интерьер, который дышит свободой и светом, не чуждый творческим порывам.
Дизайнеры остановили свой выбор на лёгкой изящной полочке с нижней подсветкой столешницы, которая не только выполняет декоративную функцию, но и остаётся практичным элементом интерьера. Она предоставляет достаточно места для размещения необходимых мелочей: стильной посуды, баночек с приправами и декора.
На этой полочке мы разместили также дорогую заказчице картину с натюрмортом, оформленную в элегантный багет, которая придала интерьеру кухни изящество и своеобразный колорит, отсылая к классическим традициям европейской живописи.
Фасады кухонных шкафов выполнены в тёмных тонах, использован шпон американского ореха, который гармонирует с антикварной мебелью и элементами декора.
Изюминкой оформления кухни, её настоящим сердцем и душой стала уютная и одновременно изысканная обеденная зона. Здесь разместился круглый стол, выполненный из массива ореха, который мгновенно привлекает внимание своей натуральной тёплой текстурой дерева.
Особый шарм обеденной зоне придают антикварные стулья, каждый из которых имеет свой уникальный дизайн. Эта эклектика, на первый взгляд кажущаяся случайной, на деле продумана до мельчайших деталей.
Стулья словно рассказывают свои истории: один напоминает о старинных европейских интерьерах с изогнутыми ножками и резными спинками, другой – о простоте и теплоте с его грубоватой, но очаровательной отделкой, третий украшен мягкой обивкой с винтажным узором, добавляя нотку изысканности…
Освещает обеденную зону утончённая люстра, которая придает этой комнате роскошь и торжественность благодаря своим каскадным формам и изящным подвесам из выдувного стекла.
Такое разнообразие элементов дизайна не только освежает пространство, но и делает его по-настоящему живым и притягательным.
Спальня
Спальня – светлая уютная комната, декорированная белыми обоями с будто бы ожившими старинными гравюрами с изображением паркового ансамбля.

Спальня – светлая уютная комната, декорированная белыми обоями с будто бы ожившими старинными гравюрами с изображением паркового ансамбля.


Центральное место здесь занимает большая двуспальная кровать с высокой спинкой и прикроватными тумбочками из массива ореха в классическом стиле.


Тяжелые серые шторы, серый плед и белоснежное постельное бельё подчёркивают изысканную элегантность интерьера.


Великолепная люстра с многочисленными изящными подвесками из молочного стекла и прикроватные лампы с основанием из розоватого мрамора – красивые традиционные элементы классического стиля.

Богатая тёплая фактура ореха спального гарнитура сочетается с чёрной корпусной мебелью, расположенной по другой стене и несущей уже иную смысловую нагрузку. Зонирует пространство спальни лаконичное зеркало в простой чёрной раме.
Чёрные фасады корпусной мебели, расположенной по левой стене, уже более сдержанны и просты по своей форме, их задача – служить местом хранения картин и не перетягивать на себя внимание от экспозиции, расположенной выше.
С другой стороны комнаты, у окна, наши дизайнеры расположили бюро с пуфом, зеркалом и ещё одним оригинальным настенным светильником.
Мастерская
Одной из важнейших ключевых задач, поставленных перед нами при проектировании, стало создание отдельного помещения мастерской, ведь заказчица работает на дому.

Ещё одна отличительная черта классического французского стиля – двустворчатые белые двери с филёнками и с матовым белым стеклом, которые открывают доступ туда, где день за днём рождается свет и тень, цвет и форма, магия творчества.


Одной из важнейших ключевых задач, поставленных перед нами при проектировании, стало создание отдельного помещения мастерской, ведь заказчица работает на дому. Это означало необходимость чёткого зонирования пространства квартиры, чтобы рабочая зона не пересекалась с зоной отдыха.


Мастерская должна была стать источником творчества, где художница может полностью погрузиться в уединение и работу. Тем не менее мы решили расположить это помещение в непосредственной близости от спальни, ведь вдохновение не приходит по часам и может застать внезапно, где и когда угодно.
Интерьер мастерской решен в тех же светлых тонах, что и другие комнаты. Здесь почти нет аксессуаров и декора, только самое необходимое.
Особое внимание уделено нами дневному и искусственному освещению. Для акварелиста свет — это один из главных инструментов работы. Поэтому под мастерскую была отдана комната с большим окном, которое пропускает поток естественного света, создавая идеальные условия для живописной работы. Дополнительно была установлена настенная лампа на длинной ножке, чтобы художница не зависела от капризов погоды и дневного освещения.
Наши дизайнеры продумали мастерскую до мельчайших деталей, где всё на своем месте и служит своему делу: от удобного рабочего стола до системы хранения, которая позволяет организовать все инструменты и материалы так, чтобы они всегда были под рукой.
Полки и шкафы, предназначенные для красок, кистей, бумаги, холстов, подрамников и багетов выполнены с учётом специфики работы художницы. Мастерская получилась не только функциональной, светлой и свободной, но и эстетичной, что очень важно для творческого человека.
Гардеробная
Здесь продуманы и тщательно рассчитаны удобные открытые секции для одежды, обуви и прочих необходимых вещей.

Мы не забыли, что хозяйка квартиры не только художница, но прежде всего современная женщина. Наши дизайнеры выделили место под отдельную вместительную гардеробную, о которой мечтала заказчица.


Здесь продуманы и тщательно рассчитаны удобные открытые секции для одежды, обуви и прочих необходимых вещей.

А подсветка каждой полочки делает использование этой мебели по назначению максимально удобным и практичным.
Гостевой санузел
Мы разместили здесь дизайнерскую раковину на ножке-пьедестале и винтажный напольный смеситель с высоким изливом.

Гостевой санузел получился очень оригинальным, учитывая то, что это помещение со скруглённой стеной и вертикалью из стеклоблоков, смежное с коридором.

Мы разместили здесь дизайнерскую раковину на ножке-пьедестале и винтажный напольный смеситель с высоким изливом.
А также подвесной унитаз, инсталляцию от которого спрятали за фасадами шкафчика, отделанного благородным шпоном ореха вместе с настенными панелями, как единый мебельный гарнитур.
Чёрно-белая напольная плитка подобрана из той же коллекции, которую использовали в прихожей и коридоре, и придаёт французский колорит даже такому небольшому помещению.
Санузел
Душевая зона практически незаметна, со стеклом, обрамленным в тонкую металлическую раму, и скрытым трапом в невысоком подиуме.

Хозяйский санузел светлый и сдержанный. Стены отделаны вертикальной молочной плиткой, как и в гостевом санузле, но по низу дизайнеры добавили бесшовный светло-серый полированный керамогранит, который является фоном для роскошной столешницы с врезной раковиной и комодом из массива ореха в стиле Людовика, короля-солнца.


Душевая зона практически незаметна, со стеклом, обрамленным в тонкую металлическую раму, и скрытым трапом в невысоком подиуме.

Оригинальные настенные бра, полотенцесушитель, смесители и все аксессуары подобраны в цвете состаренной латуни.
Для этого санузла наши дизайнеры тоже выбрали современный унитаз с системой инсталляции и скрыли коммуникации за фасадами шкафчика.
И уже традиционное использование чёрно-белой напольной плитки поддерживает идею ретро-эстетики этой стильной квартиры.


























































