Информация и галерея
- ЖК Зорге 9
- 66 м²
- 212 дней
- Минимализм
- Дизайн-проект
- Инженерные проекты
- Качественный ремонт
- Комплектация ремонта
- Авторский надзор
- Страхование ремонта
О проекте
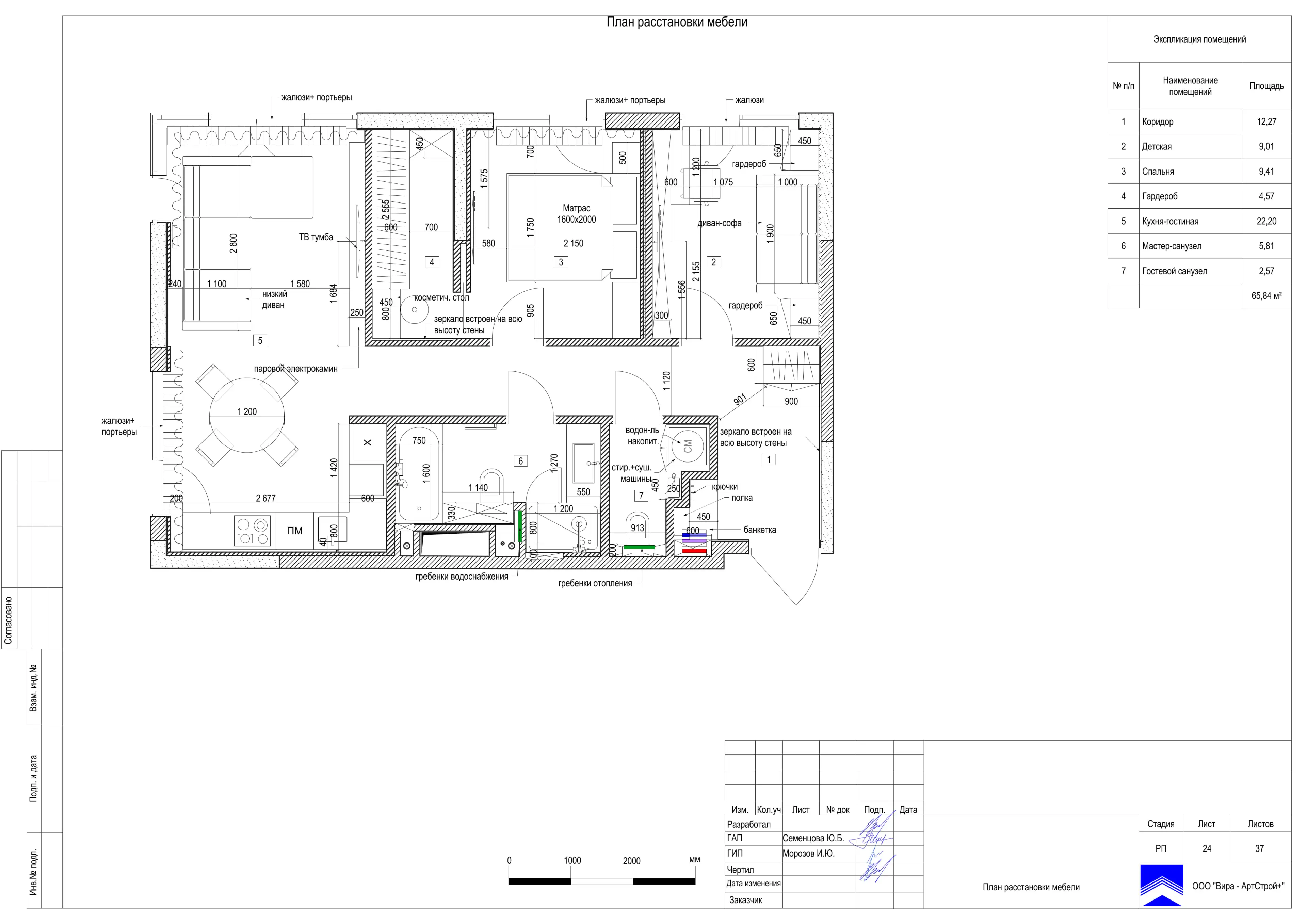
<p>Основой преобразования квартиры стала существенная перепланировка. Мы полностью переосмыслили организацию помещений.</p>
Сегодня мы покажем проект, в котором строгий минимализм встретится с тёплой семейной историей. Мы создавали пространство для пары, жизнь которой — это движение, а дом — место, где можно перезагрузиться. У хозяев часто и подолгу гостит десятилетний внук, поэтому нам важно было создать интерьер, который в его отсутствие будет вписываться во взрослую концепцию квартиры, а во время приезда станет для него настоящим домом. В этом выпуске вы увидите, как функциональность становится искусством, а временное пребывание превращается в полноценное проживание.
Основой преобразования квартиры стала существенная перепланировка. Мы полностью переосмыслили организацию помещений, руководствуясь принципом «каждый квадратный метр должен работать на комфорт». Центральным изменением стало объединение кухни и гостиной. Это решение преследовало несколько важных целей:
• создание единого светового пространства, когда естественный свет свободно проникает из окон в оба помещения;
• организацию комфортной зоны для общения и приёма гостей;
• формирование многофункционального помещения, в котором можно одновременно готовить, работать и отдыхать.
Особое внимание мы уделили многофункциональной детской комнате. Когда ребёнок уезжает, она легко превращается в комфортабельный кабинет, который можно использовать и как гостевую спальню.
Приватная зона была реорганизована с максимальным вниманием к комфорту хозяев дома. Разделение санузла на просторный мастер-санузел с душевой кабиной и компактный гостевой позволило чётко разграничить личное и общественное пространство.
Видео
Бывает лучше один раз увидеть, чем несколько раз услышать. Именно по этой причине мы подготовили для вас видео-обзор по этому объекту.
Подписывайтесь на наши каналы, чтобы быть в курсе новых интересных интерьеров:
Планировка

Прихожая и коридор
Цветовая гамма и материалы визуально связывают прихожую с остальными помещениями, обеспечивая целостность пространства.

Прихожая выполнена в стиле современного минимализма с акцентом на натуральность. Основной материал отделки — светлое дерево, которое согревает пространство теплом и делает его визуальное единым.


Пол и декоративные элементы стен выполнены из белого керамогранита с тёмно-серыми прожилками, что придаёт интерьеру элегантность. Большие зеркала добавляют света даже при отсутствии окон.


Встроенные шкафы и открытая система хранения обеспечивают достаточно места для одежды и аксессуаров. Небольшая зона с мягкой скамьей позволяет удобно переобуваться.

Освещение реализовано с помощью встраиваемых точечных светильников, создающих ровный приятный свет без акцентов и бликов. Общий интерьер прихожей оставляет впечатление лёгкости, чистоты и порядка.
Цветовая гамма и материалы визуально связывают прихожую с остальными помещениями, обеспечивая целостность пространства.
Детская
В интерьере сочетаются натуральное дерево, матовые поверхности и текстиль спокойных оттенков.

Детская комната имеет вытянутую форму, это позволило рационально использовать площадь, разделив её на зоны работы и отдыха. Панорамное окно с горизонтальными жалюзи обеспечивает максимум света. Радиаторы отопления встроены в пол и не загромождают пространство.


В интерьере сочетаются натуральное дерево, матовые поверхности и текстиль спокойных оттенков. Декоративные элементы создают завершённый образ и делают пространство индивидуальным.


Мягкий диван придаёт зоне отдыха домашний уют. Акцентная стена с графичным рисунком добавляет интерьеру живость и динамику. Верхний светильник вместе с инсталляционными источниками света формируют многозональное освещение.

Открытые и закрытые полки вдоль стены позволяют хранить книги и аксессуары, поддерживая порядок и визуальную лёгкость.
У окна размещено рабочее место с небольшим письменным столом и эргономичным креслом. Большое окно обеспечивает отличное естественное освещение для продуктивной деятельности.
Светлая серо-зелёная мебель растворяется на фоне стен такого же оттенка, оставаясь практически незаметной.
Спальня
Интерьер выглядит очень уютно за счёт продуманного освещения.

Главный акцент в спальне — фактурная стена за изголовьем кровати, имитирующая натуральный камень. Подсветка по верхнему и нижнему краям эффектно подчёркивает рельеф поверхности. Панорамное окно с горизонтальными жалюзи обеспечивает максимум естественного света.


Нейтральная серая обивка кровати гармонирует с тоном стен. Стильная лампа на прикроватной тумбе подчёркивает утончённость интерьера. Подвесные светильники с мягким рассеянным светом добавляют ощущение тепла.

Вход в гардеробную прикрыт чёрной раздвижной полупрозрачной дверью, которая создаёт изысканный акцент и стильно сочетается с телевизионной панелью, органично вписывая её в интерьер.
Интерьер выглядит очень уютно за счёт продуманного освещения: рассеянный верхний свет, настольная лампа и подвесные светильники-шарики с тёплым светом.
Гардеробная
Эргономичная система хранения позволяет удобно размещать вещи и быстро находить то, что нужно.

Встроенная подсветка секций превращает гардеробную в удобное и красивое пространство. Свет мягкий и рассеянный, что облегчает навигацию и защищает текстиль от выцветания.


В отделке гардероба преобладают светлое дерево и матовые поверхности — это помогает визуально увеличить пространство. Монохромная палитра поддерживает ощущение порядка.

Эргономичная система хранения позволяет удобно размещать вещи и быстро находить то, что нужно. Верхние ярусы для хранения сезонных вещей позволяют поддерживать порядок.
Кухня-гостиная
Интерьер выглядит респектабельно, но не холодно благодаря сочетанию естественного освещения и тактильно приятных текстур.

Кухня объединена со столовой зоной и гостиной, что создает ощущение открытости и простора. Кухонные фасады из светлого дерева не перегружают пространство, а обеденная группа с мягкими стульями добавляет уюта и плавности линий.


Доминирующая палитра - тёплые и нейтральные тона. Мрамор на стенах и на полу обеспечивает визуальное единство поверхностей. Фасады верхних шкафов имеют более насыщенный оттенок, что создаёт глубокий и гармоничный контраст.


Подвесной шарообразный светильник над обеденным столом становится стильным акцентом. Встроенные световые линии и напольный торшер у окна обеспечивают функциональный свет.


Основная цветовая гамма гостиной состоит из нейтральных оттенков серого. Интерьер выглядит респектабельно, но не холодно благодаря сочетанию естественного освещения и тактильно приятных текстур.


Просторная зона отдыха отлично подходит для отдыха и приёма гостей. Рядом с диваном расположен лаконичный чёрный приставной столик для книг и напитков. На пол мы уложили надежную инженерную доску тёплого золотистого оттенка.
Стеновая панель с фактурой натурального камня подсвечена по контуру, что создаёт эффектную игру света и тени. Естественный свет проникает через большие окна, украшенные однотонными шторами.
Интерьер этой зоны лаконичен: только необходимые для создания уюта и поддержания чистоты линий элементы. Чёткий силуэт черного торшера добавляет графичность и контраст, сохраняя общую гармонию.
Ванная
Чёрная матовая сантехническая фурнитура подчёркивает современность интерьера.

Мастер-санузел мы отделали ярким керамогранитом с выразительным природным рисунком. Его тёплые оттенки создают эффект спа-пространства.


Чёрная матовая сантехническая фурнитура подчёркивает современность интерьера. Белый подвесной унитаз не перегружает пространство и облегчает уборку.


Линейная подсветка за зеркалом и вертикальная в душевой зоне визуально расширяют помещение, подчеркивая фактуру стен. Консольная тумба под раковиной идеально вписывается в пространство.


Ниши с подсветкой в душевой зоне позволяют удобно разместить нужные мелочи. Фактура стен в сочетании с дверцами шкафов из древесного шпона привносит в пространство элегантность и природную теплоту.
Гостевой санузел
Функционально этот санузел одновременно является прачечной.

Гостевой санузел компактный, поэтому каждое решение должно быть практичным. Унитаз — подвесной. Для косметических средств и других мелочей предусмотрена ниша с подсветкой.


Функционально этот санузел одновременно является прачечной. Светлый керамогранит зрительно расширяет узкое помещение. Компактная раковина с тумбой экономит место.
Многозонный свет позволяет использовать разные сценарии освещения. Небольшие чёрные акценты — дверная ручка, крючки и сантехническая фурнитура визуально структурируют интерьер.





















































