Информация и галерея
- ЖК Хорошёвский
- 70 м²
- 214 дней
- Современный
- Дизайн-проект
- Инженерные проекты
- Качественный ремонт
- Комплектация ремонта
- Авторский надзор
- Страхование ремонта
О проекте
Этот проект выполнен для молодой энергичной семейной пары, их сына, а также для их будущего питомца — кота.
Сегодня мы поговорим о преимуществах и своеобразной эстетике современного стиля.
Рассмотрим все стилистические и прочие нюансы на примере дизайн-проекта квартиры площадью 70 квадратных метров, расположенной в жилом комплексе «Хорошёвский».
Этот проект выполнен для молодой энергичной семейной пары, их сына, а также для их будущего питомца – кота.
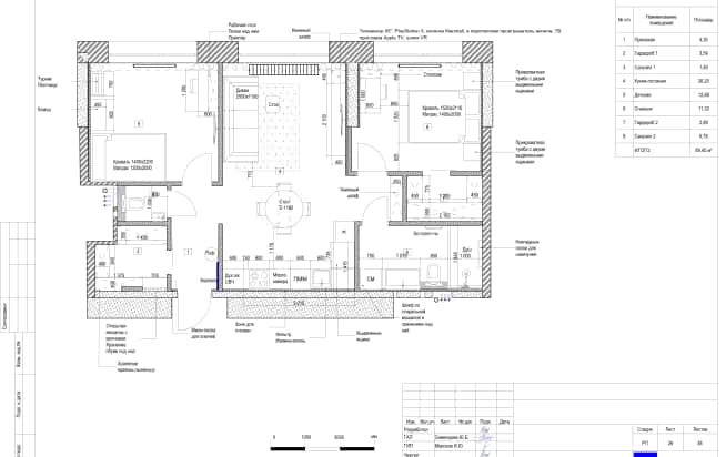
Мы разделили общее пространство квартиры на три части. Всю центральную часть занимает большое проходное помещение гостиной с зоной столовой и рабочей зоной кухни. В правой части обустроена спальня родителей, гардеробная и ванная комната, в левой части – прихожая, гардеробная, гостевой санузел и спальня сына.
В результате планировочного решения получился проект, соответствующий всем нуждам и потребностям молодых, активных, современных владельцев этого жилья.
Наши дизайнеры спроектировали квартиру в современном стиле, используя лаконичную бело-серую гамму оттенков с нюансами чёрного цвета. Отсутствие лишних деталей, выразительность и сдержанность простых ясных форм, текстур и фактур соответствует выбранному стилю.
Видео
Бывает лучше один раз увидеть, чем несколько раз услышать. Именно по этой причине мы подготовили для вас видео-обзор по этому объекту.
Подписывайтесь на наши каналы, чтобы быть в курсе новых интересных интерьеров:
Планировка

Прихожая
Лаконичное зеркало со скрытой подсветкой за счёт отражения визуально увеличивает пространство.

Небольшая прихожая является примером того, как можно сочетать функциональность и эстетику в современном дизайне.

В соответствии с целью создания практичного интерьера стена при входе вместе с дверным полотном оформлена тёмной декоративной штукатуркой. Фактура штукатурки отлично сочетается с большими плитами тёмно-серого керамогранита, которые легко моются, что особенно важно для входной зоны.
Использование светлых тонов и современных материалов для отделки смежных стен, а также визуальное слияние с помещением гостиной усиливает ощущение простора, наполненности воздухом и гармонии композиции пространства.
Лаконичное зеркало со скрытой подсветкой за счёт отражения визуально увеличивает пространство, делая его более открытым.
Светильник у зеркала не только выполняет практичную функцию освещения, но и становится важным элементом декора.
Гардеробная 1
Небольшая гардеробная хорошо освещена, что позволяет с удобством использовать это помещение по назначению.

Мы разместили в этой гардеробной как секции для верхней одежды и обуви, так и места хранения повседневной одежды.


Небольшая гардеробная хорошо освещена, что позволяет с удобством использовать это помещение по назначению.

Здесь размещено достаточное количество секций со штангами и вешалками в сочетании с секциями с полками и ящиками.
Санузел 1
Гостевой санузел получился выразительным благодаря сочетанию серых стен и пола с текстурой микроцемента.

Гостевой санузел получился выразительным благодаря сочетанию серых стен и пола с текстурой микроцемента, подсветке за зеркалом, белоснежной подвесной сантехнике простых лаконичных форм, белой плитке с чёрными разводами из коллекции «панда» и аксессуарам из чёрного матового металла.

Кухня-гостиная
Книжные шкафы всегда были традиционным атрибутом гостиной. В этой квартире книги также занимают центральное место.

Просторная гостиная настолько же элегантна, насколько и сдержанна. Выверенные пропорции стен, мебели, мягкого ковра белого цвета и полотна с абстрактной живописью, висящего над диваном, создают ощущение умиротворения и простой, приятной глазу гармонии. Отсутствие мелких деталей и аксессуаров способствует восприятию целостности пространства.


Молочные стены подчёркивают чистоту и воздушность помещения гостиной. А достаточно насыщенное по цвету напольное покрытие из кварц-винила создает контраст большим светлым пятнам и уравновешивает аксессуары с элементами из чёрного металла.


Мягкий диван линейной конфигурации с низкой спинкой и практичной серой обивкой служит центральным элементом зоны отдыха. Он сочетает в себе комфорт и стильный вид, а также служит нейтральным фоном для живописного полотна, предельно лаконичного торшера и оригинального журнального столика из светлого блестящего металла.


Напротив дивана наши дизайнеры расположили телевизионную зону с подвесной тёмной корпусной мебелью. Тумба и стеллаж также очень лаконичны, а фоновая панель с подсветкой – интересное конструктивное решение, сочетающее в себе декоративность и утилитарную функцию освещения этой группы. За счёт контурной подсветки и контрастного цветового решения эта зона выигрышно выделяется на фоне светлой стены.


Многослойное оформление окна тоже функционально. Мы использовали жалюзи, светлую полупрозрачную ткань и плотные зеленовато-серые шторы в пол. Шторный карниз скрыт в потолочной нише в соответствии с общим стилевым решением.

Уютный круглый обеденный стол с четырьмя эргономичными стульями наши дизайнеры разместили в самом центре гостиной. Центральная ножка-опора придаёт столовой группе основательность и респектабельность.
Светильник-кольцо довершает оформление обеденной зоны и создает уютное вечернее освещение за ужином. А основное мягкое рассеянное освещение дают встроенные потолочные споты.
Книжные шкафы всегда были традиционным атрибутом гостиной. В этой квартире книги также занимают центральное место, расположенные за стеклянными дверцами шкафа-витрины. Таким образом мы зонировали пространства гостиной и кухонной зоны.
Кухонный гарнитур в графитово-белой гамме идеально сочетается с корпусной мебелью зоны гостиной. За счёт выбора цельных фасадов напольных и навесных шкафов и встроенной бытовой техники пространство рабочей зоны кухни воспринимается свободным и лёгким.
На фоне сдержанной серо-белой гаммы кухонных шкафов не только утилитарную, но и декоративную роль берет на себя столешница и фартук с текстурой «тераццо».
Хочется отметить, что на общем пространстве большого помещения можно создать обособленные уютные зоны отдыха, столовой и кухни без перегородок и зонирования громоздкой мебелью, только лишь за счёт грамотного подобранной мебели, выверенной композиции и эргономики пространства.
Это большое, светлое, уютное пространство получилось функциональным, эргономичным и стильным в соответствии с новейшими тенденциями дизайна интерьера.
Детская
В детской спальне наши дизайнеры ввели зеленовато-серые и мятные оттенки, добавили много разнофактурного текстиля.

Спальня сына оснащена удобной функциональной кроватью с мягким каркасом угловой формы. Эта простая, на первый взгляд, мягкая мебель обеспечивает дополнительный комфорт и даёт поддержку для спины во время чтения книг перед сном или дневного отдыха.


В детской спальне наши дизайнеры ввели зеленовато-серые и мятные оттенки, добавили много разнофактурного текстиля, что сделало помещение комнаты умиротворяющим и уютным.


Оформление окна визуально объединяет спальню сына с остальными комнатами в квартире, создавая общий целостный и гармоничный интерьер.
Спальня мальчика небольшая по площади, однако дизайнеры разместили здесь и вместительный комод для хранения личных вещей, и спортивный комплекс, и полноценную рабочую зону.
Письменный стол оснащён двумя ящиками, а над ним размещены открытые и закрытые секции для хранения книг и учебников. Рабочая лампа и подсветка открытой секции дают дополнительное освещение в этой зоне.
Рядом с рабочим столом размещена плазменная панель телевизора, которую можно использовать не только для отдыха и развлечений, но и для учебы.
Спальня
Картина, висящая над кроватью, в стиле актуального абстракционизма придаёт спальне характер и современный шик.

Спальня семейной пары оформлена в той же стилистике, как и все помещения в квартире, в лаконичной серо-белой цветовой гамме.


В интерьере этого помещения мы вновь использовали большой объём светлых текстур: белых стен, постельного белья оттенка светлого серебра, светлого серо-бежевого ковра, и добавили контрастные элементы: чёрный металлический каркас кровати и тёмно-серые оттенки в отделке мебели.


Несмотря на современное стилевое решение, спальня буквально излучает уют и комфорт благодаря продуманному расположению мебели, лиловым подушкам и изящному асимметричному декору стены в изголовье.
Картина, висящая над кроватью, в стиле актуального абстракционизма придаёт спальне характер и современный шик. Её мягкие линии напоминают то ли холмы, то ли морские волны, но ритмичное чередование полос выступает в дуэте с полосатой фактурой стены, создавая целостный уникальный интерьер спальни.
Оформление окна так же функционально и многослойно, как и в гостиной. Наши дизайнеры использовали лёгкие жалюзи, летящую полупрозрачную ткань и тяжелые зеленовато-серые, с красивой фактурой, шторы в пол.
Дневной свет из панорамного окна и мягкий рассеянный свет встроенных потолочных светильников делают помещение спальни светлым и наполненным воздухом. А закарнизный свет по всему периметру создает эффект парящего потолка.
Напротив кровати мы расположили небольшой письменный стол на фоне стены, отделанной декоративной штукатуркой под бетон. Изящное кресло и лёгкий стеллаж придают рабочей зоне демократичный ненавязчивый вид.
Освещение здесь дополняет настольная лампа и стильный вертикальный светильник, помогающий зонировать пространство этой комнаты.
Лёгкость и воздушность спальне также придает отсутствие громоздкой корпусной мебели. За откатной дверью скрыта гардеробная, поэтому в комнате нет шкафов.
Гардеробная 2
Кроме потолочных спотов, в каждой секции обустроена отдельная подсветка для удобства пользования мебелью.

Напротив входа расположены отделения с платяными штангами для одежды, а по бокам секции с ящиками и полками.


Хорошо продумана и система освещения. Кроме потолочных спотов, в каждой секции обустроена отдельная подсветка для удобства пользования мебелью.
Использование буквально каждого сантиметра пространства, лёгкая доступность и хорошее освещение делают пространство гардеробной очень удобным и вместительным.
Санузел 2
Мебель выполнена в серых и чёрных тонах. На этом фоне на передний план выходит демонстрация современной белоснежной сантехники и функциональной бытовой техники.

Центральное место занимает композиция в образовавшейся нише из вместительной подвесной тумбы с большой раковиной и масштабным круглым зеркалом. Дизайнеры выделили эту зону при помощи подсветки.


Мебель выполнена в серых и чёрных тонах. На этом фоне на передний план выходит демонстрация современной белоснежной сантехники и функциональной бытовой техники: стиральной и сушильной машин, встроенных в колонну.


Акцентная плитка в зоне душевой с чёрным графичным принтом «панда» создает интересный контраст с белым фоном и белой сантехникой, и придаёт интерьеру ванной комнаты динамичный характер.
Полотенцесушитель и конструктив душевой тоже выполнены в матовом чёрном металле, как и многие другие металлические конструкции в квартире.
Приглушённая интимная атмосфера ванной комнаты, созданная нашими дизайнерами, получилась необычной и интересной.
В результате работы нашей команды заказчики получили проект интерьера квартиры, близкий им по стилю, соответствующий их темпераменту, лаконичный, уникальный, выполненный в современной стилистике минимализма.


















































