Дизайн и ремонт квартиры в ЖК Вдохновение — Песня в стиле кантри

Опубликовано: 28 октября 2025

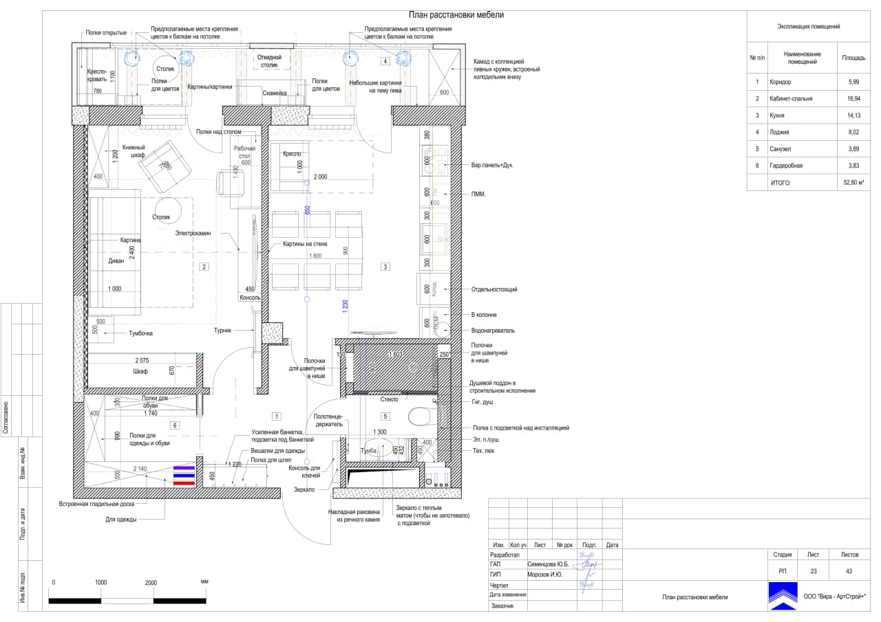
Сегодня у нас обзор интересного эклектичного интерьера квартиры площадью 53 квадратных метра, созданного нашими дизайнерами и обустроенного для работы и отдыха главы семьи.

Заказчик — очень взрослый мужчина, проживающий с семьёй в квартире, расположенной на территории жилого комплекса «Вдохновение». А эту квартиру, находящуюся в том же здании, он планировал использовать для хоум-офиса и встреч с коллегами.

Свой офис хозяин хотел видеть отделанным преимущественно натуральными материалами, с простым, немного брутальным интерьером, хотя элементы и современного, и классического стиля тоже вызывали положительный отклик. Поэтому нами было решено создать интерьер в симбиозе современной классики с элементами кантри.

Нами было предложено несколько вариантов планировочных решений, основанных на запросах заказчика. В результате удалось исполнить все пожелания, несмотря на то, что квартира имеет небольшую площадь.

Так наши дизайнеры выделили прихожую с отдельной гардеробной, кабинет, объединённый со спальней, кухню, при необходимости берущую на себя функцию гостевой, мини-гостиную, расположенную на проходной лоджии, и санузел.

Экскурсию по объекту вы можете совершить на странице публикации:

Дизайн и ремонт квартиры в ЖК Вдохновение — Песня в стиле кантри