Опубликовано: 4 ноября 2025
К нам обратилась владелица квартиры с интересной планировкой с просьбой разработать ей дизайнерский проект так, чтобы максимально использовать существующее пространство с высокими потолками и получить в итоге функциональный уютный интерьер.
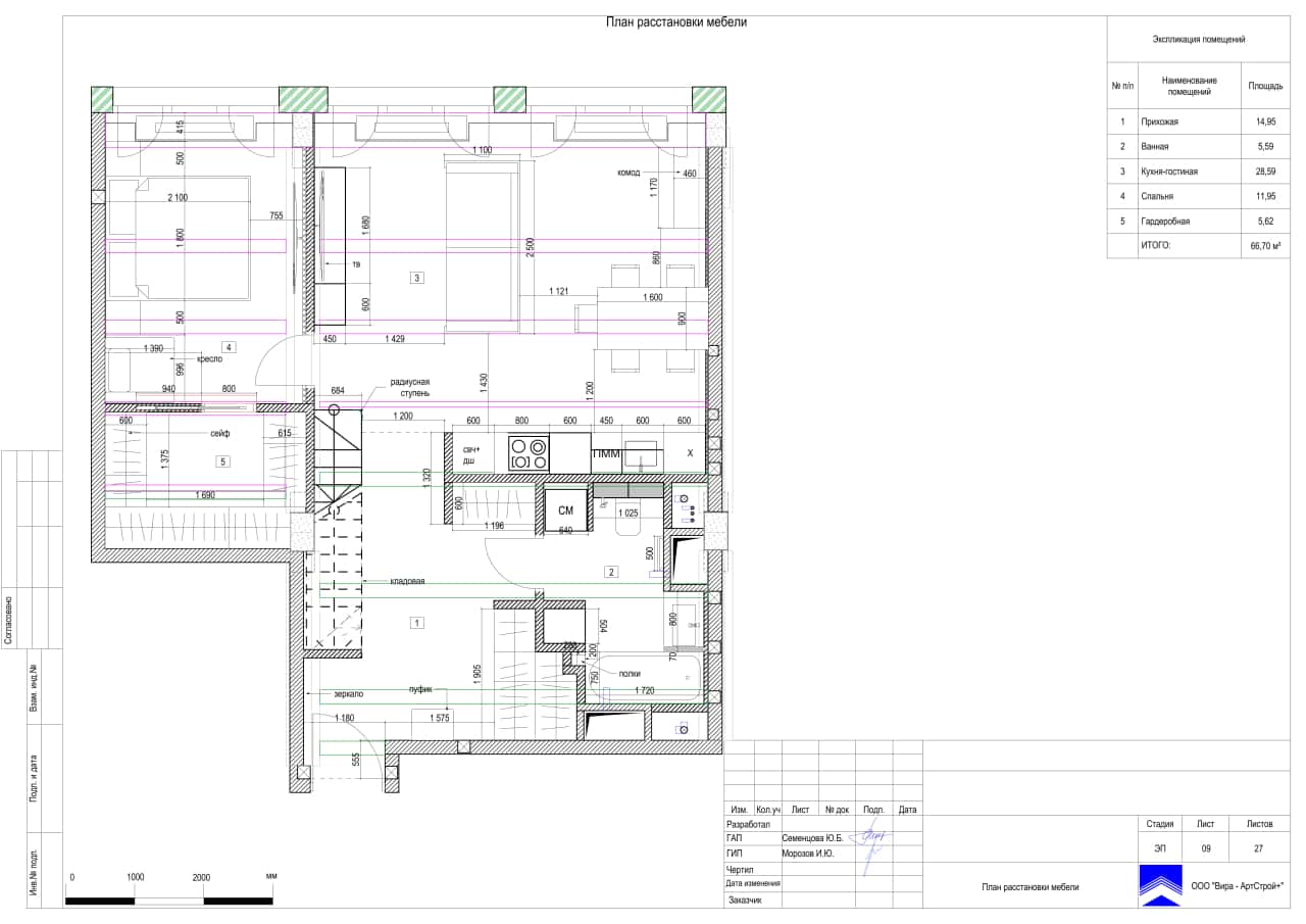
Квартира в жилом комплексе «Джаз» изначально имела площадь 68 квадратных метров. Наши дизайнеры выделили помещения прихожей, кухни-гостиной, спальни с гардеробной и санузла.
Дополнительно мы спроектировали жилую антресоль, так называемый мезонин, заняв часть площади квартиры над прихожей, санузлом и рабочей зоной кухни, и организовали дополнительное пространство.
Перепланировка и возведение антресольного этажа отвечают всем необходимым законодательным требованиям.
Экскурсию по объекту вы можете совершить на странице публикации:
